Property
Account |
| Property ID: | 14137 | Abbreviated Legal Description: | PROSPECT HGTS LOT 3 BLOCK 12 (LOT 3 OF SURVEY) |
| Parcel Number: | 360732571204 | Agent Code: | |
| Type: | Real | | |
| Tax Area: | 105 - 140-F-4 | Land Use Code | 11 |
| Open Space: | N | DFL | N |
| Historic Property: | N | Remodel Property: | N |
| Multi-Family Redevelopment: | N | | |
| Township: | 7 | Section: | 32 |
| Range: | 36 |
Location |
| Address: | 2640 S 4TH AVE WALLA WALLA, WA 99362 | Mapsco: | |
| Neighborhood: | G Res Rural/City Inf | Map ID: | |
| Neighborhood CD: | 614012 |
Owner |
| Name: | HOLBROOK SCOTT D & JENNIFER A | Owner ID: | 68823 |
| Mailing Address: | 2640 S 4TH AVE WALLA WALLA, WA 99362 | % Ownership: | 100.0000000000% |
| | | Exemptions: | |
Taxes and Assessment Details
Values
| (+) Improvement Homesite Value: | + | $0 | |
| (+) Improvement Non-Homesite Value: | + | $403,470 | |
| (+) Land Homesite Value: | + | $0 | |
| (+) Land Non-Homesite Value: | + | $150,370 | |
| (+) Curr Use (HS): | + | $0 | $0 |
| (+) Curr Use (NHS): | + | $0 | $0 |
| | | -------------------------- | |
| (=) Market Value: | = | $553,840 | |
| (–) Productivity Loss: | – | $0 | |
| | | -------------------------- | |
| (=) Subtotal: | = | $553,840 | |
| (+) Senior Appraised Value: | + | $0 | |
| (+) Non-Senior Appraised Value: | + | $553,840 | |
| | | -------------------------- | |
| (=) Total Appraised Value: | = | $553,840 | |
| (–) Senior Exemption Loss: | – | $0 | |
| (–) Exemption Loss: | – | $0 | |
| | | -------------------------- | |
| (=) Taxable Value: | = | $553,840 | |
Taxing Jurisdiction
| Owner: | HOLBROOK SCOTT D & JENNIFER A | | |
| % Ownership: | 100.0000000000% | | |
| Total Value: | $553,840 | | |
| Tax Area: | 105 - 140-F-4 |
| CERFD | CURRENT EXPENSE REFUND 010 | 0.0000000000 | $553,840 | $553,840 | $0.00 | | |
| CURREXP | CURRENT EXPENSE 010 | 1.0175366760 | $553,840 | $553,840 | $563.55 | | |
| HUMNSERV | HUMAN SERVICES 119 | 0.0250000000 | $553,840 | $553,840 | $13.85 | | |
| SLDREL | SOLDIERS RELIEF 121 | 0.0155990005 | $553,840 | $553,840 | $8.64 | | |
| EMERGSER | EMS 147 | 0.3792580840 | $553,840 | $553,840 | $210.05 | | |
| EMSRFD | EMS REFUND 147 | 0.0000000000 | $553,840 | $553,840 | $0.00 | | |
| FD4EXP | FD #4 EXPENSE 686 | 0.8836993059 | $553,840 | $553,840 | $489.43 | | |
| RLBRFD | RURAL LIBRARY REFUND 623 | 0.0000000000 | $553,840 | $553,840 | $0.00 | | |
| RURALLIB | RURAL LIBRARY 623 | 0.3710609029 | $553,840 | $553,840 | $205.51 | | |
| PORTRFD | PORT REFUND 640 | 0.0000000000 | $553,840 | $553,840 | $0.00 | | |
| PORTWWGEN | PORT OF WW 640 | 0.2460186015 | $553,840 | $553,840 | $136.25 | | |
| SD140BOND | SD #140 BOND 764 | 0.8342371393 | $553,840 | $553,840 | $462.03 | | |
| SD140GEN | SD #140 GENERAL 760 | 2.0646500647 | $553,840 | $553,840 | $1,143.49 | | |
| ST2 | STATE SCHOOL PART 2 600 | 0.8131451643 | $553,840 | $553,840 | $450.35 | | |
| STATESCHL | STATE SCHOOL 600 | 1.5158548041 | $553,840 | $553,840 | $839.54 | | |
| STREFUND | STATE REFUND LEVY 603 | 0.0000000000 | $553,840 | $553,840 | $0.00 | | |
| COROAD | COUNTY ROAD 115 | 1.6549953990 | $553,840 | $553,840 | $916.60 | | |
| CRPRD | COUNTY ROAD REFUND 115 | 0.0000000000 | $553,840 | $553,840 | $0.00 | | |
| | Total Tax Rate: | 9.8210551422 | | | | | |
| | | | | Taxes w/Current Exemptions: | $5,439.29 | | |
| | | | | Taxes w/o Exemptions: | $5,439.29 | | |
Improvement / Building
| Improvement #1: | RESIDENTIAL | State Code: | 11 | 1996.0 sqft | Value: | $403,470 |
| Exterior Wall: | HARDBOARD | Heating/Cooling: | WARM & COOLED AIR | | Number of Bathrooms: | 2 | Number of Bedrooms: | 3 | | Plumbing: | 12 | Roof Covering: | COMP SHINGLE |
|
| | Type | Description | Class CD | Sub Class CD | Year Built | Area |
| | MA | Main Area | 1 | 35 | 2014 | 1996.0 |
| | ATG | Attached Garage | 1 | 35 | 2014 | 549.0 |
| | RCD | WOOD DECK W/ROOF, CEILED | 1 | 35 | 2014 | 135.0 |
| | POL2 | POLE BUILDING-CONCRETE | 1 | 35 | 2014 | 864.0 |
| | RPC | OPEN PORCH W/ROOF , CEILED | 1 | 35 | 2014 | 217.0 |
| | GFP | GAS FIREPLACE | 1 | 35 | 2014 | 1.0 |
| | SI1 | SITE IMPROVEMENT | 1 | 35 | 2014 | 3.0 |
| | BON1 | BONUS RM ATT/MIN OR NO FINISH | 1 | 35 | 2014 | 294.0 |
Sketch
Property Image
Land
| 1 | RES 1 | Converted: Residential | 1.0100 | 0.00 | 0.00 | 0.00 | 1.00 | $150,370 | $0 |
Roll Value History
| 2026 | N/A | N/A | N/A | N/A | N/A |
| 2025 | $461,820 | $170,410 | $0 | $632,230 | $632,230 |
| 2024 | $403,470 | $150,370 | $0 | $553,840 | $553,840 |
| 2023 | $403,470 | $150,370 | $0 | $553,840 | $553,840 |
| 2022 | $350,850 | $90,050 | $0 | $440,900 | $440,900 |
| 2021 | $318,950 | $90,050 | $0 | $409,000 | $409,000 |
| 2020 | $236,260 | $90,050 | $0 | $326,310 | $326,310 |
| 2019 | $236,260 | $90,050 | $0 | $326,310 | $326,310 |
| 2018 | $225,940 | $75,100 | $0 | $301,040 | $301,040 |
| 2017 | $215,180 | $75,100 | $0 | $290,280 | $290,280 |
| 2016 | $201,100 | $75,100 | $0 | $276,200 | $276,200 |
| 2015 | $201,100 | $75,100 | $0 | $276,200 | $276,200 |
| 2014 | $201,100 | $75,100 | $0 | $276,200 | $276,200 |
| 2013 | $0 | $75,100 | $0 | $75,100 | $75,100 |
| 2012 | $0 | $75,100 | $0 | $0 | $0 |
| 2011 | $0 | $75,100 | $0 | $0 | $0 |
| 2010 | $0 | $75,100 | $0 | $0 | $0 |
| 2009 | $0 | $75,100 | $0 | $0 | $0 |
| 2008 | $0 | $75,100 | $0 | $0 | $0 |
| 2007 | $0 | $5,900 | $0 | $0 | $0 |
Deed and Sales History
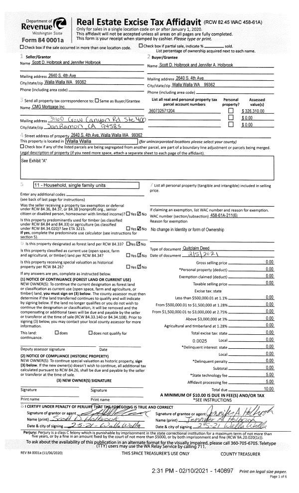
| 1 | 02/05/2021 | QCD | QUIT CLAIM DEED | HOLBROOK SCOTT D & JENNIFER | HOLBROOK SCOTT D & JENNIFER A | | | $0.00 | 140897 | 2021-01621 |
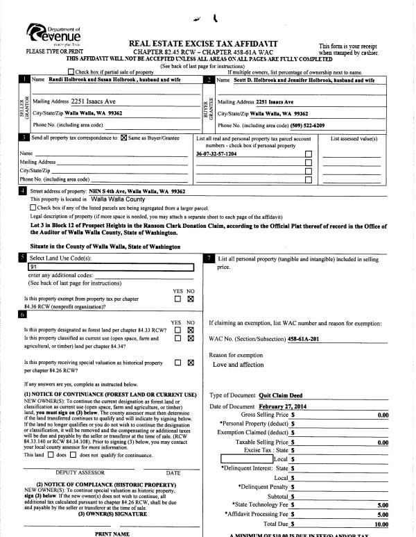
| 2 | 03/03/2014 | QCD | QUIT CLAIM DEED | HOLBROOK RANDI D & SUSAN L | HOLBROOK SCOTT D & JENNIFER | | | | 125507 | 2014-01447 |
| 3 | 12/28/2004 | WARRANTY D | WARRANTY DEED | EWERT, GREGORY B | HOLBROOK, RANDI D & SUSAN L | | | $50,000.00 | 106506 | 2004-14877 |
Payout Agreement
| No payout information available.. |