Property
Account |
| Property ID: | 14119 | Abbreviated Legal Description: | ROFF'S CRANBROOK LANE SUBD LOT 12-B OF SHORT PLAT (WLY 88' OF LOT12) |
| Parcel Number: | 360732800014 | Agent Code: | |
| Type: | Real | | |
| Tax Area: | 6 - OL-140-F-FB | Land Use Code | 11 |
| Open Space: | N | DFL | N |
| Historic Property: | N | Remodel Property: | N |
| Multi-Family Redevelopment: | N | | |
| Township: | 7 | Section: | 32 |
| Range: | 36 |
Location |
| Address: | 855 WHITNEY RD WA 99362 | Mapsco: | |
| Neighborhood: | G Res Rural/City Inf | Map ID: | |
| Neighborhood CD: | 614012 |
Owner |
| Name: | NEWTON JOHN F & MELISSA S | Owner ID: | 57380 |
| Mailing Address: | 855 WHITNEY RD WALLA WALLA, WA 99362 | % Ownership: | 100.0000000000% |
| | | Exemptions: | |
Taxes and Assessment Details
Values
| (+) Improvement Homesite Value: | + | $0 | |
| (+) Improvement Non-Homesite Value: | + | $317,480 | |
| (+) Land Homesite Value: | + | $0 | |
| (+) Land Non-Homesite Value: | + | $91,760 | |
| (+) Curr Use (HS): | + | $0 | $0 |
| (+) Curr Use (NHS): | + | $0 | $0 |
| | | -------------------------- | |
| (=) Market Value: | = | $409,240 | |
| (–) Productivity Loss: | – | $0 | |
| | | -------------------------- | |
| (=) Subtotal: | = | $409,240 | |
| (+) Senior Appraised Value: | + | $0 | |
| (+) Non-Senior Appraised Value: | + | $409,240 | |
| | | -------------------------- | |
| (=) Total Appraised Value: | = | $409,240 | |
| (–) Senior Exemption Loss: | – | $0 | |
| (–) Exemption Loss: | – | $0 | |
| | | -------------------------- | |
| (=) Taxable Value: | = | $409,240 | |
Taxing Jurisdiction
| Owner: | NEWTON JOHN F & MELISSA S | | |
| % Ownership: | 100.0000000000% | | |
| Total Value: | $409,240 | | |
| Tax Area: | 6 - OL-140-F-FB |
| CERFD | CURRENT EXPENSE REFUND 010 | 0.0000000000 | $409,240 | $409,240 | $0.00 | | |
| CURREXP | CURRENT EXPENSE 010 | 1.0175366760 | $409,240 | $409,240 | $416.42 | | |
| HUMNSERV | HUMAN SERVICES 119 | 0.0250000000 | $409,240 | $409,240 | $10.23 | | |
| SLDREL | SOLDIERS RELIEF 121 | 0.0155990005 | $409,240 | $409,240 | $6.38 | | |
| EMERGSER | EMS 147 | 0.3792580840 | $409,240 | $409,240 | $155.21 | | |
| EMSRFD | EMS REFUND 147 | 0.0000000000 | $409,240 | $409,240 | $0.00 | | |
| PORTRFD | PORT REFUND 640 | 0.0000000000 | $409,240 | $409,240 | $0.00 | | |
| PORTWWGEN | PORT OF WW 640 | 0.2460186015 | $409,240 | $409,240 | $100.68 | | |
| SD140BOND | SD #140 BOND 764 | 0.8342371393 | $409,240 | $409,240 | $341.40 | | |
| SD140GEN | SD #140 GENERAL 760 | 2.0646500647 | $409,240 | $409,240 | $844.94 | | |
| ST2 | STATE SCHOOL PART 2 600 | 0.8131451643 | $409,240 | $409,240 | $332.77 | | |
| STATESCHL | STATE SCHOOL 600 | 1.5158548041 | $409,240 | $409,240 | $620.35 | | |
| STREFUND | STATE REFUND LEVY 603 | 0.0000000000 | $409,240 | $409,240 | $0.00 | | |
| CWWBOND | C OF WW BOND 643 | 0.2760494372 | $409,240 | $409,240 | $112.97 | | |
| CWWGEN | CITY OF WW 631 | 1.6100204973 | $409,240 | $409,240 | $658.88 | | |
| CWWRFD | CITY OF WALLA WALLA REFUND 631 | 0.0000000000 | $409,240 | $409,240 | $0.00 | | |
| | Total Tax Rate: | 8.7973694689 | | | | | |
| | | | | Taxes w/Current Exemptions: | $3,600.23 | | |
| | | | | Taxes w/o Exemptions: | $3,600.23 | | |
Improvement / Building
| Improvement #1: | RESIDENTIAL | State Code: | 11 | 1708.0 sqft | Value: | $317,480 |
| Exterior Wall: | VINYL | Heating/Cooling: | WARM & COOLED AIR | | Number of Bathrooms: | 2 | Number of Bedrooms: | 4 | | Plumbing: | 10 | Roof Covering: | COMP SHINGLE |
|
| | Type | Description | Class CD | Sub Class CD | Year Built | Area |
| | MA | Main Area | 1 | 30 | 2005 | 1708.0 |
| | SI1 | SITE IMPROVEMENT | 1 | 30 | 2005 | 2.2 |
| | ATG | Attached Garage | 1 | 30 | 2005 | 460.0 |
| | RPO | OPEN PORCH W/ROOF | 1 | 30 | 2005 | 100.0 |
Sketch
Property Image
Land
| 1 | RES 1 | Converted: Residential | 0.2839 | 12366.00 | 0.00 | 0.00 | 1.00 | $91,760 | $0 |
Roll Value History
| 2026 | N/A | N/A | N/A | N/A | N/A |
| 2025 | $325,970 | $120,000 | $0 | $445,970 | $445,970 |
| 2024 | $333,360 | $91,760 | $0 | $425,120 | $425,120 |
| 2023 | $317,480 | $91,760 | $0 | $409,240 | $409,240 |
| 2022 | $302,370 | $75,000 | $0 | $377,370 | $377,370 |
| 2021 | $241,890 | $75,000 | $0 | $316,890 | $316,890 |
| 2020 | $172,780 | $75,000 | $0 | $247,780 | $247,780 |
| 2019 | $172,780 | $75,000 | $0 | $247,780 | $247,780 |
| 2018 | $169,970 | $65,000 | $0 | $234,970 | $234,970 |
| 2017 | $169,970 | $65,000 | $0 | $234,970 | $234,970 |
| 2016 | $147,800 | $65,000 | $0 | $212,800 | $212,800 |
| 2015 | $147,800 | $65,000 | $0 | $212,800 | $212,800 |
| 2014 | $147,800 | $65,000 | $0 | $212,800 | $212,800 |
| 2013 | $147,800 | $65,000 | $0 | $212,800 | $212,800 |
| 2012 | $135,200 | $65,000 | $0 | $0 | $0 |
| 2011 | $135,200 | $65,000 | $0 | $0 | $0 |
| 2010 | $135,200 | $65,000 | $0 | $0 | $0 |
| 2009 | $157,400 | $65,000 | $0 | $0 | $0 |
| 2008 | $157,400 | $65,000 | $0 | $0 | $0 |
| 2007 | $168,700 | $45,000 | $0 | $0 | $0 |
Deed and Sales History
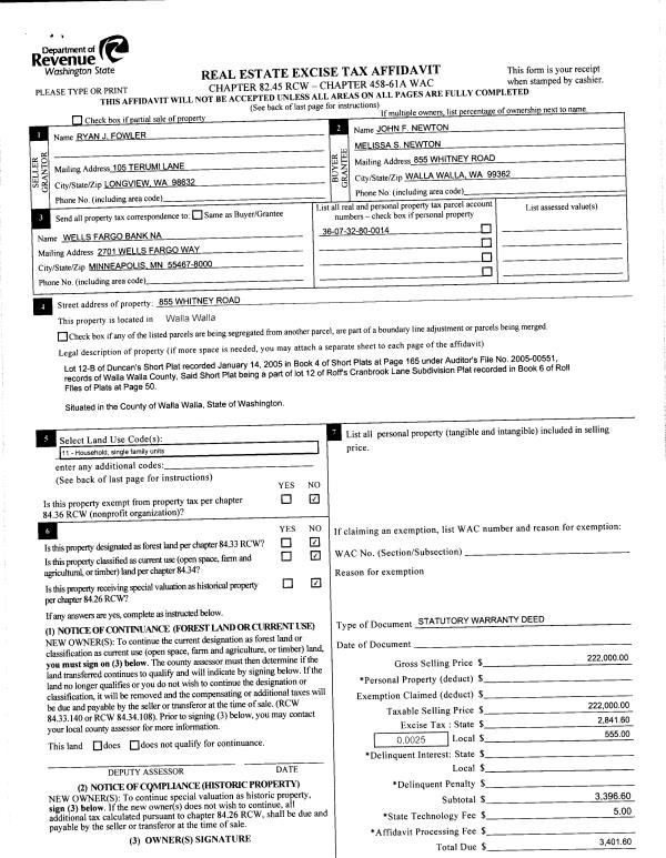
| 1 | 09/11/2015 | SWD | STATUTORY WARRANTY DEED | FOWLER RYAN J | NEWTON JOHN F & MELISSA S | | | $222,000.00 | 128799 | 2015-07954 |
| 2 | 12/07/2012 | QCD | QUIT CLAIM DEED | DUNCAN, WILLIAM H JR & DONNA | DUNCAN, WILLIAM H | | | $0.00 | 123116 | 2012-10882 |
| 3 | 08/22/2005 | WARRANTY D | WARRANTY DEED | GEMSTONE HOMES INC | FOWLER, RYAN J | | | $222,400.00 | 108298 | 2005-10406 |
| 4 | 03/31/2005 | WARRANTY D | WARRANTY DEED | SAENZ, ALEJANDRO | GEMSTONE HOMES INC | | | $45,000.00 | 107096 | 2005-03579 |
| 5 | 03/09/2005 | WARRANTY D | WARRANTY DEED | DUNCAN, WILLIAM H JR | SAENZ, ALEJANDRO | | | $29,000.00 | 106947 | 2005-02662 |
Payout Agreement
| No payout information available.. |