Property
Account |
| Property ID: | 14111 | Abbreviated Legal Description: | LENNONS & WILDWOOD TAX 4 BLK 2 |
| Parcel Number: | 360721630221 | Agent Code: | |
| Type: | Real | | |
| Tax Area: | 1 - OL-140-F | Land Use Code | 11 |
| Open Space: | N | DFL | N |
| Historic Property: | N | Remodel Property: | N |
| Multi-Family Redevelopment: | N | | |
| Township: | 7 | Section: | 21 |
| Range: | 36 |
Location |
| Address: | 1060 FRANKLAND ST WA 99362 | Mapsco: | |
| Neighborhood: | G-SFR | Map ID: | |
| Neighborhood CD: | 514011 |
Owner |
| Name: | HUFFAKER LE | Owner ID: | 72818 |
| Mailing Address: | 1060 FRANKLAND ST WALLA WALLA, WA 99362 | % Ownership: | 100.0000000000% |
| | | Exemptions: | |
Taxes and Assessment Details
Property Tax Information as of
04/19/2026
Click on "Statement Details" to expand or collapse a tax statement.
* Please enter a valid date ** Please enter a valid date *
Statement Details |
| | TOTAL: | $0.00 | $0.00 | $0.00 | $0.00 | $0.00 | $0.00 |
|
| | $0.00 | $0.00 | $0.00 | $0.00 | $0.00 | $0.00 |
Values
| (+) Improvement Homesite Value: | + | $0 | |
| (+) Improvement Non-Homesite Value: | + | $267,290 | |
| (+) Land Homesite Value: | + | $0 | |
| (+) Land Non-Homesite Value: | + | $40,240 | |
| (+) Curr Use (HS): | + | $0 | $0 |
| (+) Curr Use (NHS): | + | $0 | $0 |
| | | -------------------------- | |
| (=) Market Value: | = | $307,530 | |
| (–) Productivity Loss: | – | $0 | |
| | | -------------------------- | |
| (=) Subtotal: | = | $307,530 | |
| (+) Senior Appraised Value: | + | $0 | |
| (+) Non-Senior Appraised Value: | + | $307,530 | |
| | | -------------------------- | |
| (=) Total Appraised Value: | = | $307,530 | |
| (–) Senior Exemption Loss: | – | $0 | |
| (–) Exemption Loss: | – | $0 | |
| | | -------------------------- | |
| (=) Taxable Value: | = | $307,530 | |
Taxing Jurisdiction
| Owner: | HUFFAKER LE | | |
| % Ownership: | 100.0000000000% | | |
| Total Value: | $307,530 | | |
| Tax Area: | 1 - OL-140-F |
| CERFD | CURRENT EXPENSE REFUND 010 | 0.0000000000 | $307,530 | $307,530 | $0.00 | | |
| CURREXP | CURRENT EXPENSE 010 | 1.0175366760 | $307,530 | $307,530 | $312.92 | | |
| HUMNSERV | HUMAN SERVICES 119 | 0.0250000000 | $307,530 | $307,530 | $7.69 | | |
| SLDREL | SOLDIERS RELIEF 121 | 0.0155990005 | $307,530 | $307,530 | $4.80 | | |
| EMERGSER | EMS 147 | 0.3792580840 | $307,530 | $307,530 | $116.63 | | |
| EMSRFD | EMS REFUND 147 | 0.0000000000 | $307,530 | $307,530 | $0.00 | | |
| PORTRFD | PORT REFUND 640 | 0.0000000000 | $307,530 | $307,530 | $0.00 | | |
| PORTWWGEN | PORT OF WW 640 | 0.2460186015 | $307,530 | $307,530 | $75.66 | | |
| SD140BOND | SD #140 BOND 764 | 0.8342371393 | $307,530 | $307,530 | $256.55 | | |
| SD140GEN | SD #140 GENERAL 760 | 2.0646500647 | $307,530 | $307,530 | $634.94 | | |
| ST2 | STATE SCHOOL PART 2 600 | 0.8131451643 | $307,530 | $307,530 | $250.07 | | |
| STATESCHL | STATE SCHOOL 600 | 1.5158548041 | $307,530 | $307,530 | $466.17 | | |
| STREFUND | STATE REFUND LEVY 603 | 0.0000000000 | $307,530 | $307,530 | $0.00 | | |
| CWWBOND | C OF WW BOND 643 | 0.2760494372 | $307,530 | $307,530 | $84.89 | | |
| CWWGEN | CITY OF WW 631 | 1.6100204973 | $307,530 | $307,530 | $495.13 | | |
| CWWRFD | CITY OF WALLA WALLA REFUND 631 | 0.0000000000 | $307,530 | $307,530 | $0.00 | | |
| | Total Tax Rate: | 8.7973694689 | | | | | |
| | | | | Taxes w/Current Exemptions: | $2,705.45 | | |
| | | | | Taxes w/o Exemptions: | $2,705.45 | | |
Improvement / Building
| Improvement #1: | RESIDENTIAL | State Code: | 11 | 798.0 sqft | Value: | $267,290 |
| Exterior Wall: | SIDING | Heating/Cooling: | WARM & COOLED AIR | | Number of Bathrooms: | 1 | Number of Bedrooms: | 2 | | Plumbing: | 9 | Roof Covering: | COMP SHINGLE |
|
| | Type | Description | Class CD | Sub Class CD | Year Built | Area |
| | MA | Main Area | 1 | 30 | 1930 | 798.0 |
| | SI1 | SITE IMPROVEMENT | 1 | 30 | 1930 | 1.5 |
| | BASE | BASEMENT | 1 | 30 | 1930 | 876.0 |
| | BPF | BASEMENT -PARTITIONED FINISH | 1 | 30 | 1930 | 120.0 |
| | TOOL | TOOL SHED | 1 | 30 | 1930 | 120.0 |
| | PRC | PORCH W STEPS, ROOF,CEILED | 1 | 30 | 1930 | 78.0 |
| | CPC | COVERED CARPORT/PATIO | 1 | 30 | 1930 | 120.0 |
Sketch
Property Image
Land
| 1 | RES 1 | Converted: Residential | 0.1274 | 5550.00 | 0.00 | 0.00 | 1.00 | $40,240 | $0 |
Roll Value History
| 2026 | N/A | N/A | N/A | N/A | N/A |
| 2025 | $251,290 | $61,050 | $0 | $312,340 | $312,340 |
| 2024 | $251,290 | $61,050 | $0 | $312,340 | $312,340 |
| 2023 | $267,290 | $40,240 | $0 | $307,530 | $307,530 |
| 2022 | $242,990 | $40,240 | $0 | $283,230 | $283,230 |
| 2021 | $173,570 | $40,240 | $0 | $213,810 | $213,810 |
| 2020 | $119,700 | $40,240 | $0 | $159,940 | $159,940 |
| 2019 | $119,700 | $40,240 | $0 | $159,940 | $159,940 |
| 2018 | $114,000 | $40,240 | $0 | $154,240 | $154,240 |
| 2017 | $128,380 | $25,000 | $0 | $153,380 | $153,380 |
| 2016 | $116,710 | $25,000 | $0 | $141,710 | $141,710 |
| 2015 | $116,710 | $25,000 | $0 | $141,710 | $141,710 |
| 2014 | $106,100 | $25,000 | $0 | $131,100 | $131,100 |
| 2013 | $106,100 | $25,000 | $0 | $131,100 | $131,100 |
| 2012 | $119,200 | $25,000 | $0 | $0 | $0 |
| 2011 | $119,200 | $25,000 | $0 | $0 | $0 |
| 2010 | $106,100 | $25,000 | $0 | $0 | $0 |
| 2009 | $120,700 | $25,000 | $0 | $0 | $0 |
| 2008 | $104,500 | $22,200 | $0 | $0 | $0 |
| 2007 | $104,500 | $22,200 | $0 | $0 | $0 |
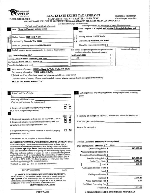
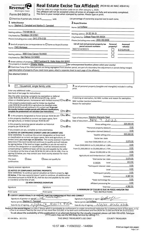
Deed and Sales History
| 1 | 11/09/2022 | SWD | STATUTORY WARRANTY DEED | CAMPBELL STEPHEN D & MARTHA O | HUFFAKER LE | | | $325,000.00 | 144994 | 2022-09036 |
| 2 | 01/22/2015 | SWD | STATUTORY WARRANTY DEED | FLEMMER NICOLE M | CAMPBELL STEPHEN D & MARTHA O | | | $145,000.00 | 127309 | 2015-00496 |
| 3 | 11/08/2004 | WARRANTY D | WARRANTY DEED | ANTHONY, MARY F | FLEMMER, NICOLE M | | | $130,900.00 | 106142 | 2004-12865 |
| 4 | 07/20/2000 | WARRANTY D | WARRANTY DEED | | | | | $77,750.00 | 95470 | 3000-006913 |
Payout Agreement
| No payout information available.. |