Property
Account |
| Property ID: | 14102 | Abbreviated Legal Description: | CHASE LOT 2 BLK 2 |
| Parcel Number: | 360729580202 | Agent Code: | |
| Type: | Real | | |
| Tax Area: | 1 - OL-140-F | Land Use Code | 11 |
| Open Space: | N | DFL | N |
| Historic Property: | N | Remodel Property: | N |
| Multi-Family Redevelopment: | N | | |
| Township: | 7 | Section: | 29 |
| Range: | 36 |
Location |
| Address: | 505 CHASE AVE WA 99362 | Mapsco: | |
| Neighborhood: | Fair Res | Map ID: | |
| Neighborhood CD: | 612011 |
Owner |
| Name: | TERRELL DARUS ANN | Owner ID: | 39545 |
| Mailing Address: | 511 CHASE AVE WALLA WALLA, WA 99362 | % Ownership: | 100.0000000000% |
| | | Exemptions: | |
Taxes and Assessment Details
Values
| (+) Improvement Homesite Value: | + | $0 | |
| (+) Improvement Non-Homesite Value: | + | $103,720 | |
| (+) Land Homesite Value: | + | $0 | |
| (+) Land Non-Homesite Value: | + | $60,000 | |
| (+) Curr Use (HS): | + | $0 | $0 |
| (+) Curr Use (NHS): | + | $0 | $0 |
| | | -------------------------- | |
| (=) Market Value: | = | $163,720 | |
| (–) Productivity Loss: | – | $0 | |
| | | -------------------------- | |
| (=) Subtotal: | = | $163,720 | |
| (+) Senior Appraised Value: | + | $0 | |
| (+) Non-Senior Appraised Value: | + | $163,720 | |
| | | -------------------------- | |
| (=) Total Appraised Value: | = | $163,720 | |
| (–) Senior Exemption Loss: | – | $0 | |
| (–) Exemption Loss: | – | $0 | |
| | | -------------------------- | |
| (=) Taxable Value: | = | $163,720 | |
Taxing Jurisdiction
| Owner: | TERRELL DARUS ANN | | |
| % Ownership: | 100.0000000000% | | |
| Total Value: | $163,720 | | |
| Tax Area: | 1 - OL-140-F |
| CERFD | CURRENT EXPENSE REFUND 010 | 0.0000000000 | $163,720 | $163,720 | $0.00 | | |
| CURREXP | CURRENT EXPENSE 010 | 1.0175366760 | $163,720 | $163,720 | $166.59 | | |
| HUMNSERV | HUMAN SERVICES 119 | 0.0250000000 | $163,720 | $163,720 | $4.09 | | |
| SLDREL | SOLDIERS RELIEF 121 | 0.0155990005 | $163,720 | $163,720 | $2.55 | | |
| EMERGSER | EMS 147 | 0.3792580840 | $163,720 | $163,720 | $62.09 | | |
| EMSRFD | EMS REFUND 147 | 0.0000000000 | $163,720 | $163,720 | $0.00 | | |
| PORTRFD | PORT REFUND 640 | 0.0000000000 | $163,720 | $163,720 | $0.00 | | |
| PORTWWGEN | PORT OF WW 640 | 0.2460186015 | $163,720 | $163,720 | $40.28 | | |
| SD140BOND | SD #140 BOND 764 | 0.8342371393 | $163,720 | $163,720 | $136.58 | | |
| SD140GEN | SD #140 GENERAL 760 | 2.0646500647 | $163,720 | $163,720 | $338.02 | | |
| ST2 | STATE SCHOOL PART 2 600 | 0.8131451643 | $163,720 | $163,720 | $133.13 | | |
| STATESCHL | STATE SCHOOL 600 | 1.5158548041 | $163,720 | $163,720 | $248.18 | | |
| STREFUND | STATE REFUND LEVY 603 | 0.0000000000 | $163,720 | $163,720 | $0.00 | | |
| CWWBOND | C OF WW BOND 643 | 0.2760494372 | $163,720 | $163,720 | $45.19 | | |
| CWWGEN | CITY OF WW 631 | 1.6100204973 | $163,720 | $163,720 | $263.59 | | |
| CWWRFD | CITY OF WALLA WALLA REFUND 631 | 0.0000000000 | $163,720 | $163,720 | $0.00 | | |
| | Total Tax Rate: | 8.7973694689 | | | | | |
| | | | | Taxes w/Current Exemptions: | $1,440.29 | | |
| | | | | Taxes w/o Exemptions: | $1,440.29 | | |
Improvement / Building
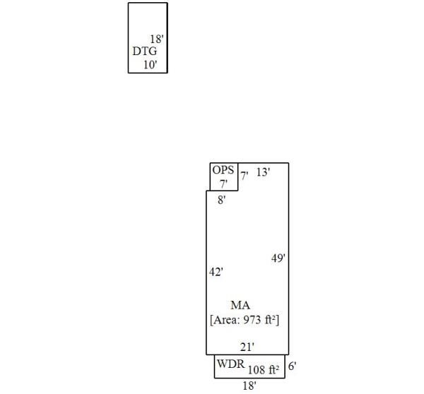
| Improvement #1: | RESIDENTIAL | State Code: | 11 | 973.0 sqft | Value: | $103,720 |
| Exterior Wall: | SIDING | Foundation: | POST & PIER | | Heating/Cooling: | BASEBOARD ELECTRIC | Number of Bathrooms: | 1 | | Number of Bedrooms: | 3 | Plumbing: | 7 | | Roof Covering: | COMP SHINGLE |   |   |
|
| | Type | Description | Class CD | Sub Class CD | Year Built | Area |
| | MA | Main Area | 1 | 20 | 1900 | 973.0 |
| | SI1 | SITE IMPROVEMENT | 1 | 20 | 1900 | 1.0 |
| | DTG | Detached Garage | 1 | 20 | 1900 | 180.0 |
| | WDR | WOOD DECK W/ROOF | 1 | 20 | 1900 | 108.0 |
Sketch
Property Image
Land
| 1 | RES 1 | Converted: Residential | 0.1722 | 7500.00 | 0.00 | 0.00 | 1.00 | $60,000 | $0 |
Roll Value History
| 2026 | N/A | N/A | N/A | N/A | N/A |
| 2025 | $88,100 | $75,000 | $0 | $163,100 | $163,100 |
| 2024 | $103,720 | $60,000 | $0 | $163,720 | $163,720 |
| 2023 | $103,720 | $60,000 | $0 | $163,720 | $163,720 |
| 2022 | $103,720 | $46,880 | $0 | $150,600 | $150,600 |
| 2021 | $69,140 | $46,880 | $0 | $116,020 | $116,020 |
| 2020 | $57,620 | $46,880 | $0 | $104,500 | $104,500 |
| 2019 | $57,620 | $46,880 | $0 | $104,500 | $104,500 |
| 2018 | $59,510 | $45,000 | $0 | $104,510 | $104,510 |
| 2017 | $42,500 | $45,000 | $0 | $87,500 | $87,500 |
| 2016 | $38,640 | $45,000 | $0 | $83,640 | $83,640 |
| 2015 | $32,200 | $45,000 | $0 | $77,200 | $77,200 |
| 2014 | $32,200 | $45,000 | $0 | $77,200 | $77,200 |
| 2013 | $32,200 | $45,000 | $0 | $77,200 | $77,200 |
| 2012 | $32,200 | $45,000 | $0 | $0 | $0 |
| 2011 | $32,200 | $45,000 | $0 | $0 | $0 |
| 2010 | $32,200 | $45,000 | $0 | $0 | $0 |
| 2009 | $62,300 | $45,000 | $0 | $0 | $0 |
| 2008 | $62,300 | $45,000 | $0 | $0 | $0 |
| 2007 | $41,300 | $15,000 | $0 | $0 | $0 |
Deed and Sales History
| 1 | 12/07/2004 | WARRANTY D | WARRANTY DEED | HENRY, HARVEY R | TERRELL, DARUS ANN | | | $62,750.00 | 106351 | 2004-14034 |
| 2 | 05/23/1991 | WARRANTY D | WARRANTY DEED | | | | | $4,000.00 | 0 | 1899-103298 |
Payout Agreement
| No payout information available.. |