Property
Account |
| Property ID: | 14098 | Abbreviated Legal Description: | SENIOR SEG (360728120110) 28-7-36 PARCEL A OF SHORT PLAT (NLY 201' OF TAX 8 WITHINSW1/4NW1/4NE1/4) |
| Parcel Number: | 360728120106 | Agent Code: | |
| Type: | Real | | |
| Tax Area: | 1 - OL-140-F | Land Use Code | 11 |
| Open Space: | N | DFL | N |
| Historic Property: | N | Remodel Property: | N |
| Multi-Family Redevelopment: | N | | |
| Township: | 7 | Section: | 28 |
| Range: | 36 |
Location |
| Address: | 948 PLEASANT ST WA 99362 | Mapsco: | |
| Neighborhood: | G Res | Map ID: | |
| Neighborhood CD: | 614011 |
Owner |
| Name: | HONEYCUTT JOHN F | Owner ID: | 60032 |
| Mailing Address: | 948 PLEASANT ST WALLA WALLA, WA 99362 | % Ownership: | 100.0000000000% |
| | | Exemptions: | |
Taxes and Assessment Details
Values
| (+) Improvement Homesite Value: | + | $444,183 | |
| (+) Improvement Non-Homesite Value: | + | $68,192 | |
| (+) Land Homesite Value: | + | $150,000 | |
| (+) Land Non-Homesite Value: | + | $1,000 | |
| (+) Curr Use (HS): | + | $0 | $0 |
| (+) Curr Use (NHS): | + | $0 | $0 |
| | | -------------------------- | |
| (=) Market Value: | = | $663,375 | |
| (–) Productivity Loss: | – | $0 | |
| | | -------------------------- | |
| (=) Subtotal: | = | $663,375 | |
| (+) Senior Appraised Value: | + | $0 | |
| (+) Non-Senior Appraised Value: | + | $663,375 | |
| | | -------------------------- | |
| (=) Total Appraised Value: | = | $663,375 | |
| (–) Senior Exemption Loss: | – | $0 | |
| (–) Exemption Loss: | – | $0 | |
| | | -------------------------- | |
| (=) Taxable Value: | = | $663,375 | |
Taxing Jurisdiction
| Owner: | HONEYCUTT JOHN F | | |
| % Ownership: | 100.0000000000% | | |
| Total Value: | $663,375 | | |
| Tax Area: | 1 - OL-140-F |
| CERFD | CURRENT EXPENSE REFUND 010 | 0.0000000000 | $663,375 | $663,375 | $0.00 | | |
| CURREXP | CURRENT EXPENSE 010 | 1.0175366760 | $663,375 | $663,375 | $675.01 | | |
| HUMNSERV | HUMAN SERVICES 119 | 0.0250000000 | $663,375 | $663,375 | $16.58 | | |
| SLDREL | SOLDIERS RELIEF 121 | 0.0155990005 | $663,375 | $663,375 | $10.35 | | |
| EMERGSER | EMS 147 | 0.3792580840 | $663,375 | $663,375 | $251.59 | | |
| EMSRFD | EMS REFUND 147 | 0.0000000000 | $663,375 | $663,375 | $0.00 | | |
| PORTRFD | PORT REFUND 640 | 0.0000000000 | $663,375 | $663,375 | $0.00 | | |
| PORTWWGEN | PORT OF WW 640 | 0.2460186015 | $663,375 | $663,375 | $163.20 | | |
| SD140BOND | SD #140 BOND 764 | 0.8342371393 | $663,375 | $663,375 | $553.41 | | |
| SD140GEN | SD #140 GENERAL 760 | 2.0646500647 | $663,375 | $663,375 | $1,369.64 | | |
| ST2 | STATE SCHOOL PART 2 600 | 0.8131451643 | $663,375 | $663,375 | $539.42 | | |
| STATESCHL | STATE SCHOOL 600 | 1.5158548041 | $663,375 | $663,375 | $1,005.58 | | |
| STREFUND | STATE REFUND LEVY 603 | 0.0000000000 | $663,375 | $663,375 | $0.00 | | |
| CWWBOND | C OF WW BOND 643 | 0.2760494372 | $663,375 | $663,375 | $183.12 | | |
| CWWGEN | CITY OF WW 631 | 1.6100204973 | $663,375 | $663,375 | $1,068.05 | | |
| CWWRFD | CITY OF WALLA WALLA REFUND 631 | 0.0000000000 | $663,375 | $663,375 | $0.00 | | |
| | Total Tax Rate: | 8.7973694689 | | | | | |
| | | | | Taxes w/Current Exemptions: | $5,835.95 | | |
| | | | | Taxes w/o Exemptions: | $5,835.95 | | |
Improvement / Building
| Improvement #1: | RESIDENTIAL | State Code: | 11 | 2454.0 sqft | Value: | $444,183 |
| Exterior Wall: | SIDING | Heating/Cooling: | WARM & COOLED AIR | | Number of Bathrooms: | 2 | Number of Bedrooms: | 5 | | Plumbing: | 9 | Roof Covering: | COMP SHINGLE |
|
| | Type | Description | Class CD | Sub Class CD | Year Built | Area |
| | MA | Main Area | 4 | 35 | 1919 | 2454.0 |
| | UPFL | Upper Floor (included in main area) | 4 | 35 | 1919 | 840.0 |
| | SI1 | SITE IMPROVEMENT | 4 | 35 | 1919 | 3.0 |
| | BASE | BASEMENT | 4 | 35 | 1919 | 1360.0 |
| | D2F | Double 2 Story Fireplace | 4 | 35 | 1919 | 1.0 |
| | OPS | OPEN PORCH W/STEPS | 4 | 35 | 1919 | 20.0 |
| | ATG | Attached Garage | 4 | 35 | 1919 | 400.0 |
| | WOD | Wood Deck | 4 | 35 | 1919 | 770.0 |
| Improvement #2: | RESIDENTIAL | State Code: | 11 | 0.0 sqft | Value: | $68,192 |
| | Type | Description | Class CD | Sub Class CD | Year Built | Area |
| | BARN | BARN-AVE | 4 | 35 | 1919 | 1340.0 |
| | LNTD | LEAN TO DIRT FLOOR | 4 | 35 | 1919 | 360.0 |
| | TOOL | TOOL SHED | 4 | 35 | 1919 | 150.0 |
| | TOOL | TOOL SHED | 4 | 35 | 1919 | 180.0 |
Sketch
Property Image
Land
| 1 | RES 1 | Converted: Residential | 1.0000 | 43560.00 | 0.00 | 0.00 | 1.00 | $135,440 | $0 |
| 2 | RES 1 | Converted: Residential | 0.1300 | 5662.80 | 0.00 | 0.00 | 1.00 | $1,000 | $0 |
Roll Value History
| 2026 | N/A | N/A | N/A | N/A | N/A |
| 2025 | $722,500 | $173,320 | $0 | $895,820 | $895,820 |
| 2024 | $697,110 | $153,070 | $0 | $850,180 | $850,180 |
| 2023 | $512,375 | $151,000 | $0 | $663,375 | $663,375 |
| 2022 | $444,180 | $120,000 | $0 | $564,180 | $564,180 |
| 2021 | $341,680 | $120,000 | $0 | $461,680 | $461,680 |
| 2020 | $262,830 | $120,000 | $0 | $382,830 | $382,830 |
| 2019 | $262,830 | $120,000 | $0 | $382,830 | $286,110 |
| 2018 | $211,110 | $75,000 | $0 | $286,110 | $286,110 |
| 2017 | $211,110 | $75,000 | $0 | $286,110 | $286,110 |
| 2016 | $242,660 | $76,000 | $0 | $318,660 | $318,660 |
| 2015 | $242,660 | $76,000 | $0 | $318,660 | $318,660 |
| 2014 | $231,100 | $76,000 | $0 | $307,100 | $307,100 |
| 2013 | $231,100 | $76,000 | $0 | $307,100 | $307,100 |
| 2012 | $217,900 | $76,000 | $0 | $0 | $0 |
| 2011 | $191,200 | $76,000 | $0 | $0 | $0 |
| 2010 | $191,200 | $76,000 | $0 | $0 | $0 |
| 2009 | $220,900 | $76,000 | $0 | $0 | $0 |
| 2008 | $220,900 | $76,000 | $0 | $0 | $0 |
| 2007 | $215,700 | $44,800 | $0 | $0 | $0 |
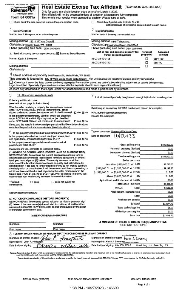
Deed and Sales History
| 1 | 10/26/2023 | SWD | STATUTORY WARRANTY DEED | HONEYCUTT JOHN F | SWEENEY KEVIN J | | | $849,000.00 | 146699 | 2023-06324 |
| 2 | 11/16/2016 | QCD | QUIT CLAIM DEED | HONEYCUTT JOHN F & BARBARA L | HONEYCUTT JOHN F | | | $0.00 | 131443 | 2016-09503 |
| 3 | 08/03/2005 | WARRANTY D | WARRANTY DEED | HOLLOW, DAVID | HONEYCUTT, JOHN F & BARBARA L | | | $295,000.00 | 108138 | 2005-09572 |
Payout Agreement
| No payout information available.. |