Property
Account |
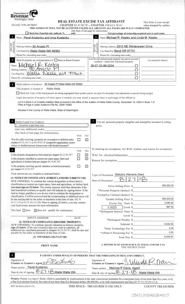
| Property ID: | 14090 | Abbreviated Legal Description: | COSTELLO ADDITION LOT 4 BLOCK 2 |
| Parcel Number: | 360733960204 | Agent Code: | |
| Type: | Real | | |
| Tax Area: | 1 - OL-140-F | Land Use Code | 11 |
| Open Space: | N | DFL | N |
| Historic Property: | N | Remodel Property: | N |
| Multi-Family Redevelopment: | N | | |
| Township: | 7 | Section: | 33 |
| Range: | 36 |
Location |
| Address: | 90 ANGELO PL WA 99362 | Mapsco: | |
| Neighborhood: | VG Res Rural/City Inf | Map ID: | |
| Neighborhood CD: | 615012 |
Owner |
| Name: | KEELEY MICHAEL R & LINDA M | Owner ID: | 63837 |
| Mailing Address: | 90 ANGELO PLACE WALLA WALLA, WA 99362 | % Ownership: | 100.0000000000% |
| | | Exemptions: | |
Taxes and Assessment Details
Property Tax Information as of
04/19/2026
Click on "Statement Details" to expand or collapse a tax statement.
* Please enter a valid date ** Please enter a valid date *
Statement Details |
| | TOTAL: | $0.00 | $0.00 | $0.00 | $0.00 | $0.00 | $0.00 |
|
| | $0.00 | $0.00 | $0.00 | $0.00 | $0.00 | $0.00 |
Values
| (+) Improvement Homesite Value: | + | $0 | |
| (+) Improvement Non-Homesite Value: | + | $398,830 | |
| (+) Land Homesite Value: | + | $0 | |
| (+) Land Non-Homesite Value: | + | $120,000 | |
| (+) Curr Use (HS): | + | $0 | $0 |
| (+) Curr Use (NHS): | + | $0 | $0 |
| | | -------------------------- | |
| (=) Market Value: | = | $518,830 | |
| (–) Productivity Loss: | – | $0 | |
| | | -------------------------- | |
| (=) Subtotal: | = | $518,830 | |
| (+) Senior Appraised Value: | + | $0 | |
| (+) Non-Senior Appraised Value: | + | $518,830 | |
| | | -------------------------- | |
| (=) Total Appraised Value: | = | $518,830 | |
| (–) Senior Exemption Loss: | – | $0 | |
| (–) Exemption Loss: | – | $0 | |
| | | -------------------------- | |
| (=) Taxable Value: | = | $518,830 | |
Taxing Jurisdiction
| Owner: | KEELEY MICHAEL R & LINDA M | | |
| % Ownership: | 100.0000000000% | | |
| Total Value: | $518,830 | | |
| Tax Area: | 1 - OL-140-F |
| CERFD | CURRENT EXPENSE REFUND 010 | 0.0000000000 | $518,830 | $518,830 | $0.00 | | |
| CURREXP | CURRENT EXPENSE 010 | 1.0175366760 | $518,830 | $518,830 | $527.93 | | |
| HUMNSERV | HUMAN SERVICES 119 | 0.0250000000 | $518,830 | $518,830 | $12.97 | | |
| SLDREL | SOLDIERS RELIEF 121 | 0.0155990005 | $518,830 | $518,830 | $8.09 | | |
| EMERGSER | EMS 147 | 0.3792580840 | $518,830 | $518,830 | $196.77 | | |
| EMSRFD | EMS REFUND 147 | 0.0000000000 | $518,830 | $518,830 | $0.00 | | |
| PORTRFD | PORT REFUND 640 | 0.0000000000 | $518,830 | $518,830 | $0.00 | | |
| PORTWWGEN | PORT OF WW 640 | 0.2460186015 | $518,830 | $518,830 | $127.64 | | |
| SD140BOND | SD #140 BOND 764 | 0.8342371393 | $518,830 | $518,830 | $432.83 | | |
| SD140GEN | SD #140 GENERAL 760 | 2.0646500647 | $518,830 | $518,830 | $1,071.20 | | |
| ST2 | STATE SCHOOL PART 2 600 | 0.8131451643 | $518,830 | $518,830 | $421.88 | | |
| STATESCHL | STATE SCHOOL 600 | 1.5158548041 | $518,830 | $518,830 | $786.47 | | |
| STREFUND | STATE REFUND LEVY 603 | 0.0000000000 | $518,830 | $518,830 | $0.00 | | |
| CWWBOND | C OF WW BOND 643 | 0.2760494372 | $518,830 | $518,830 | $143.22 | | |
| CWWGEN | CITY OF WW 631 | 1.6100204973 | $518,830 | $518,830 | $835.33 | | |
| CWWRFD | CITY OF WALLA WALLA REFUND 631 | 0.0000000000 | $518,830 | $518,830 | $0.00 | | |
| | Total Tax Rate: | 8.7973694689 | | | | | |
| | | | | Taxes w/Current Exemptions: | $4,564.33 | | |
| | | | | Taxes w/o Exemptions: | $4,564.33 | | |
Improvement / Building
| Improvement #1: | RESIDENTIAL | State Code: | 11 | 1947.0 sqft | Value: | $398,830 |
| Exterior Wall: | PLYWOOD | Heating/Cooling: | WARM & COOLED AIR | | Number of Bathrooms: | 2.5 | Number of Bedrooms: | 3 | | Plumbing: | 14 | Roof Covering: | COMP SHINGLE |
|
| | Type | Description | Class CD | Sub Class CD | Year Built | Area |
| | MA | Main Area | 1 | 40 | 2007 | 1947.0 |
| | SI1 | SITE IMPROVEMENT | 1 | 40 | 2007 | 4.5 |
| | ATG | Attached Garage | 1 | 40 | 2007 | 575.0 |
| | CPC | COVERED CARPORT/PATIO | 1 | 40 | 2007 | 160.0 |
| | RPC | OPEN PORCH W/ROOF , CEILED | 1 | 40 | 2007 | 149.0 |
| | GFP | GAS FIREPLACE | 1 | 40 | 2007 | 1.0 |
Sketch
Property Image
Land
| 1 | RES 1 | Converted: Residential | 0.2371 | 10327.00 | 0.00 | 0.00 | 1.00 | $120,000 | $0 |
Roll Value History
| 2026 | N/A | N/A | N/A | N/A | N/A |
| 2025 | $452,040 | $160,000 | $0 | $612,040 | $612,040 |
| 2024 | $398,830 | $120,000 | $0 | $518,830 | $518,830 |
| 2023 | $398,830 | $120,000 | $0 | $518,830 | $518,830 |
| 2022 | $398,830 | $95,000 | $0 | $493,830 | $493,830 |
| 2021 | $379,830 | $95,000 | $0 | $474,830 | $474,830 |
| 2020 | $292,180 | $95,000 | $0 | $387,180 | $387,180 |
| 2019 | $292,180 | $95,000 | $0 | $387,180 | $387,180 |
| 2018 | $237,070 | $65,000 | $0 | $302,070 | $302,070 |
| 2017 | $230,160 | $65,000 | $0 | $295,160 | $295,160 |
| 2016 | $219,200 | $65,000 | $0 | $284,200 | $284,200 |
| 2015 | $219,200 | $65,000 | $0 | $284,200 | $284,200 |
| 2014 | $219,200 | $65,000 | $0 | $284,200 | $284,200 |
| 2013 | $219,200 | $65,000 | $0 | $284,200 | $284,200 |
| 2012 | $219,200 | $65,000 | $0 | $0 | $0 |
| 2011 | $219,200 | $65,000 | $0 | $0 | $0 |
| 2010 | $219,200 | $65,000 | $0 | $0 | $0 |
| 2009 | $250,800 | $65,000 | $0 | $0 | $0 |
| 2008 | $49,800 | $65,000 | $0 | $0 | $0 |
| 2007 | $0 | $3,800 | $0 | $0 | $0 |
Deed and Sales History
| 1 | 08/28/2018 | SWD | STATUTORY WARRANTY DEED | KOSTENKO PAVEL & IRINA | KEELEY MICHAEL R & LINDA M | | | $395,000.00 | 135431 | 2018-07136 |
| 2 | 04/20/2007 | WARRANTY D | WARRANTY DEED | RALPH, DOUGLAS L & RACQUEL K | KOSTENKO, PAVEL & IRINA | | | $80,000.00 | 112665 | 2007-04453 |
| 3 | 09/27/2005 | WARRANTY D | WARRANTY DEED | ASHMORE, ALAN H & SHERI R | RALPH, DOUGLAS L & RACQUEL K | | | $69,500.00 | 108565 | 2005-12001 |
Payout Agreement
| No payout information available.. |