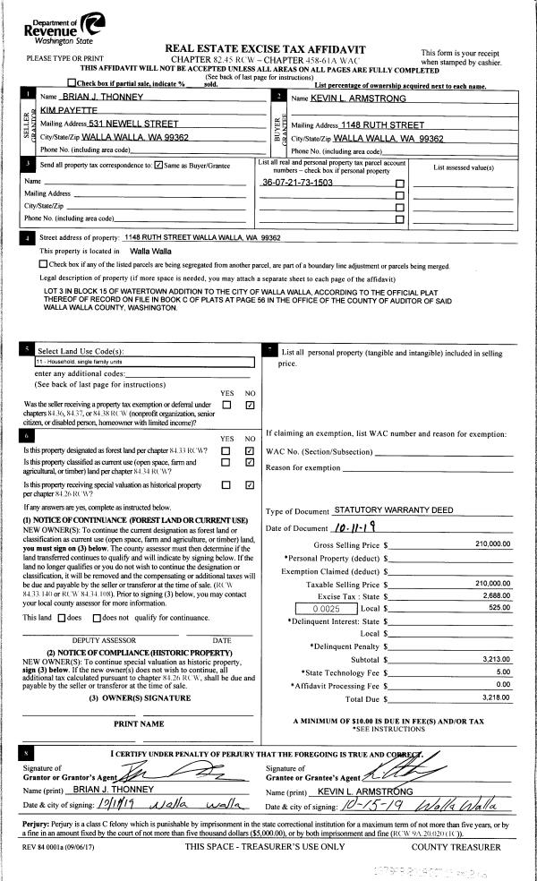
Property
Account |
| Property ID: | 14067 | Abbreviated Legal Description: | WATERTOWN LT 3 BLK 15 |
| Parcel Number: | 360721731503 | Agent Code: | |
| Type: | Real | | |
| Tax Area: | 1 - OL-140-F | Land Use Code | 11 |
| Open Space: | N | DFL | N |
| Historic Property: | N | Remodel Property: | N |
| Multi-Family Redevelopment: | N | | |
| Township: | 7 | Section: | 21 |
| Range: | 36 |
Location |
| Address: | 1148 RUTH ST WA 99362 | Mapsco: | |
| Neighborhood: | A-SFR | Map ID: | |
| Neighborhood CD: | 513011 |
Owner |
| Name: | ARMSTRONG KEVIN L | Owner ID: | 66212 |
| Mailing Address: | 1148 RUTH ST WALLA WALLA, WA 99362 | % Ownership: | 100.0000000000% |
| | | Exemptions: | |
Taxes and Assessment Details
Values
| (+) Improvement Homesite Value: | + | $0 | |
| (+) Improvement Non-Homesite Value: | + | $196,870 | |
| (+) Land Homesite Value: | + | $0 | |
| (+) Land Non-Homesite Value: | + | $62,250 | |
| (+) Curr Use (HS): | + | $0 | $0 |
| (+) Curr Use (NHS): | + | $0 | $0 |
| | | -------------------------- | |
| (=) Market Value: | = | $259,120 | |
| (–) Productivity Loss: | – | $0 | |
| | | -------------------------- | |
| (=) Subtotal: | = | $259,120 | |
| (+) Senior Appraised Value: | + | $0 | |
| (+) Non-Senior Appraised Value: | + | $259,120 | |
| | | -------------------------- | |
| (=) Total Appraised Value: | = | $259,120 | |
| (–) Senior Exemption Loss: | – | $0 | |
| (–) Exemption Loss: | – | $0 | |
| | | -------------------------- | |
| (=) Taxable Value: | = | $259,120 | |
Taxing Jurisdiction
| Owner: | ARMSTRONG KEVIN L | | |
| % Ownership: | 100.0000000000% | | |
| Total Value: | $259,120 | | |
| Tax Area: | 1 - OL-140-F |
| CERFD | CURRENT EXPENSE REFUND 010 | 0.0000000000 | $259,120 | $259,120 | $0.00 | | |
| CURREXP | CURRENT EXPENSE 010 | 1.0175366760 | $259,120 | $259,120 | $263.66 | | |
| HUMNSERV | HUMAN SERVICES 119 | 0.0250000000 | $259,120 | $259,120 | $6.48 | | |
| SLDREL | SOLDIERS RELIEF 121 | 0.0155990005 | $259,120 | $259,120 | $4.04 | | |
| EMERGSER | EMS 147 | 0.3792580840 | $259,120 | $259,120 | $98.27 | | |
| EMSRFD | EMS REFUND 147 | 0.0000000000 | $259,120 | $259,120 | $0.00 | | |
| PORTRFD | PORT REFUND 640 | 0.0000000000 | $259,120 | $259,120 | $0.00 | | |
| PORTWWGEN | PORT OF WW 640 | 0.2460186015 | $259,120 | $259,120 | $63.75 | | |
| SD140BOND | SD #140 BOND 764 | 0.8342371393 | $259,120 | $259,120 | $216.17 | | |
| SD140GEN | SD #140 GENERAL 760 | 2.0646500647 | $259,120 | $259,120 | $534.99 | | |
| ST2 | STATE SCHOOL PART 2 600 | 0.8131451643 | $259,120 | $259,120 | $210.70 | | |
| STATESCHL | STATE SCHOOL 600 | 1.5158548041 | $259,120 | $259,120 | $392.79 | | |
| STREFUND | STATE REFUND LEVY 603 | 0.0000000000 | $259,120 | $259,120 | $0.00 | | |
| CWWBOND | C OF WW BOND 643 | 0.2760494372 | $259,120 | $259,120 | $71.53 | | |
| CWWGEN | CITY OF WW 631 | 1.6100204973 | $259,120 | $259,120 | $417.19 | | |
| CWWRFD | CITY OF WALLA WALLA REFUND 631 | 0.0000000000 | $259,120 | $259,120 | $0.00 | | |
| | Total Tax Rate: | 8.7973694689 | | | | | |
| | | | | Taxes w/Current Exemptions: | $2,279.57 | | |
| | | | | Taxes w/o Exemptions: | $2,279.57 | | |
Improvement / Building
| Improvement #1: | RESIDENTIAL | State Code: | 11 | 1060.0 sqft | Value: | $196,870 |
| Exterior Wall: | SIDING | Heating/Cooling: | WARM & COOLED AIR | | Number of Bathrooms: | 1 | Number of Bedrooms: | 3 | | Plumbing: | 6 | Roof Covering: | COMP SHINGLE |
|
| | Type | Description | Class CD | Sub Class CD | Year Built | Area |
| | MA | Main Area | 1 | 30 | 1911 | 1060.0 |
| | SI1 | SITE IMPROVEMENT | 1 | 30 | 1911 | 1.0 |
| | BASE | BASEMENT | 1 | 30 | 1911 | 988.0 |
| | OPS | OPEN PORCH W/STEPS | 1 | 30 | 1911 | 48.0 |
| | GSTO | GARAGE STORAGE-NO VALUE | 1 | 30 | 1911 | 216.0 |
Sketch
Property Image
Land
| 1 | RES 1 | Converted: Residential | 0.2287 | 9960.00 | 0.00 | 0.00 | 1.00 | $62,250 | $0 |
Roll Value History
| 2026 | N/A | N/A | N/A | N/A | N/A |
| 2025 | $202,500 | $99,600 | $0 | $302,100 | $302,100 |
| 2024 | $192,860 | $99,600 | $0 | $292,460 | $292,460 |
| 2023 | $196,870 | $62,250 | $0 | $259,120 | $259,120 |
| 2022 | $178,980 | $62,250 | $0 | $241,230 | $241,230 |
| 2021 | $149,150 | $62,250 | $0 | $211,400 | $211,400 |
| 2020 | $96,220 | $62,250 | $0 | $158,470 | $158,470 |
| 2019 | $96,220 | $62,250 | $0 | $158,470 | $158,470 |
| 2018 | $120,280 | $62,250 | $0 | $182,530 | $182,530 |
| 2017 | $118,640 | $39,800 | $0 | $158,440 | $158,440 |
| 2016 | $112,990 | $39,800 | $0 | $152,790 | $152,790 |
| 2015 | $112,990 | $39,800 | $0 | $152,790 | $152,790 |
| 2014 | $105,600 | $39,800 | $0 | $145,400 | $145,400 |
| 2013 | $105,600 | $39,800 | $0 | $145,400 | $145,400 |
| 2012 | $105,600 | $39,800 | $0 | $0 | $0 |
| 2011 | $121,800 | $39,800 | $0 | $0 | $0 |
| 2010 | $100,700 | $39,800 | $0 | $0 | $0 |
| 2009 | $116,300 | $39,800 | $0 | $0 | $0 |
| 2008 | $80,300 | $39,800 | $0 | $0 | $0 |
| 2007 | $80,300 | $39,800 | $0 | $0 | $0 |
Deed and Sales History
| 1 | 10/15/2019 | QCD | QUIT CLAIM DEED | ARMSTRONG AMY M | ARMSTRONG KEVIN L | | | | 137869 | 2019-08271 |
| 2 | 10/15/2019 | SWD | STATUTORY WARRANTY DEED | THONNEY BRIAN J & KIM PAYETTE | ARMSTRONG KEVIN L | | | $210,000.00 | 137868 | 2019-08270 |
| 3 | 01/23/2019 | SWD | STATUTORY WARRANTY DEED | STURGILL DENNIS L & ELIZABETH | THONNEY BRIAN J & KIM PAYETTE | | | $137,500.00 | 136283 | 2019-00465 |
| 4 | 11/10/2004 | WARRANTY D | WARRANTY DEED | PEERY, STEVEN W & SANDRA K | STURGILL, DENNIS L & ELIZABETH | | | $120,000.00 | 106166 | 2004-12990 |
| 5 | 10/01/2002 | WARRANTY D | WARRANTY DEED | PEERY, WENDELL & DOLORES | PEERY, STEVEN W & SANDRA K | | | | 100481 | 2002-11018 |
| 6 | 06/10/1983 | WARRANTY D | WARRANTY DEED | | | | | $40,000.00 | 0 | 1388-304047 |
Payout Agreement
| No payout information available.. |