Property
Account |
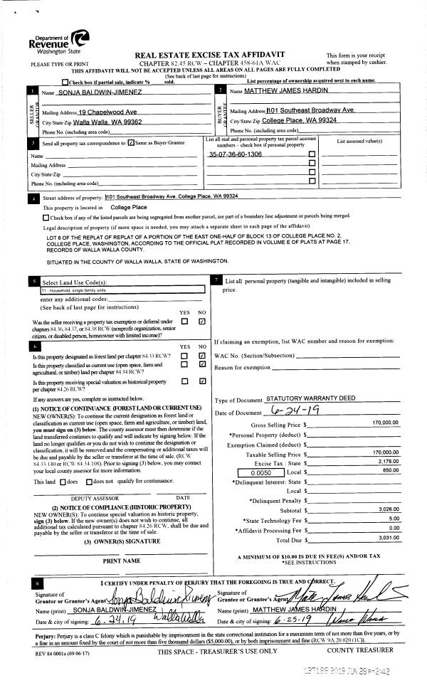
| Property ID: | 14066 | Abbreviated Legal Description: | CP #2 REPLAT OF BLK 13 LOT 6 |
| Parcel Number: | 350736601306 | Agent Code: | |
| Type: | Real | | |
| Tax Area: | 75 - CP 250 | Land Use Code | 11 |
| Open Space: | N | DFL | N |
| Historic Property: | N | Remodel Property: | N |
| Multi-Family Redevelopment: | N | | |
| Township: | 7 | Section: | 36 |
| Range: | 35 |
Location |
| Address: | 1101 SE BROADWAY AVE WA 99324 | Mapsco: | |
| Neighborhood: | A SFR | Map ID: | |
| Neighborhood CD: | 113011 |
Owner |
| Name: | HARDIN MATHEW JAMES | Owner ID: | 65510 |
| Mailing Address: | 1452 FRANCIS AVE WALLA WALLA, WA 99362 | % Ownership: | 100.0000000000% |
| | | Exemptions: | |
Taxes and Assessment Details
Property Tax Information as of
02/21/2026
Click on "Statement Details" to expand or collapse a tax statement.
* Please enter a valid date ** Please enter a valid date *
Statement Details |
| | TOTAL: | $0.00 | $0.00 | $0.00 | $0.00 | $0.00 | $0.00 |
|
| | $0.00 | $0.00 | $0.00 | $0.00 | $0.00 | $0.00 |
Values
| (+) Improvement Homesite Value: | + | $0 | |
| (+) Improvement Non-Homesite Value: | + | $175,590 | |
| (+) Land Homesite Value: | + | $0 | |
| (+) Land Non-Homesite Value: | + | $40,370 | |
| (+) Curr Use (HS): | + | $0 | $0 |
| (+) Curr Use (NHS): | + | $0 | $0 |
| | | -------------------------- | |
| (=) Market Value: | = | $215,960 | |
| (–) Productivity Loss: | – | $0 | |
| | | -------------------------- | |
| (=) Subtotal: | = | $215,960 | |
| (+) Senior Appraised Value: | + | $0 | |
| (+) Non-Senior Appraised Value: | + | $215,960 | |
| | | -------------------------- | |
| (=) Total Appraised Value: | = | $215,960 | |
| (–) Senior Exemption Loss: | – | $0 | |
| (–) Exemption Loss: | – | $0 | |
| | | -------------------------- | |
| (=) Taxable Value: | = | $215,960 | |
Taxing Jurisdiction
| Owner: | HARDIN MATHEW JAMES | | |
| % Ownership: | 100.0000000000% | | |
| Total Value: | $215,960 | | |
| Tax Area: | 75 - CP 250 |
| CERFD | CURRENT EXPENSE REFUND 010 | 0.0000000000 | $215,960 | $215,960 | $0.00 | | |
| CURREXP | CURRENT EXPENSE 010 | 1.0175366760 | $215,960 | $215,960 | $219.75 | | |
| HUMNSERV | HUMAN SERVICES 119 | 0.0250000000 | $215,960 | $215,960 | $5.40 | | |
| SLDREL | SOLDIERS RELIEF 121 | 0.0155990005 | $215,960 | $215,960 | $3.37 | | |
| COLLPLBOND | C OF CP BOND 644 | 0.4374241808 | $215,960 | $215,960 | $94.47 | | |
| COLLPLGEN | CITY OF CP 632 | 1.4453819216 | $215,960 | $215,960 | $312.14 | | |
| EMERGSER | EMS 147 | 0.3792580840 | $215,960 | $215,960 | $81.90 | | |
| EMSRFD | EMS REFUND 147 | 0.0000000000 | $215,960 | $215,960 | $0.00 | | |
| RURALLIB | RURAL LIBRARY 623 | 0.3710609029 | $215,960 | $215,960 | $80.13 | | |
| PORTRFD | PORT REFUND 640 | 0.0000000000 | $215,960 | $215,960 | $0.00 | | |
| PORTWWGEN | PORT OF WW 640 | 0.2460186015 | $215,960 | $215,960 | $53.13 | | |
| SD250BOND | SD #250 BOND 773 | 1.4560608159 | $215,960 | $215,960 | $314.45 | | |
| SD250GEN | SD #250 GENERAL 770 | 2.3880724087 | $215,960 | $215,960 | $515.73 | | |
| ST2 | STATE SCHOOL PART 2 600 | 0.8131451643 | $215,960 | $215,960 | $175.61 | | |
| STATESCHL | STATE SCHOOL 600 | 1.5158548041 | $215,960 | $215,960 | $327.36 | | |
| STREFUND | STATE REFUND LEVY 603 | 0.0000000000 | $215,960 | $215,960 | $0.00 | | |
| | Total Tax Rate: | 10.1104125603 | | | | | |
| | | | | Taxes w/Current Exemptions: | $2,183.44 | | |
| | | | | Taxes w/o Exemptions: | $2,183.44 | | |
Improvement / Building
| Improvement #1: | RESIDENTIAL | State Code: | 11 | 968.0 sqft | Value: | $175,590 |
| Exterior Wall: | SIDING | Foundation: | SLAB FOUNDATION | | Heating/Cooling: | MINI-SPLIT HP SYSTEM | Number of Bathrooms: | 1 | | Number of Bedrooms: | 3 | Plumbing: | 6 | | Roof Covering: | COMP SHINGLE |   |   |
|
| | Type | Description | Class CD | Sub Class CD | Year Built | Area |
| | MA | Main Area | 1 | 25 | 1957 | 968.0 |
| | SI1 | SITE IMPROVEMENT | 1 | 25 | 1957 | 1.0 |
| | RPO | OPEN PORCH W/ROOF | 1 | 25 | 1957 | 84.0 |
| | CPC | COVERED CARPORT/PATIO | 1 | 25 | 2010 | 160.0 |
| | UTST | Utility Storage Shed | 1 | 25 | 1957 | 170.0 |
Sketch
Property Image
Land
| 1 | RES 1 | Converted: Residential | 0.1373 | 5980.00 | 0.00 | 0.00 | 1.00 | $40,370 | $0 |
Roll Value History
| 2026 | N/A | N/A | N/A | N/A | N/A |
| 2025 | $158,030 | $59,800 | $0 | $217,830 | $217,830 |
| 2024 | $175,590 | $40,370 | $0 | $215,960 | $215,960 |
| 2023 | $175,590 | $40,370 | $0 | $215,960 | $215,960 |
| 2022 | $159,620 | $40,370 | $0 | $199,990 | $199,990 |
| 2021 | $152,020 | $40,370 | $0 | $192,390 | $192,390 |
| 2020 | $116,940 | $40,370 | $0 | $157,310 | $157,310 |
| 2019 | $121,410 | $35,900 | $0 | $157,310 | $157,310 |
| 2018 | $97,130 | $35,900 | $0 | $133,030 | $133,030 |
| 2017 | $92,500 | $35,900 | $0 | $128,400 | $128,400 |
| 2016 | $74,000 | $35,900 | $0 | $109,900 | $109,900 |
| 2015 | $74,000 | $35,900 | $0 | $109,900 | $109,900 |
| 2014 | $74,000 | $35,900 | $0 | $109,900 | $109,900 |
| 2013 | $74,000 | $35,900 | $0 | $109,900 | $109,900 |
| 2012 | $74,000 | $35,900 | $0 | $0 | $0 |
| 2011 | $74,000 | $35,900 | $0 | $0 | $0 |
| 2010 | $58,600 | $35,900 | $0 | $0 | $0 |
| 2009 | $69,100 | $35,900 | $0 | $0 | $0 |
| 2008 | $40,500 | $17,900 | $0 | $0 | $0 |
| 2007 | $40,500 | $17,900 | $0 | $0 | $0 |
Deed and Sales History
| 1 | 06/23/2025 | SWD | STATUTORY WARRANTY DEED | HARDIN MATHEW JAMES | HARDIN CAROLINE & JONATHAN | | | $280,000.00 | 149575 | 2025-03537 |
| 2 | 06/28/2019 | QCD | QUIT CLAIM DEED | JIMENEZ VINCENT | BALDWIN-JIMENEZ SONJA | | | | 137188 | 2019-04655 |
| 3 | 06/28/2019 | SWD | STATUTORY WARRANTY DEED | BALDWIN SONJA | HARDIN MATHEW JAMES | | | $170,000.00 | 137189 | 2019-04656 |
| 4 | 05/23/2005 | WARRANTY D | WARRANTY DEED | CHRISTENSEN, STANLEY D | BALDWIN, SONJA | | | $90,000.00 | 107553 | 2005-06175 |
| 5 | 11/10/2004 | WARRANTY D | WARRANTY DEED | HATCH, LOUISE M ESTATE | CHRISTENSEN, STANLEY D | | | $67,000.00 | 106155 | 2004-12951 |
| 6 | 11/10/2004 | QCD | QUIT CLAIM DEED | CHRISTENSEN, STANLEY D | CHRISTENSEN, STANLEY D | | | | 106154 | 2004-12950 |
| 7 | 07/14/1995 | WARRANTY D | WARRANTY DEED | | | | | $32,000.00 | 84363 | 2319-506433 |
Payout Agreement
| No payout information available.. |