Property
Account |
| Property ID: | 1406 | Abbreviated Legal Description: | EDAIR VISTAS ADDN LT 13 BLK 4 |
| Parcel Number: | 360715500413 | Agent Code: | |
| Type: | Real | | |
| Tax Area: | 5 - OL-140 | Land Use Code | 11 |
| Open Space: | N | DFL | N |
| Historic Property: | N | Remodel Property: | N |
| Multi-Family Redevelopment: | N | | |
| Township: | 7 | Section: | 15 |
| Range: | 36 |
Location |
| Address: | 2337 HOOD PL WA 99362 | Mapsco: | |
| Neighborhood: | A-SFR | Map ID: | |
| Neighborhood CD: | 313011 |
Owner |
| Name: | PORTOLESE RANDALL P & DIANNA L | Owner ID: | 69482 |
| Mailing Address: | 19723 24TH DR SE BOTHELL, WA 98012 | % Ownership: | 100.0000000000% |
| | | Exemptions: | |
Taxes and Assessment Details
Property Tax Information as of
02/21/2026
Click on "Statement Details" to expand or collapse a tax statement.
* Please enter a valid date ** Please enter a valid date *
Statement Details |
| | TOTAL: | $0.00 | $0.00 | $0.00 | $0.00 | $0.00 | $0.00 |
|
| | $0.00 | $0.00 | $0.00 | $0.00 | $0.00 | $0.00 |
Values
| (+) Improvement Homesite Value: | + | $0 | |
| (+) Improvement Non-Homesite Value: | + | $254,810 | |
| (+) Land Homesite Value: | + | $0 | |
| (+) Land Non-Homesite Value: | + | $90,000 | |
| (+) Curr Use (HS): | + | $0 | $0 |
| (+) Curr Use (NHS): | + | $0 | $0 |
| | | -------------------------- | |
| (=) Market Value: | = | $344,810 | |
| (–) Productivity Loss: | – | $0 | |
| | | -------------------------- | |
| (=) Subtotal: | = | $344,810 | |
| (+) Senior Appraised Value: | + | $0 | |
| (+) Non-Senior Appraised Value: | + | $344,810 | |
| | | -------------------------- | |
| (=) Total Appraised Value: | = | $344,810 | |
| (–) Senior Exemption Loss: | – | $0 | |
| (–) Exemption Loss: | – | $0 | |
| | | -------------------------- | |
| (=) Taxable Value: | = | $344,810 | |
Taxing Jurisdiction
| Owner: | PORTOLESE RANDALL P & DIANNA L | | |
| % Ownership: | 100.0000000000% | | |
| Total Value: | $344,810 | | |
| Tax Area: | 5 - OL-140 |
| CERFD | CURRENT EXPENSE REFUND 010 | 0.0000000000 | $344,810 | $344,810 | $0.00 | | |
| CURREXP | CURRENT EXPENSE 010 | 1.0175366760 | $344,810 | $344,810 | $350.86 | | |
| HUMNSERV | HUMAN SERVICES 119 | 0.0250000000 | $344,810 | $344,810 | $8.62 | | |
| SLDREL | SOLDIERS RELIEF 121 | 0.0155990005 | $344,810 | $344,810 | $5.38 | | |
| EMERGSER | EMS 147 | 0.3792580840 | $344,810 | $344,810 | $130.77 | | |
| EMSRFD | EMS REFUND 147 | 0.0000000000 | $344,810 | $344,810 | $0.00 | | |
| PORTRFD | PORT REFUND 640 | 0.0000000000 | $344,810 | $344,810 | $0.00 | | |
| PORTWWGEN | PORT OF WW 640 | 0.2460186015 | $344,810 | $344,810 | $84.83 | | |
| SD140BOND | SD #140 BOND 764 | 0.8342371393 | $344,810 | $344,810 | $287.65 | | |
| SD140GEN | SD #140 GENERAL 760 | 2.0646500647 | $344,810 | $344,810 | $711.91 | | |
| ST2 | STATE SCHOOL PART 2 600 | 0.8131451643 | $344,810 | $344,810 | $280.38 | | |
| STATESCHL | STATE SCHOOL 600 | 1.5158548041 | $344,810 | $344,810 | $522.68 | | |
| STREFUND | STATE REFUND LEVY 603 | 0.0000000000 | $344,810 | $344,810 | $0.00 | | |
| CWWBOND | C OF WW BOND 643 | 0.2760494372 | $344,810 | $344,810 | $95.18 | | |
| CWWGEN | CITY OF WW 631 | 1.6100204973 | $344,810 | $344,810 | $555.15 | | |
| CWWRFD | CITY OF WALLA WALLA REFUND 631 | 0.0000000000 | $344,810 | $344,810 | $0.00 | | |
| | Total Tax Rate: | 8.7973694689 | | | | | |
| | | | | Taxes w/Current Exemptions: | $3,033.41 | | |
| | | | | Taxes w/o Exemptions: | $3,033.41 | | |
Improvement / Building
| Improvement #1: | RESIDENTIAL | State Code: | 11 | 983.0 sqft | Value: | $254,810 |
| Exterior Wall: | SIDING | Heating/Cooling: | HEAT PUMP | | Number of Bathrooms: | 2 | Number of Bedrooms: | 3 | | Plumbing: | 10 | Roof Covering: | COMP SHINGLE |
|
| | Type | Description | Class CD | Sub Class CD | Year Built | Area |
| | MA | Main Area | 1 | 35 | 1949 | 983.0 |
| | SI1 | SITE IMPROVEMENT | 1 | 30 | 1949 | 3.5 |
| | BASE | BASEMENT | 1 | 35 | 1949 | 983.0 |
| | BPF | BASEMENT -PARTITIONED FINISH | 1 | 35 | 1949 | 655.0 |
| | ATG | Attached Garage | 1 | 35 | 1949 | 280.0 |
| | S1F | Single One Story Fireplace | 1 | 35 | 1949 | 1.0 |
| | CPC | COVERED CARPORT/PATIO | 1 | 35 | 1949 | 208.0 |
| | PRC | PORCH W STEPS, ROOF,CEILED | 1 | 35 | 1949 | 36.0 |
Sketch
Property Image
Land
| 1 | RES 1 | Converted: Residential | 0.2112 | 9200.00 | 0.00 | 0.00 | 1.00 | $90,000 | $0 |
Roll Value History
| 2026 | N/A | N/A | N/A | N/A | N/A |
| 2025 | $254,810 | $90,000 | $0 | $344,810 | $344,810 |
| 2024 | $254,810 | $90,000 | $0 | $344,810 | $344,810 |
| 2023 | $254,810 | $90,000 | $0 | $344,810 | $344,810 |
| 2022 | $242,680 | $90,000 | $0 | $332,680 | $332,680 |
| 2021 | $216,020 | $55,000 | $0 | $271,020 | $271,020 |
| 2020 | $148,980 | $55,000 | $0 | $203,980 | $203,980 |
| 2019 | $148,980 | $55,000 | $0 | $203,980 | $203,980 |
| 2018 | $124,150 | $55,000 | $0 | $179,150 | $179,150 |
| 2017 | $124,150 | $55,000 | $0 | $179,150 | $179,150 |
| 2016 | $118,240 | $55,000 | $0 | $173,240 | $173,240 |
| 2015 | $98,810 | $55,000 | $0 | $153,810 | $153,810 |
| 2014 | $94,100 | $55,000 | $0 | $149,100 | $149,100 |
| 2013 | $94,100 | $55,000 | $0 | $149,100 | $149,100 |
| 2012 | $94,100 | $55,000 | $0 | $0 | $0 |
| 2011 | $94,100 | $55,000 | $0 | $0 | $0 |
| 2010 | $113,700 | $40,000 | $0 | $0 | $0 |
| 2009 | $130,800 | $40,000 | $0 | $0 | $0 |
| 2008 | $96,600 | $40,000 | $0 | $0 | $0 |
| 2007 | $96,600 | $40,000 | $0 | $0 | $0 |
Deed and Sales History
| 1 | 06/01/2021 | SWD | STATUTORY WARRANTY DEED | PALUMBO THOMAS W | PORTOLESE RANDALL P & DIANNA L | | | $350,000.00 | 141688 | 2021-06640 |
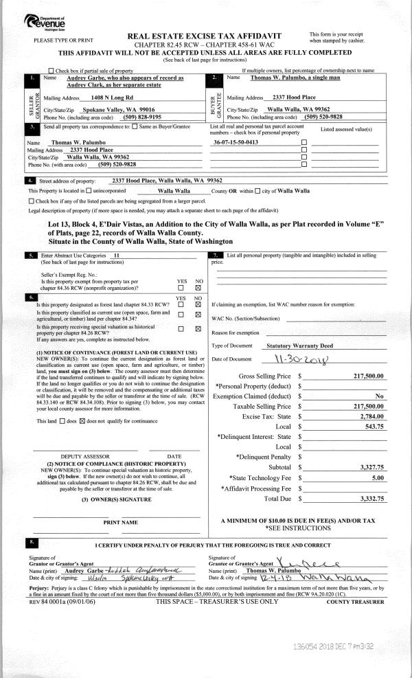
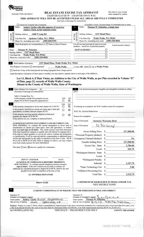
| 2 | 12/07/2018 | SWD | STATUTORY WARRANTY DEED | GARBE AUDREY | PALUMBO THOMAS W | | | $217,500.00 | 136054 | 2018-10154 |
| 3 | 02/27/2003 | QCD | QUIT CLAIM DEED | CLARK, SHAWN | CLARK, AUDREY GARBE | | | | 101474 | 2003-02577 |
| 4 | 09/28/1999 | WARRANTY D | WARRANTY DEED | | | | | $100,500.00 | 93708 | 2899-911188 |
Payout Agreement
| No payout information available.. |