Property
Account |
| Property ID: | 14028 | Abbreviated Legal Description: | CUMMINS LOTS 11 & 12 PLUS NLY. PTN. LOT 13 BLK 5 PLUS PTN. VAC.ALLEY TO THE E. PLUS 5' STRIP ON N. (VACATED IN 1996) |
| Parcel Number: | 330734520509 | Agent Code: | |
| Type: | Real | | |
| Tax Area: | 318 - 300-6-TM | Land Use Code | 11 |
| Open Space: | N | DFL | N |
| Historic Property: | N | Remodel Property: | N |
| Multi-Family Redevelopment: | N | | |
| Township: | 7 | Section: | 34 |
| Range: | 33 |
Location |
| Address: | 79 CENTER ST WA 99360 | Mapsco: | |
| Neighborhood: | A Touchet/Lowden SFR | Map ID: | |
| Neighborhood CD: | 213611 |
Owner |
| Name: | MORALES HILDA & CLEMENTE M | Owner ID: | 63679 |
| Mailing Address: | 79 CENTER ST TOUCHET, WA 99360 | % Ownership: | 100.0000000000% |
| | | Exemptions: | |
Taxes and Assessment Details
Values
| (+) Improvement Homesite Value: | + | $0 | |
| (+) Improvement Non-Homesite Value: | + | $129,120 | |
| (+) Land Homesite Value: | + | $0 | |
| (+) Land Non-Homesite Value: | + | $44,570 | |
| (+) Curr Use (HS): | + | $0 | $0 |
| (+) Curr Use (NHS): | + | $0 | $0 |
| | | -------------------------- | |
| (=) Market Value: | = | $173,690 | |
| (–) Productivity Loss: | – | $0 | |
| | | -------------------------- | |
| (=) Subtotal: | = | $173,690 | |
| (+) Senior Appraised Value: | + | $0 | |
| (+) Non-Senior Appraised Value: | + | $173,690 | |
| | | -------------------------- | |
| (=) Total Appraised Value: | = | $173,690 | |
| (–) Senior Exemption Loss: | – | $0 | |
| (–) Exemption Loss: | – | $0 | |
| | | -------------------------- | |
| (=) Taxable Value: | = | $173,690 | |
Taxing Jurisdiction
| Owner: | MORALES HILDA & CLEMENTE M | | |
| % Ownership: | 100.0000000000% | | |
| Total Value: | $173,690 | | |
| Tax Area: | 318 - 300-6-TM |
| CERFD | CURRENT EXPENSE REFUND 010 | 0.0000000000 | $173,690 | $173,690 | $0.00 | | |
| CURREXP | CURRENT EXPENSE 010 | 1.0175366760 | $173,690 | $173,690 | $176.74 | | |
| HUMNSERV | HUMAN SERVICES 119 | 0.0250000000 | $173,690 | $173,690 | $4.34 | | |
| SLDREL | SOLDIERS RELIEF 121 | 0.0155990005 | $173,690 | $173,690 | $2.71 | | |
| EMERGSER | EMS 147 | 0.3792580840 | $173,690 | $173,690 | $65.87 | | |
| EMSRFD | EMS REFUND 147 | 0.0000000000 | $173,690 | $173,690 | $0.00 | | |
| FD6EXP | FD #6 EXPENSE 693 | 0.6692985746 | $173,690 | $173,690 | $116.25 | | |
| RLBRFD | RURAL LIBRARY REFUND 623 | 0.0000000000 | $173,690 | $173,690 | $0.00 | | |
| RURALLIB | RURAL LIBRARY 623 | 0.3710609029 | $173,690 | $173,690 | $64.45 | | |
| PORTRFD | PORT REFUND 640 | 0.0000000000 | $173,690 | $173,690 | $0.00 | | |
| PORTWWGEN | PORT OF WW 640 | 0.2460186015 | $173,690 | $173,690 | $42.73 | | |
| SD300BOND | SD #300 BOND 783 | 1.8964951620 | $173,690 | $173,690 | $329.40 | | |
| SD300GEN | SD #300 GENERAL 780 | 2.1198322866 | $173,690 | $173,690 | $368.19 | | |
| ST2 | STATE SCHOOL PART 2 600 | 0.8131451643 | $173,690 | $173,690 | $141.24 | | |
| STATESCHL | STATE SCHOOL 600 | 1.5158548041 | $173,690 | $173,690 | $263.29 | | |
| STREFUND | STATE REFUND LEVY 603 | 0.0000000000 | $173,690 | $173,690 | $0.00 | | |
| COROAD | COUNTY ROAD 115 | 1.6549953990 | $173,690 | $173,690 | $287.46 | | |
| CRPRD | COUNTY ROAD REFUND 115 | 0.0000000000 | $173,690 | $173,690 | $0.00 | | |
| | Total Tax Rate: | 10.7240946555 | | | | | |
| | | | | Taxes w/Current Exemptions: | $1,862.67 | | |
| | | | | Taxes w/o Exemptions: | $1,862.67 | | |
Improvement / Building
| Improvement #1: | RESIDENTIAL | State Code: | 11 | 900.0 sqft | Value: | $129,120 |
| Exterior Wall: | SIDING | Heating/Cooling: | FLOOR FURNACE | | Number of Bathrooms: | 1 | Number of Bedrooms: | 2 | | Plumbing: | 6 | Roof Covering: | COMP SHINGLE |
|
| | Type | Description | Class CD | Sub Class CD | Year Built | Area |
| | MA | Main Area | 1 | 30 | 1940 | 900.0 |
| | CPCS | CARPORT/SHED OR FLAT ROOF | 1 | 30 | 1940 | 216.0 |
| | SI1 | SITE IMPROVEMENT | 1 | 30 | 1940 | 1.0 |
| | UTST | Utility Storage Shed | 1 | 30 | 1940 | 48.0 |
| | RPO | OPEN PORCH W/ROOF | 1 | 30 | 1940 | 85.0 |
Sketch
Property Image
Land
| 1 | RES 1 | Converted: Residential | 0.2803 | 12211.00 | 0.00 | 0.00 | 1.00 | $44,570 | $0 |
Roll Value History
| 2026 | N/A | N/A | N/A | N/A | N/A |
| 2025 | $142,030 | $44,570 | $0 | $186,600 | $186,600 |
| 2024 | $142,030 | $44,570 | $0 | $186,600 | $186,600 |
| 2023 | $129,120 | $44,570 | $0 | $173,690 | $173,690 |
| 2022 | $122,970 | $44,570 | $0 | $167,540 | $167,540 |
| 2021 | $81,980 | $44,570 | $0 | $126,550 | $126,550 |
| 2020 | $82,000 | $33,400 | $0 | $115,400 | $115,400 |
| 2019 | $82,000 | $33,400 | $0 | $115,400 | $115,400 |
| 2018 | $41,000 | $33,400 | $0 | $74,400 | $74,400 |
| 2017 | $41,000 | $33,400 | $0 | $74,400 | $74,400 |
| 2016 | $41,000 | $33,400 | $0 | $74,400 | $74,400 |
| 2015 | $41,000 | $33,400 | $0 | $74,400 | $74,400 |
| 2014 | $41,000 | $33,400 | $0 | $74,400 | $74,400 |
| 2013 | $41,000 | $33,400 | $0 | $74,400 | $74,400 |
| 2012 | $41,000 | $33,400 | $0 | $0 | $0 |
| 2011 | $41,000 | $33,400 | $0 | $0 | $0 |
| 2010 | $41,000 | $33,400 | $0 | $0 | $0 |
| 2009 | $66,700 | $18,300 | $0 | $0 | $0 |
| 2008 | $42,400 | $18,300 | $0 | $0 | $0 |
| 2007 | $42,400 | $18,300 | $0 | $0 | $0 |
Deed and Sales History
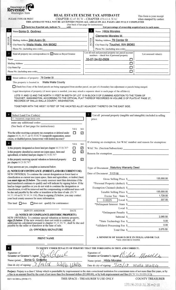
| 1 | 07/26/2018 | SWD | STATUTORY WARRANTY DEED | GODINEZ SONIA G | MORALES HILDA & CLEMENTE M | | | $135,000.00 | 135196 | 2018-06059 |
| 2 | 07/26/2018 | QCD | QUIT CLAIM DEED | GODINEZ JOSE L & SONIA G | GODINEZ SONIA G | | | $0.00 | 135195 | 2018-06058 |
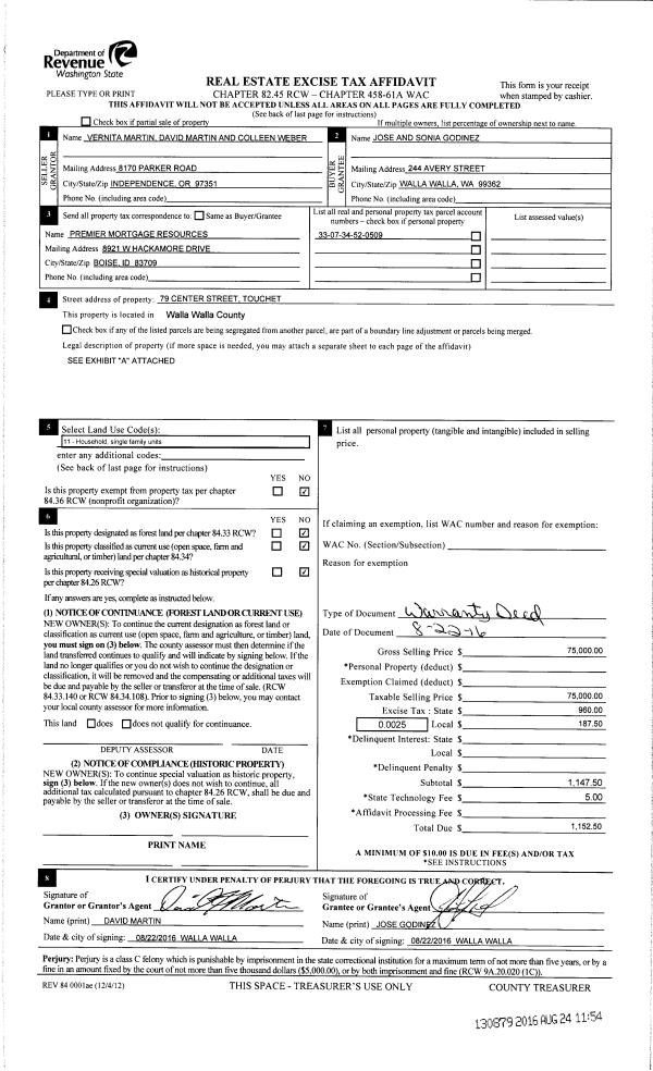
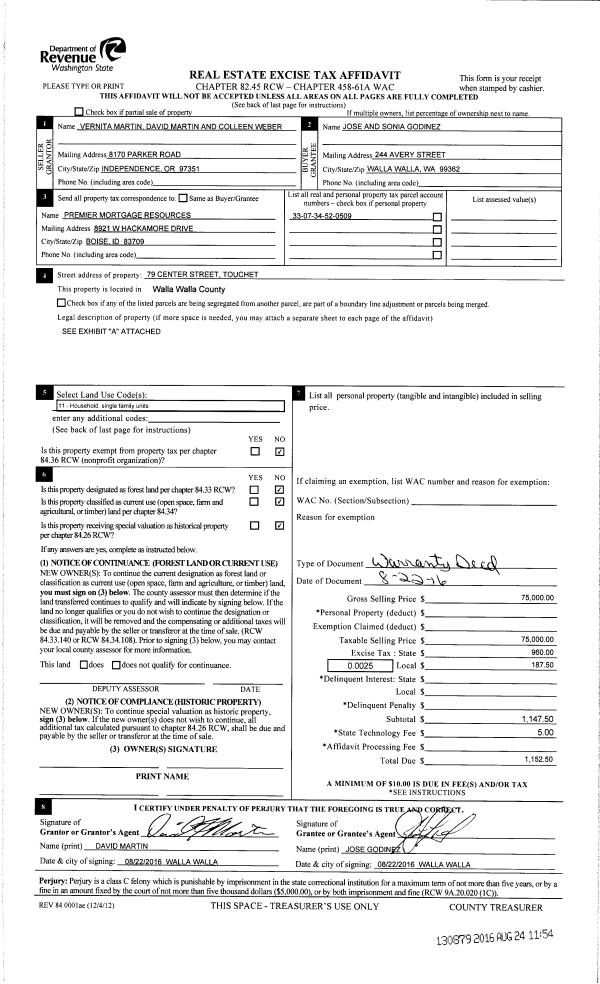
| 3 | 08/24/2016 | WARRANTY D | WARRANTY DEED | MARTIN VERNITA M | GODINEZ JOSE L & SONIA G | | | $75,000.00 | 130879 | 2016-06787 |
| 4 | 03/01/2005 | WARRANTY D | WARRANTY DEED | CONWELL, ARCHIE E | MARTIN, VERNITA M | | | $67,500.00 | 106884 | 2005-02360 |
Payout Agreement
| No payout information available.. |