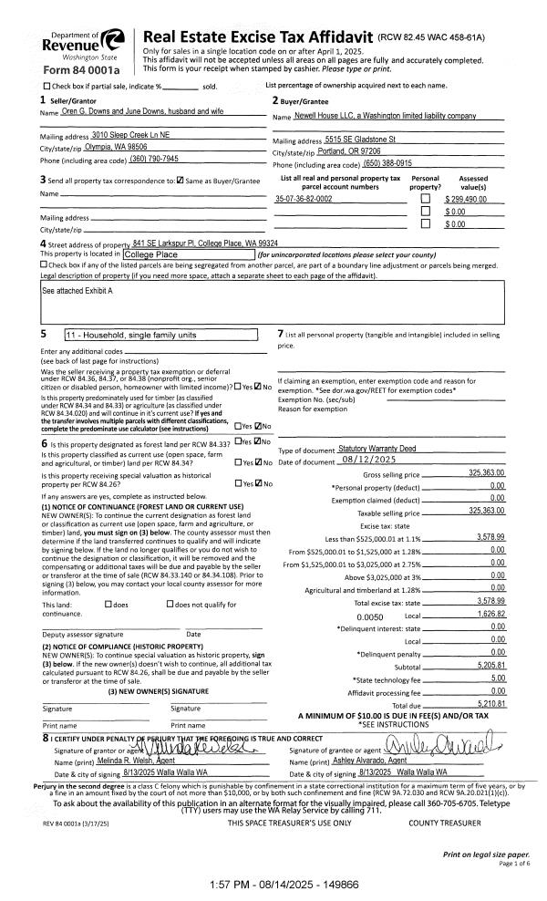
Property
Account |
| Property ID: | 13677 | Abbreviated Legal Description: | VILLAGES OF GARRISON CRK PUD PHASE 2 LOT 21 |
| Parcel Number: | 350736820002 | Agent Code: | |
| Type: | Real | | |
| Tax Area: | 77 - CP-250-F | Land Use Code | 11 |
| Open Space: | N | DFL | N |
| Historic Property: | N | Remodel Property: | N |
| Multi-Family Redevelopment: | N | | |
| Township: | 7 | Section: | 36 |
| Range: | 35 |
Location |
| Address: | 841 SE LARKSPUR PL WA 99324 | Mapsco: | |
| Neighborhood: | G Inferior SFR | Map ID: | |
| Neighborhood CD: | 114111 |
Owner |
| Name: | DOWNS OREN G & JUNE | Owner ID: | 70786 |
| Mailing Address: | 3010 SLEEPYCREEK LN NE OLYMPIA, WA 98506 | % Ownership: | 100.0000000000% |
| | | Exemptions: | |
Taxes and Assessment Details
Property Tax Information as of
02/21/2026
Click on "Statement Details" to expand or collapse a tax statement.
* Please enter a valid date ** Please enter a valid date *
Statement Details |
| | TOTAL: | $0.00 | $0.00 | $0.00 | $0.00 | $0.00 | $0.00 |
|
| | $0.00 | $0.00 | $0.00 | $0.00 | $0.00 | $0.00 |
Values
| (+) Improvement Homesite Value: | + | $0 | |
| (+) Improvement Non-Homesite Value: | + | $191,600 | |
| (+) Land Homesite Value: | + | $0 | |
| (+) Land Non-Homesite Value: | + | $60,000 | |
| (+) Curr Use (HS): | + | $0 | $0 |
| (+) Curr Use (NHS): | + | $0 | $0 |
| | | -------------------------- | |
| (=) Market Value: | = | $251,600 | |
| (–) Productivity Loss: | – | $0 | |
| | | -------------------------- | |
| (=) Subtotal: | = | $251,600 | |
| (+) Senior Appraised Value: | + | $0 | |
| (+) Non-Senior Appraised Value: | + | $251,600 | |
| | | -------------------------- | |
| (=) Total Appraised Value: | = | $251,600 | |
| (–) Senior Exemption Loss: | – | $0 | |
| (–) Exemption Loss: | – | $0 | |
| | | -------------------------- | |
| (=) Taxable Value: | = | $251,600 | |
Taxing Jurisdiction
| Owner: | DOWNS OREN G & JUNE | | |
| % Ownership: | 100.0000000000% | | |
| Total Value: | $251,600 | | |
| Tax Area: | 77 - CP-250-F |
| CERFD | CURRENT EXPENSE REFUND 010 | 0.0000000000 | $251,600 | $251,600 | $0.00 | | |
| CURREXP | CURRENT EXPENSE 010 | 1.0175366760 | $251,600 | $251,600 | $256.01 | | |
| HUMNSERV | HUMAN SERVICES 119 | 0.0250000000 | $251,600 | $251,600 | $6.29 | | |
| SLDREL | SOLDIERS RELIEF 121 | 0.0155990005 | $251,600 | $251,600 | $3.92 | | |
| COLLPLBOND | C OF CP BOND 644 | 0.4374241808 | $251,600 | $251,600 | $110.06 | | |
| COLLPLGEN | CITY OF CP 632 | 1.4453819216 | $251,600 | $251,600 | $363.66 | | |
| EMERGSER | EMS 147 | 0.3792580840 | $251,600 | $251,600 | $95.42 | | |
| EMSRFD | EMS REFUND 147 | 0.0000000000 | $251,600 | $251,600 | $0.00 | | |
| RURALLIB | RURAL LIBRARY 623 | 0.3710609029 | $251,600 | $251,600 | $93.36 | | |
| PORTRFD | PORT REFUND 640 | 0.0000000000 | $251,600 | $251,600 | $0.00 | | |
| PORTWWGEN | PORT OF WW 640 | 0.2460186015 | $251,600 | $251,600 | $61.90 | | |
| SD250BOND | SD #250 BOND 773 | 1.4560608159 | $251,600 | $251,600 | $366.34 | | |
| SD250GEN | SD #250 GENERAL 770 | 2.3880724087 | $251,600 | $251,600 | $600.84 | | |
| ST2 | STATE SCHOOL PART 2 600 | 0.8131451643 | $251,600 | $251,600 | $204.59 | | |
| STATESCHL | STATE SCHOOL 600 | 1.5158548041 | $251,600 | $251,600 | $381.39 | | |
| STREFUND | STATE REFUND LEVY 603 | 0.0000000000 | $251,600 | $251,600 | $0.00 | | |
| | Total Tax Rate: | 10.1104125603 | | | | | |
| | | | | Taxes w/Current Exemptions: | $2,543.78 | | |
| | | | | Taxes w/o Exemptions: | $2,543.78 | | |
Improvement / Building
| Improvement #1: | RESIDENTIAL | State Code: | 11 | 860.0 sqft | Value: | $191,600 |
| Exterior Wall: | PLYWOOD | Heating/Cooling: | WARM & COOLED AIR | | Number of Bathrooms: | 1 | Number of Bedrooms: | 2 | | Plumbing: | 6 | Roof Covering: | COMP SHINGLE |
|
| | Type | Description | Class CD | Sub Class CD | Year Built | Area |
| | MA | Main Area | 1 | 40 | 1999 | 860.0 |
| | SI1 | SITE IMPROVEMENT | 1 | 40 | 1999 | 1.0 |
| | ATG | Attached Garage | 1 | 40 | 1999 | 260.0 |
| | RPC | OPEN PORCH W/ROOF , CEILED | 1 | 40 | 1999 | 30.0 |
| | RPC | OPEN PORCH W/ROOF , CEILED | 1 | 40 | 1999 | 24.0 |
Sketch
Property Image
Land
| 1 | RES 1 | Converted: Residential | 0.0712 | 3100.00 | 0.00 | 0.00 | 1.00 | $60,000 | $0 |
Roll Value History
| 2026 | N/A | N/A | N/A | N/A | N/A |
| 2025 | $174,830 | $110,000 | $0 | $284,830 | $284,830 |
| 2024 | $239,490 | $60,000 | $0 | $299,490 | $299,490 |
| 2023 | $191,600 | $60,000 | $0 | $251,600 | $251,600 |
| 2022 | $191,600 | $60,000 | $0 | $251,600 | $251,600 |
| 2021 | $153,280 | $60,000 | $0 | $213,280 | $213,280 |
| 2020 | $127,730 | $60,000 | $0 | $187,730 | $187,730 |
| 2019 | $142,730 | $45,000 | $0 | $187,730 | $187,730 |
| 2018 | $105,730 | $45,000 | $0 | $150,730 | $150,730 |
| 2017 | $100,690 | $45,000 | $0 | $145,690 | $145,690 |
| 2016 | $100,690 | $45,000 | $0 | $145,690 | $145,690 |
| 2015 | $91,540 | $45,000 | $0 | $136,540 | $136,540 |
| 2014 | $79,600 | $45,000 | $0 | $124,600 | $124,600 |
| 2013 | $79,600 | $45,000 | $0 | $124,600 | $124,600 |
| 2012 | $88,900 | $45,000 | $0 | $0 | $0 |
| 2011 | $71,400 | $45,000 | $0 | $0 | $0 |
| 2010 | $71,400 | $45,000 | $0 | $0 | $0 |
| 2009 | $77,500 | $45,000 | $0 | $0 | $0 |
| 2008 | $70,700 | $18,000 | $0 | $0 | $0 |
| 2007 | $70,700 | $18,000 | $0 | $0 | $0 |
Deed and Sales History
| 1 | 08/14/2025 | SWD | STATUTORY WARRANTY DEED | DOWNS OREN G & JUNE | NEWELL HOUSE LLC | | | $325,363.00 | 149866 | 2025-04836 |
| 2 | 12/13/2021 | SWD | STATUTORY WARRANTY DEED | FRY PAM S | DOWNS OREN G & JUNE | | | $265,000.00 | 143042 | 2021-14588 |
| 3 | 10/07/2019 | SWD | STATUTORY WARRANTY DEED | MAZZARO THERESA | FRY PAM S | | | $174,600.00 | 137823 | 2019-07977 |
| 4 | 11/16/2016 | SWD | STATUTORY WARRANTY DEED | TETZ GARY & MELISSA | MAZZARO THERESA | | | $150,000.00 | 131438 | 2016-09466 |
| 5 | 09/30/2004 | WARRANTY D | WARRANTY DEED | KAUPPI, LINDA J | TETZ, GARY & MELISSA | | | $106,000.00 | 105856 | 2004-11334 |
| 6 | 10/08/1999 | WARRANTY D | WARRANTY DEED | | | | | $87,900.00 | 93792 | 2909-911711 |
Payout Agreement
| No payout information available.. |