Property
Account |
| Property ID: | 13653 | Abbreviated Legal Description: | BELLA COURT LOT 5 |
| Parcel Number: | 350726750005 | Agent Code: | |
| Type: | Real | | |
| Tax Area: | 75 - CP 250 | Land Use Code | 11 |
| Open Space: | N | DFL | N |
| Historic Property: | N | Remodel Property: | N |
| Multi-Family Redevelopment: | N | | |
| Township: | 7 | Section: | 26 |
| Range: | 35 |
Location |
| Address: | 251 NW RUBY LN WA 99324 | Mapsco: | |
| Neighborhood: | A SFR | Map ID: | |
| Neighborhood CD: | 113011 |
Owner |
| Name: | GARCIA CLAUDIA MARISSA | Owner ID: | 74012 |
| Mailing Address: | 251 NW RUBY LN COLLEGE PLACE, WA 99324 | % Ownership: | 100.0000000000% |
| | | Exemptions: | |
Taxes and Assessment Details
Values
| (+) Improvement Homesite Value: | + | $0 | |
| (+) Improvement Non-Homesite Value: | + | $292,830 | |
| (+) Land Homesite Value: | + | $0 | |
| (+) Land Non-Homesite Value: | + | $70,000 | |
| (+) Curr Use (HS): | + | $0 | $0 |
| (+) Curr Use (NHS): | + | $0 | $0 |
| | | -------------------------- | |
| (=) Market Value: | = | $362,830 | |
| (–) Productivity Loss: | – | $0 | |
| | | -------------------------- | |
| (=) Subtotal: | = | $362,830 | |
| (+) Senior Appraised Value: | + | $0 | |
| (+) Non-Senior Appraised Value: | + | $362,830 | |
| | | -------------------------- | |
| (=) Total Appraised Value: | = | $362,830 | |
| (–) Senior Exemption Loss: | – | $0 | |
| (–) Exemption Loss: | – | $0 | |
| | | -------------------------- | |
| (=) Taxable Value: | = | $362,830 | |
Taxing Jurisdiction
| Owner: | GARCIA CLAUDIA MARISSA | | |
| % Ownership: | 100.0000000000% | | |
| Total Value: | $362,830 | | |
| Tax Area: | 75 - CP 250 |
| CERFD | CURRENT EXPENSE REFUND 010 | 0.0000000000 | $362,830 | $362,830 | $0.00 | | |
| CURREXP | CURRENT EXPENSE 010 | 1.0175366760 | $362,830 | $362,830 | $369.19 | | |
| HUMNSERV | HUMAN SERVICES 119 | 0.0250000000 | $362,830 | $362,830 | $9.07 | | |
| SLDREL | SOLDIERS RELIEF 121 | 0.0155990005 | $362,830 | $362,830 | $5.66 | | |
| COLLPLBOND | C OF CP BOND 644 | 0.4374241808 | $362,830 | $362,830 | $158.71 | | |
| COLLPLGEN | CITY OF CP 632 | 1.4453819216 | $362,830 | $362,830 | $524.43 | | |
| EMERGSER | EMS 147 | 0.3792580840 | $362,830 | $362,830 | $137.61 | | |
| EMSRFD | EMS REFUND 147 | 0.0000000000 | $362,830 | $362,830 | $0.00 | | |
| RURALLIB | RURAL LIBRARY 623 | 0.3710609029 | $362,830 | $362,830 | $134.63 | | |
| PORTRFD | PORT REFUND 640 | 0.0000000000 | $362,830 | $362,830 | $0.00 | | |
| PORTWWGEN | PORT OF WW 640 | 0.2460186015 | $362,830 | $362,830 | $89.26 | | |
| SD250BOND | SD #250 BOND 773 | 1.4560608159 | $362,830 | $362,830 | $528.30 | | |
| SD250GEN | SD #250 GENERAL 770 | 2.3880724087 | $362,830 | $362,830 | $866.46 | | |
| ST2 | STATE SCHOOL PART 2 600 | 0.8131451643 | $362,830 | $362,830 | $295.03 | | |
| STATESCHL | STATE SCHOOL 600 | 1.5158548041 | $362,830 | $362,830 | $550.00 | | |
| STREFUND | STATE REFUND LEVY 603 | 0.0000000000 | $362,830 | $362,830 | $0.00 | | |
| | Total Tax Rate: | 10.1104125603 | | | | | |
| | | | | Taxes w/Current Exemptions: | $3,668.35 | | |
| | | | | Taxes w/o Exemptions: | $3,668.35 | | |
Improvement / Building
| Improvement #1: | RESIDENTIAL | State Code: | 11 | 1490.0 sqft | Value: | $292,830 |
| Exterior Wall: | HARDBOARD | Heating/Cooling: | WARM & COOLED AIR | | Number of Bathrooms: | 2.5 | Number of Bedrooms: | 3 | | Plumbing: | 12 | Roof Covering: | COMP SHINGLE |
|
| | Type | Description | Class CD | Sub Class CD | Year Built | Area |
| | MA | Main Area | 2 | 30 | 2008 | 1490.0 |
| | UPFL | Upper Floor (included in main area) | 2 | 30 | 2008 | 848.0 |
| | SI1 | SITE IMPROVEMENT | 2 | 30 | 2008 | 2.0 |
| | BASE | BASEMENT | 2 | 30 | 2008 | 642.0 |
| | BPF | BASEMENT -PARTITIONED FINISH | 2 | 30 | 2008 | 642.0 |
| | ATG | Attached Garage | 2 | 30 | 2008 | 350.0 |
| | RPC | OPEN PORCH W/ROOF , CEILED | 2 | 30 | 2008 | 84.0 |
Sketch
Property Image
Land
| 1 | RES 1 | Converted: Residential | 0.1519 | 6615.00 | 0.00 | 0.00 | 1.00 | $70,000 | $0 |
Roll Value History
| 2026 | N/A | N/A | N/A | N/A | N/A |
| 2025 | $276,730 | $125,000 | $0 | $401,730 | $401,730 |
| 2024 | $307,470 | $70,000 | $0 | $377,470 | $377,470 |
| 2023 | $292,830 | $70,000 | $0 | $362,830 | $362,830 |
| 2022 | $244,030 | $70,000 | $0 | $314,030 | $314,030 |
| 2021 | $187,710 | $70,000 | $0 | $257,710 | $257,710 |
| 2020 | $150,170 | $70,000 | $0 | $220,170 | $220,170 |
| 2019 | $165,170 | $55,000 | $0 | $220,170 | $220,170 |
| 2018 | $150,150 | $55,000 | $0 | $205,150 | $205,150 |
| 2017 | $143,000 | $55,000 | $0 | $198,000 | $198,000 |
| 2016 | $143,000 | $55,000 | $0 | $198,000 | $198,000 |
| 2015 | $143,000 | $55,000 | $0 | $198,000 | $198,000 |
| 2014 | $143,000 | $55,000 | $0 | $198,000 | $198,000 |
| 2013 | $143,000 | $55,000 | $0 | $198,000 | $198,000 |
| 2012 | $143,000 | $55,000 | $0 | $0 | $0 |
| 2011 | $165,000 | $55,000 | $0 | $0 | $0 |
| 2010 | $165,000 | $55,000 | $0 | $0 | $0 |
| 2009 | $179,400 | $55,000 | $0 | $0 | $0 |
| 2008 | $0 | $4,800 | $0 | $0 | $0 |
| 2007 | $0 | $4,800 | $0 | $0 | $0 |
Deed and Sales History
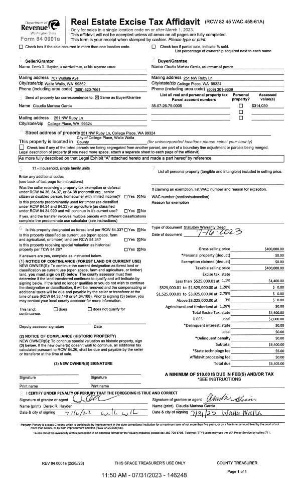
| 1 | 07/31/2023 | SWD | STATUTORY WARRANTY DEED | HAYDEN DEREK R | GARCIA CLAUDIA MARISSA | | | $400,000.00 | 146248 | 2023-04343 |
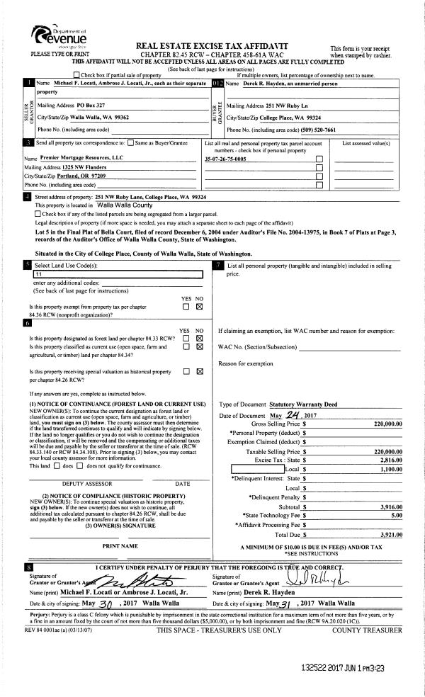
| 2 | 06/01/2017 | SWD | STATUTORY WARRANTY DEED | LOCATI MICHAEL F | HAYDEN DEREK R | | | $220,000.00 | 132522 | 2017-04197 |
| 3 | 09/21/2006 | WARRANTY D | WARRANTY DEED | HOOVER, KENT & BRENDA | LOCATI, MICHAEL F | | | $45,000.00 | 111245 | 2006-11392 |
Payout Agreement
| No payout information available.. |