Property
Account |
| Property ID: | 1364 | Abbreviated Legal Description: | RITZ LT 1 BLK 3 LESS 10' TR ON E, LESS TAX 1 & ELY 15' LT 2 BLK 3LESS TAX 1 |
| Parcel Number: | 360730540301 | Agent Code: | |
| Type: | Real | | |
| Tax Area: | 1 - OL-140-F | Land Use Code | 11 |
| Open Space: | N | DFL | N |
| Historic Property: | N | Remodel Property: | N |
| Multi-Family Redevelopment: | N | | |
| Township: | 7 | Section: | 30 |
| Range: | 36 |
Location |
| Address: | 1001 W CHESTNUT ST WA 99362 | Mapsco: | |
| Neighborhood: | A-SFR | Map ID: | |
| Neighborhood CD: | 313011 |
Owner |
| Name: | CORONADO MARTIN | Owner ID: | 61925 |
| Mailing Address: | AUSTIN CORONADO 84403 EASTSIDE RD MILTON FREEWATER, OR 97862 | % Ownership: | 100.0000000000% |
| | | Exemptions: | |
Taxes and Assessment Details
Property Tax Information as of
02/21/2026
Click on "Statement Details" to expand or collapse a tax statement.
* Please enter a valid date ** Please enter a valid date *
Statement Details |
| | TOTAL: | $0.00 | $0.00 | $0.00 | $0.00 | $0.00 | $0.00 |
|
| | $0.00 | $0.00 | $0.00 | $0.00 | $0.00 | $0.00 |
Values
| (+) Improvement Homesite Value: | + | $0 | |
| (+) Improvement Non-Homesite Value: | + | $80,080 | |
| (+) Land Homesite Value: | + | $0 | |
| (+) Land Non-Homesite Value: | + | $44,880 | |
| (+) Curr Use (HS): | + | $0 | $0 |
| (+) Curr Use (NHS): | + | $0 | $0 |
| | | -------------------------- | |
| (=) Market Value: | = | $124,960 | |
| (–) Productivity Loss: | – | $0 | |
| | | -------------------------- | |
| (=) Subtotal: | = | $124,960 | |
| (+) Senior Appraised Value: | + | $0 | |
| (+) Non-Senior Appraised Value: | + | $124,960 | |
| | | -------------------------- | |
| (=) Total Appraised Value: | = | $124,960 | |
| (–) Senior Exemption Loss: | – | $0 | |
| (–) Exemption Loss: | – | $0 | |
| | | -------------------------- | |
| (=) Taxable Value: | = | $124,960 | |
Taxing Jurisdiction
| Owner: | CORONADO MARTIN | | |
| % Ownership: | 100.0000000000% | | |
| Total Value: | $124,960 | | |
| Tax Area: | 1 - OL-140-F |
| CERFD | CURRENT EXPENSE REFUND 010 | 0.0000000000 | $124,960 | $124,960 | $0.00 | | |
| CURREXP | CURRENT EXPENSE 010 | 1.0175366760 | $124,960 | $124,960 | $127.15 | | |
| HUMNSERV | HUMAN SERVICES 119 | 0.0250000000 | $124,960 | $124,960 | $3.12 | | |
| SLDREL | SOLDIERS RELIEF 121 | 0.0155990005 | $124,960 | $124,960 | $1.95 | | |
| EMERGSER | EMS 147 | 0.3792580840 | $124,960 | $124,960 | $47.39 | | |
| EMSRFD | EMS REFUND 147 | 0.0000000000 | $124,960 | $124,960 | $0.00 | | |
| PORTRFD | PORT REFUND 640 | 0.0000000000 | $124,960 | $124,960 | $0.00 | | |
| PORTWWGEN | PORT OF WW 640 | 0.2460186015 | $124,960 | $124,960 | $30.74 | | |
| SD140BOND | SD #140 BOND 764 | 0.8342371393 | $124,960 | $124,960 | $104.25 | | |
| SD140GEN | SD #140 GENERAL 760 | 2.0646500647 | $124,960 | $124,960 | $258.00 | | |
| ST2 | STATE SCHOOL PART 2 600 | 0.8131451643 | $124,960 | $124,960 | $101.61 | | |
| STATESCHL | STATE SCHOOL 600 | 1.5158548041 | $124,960 | $124,960 | $189.42 | | |
| STREFUND | STATE REFUND LEVY 603 | 0.0000000000 | $124,960 | $124,960 | $0.00 | | |
| CWWBOND | C OF WW BOND 643 | 0.2760494372 | $124,960 | $124,960 | $34.50 | | |
| CWWGEN | CITY OF WW 631 | 1.6100204973 | $124,960 | $124,960 | $201.19 | | |
| CWWRFD | CITY OF WALLA WALLA REFUND 631 | 0.0000000000 | $124,960 | $124,960 | $0.00 | | |
| | Total Tax Rate: | 8.7973694689 | | | | | |
| | | | | Taxes w/Current Exemptions: | $1,099.32 | | |
| | | | | Taxes w/o Exemptions: | $1,099.32 | | |
Improvement / Building
| Improvement #1: | RESIDENTIAL | State Code: | 11 | 671.0 sqft | Value: | $80,080 |
| Exterior Wall: | SIDING | Heating/Cooling: | FORCED AIR | | Number of Bathrooms: | 1 | Number of Bedrooms: | 2 | | Plumbing: | 7 | Roof Covering: | COMP SHINGLE |
|
| | Type | Description | Class CD | Sub Class CD | Year Built | Area |
| | MA | Main Area | 1 | 20 | 1931 | 671.0 |
| | SI1 | SITE IMPROVEMENT | 1 | 20 | 1931 | 1.0 |
| | BASE | BASEMENT | 1 | 20 | 1931 | 650.0 |
| | RPS | PORCH W/STEPS,ROOF | 1 | 20 | 1931 | 24.0 |
| | DTG | Detached Garage | 1 | 20 | 1931 | 240.0 |
Sketch
Property Image
Land
| 1 | RES 1 | Converted: Residential | 0.1249 | 5440.00 | 0.00 | 0.00 | 1.00 | $44,880 | $0 |
Roll Value History
| 2026 | N/A | N/A | N/A | N/A | N/A |
| 2025 | $80,080 | $44,880 | $0 | $124,960 | $124,960 |
| 2024 | $80,080 | $44,880 | $0 | $124,960 | $124,960 |
| 2023 | $80,080 | $44,880 | $0 | $124,960 | $124,960 |
| 2022 | $80,080 | $44,880 | $0 | $124,960 | $124,960 |
| 2021 | $101,860 | $23,100 | $0 | $124,960 | $124,960 |
| 2020 | $88,570 | $23,100 | $0 | $111,670 | $111,670 |
| 2019 | $88,570 | $23,100 | $0 | $111,670 | $111,670 |
| 2018 | $80,520 | $23,100 | $0 | $103,620 | $103,620 |
| 2017 | $73,200 | $23,100 | $0 | $96,300 | $96,300 |
| 2016 | $73,200 | $23,100 | $0 | $96,300 | $96,300 |
| 2015 | $73,200 | $23,100 | $0 | $96,300 | $96,300 |
| 2014 | $73,200 | $23,100 | $0 | $96,300 | $96,300 |
| 2013 | $73,200 | $23,100 | $0 | $96,300 | $96,300 |
| 2012 | $73,200 | $23,100 | $0 | $0 | $0 |
| 2011 | $73,200 | $23,100 | $0 | $0 | $0 |
| 2010 | $88,100 | $23,100 | $0 | $0 | $0 |
| 2009 | $107,600 | $9,500 | $0 | $0 | $0 |
| 2008 | $41,400 | $9,500 | $0 | $0 | $0 |
| 2007 | $41,400 | $9,500 | $0 | $0 | $0 |
Deed and Sales History
| 1 | 07/18/2025 | QCD | QUIT CLAIM DEED | CORONADO AUSTIN | CORONADO AUSTIN & SHARON | | | | 149700 | 2025-04119 |
| 2 | 07/18/2025 | QCD | QUIT CLAIM DEED | CORONADO MARTIN | CORONADO AUSTIN | | | | 0 | 2025-04118 |
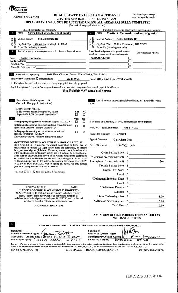
| 3 | 12/30/2016 | QCD | QUIT CLAIM DEED | CORONADO ANDRIA ELISE | CORONADO MARTIN A | | | $0.00 | 133439 | 2017-08338 |
| 4 | 12/22/2016 | SWD | STATUTORY WARRANTY DEED | CORONADO MARTIN ET AL | CORONADO MARTIN | | | $0.00 | 133440 | 2017-08339 |
| 5 | 12/30/2016 | QCD | QUIT CLAIM DEED | CORONADO GILBERT | THE ESTATE OF ARMANDO MARCUS CONONADO | | | | 131692 | 2016-10802 |
| 6 | 12/30/2016 | DPR | DEED OF PERSONAL REPRESENTATIVE | LEMUS LETICIA | CORONADO MARTIN A | | | $13,900.00 | 131693 | 2016-10803 |
| 7 | 12/30/2016 | QCD | QUIT CLAIM DEED | CORONADO ANDRIA ELISE | CORONADO MARTIN A | | | | 131694 | 2016-10804 |
| 8 | 12/30/2016 | SWD | STATUTORY WARRANTY DEED | CORONADO MARTIN ET AL | CORONADO MARTIN & ANDREA | | | $41,700.00 | 131695 | 2016-10805 |
| 9 | 04/07/2006 | WARRANTY D | WARRANTY DEED | "LEMUS, LETICIA" | CORONADO MARTIN ET AL | | | | 109985 | 2006-03974 |
| 10 | 12/06/2002 | WARRANTY D | WARRANTY DEED | "CORONADO, ELIZABETH ETAL" | CORONADO ELIZABETH ETAL | | | | 100955 | 2002-13851 |
| 11 | 08/16/1989 | QCD | QUIT CLAIM DEED | | | | | $22,000.00 | 0 | 1778-905209 |
Payout Agreement
| No payout information available.. |