Property
Account |
| Property ID: | 13637 | Abbreviated Legal Description: | TAUSICK PARK LOT 16 BLK 9 |
| Parcel Number: | 360722550916 | Agent Code: | |
| Type: | Real | | |
| Tax Area: | 1 - OL-140-F | Land Use Code | 11 |
| Open Space: | N | DFL | N |
| Historic Property: | N | Remodel Property: | N |
| Multi-Family Redevelopment: | N | | |
| Township: | 7 | Section: | 22 |
| Range: | 36 |
Location |
| Address: | 108 ASSUMPTION DR WA 99362 | Mapsco: | |
| Neighborhood: | A SFR | Map ID: | |
| Neighborhood CD: | 413011 |
Owner |
| Name: | TUCKER TODD | Owner ID: | 64507 |
| Mailing Address: | REA CULWELL 108 ASSUMPTION DR WALLA WALLA, WA 99362 | % Ownership: | 100.0000000000% |
| | | Exemptions: | |
Taxes and Assessment Details
Property Tax Information as of
04/19/2026
Click on "Statement Details" to expand or collapse a tax statement.
* Please enter a valid date ** Please enter a valid date *
Statement Details |
| | TOTAL: | $0.00 | $0.00 | $0.00 | $0.00 | $0.00 | $0.00 |
|
| | $0.00 | $0.00 | $0.00 | $0.00 | $0.00 | $0.00 |
Values
| (+) Improvement Homesite Value: | + | $0 | |
| (+) Improvement Non-Homesite Value: | + | $475,870 | |
| (+) Land Homesite Value: | + | $0 | |
| (+) Land Non-Homesite Value: | + | $81,410 | |
| (+) Curr Use (HS): | + | $0 | $0 |
| (+) Curr Use (NHS): | + | $0 | $0 |
| | | -------------------------- | |
| (=) Market Value: | = | $557,280 | |
| (–) Productivity Loss: | – | $0 | |
| | | -------------------------- | |
| (=) Subtotal: | = | $557,280 | |
| (+) Senior Appraised Value: | + | $0 | |
| (+) Non-Senior Appraised Value: | + | $557,280 | |
| | | -------------------------- | |
| (=) Total Appraised Value: | = | $557,280 | |
| (–) Senior Exemption Loss: | – | $0 | |
| (–) Exemption Loss: | – | $0 | |
| | | -------------------------- | |
| (=) Taxable Value: | = | $557,280 | |
Taxing Jurisdiction
| Owner: | TUCKER TODD | | |
| % Ownership: | 100.0000000000% | | |
| Total Value: | $557,280 | | |
| Tax Area: | 1 - OL-140-F |
| CERFD | CURRENT EXPENSE REFUND 010 | 0.0000000000 | $557,280 | $557,280 | $0.00 | | |
| CURREXP | CURRENT EXPENSE 010 | 1.0175366760 | $557,280 | $557,280 | $567.05 | | |
| HUMNSERV | HUMAN SERVICES 119 | 0.0250000000 | $557,280 | $557,280 | $13.93 | | |
| SLDREL | SOLDIERS RELIEF 121 | 0.0155990005 | $557,280 | $557,280 | $8.69 | | |
| EMERGSER | EMS 147 | 0.3792580840 | $557,280 | $557,280 | $211.35 | | |
| EMSRFD | EMS REFUND 147 | 0.0000000000 | $557,280 | $557,280 | $0.00 | | |
| PORTRFD | PORT REFUND 640 | 0.0000000000 | $557,280 | $557,280 | $0.00 | | |
| PORTWWGEN | PORT OF WW 640 | 0.2460186015 | $557,280 | $557,280 | $137.10 | | |
| SD140BOND | SD #140 BOND 764 | 0.8342371393 | $557,280 | $557,280 | $464.90 | | |
| SD140GEN | SD #140 GENERAL 760 | 2.0646500647 | $557,280 | $557,280 | $1,150.59 | | |
| ST2 | STATE SCHOOL PART 2 600 | 0.8131451643 | $557,280 | $557,280 | $453.15 | | |
| STATESCHL | STATE SCHOOL 600 | 1.5158548041 | $557,280 | $557,280 | $844.76 | | |
| STREFUND | STATE REFUND LEVY 603 | 0.0000000000 | $557,280 | $557,280 | $0.00 | | |
| CWWBOND | C OF WW BOND 643 | 0.2760494372 | $557,280 | $557,280 | $153.84 | | |
| CWWGEN | CITY OF WW 631 | 1.6100204973 | $557,280 | $557,280 | $897.23 | | |
| CWWRFD | CITY OF WALLA WALLA REFUND 631 | 0.0000000000 | $557,280 | $557,280 | $0.00 | | |
| | Total Tax Rate: | 8.7973694689 | | | | | |
| | | | | Taxes w/Current Exemptions: | $4,902.59 | | |
| | | | | Taxes w/o Exemptions: | $4,902.59 | | |
Improvement / Building
| Improvement #1: | RESIDENTIAL | State Code: | 11 | 2066.0 sqft | Value: | $475,870 |
| Exterior Wall: | VINYL | Heating/Cooling: | WARM & COOLED AIR | | Number of Bathrooms: | 3 | Number of Bedrooms: | 3 | | Plumbing: | 15 | Roof Covering: | COMP SHINGLE |
|
| | Type | Description | Class CD | Sub Class CD | Year Built | Area |
| | MA | Main Area | 1 | 40 | 1966 | 2066.0 |
| | SI1 | SITE IMPROVEMENT | 1 | 40 | 0 | 2.0 |
| | BASE | BASEMENT | 1 | 40 | 1966 | 1523.0 |
| | BRF | BASEMENT - REC FINISH | 1 | 40 | 1966 | 1523.0 |
| | S1F | Single One Story Fireplace | 1 | 40 | 1966 | 1.0 |
| | WOD | Wood Deck | 1 | 40 | 1966 | 200.0 |
Sketch
Property Image
Land
| 1 | RES 1 | Converted: Residential | 0.2798 | 12187.00 | 0.00 | 0.00 | 1.00 | $81,410 | $0 |
Roll Value History
| 2026 | N/A | N/A | N/A | N/A | N/A |
| 2025 | $499,660 | $81,410 | $0 | $581,070 | $581,070 |
| 2024 | $499,660 | $81,410 | $0 | $581,070 | $581,070 |
| 2023 | $475,870 | $81,410 | $0 | $557,280 | $557,280 |
| 2022 | $407,510 | $54,230 | $0 | $461,740 | $461,740 |
| 2021 | $326,010 | $54,230 | $0 | $380,240 | $380,240 |
| 2020 | $283,480 | $54,230 | $0 | $337,710 | $337,710 |
| 2019 | $283,480 | $54,230 | $0 | $337,710 | $337,710 |
| 2018 | $202,490 | $54,230 | $0 | $256,720 | $256,720 |
| 2017 | $202,490 | $54,230 | $0 | $256,720 | $256,720 |
| 2016 | $184,380 | $41,600 | $0 | $225,980 | $225,980 |
| 2015 | $175,600 | $41,600 | $0 | $217,200 | $217,200 |
| 2014 | $175,600 | $41,600 | $0 | $217,200 | $217,200 |
| 2013 | $175,600 | $41,600 | $0 | $217,200 | $217,200 |
| 2012 | $147,300 | $41,600 | $0 | $0 | $0 |
| 2011 | $163,700 | $41,600 | $0 | $0 | $0 |
| 2010 | $163,700 | $41,600 | $0 | $0 | $0 |
| 2009 | $186,500 | $41,600 | $0 | $0 | $0 |
| 2008 | $186,500 | $41,600 | $0 | $0 | $0 |
| 2007 | $146,500 | $41,600 | $0 | $0 | $0 |
Deed and Sales History
| 1 | 11/14/2018 | SWD | STATUTORY WARRANTY DEED | KLINEFELTER KALEM R & KATIE A | TUCKER TODD | | 2-PARCELS | $375,000.00 | 135937 | 2018-09447 |
|   | |
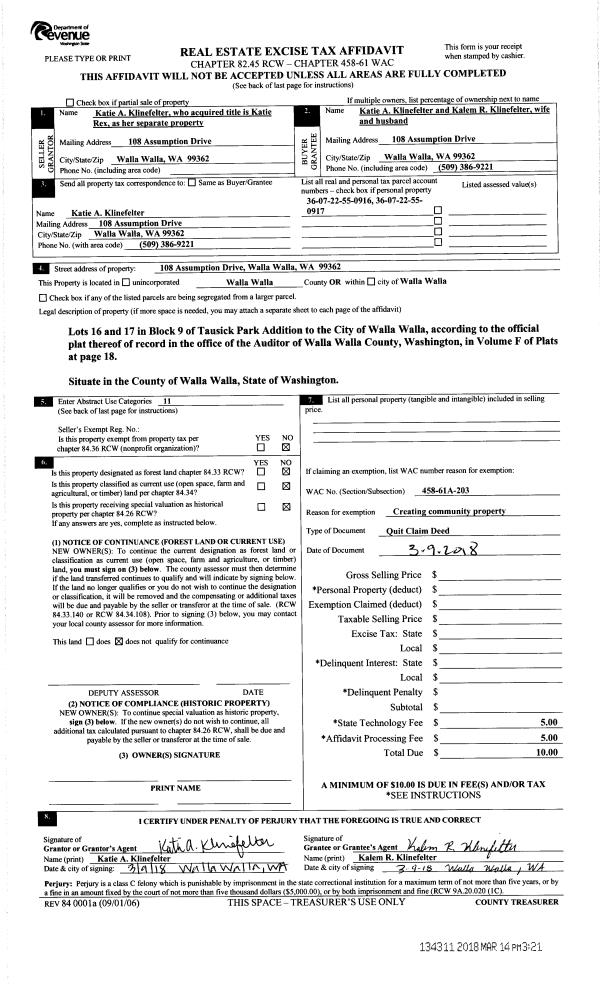
| 2 | 03/09/2018 | QCD | QUIT CLAIM DEED | REX KATIE A | KLINEFELTER KALEM R & KATIE A | | | $0.00 | 134311 | 2018-01999 |
| 3 | 10/29/2004 | WARRANTY D | WARRANTY DEED | REESMAN RYAN E; RENAE E; BRENT A | REX KATIE A | | | $190,000.00 | 106082 | 2004-12550 |
|   | |
| 4 | 10/04/2004 | QCD | QUIT CLAIM DEED | REESMAN ALLEN LIFE EST | REESMAN RYAN E; RENAE E; BRENT A | | | | 105877 | 2004-11470 |
| 5 | 08/02/2001 | QCD | QUIT CLAIM DEED | | | | | $0.00 | 97753 | 3170-108341 |
Payout Agreement
| No payout information available.. |