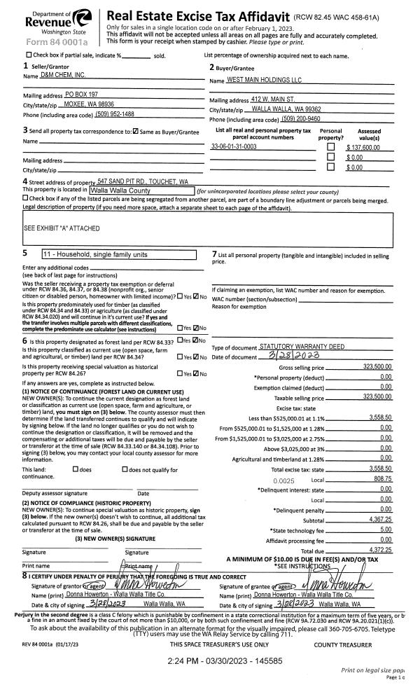
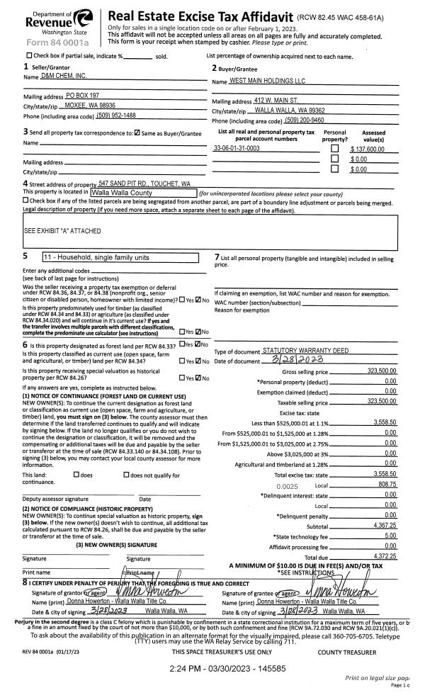
Property
Account |
| Property ID: | 13634 | Abbreviated Legal Description: | SEC 1 TWN 6 RNG 33 TAX 1 |
| Parcel Number: | 330601310003 | Agent Code: | |
| Type: | Real | | |
| Tax Area: | 318 - 300-6-TM | Land Use Code | 64 |
| Open Space: | N | DFL | N |
| Historic Property: | N | Remodel Property: | N |
| Multi-Family Redevelopment: | N | | |
| Township: | 6 | Section: | 1 |
| Range: | 33 |
Location |
| Address: | 547 SAND PIT RD WA 99360 | Mapsco: | |
| Neighborhood: | A Touchet/Lowden MH Rural | Map ID: | |
| Neighborhood CD: | 213663 |
Owner |
| Name: | WEST MAIN HOLDINGS LLC | Owner ID: | 64382 |
| Mailing Address: | 412 W MAIN ST WALLA WALLA, WA 99362 | % Ownership: | 100.0000000000% |
| | | Exemptions: | |
Taxes and Assessment Details
Property Tax Information as of
04/19/2026
Click on "Statement Details" to expand or collapse a tax statement.
* Please enter a valid date ** Please enter a valid date *
Statement Details |
| | TOTAL: | $0.00 | $0.00 | $0.00 | $0.00 | $0.00 | $0.00 |
|
| | $0.00 | $0.00 | $0.00 | $0.00 | $0.00 | $0.00 |
Values
| (+) Improvement Homesite Value: | + | $0 | |
| (+) Improvement Non-Homesite Value: | + | $99,200 | |
| (+) Land Homesite Value: | + | $0 | |
| (+) Land Non-Homesite Value: | + | $88,000 | |
| (+) Curr Use (HS): | + | $0 | $0 |
| (+) Curr Use (NHS): | + | $0 | $0 |
| | | -------------------------- | |
| (=) Market Value: | = | $187,200 | |
| (–) Productivity Loss: | – | $0 | |
| | | -------------------------- | |
| (=) Subtotal: | = | $187,200 | |
| (+) Senior Appraised Value: | + | $0 | |
| (+) Non-Senior Appraised Value: | + | $187,200 | |
| | | -------------------------- | |
| (=) Total Appraised Value: | = | $187,200 | |
| (–) Senior Exemption Loss: | – | $0 | |
| (–) Exemption Loss: | – | $0 | |
| | | -------------------------- | |
| (=) Taxable Value: | = | $187,200 | |
Taxing Jurisdiction
| Owner: | WEST MAIN HOLDINGS LLC | | |
| % Ownership: | 100.0000000000% | | |
| Total Value: | $187,200 | | |
| Tax Area: | 318 - 300-6-TM |
| CERFD | CURRENT EXPENSE REFUND 010 | 0.0000000000 | $187,200 | $187,200 | $0.00 | | |
| CURREXP | CURRENT EXPENSE 010 | 1.0175366760 | $187,200 | $187,200 | $190.48 | | |
| HUMNSERV | HUMAN SERVICES 119 | 0.0250000000 | $187,200 | $187,200 | $4.68 | | |
| SLDREL | SOLDIERS RELIEF 121 | 0.0155990005 | $187,200 | $187,200 | $2.92 | | |
| EMERGSER | EMS 147 | 0.3792580840 | $187,200 | $187,200 | $71.00 | | |
| EMSRFD | EMS REFUND 147 | 0.0000000000 | $187,200 | $187,200 | $0.00 | | |
| FD6EXP | FD #6 EXPENSE 693 | 0.6692985746 | $187,200 | $187,200 | $125.29 | | |
| RLBRFD | RURAL LIBRARY REFUND 623 | 0.0000000000 | $187,200 | $187,200 | $0.00 | | |
| RURALLIB | RURAL LIBRARY 623 | 0.3710609029 | $187,200 | $187,200 | $69.46 | | |
| PORTRFD | PORT REFUND 640 | 0.0000000000 | $187,200 | $187,200 | $0.00 | | |
| PORTWWGEN | PORT OF WW 640 | 0.2460186015 | $187,200 | $187,200 | $46.05 | | |
| SD300BOND | SD #300 BOND 783 | 1.8964951620 | $187,200 | $187,200 | $355.02 | | |
| SD300GEN | SD #300 GENERAL 780 | 2.1198322866 | $187,200 | $187,200 | $396.83 | | |
| ST2 | STATE SCHOOL PART 2 600 | 0.8131451643 | $187,200 | $187,200 | $152.22 | | |
| STATESCHL | STATE SCHOOL 600 | 1.5158548041 | $187,200 | $187,200 | $283.77 | | |
| STREFUND | STATE REFUND LEVY 603 | 0.0000000000 | $187,200 | $187,200 | $0.00 | | |
| COROAD | COUNTY ROAD 115 | 1.6549953990 | $187,200 | $187,200 | $309.82 | | |
| CRPRD | COUNTY ROAD REFUND 115 | 0.0000000000 | $187,200 | $187,200 | $0.00 | | |
| | Total Tax Rate: | 10.7240946555 | | | | | |
| | | | | Taxes w/Current Exemptions: | $2,007.54 | | |
| | | | | Taxes w/o Exemptions: | $2,007.54 | | |
Improvement / Building
| Improvement #1: | MANUFACTURED HOME | State Code: | 11 | 1236.0 sqft | Value: | $21,200 |
| Exterior Wall: | HARDBOARD | Heating/Cooling: | WARM & COOLED AIR | | Number of Bathrooms: | 1 | Number of Bedrooms: | 3 | | Plumbing: | 6 | Roof Covering: | GALVANIZED METAL |
|
| | Type | Description | Class CD | Sub Class CD | Year Built | Area |
| | MOBHOME | MANUFACTURD HOMES | 1 | 10 | 1973 | 1236.0 |
| | MI1 | MH SET-UP COSTS | 1 | 10 | 0 | 1.0 |
| | WDR | WOOD DECK W/ROOF | 1 | 10 | 1973 | 144.0 |
| Improvement #2: | COMMERCIAL | State Code: | 64 | 8000.0 sqft | Value: | $78,000 |
| | Type | Description | Class CD | Sub Class CD | Year Built | Area |
| | MA | Main Area | D | * | 1970 | 8000.0 |
| | SI1 | SITE IMPROVEMENT | D | * | 1970 | 2.0 |
Sketch
Property Image
Land
| 1 | RES 1 | Converted: Residential | 8.9960 | 391867.00 | 0.00 | 0.00 | 1.00 | $88,000 | $0 |
Roll Value History
| 2026 | N/A | N/A | N/A | N/A | N/A |
| 2025 | $217,000 | $88,000 | $0 | $305,000 | $305,000 |
| 2024 | $198,400 | $88,000 | $0 | $286,400 | $286,400 |
| 2023 | $99,200 | $88,000 | $0 | $187,200 | $187,200 |
| 2022 | $49,600 | $88,000 | $0 | $137,600 | $137,600 |
| 2021 | $49,600 | $88,000 | $0 | $137,600 | $137,600 |
| 2020 | $45,100 | $72,300 | $0 | $117,400 | $117,400 |
| 2019 | $45,100 | $72,300 | $0 | $117,400 | $117,400 |
| 2018 | $45,100 | $72,300 | $0 | $117,400 | $117,400 |
| 2017 | $45,100 | $72,300 | $0 | $117,400 | $117,400 |
| 2016 | $45,100 | $72,300 | $0 | $117,400 | $117,400 |
| 2015 | $45,100 | $72,300 | $0 | $117,400 | $117,400 |
| 2014 | $43,400 | $72,300 | $0 | $115,700 | $115,700 |
| 2013 | $43,400 | $72,300 | $0 | $115,700 | $115,700 |
| 2012 | $43,400 | $72,300 | $0 | $0 | $0 |
| 2011 | $43,400 | $72,300 | $0 | $0 | $0 |
| 2010 | $43,400 | $72,300 | $0 | $0 | $0 |
| 2009 | $52,000 | $66,200 | $0 | $0 | $0 |
| 2008 | $49,300 | $52,900 | $0 | $0 | $0 |
| 2007 | $49,300 | $52,900 | $0 | $0 | $0 |
Deed and Sales History
| 1 | 03/30/2023 | SWD | STATUTORY WARRANTY DEED | D & M CHEM INC | WEST MAIN HOLDINGS LLC | | | $323,500.00 | 145585 | 2023-01621 |
| 2 | 08/03/2022 | DFL | DEED IN LIEU OF FORECLOSURE | DELTA RIDGE HOLDINGS LLC | D & M CHEM INC | | | $0.00 | 144434 | 2022-06501 |
| 3 | 07/20/2022 | DFL | DEED IN LIEU OF FORECLOSURE | DELTA RIDGE HOLDINGS LLC | D & M CHEM INC | | | $0.00 | 144332 | 2022-06125 |
| 4 | 03/05/2015 | SURVEY | SURVEY | | | | | | 0 | 2015-01876 |
| 5 | 02/04/2014 | MH AFFIDAV | MOBILE HOME AFFIDAVIT | | DELTA RIDGE HOLDINGS LLC | | | $43,400.00 | 125383 | MHAFF-125383 |
| 6 | 02/04/2014 | SWD | STATUTORY WARRANTY DEED | HOLT JOSEPH C JR | DELTA RIDGE HOLDINGS LLC | | | $111,600.00 | 125382 | 2014-00875 |
| 7 | 07/29/2004 | QCD | QUIT CLAIM DEED | HOLT, LOIS K | HOLT, JOSEPH C JR | | | | 105365 | 2004-08629 |
Payout Agreement
| No payout information available.. |