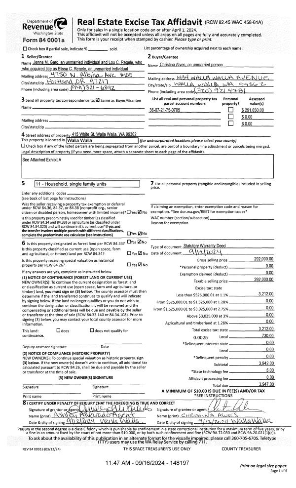
Property
Account |
| Property ID: | 13629 | Abbreviated Legal Description: | GREENS ANNEX S 50' OF LOT 1 BLK 7 PLUS ALLEY |
| Parcel Number: | 360721750705 | Agent Code: | |
| Type: | Real | | |
| Tax Area: | 1 - OL-140-F | Land Use Code | 11 |
| Open Space: | N | DFL | N |
| Historic Property: | N | Remodel Property: | N |
| Multi-Family Redevelopment: | N | | |
| Township: | 7 | Section: | 21 |
| Range: | 36 |
Location |
| Address: | 415 WHITE ST WA 99362 | Mapsco: | |
| Neighborhood: | A-SFR | Map ID: | |
| Neighborhood CD: | 513011 |
Owner |
| Name: | GARD JENNA M | Owner ID: | 63372 |
| Mailing Address: | ELISSA C REGELE 415 WHITE ST WALLA WALLA, WA 99362 | % Ownership: | 100.0000000000% |
| | | Exemptions: | |
Taxes and Assessment Details
Property Tax Information as of
02/21/2026
Click on "Statement Details" to expand or collapse a tax statement.
* Please enter a valid date ** Please enter a valid date *
Statement Details |
| | TOTAL: | $0.00 | $0.00 | $0.00 | $0.00 | $0.00 | $0.00 |
|
| | $0.00 | $0.00 | $0.00 | $0.00 | $0.00 | $0.00 |
Values
| (+) Improvement Homesite Value: | + | $0 | |
| (+) Improvement Non-Homesite Value: | + | $227,570 | |
| (+) Land Homesite Value: | + | $0 | |
| (+) Land Non-Homesite Value: | + | $64,080 | |
| (+) Curr Use (HS): | + | $0 | $0 |
| (+) Curr Use (NHS): | + | $0 | $0 |
| | | -------------------------- | |
| (=) Market Value: | = | $291,650 | |
| (–) Productivity Loss: | – | $0 | |
| | | -------------------------- | |
| (=) Subtotal: | = | $291,650 | |
| (+) Senior Appraised Value: | + | $0 | |
| (+) Non-Senior Appraised Value: | + | $291,650 | |
| | | -------------------------- | |
| (=) Total Appraised Value: | = | $291,650 | |
| (–) Senior Exemption Loss: | – | $0 | |
| (–) Exemption Loss: | – | $0 | |
| | | -------------------------- | |
| (=) Taxable Value: | = | $291,650 | |
Taxing Jurisdiction
| Owner: | GARD JENNA M | | |
| % Ownership: | 100.0000000000% | | |
| Total Value: | $291,650 | | |
| Tax Area: | 1 - OL-140-F |
| CERFD | CURRENT EXPENSE REFUND 010 | 0.0000000000 | $291,650 | $291,650 | $0.00 | | |
| CURREXP | CURRENT EXPENSE 010 | 1.0175366760 | $291,650 | $291,650 | $296.76 | | |
| HUMNSERV | HUMAN SERVICES 119 | 0.0250000000 | $291,650 | $291,650 | $7.29 | | |
| SLDREL | SOLDIERS RELIEF 121 | 0.0155990005 | $291,650 | $291,650 | $4.55 | | |
| EMERGSER | EMS 147 | 0.3792580840 | $291,650 | $291,650 | $110.61 | | |
| EMSRFD | EMS REFUND 147 | 0.0000000000 | $291,650 | $291,650 | $0.00 | | |
| PORTRFD | PORT REFUND 640 | 0.0000000000 | $291,650 | $291,650 | $0.00 | | |
| PORTWWGEN | PORT OF WW 640 | 0.2460186015 | $291,650 | $291,650 | $71.75 | | |
| SD140BOND | SD #140 BOND 764 | 0.8342371393 | $291,650 | $291,650 | $243.31 | | |
| SD140GEN | SD #140 GENERAL 760 | 2.0646500647 | $291,650 | $291,650 | $602.16 | | |
| ST2 | STATE SCHOOL PART 2 600 | 0.8131451643 | $291,650 | $291,650 | $237.15 | | |
| STATESCHL | STATE SCHOOL 600 | 1.5158548041 | $291,650 | $291,650 | $442.10 | | |
| STREFUND | STATE REFUND LEVY 603 | 0.0000000000 | $291,650 | $291,650 | $0.00 | | |
| CWWBOND | C OF WW BOND 643 | 0.2760494372 | $291,650 | $291,650 | $80.51 | | |
| CWWGEN | CITY OF WW 631 | 1.6100204973 | $291,650 | $291,650 | $469.56 | | |
| CWWRFD | CITY OF WALLA WALLA REFUND 631 | 0.0000000000 | $291,650 | $291,650 | $0.00 | | |
| | Total Tax Rate: | 8.7973694689 | | | | | |
| | | | | Taxes w/Current Exemptions: | $2,565.75 | | |
| | | | | Taxes w/o Exemptions: | $2,565.75 | | |
Improvement / Building
| Improvement #1: | RESIDENTIAL | State Code: | 11 | 887.0 sqft | Value: | $227,570 |
| Exterior Wall: | CONCRETE BLOCK | Foundation: | SLAB FOUNDATION | | Heating/Cooling: | MINI-SPLIT HP SYSTEM | Number of Bathrooms: | 1 | | Number of Bedrooms: | 2 | Plumbing: | 6 | | Roof Covering: | COMP SHINGLE |   |   |
|
| | Type | Description | Class CD | Sub Class CD | Year Built | Area |
| | MA | Main Area | 1 | 30 | 1950 | 887.0 |
| | SI1 | SITE IMPROVEMENT | 1 | 30 | 1950 | 2.5 |
| | OSP | Open | 1 | 30 | 1950 | 24.0 |
| | S1F | Single One Story Fireplace | 1 | 30 | 1950 | 1.0 |
| | CPC | COVERED CARPORT/PATIO | 1 | 30 | 1950 | 190.0 |
| | GUH | GUEST HOUSE | 1 | 30 | 2020 | 360.0 |
Sketch
Property Image
Land
| 1 | RES 1 | Converted: Residential | 0.3008 | 13104.00 | 0.00 | 0.00 | 1.00 | $64,080 | $0 |
Roll Value History
| 2026 | N/A | N/A | N/A | N/A | N/A |
| 2025 | $196,550 | $102,340 | $0 | $298,890 | $298,890 |
| 2024 | $231,240 | $102,340 | $0 | $333,580 | $333,580 |
| 2023 | $227,570 | $64,080 | $0 | $291,650 | $291,650 |
| 2022 | $216,730 | $64,080 | $0 | $280,810 | $280,810 |
| 2021 | $140,940 | $64,080 | $0 | $205,020 | $205,020 |
| 2020 | $104,400 | $64,080 | $0 | $168,480 | $168,480 |
| 2019 | $104,400 | $64,080 | $0 | $168,480 | $168,480 |
| 2018 | $87,000 | $64,080 | $0 | $151,080 | $151,080 |
| 2017 | $98,050 | $42,300 | $0 | $140,350 | $140,350 |
| 2016 | $93,380 | $42,300 | $0 | $135,680 | $135,680 |
| 2015 | $88,940 | $42,300 | $0 | $131,240 | $131,240 |
| 2014 | $84,700 | $42,300 | $0 | $127,000 | $127,000 |
| 2013 | $84,700 | $42,300 | $0 | $127,000 | $127,000 |
| 2012 | $87,300 | $42,300 | $0 | $0 | $0 |
| 2011 | $87,300 | $42,300 | $0 | $0 | $0 |
| 2010 | $81,100 | $42,300 | $0 | $0 | $0 |
| 2009 | $94,800 | $42,300 | $0 | $0 | $0 |
| 2008 | $55,600 | $42,300 | $0 | $0 | $0 |
| 2007 | $55,600 | $42,300 | $0 | $0 | $0 |
Deed and Sales History
| 1 | 09/16/2024 | SWD | STATUTORY WARRANTY DEED | GARD JENNA M | ALVES CHRISTINA | | | $292,000.00 | 148197 | 2024-05265 |
| 2 | 06/25/2018 | SWD | STATUTORY WARRANTY DEED | BURDETTE SCOTT D & KATELYN J | GARD JENNA M | | | $176,560.00 | 134991 | 2018-05088 |
| 3 | 01/11/2016 | SWD | STATUTORY WARRANTY DEED | ENZ TAMARA | BURDETTE SCOTT D & KATELYN J | | | $146,000.00 | 129494 | 2016-00218 |
| 4 | 04/15/2008 | WARRANTY D | WARRANTY DEED | CABALLERO, ISMAEL JR | ENZ, TAMARA | | | $146,000.00 | 114836 | 2008-03643 |
| 5 | 10/06/2004 | WARRANTY D | WARRANTY DEED | ADAMS, KENNETH W | CABALLERO, ISMAEL JR | | | $98,000.00 | 105894 | 2004-11551 |
| 6 | 11/02/2001 | WARRANTY D | WARRANTY DEED | | | | | $52,000.00 | 98280 | 3220-111826 |
Payout Agreement
| No payout information available.. |