Property
Account |
| Property ID: | 13619 | Abbreviated Legal Description: | WOODBURY ESTATES LOT 5 |
| Parcel Number: | 360728860005 | Agent Code: | |
| Type: | Real | | |
| Tax Area: | 6 - OL-140-F-FB | Land Use Code | 11 |
| Open Space: | N | DFL | N |
| Historic Property: | N | Remodel Property: | N |
| Multi-Family Redevelopment: | N | | |
| Township: | | Section: | |
| Range: | |
Location |
| Address: | 729 WOODBURY LN WA 99362 | Mapsco: | |
| Neighborhood: | A Res | Map ID: | |
| Neighborhood CD: | 613011 |
Owner |
| Name: | DONNELLY JENNIFER B | Owner ID: | 57352 |
| Mailing Address: | 729 WOODBURY LN WALLA WALLA, WA 99362 | % Ownership: | 100.0000000000% |
| | | Exemptions: | |
Taxes and Assessment Details
Property Tax Information as of
04/19/2026
Click on "Statement Details" to expand or collapse a tax statement.
* Please enter a valid date ** Please enter a valid date *
Statement Details |
| | TOTAL: | $0.00 | $0.00 | $0.00 | $0.00 | $0.00 | $0.00 |
|
| | $0.00 | $0.00 | $0.00 | $0.00 | $0.00 | $0.00 |
Values
| (+) Improvement Homesite Value: | + | N/A | |
| (+) Improvement Non-Homesite Value: | + | N/A | |
| (+) Land Homesite Value: | + | N/A | |
| (+) Land Non-Homesite Value: | + | N/A | Ag / Timber Use Value |
| (+) Curr Use (HS): | + | N/A | N/A |
| (+) Curr Use (NHS): | + | N/A | N/A |
| | | -------------------------- | |
| (=) Market Value: | = | N/A | |
| (–) Productivity Loss: | – | N/A | |
| | | -------------------------- | |
| (=) Subtotal: | = | N/A | |
| (+) Senior Appraised Value: | + | N/A | |
| (+) Non-Senior Appraised Value: | + | N/A | |
| | | -------------------------- | |
| (=) Total Appraised Value: | = | N/A | |
| (–) Senior Exemption Loss: | – | N/A | |
| (–) Exemption Loss: | – | N/A | |
| | | -------------------------- | |
| (=) Taxable Value: | = | N/A | |
Taxing Jurisdiction
| Owner: | DONNELLY JENNIFER B | | |
| % Ownership: | 100.0000000000% | | |
| Total Value: | N/A | | |
| Tax Area: | 6 - OL-140-F-FB |
| CERFD | CURRENT EXPENSE REFUND 010 | N/A | N/A | N/A | N/A | | |
| CURREXP | CURRENT EXPENSE 010 | N/A | N/A | N/A | N/A | | |
| HUMNSERV | HUMAN SERVICES 119 | N/A | N/A | N/A | N/A | | |
| SLDREL | SOLDIERS RELIEF 121 | N/A | N/A | N/A | N/A | | |
| EMERGSER | EMS 147 | N/A | N/A | N/A | N/A | | |
| EMSRFD | EMS REFUND 147 | N/A | N/A | N/A | N/A | | |
| PORTRFD | PORT REFUND 640 | N/A | N/A | N/A | N/A | | |
| PORTWWGEN | PORT OF WW 640 | N/A | N/A | N/A | N/A | | |
| SD140BOND | SD #140 BOND 764 | N/A | N/A | N/A | N/A | | |
| SD140GEN | SD #140 GENERAL 760 | N/A | N/A | N/A | N/A | | |
| ST2 | STATE SCHOOL PART 2 600 | N/A | N/A | N/A | N/A | | |
| STATESCHL | STATE SCHOOL 600 | N/A | N/A | N/A | N/A | | |
| STREFUND | STATE REFUND LEVY 603 | N/A | N/A | N/A | N/A | | |
| CWWBOND | C OF WW BOND 643 | N/A | N/A | N/A | N/A | | |
| CWWGEN | CITY OF WW 631 | N/A | N/A | N/A | N/A | | |
| CWWRFD | CITY OF WALLA WALLA REFUND 631 | N/A | N/A | N/A | N/A | | |
| | Total Tax Rate: | N/A | | | | | |
| | | | | Taxes w/Current Exemptions: | N/A | | |
| | | | | Taxes w/o Exemptions: | N/A | | |
Improvement / Building
| Improvement #1: | RESIDENTIAL | State Code: | 11 | 1599.0 sqft | Value: | N/A |
| Exterior Wall: | SIDING | Heating/Cooling: | HEAT PUMP | | Number of Bathrooms: | 2.5 | Number of Bedrooms: | 3 | | Plumbing: | 12 | Roof Covering: | COMP SHINGLE |
|
| | Type | Description | Class CD | Sub Class CD | Year Built | Area |
| | MA | Main Area | 2 | 35 | 2005 | 1599.0 |
| | UPFL | Upper Floor (included in main area) | 2 | 35 | 2005 | 837.0 |
| | SI1 | SITE IMPROVEMENT | 2 | 35 | 2005 | 3.0 |
| | GFP | GAS FIREPLACE | 2 | 35 | 2005 | 1.0 |
| | RPC | OPEN PORCH W/ROOF , CEILED | 2 | 35 | 2005 | 75.0 |
| | ATG | Attached Garage | 2 | 35 | 2005 | 552.0 |
| | CPC | COVERED CARPORT/PATIO | 2 | 35 | 2005 | 360.0 |
Sketch
Property Image
Land
| 1 | RES 1 | Converted: Residential | 0.2085 | 9084.00 | 0.00 | 0.00 | 1.00 | N/A | N/A |
Roll Value History
| 2026 | N/A | N/A | N/A | N/A | N/A |
| 2025 | $254,690 | $99,920 | $0 | $354,610 | $354,610 |
| 2024 | $268,270 | $85,000 | $0 | $353,270 | $353,270 |
| 2023 | $268,270 | $85,000 | $0 | $353,270 | $353,270 |
| 2022 | $243,880 | $75,000 | $0 | $318,880 | $318,880 |
| 2021 | $221,710 | $75,000 | $0 | $296,710 | $296,710 |
| 2020 | $177,370 | $75,000 | $0 | $252,370 | $252,370 |
| 2019 | $177,370 | $75,000 | $0 | $252,370 | $252,370 |
| 2018 | $191,690 | $50,000 | $0 | $241,690 | $241,690 |
| 2017 | $191,690 | $50,000 | $0 | $241,690 | $241,690 |
| 2016 | $174,260 | $50,000 | $0 | $224,260 | $224,260 |
| 2015 | $145,220 | $50,000 | $0 | $195,220 | $195,220 |
| 2014 | $138,300 | $50,000 | $0 | $188,300 | $188,300 |
| 2013 | $138,300 | $50,000 | $0 | $188,300 | $188,300 |
| 2012 | $138,300 | $50,000 | $0 | $0 | $0 |
| 2011 | $138,300 | $50,000 | $0 | $0 | $0 |
| 2010 | $138,300 | $50,000 | $0 | $0 | $0 |
| 2009 | $159,200 | $50,000 | $0 | $0 | $0 |
| 2008 | $159,200 | $50,000 | $0 | $0 | $0 |
| 2007 | $177,400 | $23,800 | $0 | $0 | $0 |
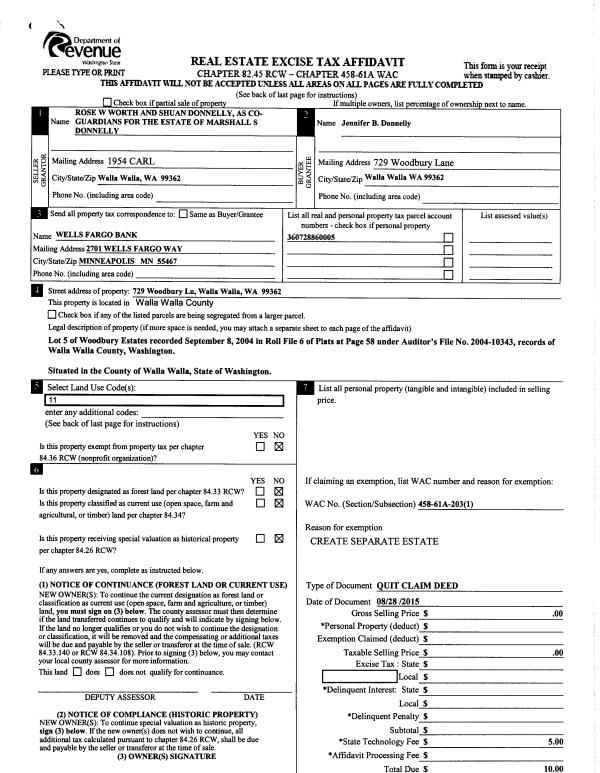
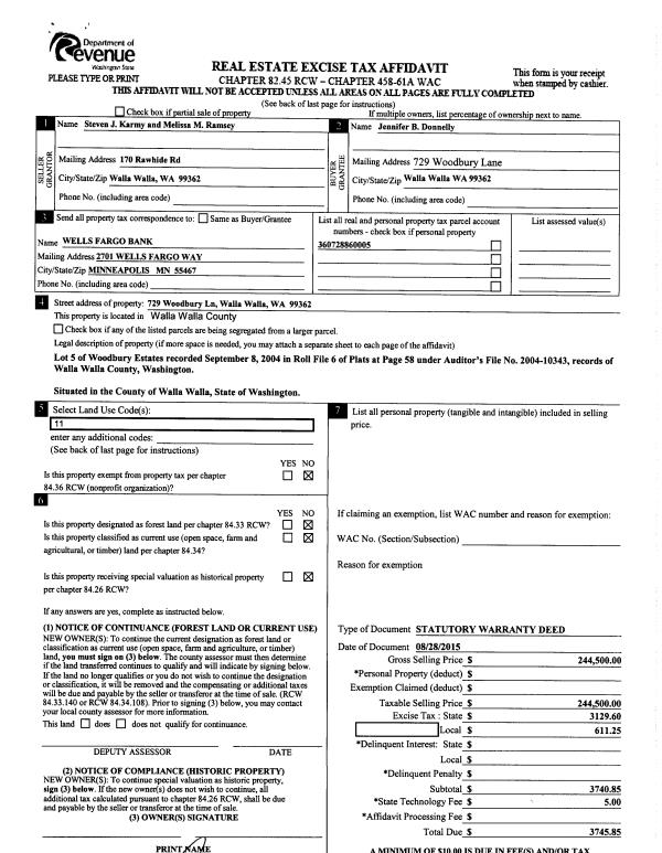
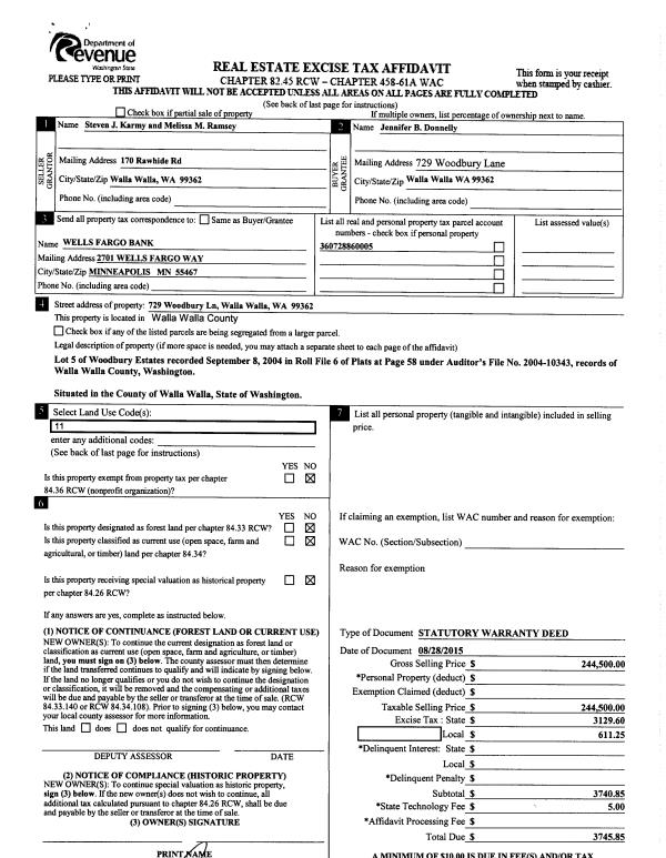
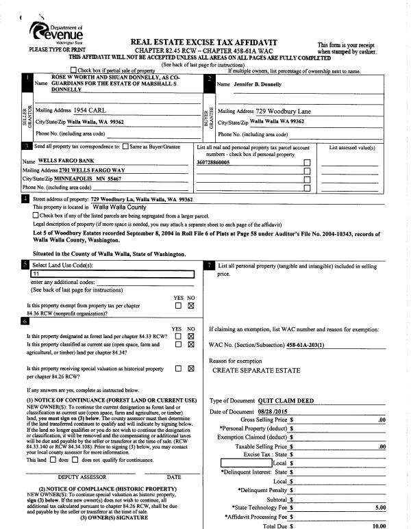
Deed and Sales History
| 1 | 09/04/2015 | QCD | QUIT CLAIM DEED | DONNELLY MARSHALL S ESTATE OF | DONNELLY JENNIFER B | | | | 128770 | 2015-07827 |
| 2 | 09/04/2015 | SWD | STATUTORY WARRANTY DEED | KARMY STEVEN J & MELISSA M RAMSEY | DONNELLY JENNIFER B | | | $244,500.00 | 128769 | 2015-07826 |
| 3 | 07/07/2005 | WARRANTY D | WARRANTY DEED | ROFF HOMES INC | KARMY, STEVEN J | | | $211,900.00 | 107901 | 2005-08247 |
| 4 | 09/24/2004 | WARRANTY D | WARRANTY DEED | GALL, GARY F | ROFF HOMES INC | | | $150,000.00 | 105796 | 2004-11075 |
|   | |
Payout Agreement
| No payout information available.. |