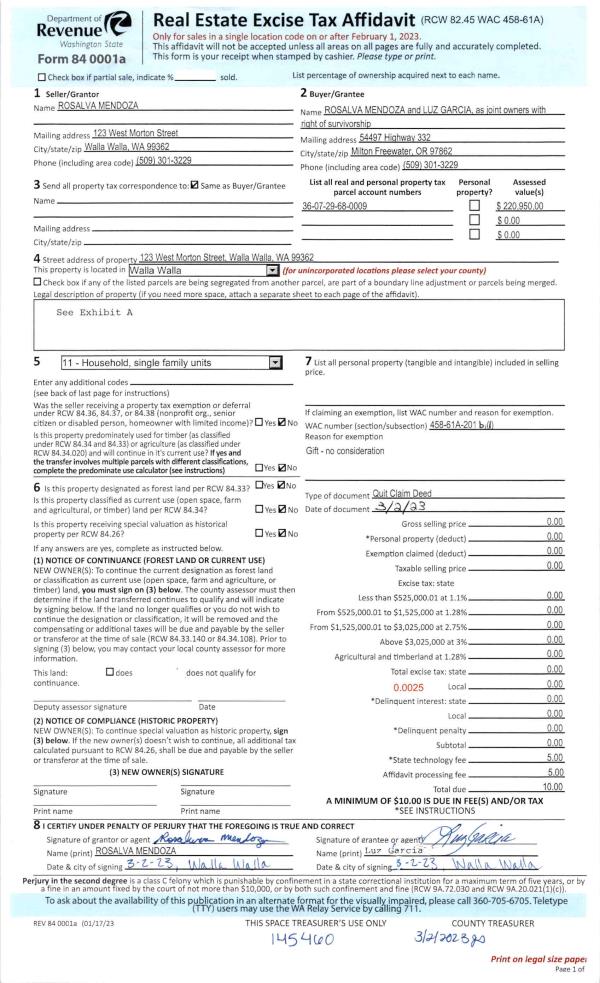
Property
Account |
| Property ID: | 13613 | Abbreviated Legal Description: | HENDERSONS N 116' OF LOT 9 |
| Parcel Number: | 360729680009 | Agent Code: | |
| Type: | Real | | |
| Tax Area: | 1 - OL-140-F | Land Use Code | 11 |
| Open Space: | N | DFL | N |
| Historic Property: | N | Remodel Property: | N |
| Multi-Family Redevelopment: | N | | |
| Township: | 7 | Section: | 29 |
| Range: | 36 |
Location |
| Address: | 123 W MORTON ST WA 99362 | Mapsco: | |
| Neighborhood: | Fair Res | Map ID: | |
| Neighborhood CD: | 612011 |
Owner |
| Name: | MENDOZA ROSALVA & LUZ GARCIA | Owner ID: | 73244 |
| Mailing Address: | 123 W MORTON ST WALLA WALLA, WA 99362 | % Ownership: | 100.0000000000% |
| | | Exemptions: | |
Taxes and Assessment Details
Values
| (+) Improvement Homesite Value: | + | $0 | |
| (+) Improvement Non-Homesite Value: | + | $177,820 | |
| (+) Land Homesite Value: | + | $0 | |
| (+) Land Non-Homesite Value: | + | $55,200 | |
| (+) Curr Use (HS): | + | $0 | $0 |
| (+) Curr Use (NHS): | + | $0 | $0 |
| | | -------------------------- | |
| (=) Market Value: | = | $233,020 | |
| (–) Productivity Loss: | – | $0 | |
| | | -------------------------- | |
| (=) Subtotal: | = | $233,020 | |
| (+) Senior Appraised Value: | + | $0 | |
| (+) Non-Senior Appraised Value: | + | $233,020 | |
| | | -------------------------- | |
| (=) Total Appraised Value: | = | $233,020 | |
| (–) Senior Exemption Loss: | – | $0 | |
| (–) Exemption Loss: | – | $0 | |
| | | -------------------------- | |
| (=) Taxable Value: | = | $233,020 | |
Taxing Jurisdiction
| Owner: | MENDOZA ROSALVA & LUZ GARCIA | | |
| % Ownership: | 100.0000000000% | | |
| Total Value: | $233,020 | | |
| Tax Area: | 1 - OL-140-F |
| CERFD | CURRENT EXPENSE REFUND 010 | 0.0000000000 | $233,020 | $233,020 | $0.00 | | |
| CURREXP | CURRENT EXPENSE 010 | 1.0175366760 | $233,020 | $233,020 | $237.11 | | |
| HUMNSERV | HUMAN SERVICES 119 | 0.0250000000 | $233,020 | $233,020 | $5.83 | | |
| SLDREL | SOLDIERS RELIEF 121 | 0.0155990005 | $233,020 | $233,020 | $3.63 | | |
| EMERGSER | EMS 147 | 0.3792580840 | $233,020 | $233,020 | $88.37 | | |
| EMSRFD | EMS REFUND 147 | 0.0000000000 | $233,020 | $233,020 | $0.00 | | |
| PORTRFD | PORT REFUND 640 | 0.0000000000 | $233,020 | $233,020 | $0.00 | | |
| PORTWWGEN | PORT OF WW 640 | 0.2460186015 | $233,020 | $233,020 | $57.33 | | |
| SD140BOND | SD #140 BOND 764 | 0.8342371393 | $233,020 | $233,020 | $194.39 | | |
| SD140GEN | SD #140 GENERAL 760 | 2.0646500647 | $233,020 | $233,020 | $481.10 | | |
| ST2 | STATE SCHOOL PART 2 600 | 0.8131451643 | $233,020 | $233,020 | $189.48 | | |
| STATESCHL | STATE SCHOOL 600 | 1.5158548041 | $233,020 | $233,020 | $353.22 | | |
| STREFUND | STATE REFUND LEVY 603 | 0.0000000000 | $233,020 | $233,020 | $0.00 | | |
| CWWBOND | C OF WW BOND 643 | 0.2760494372 | $233,020 | $233,020 | $64.33 | | |
| CWWGEN | CITY OF WW 631 | 1.6100204973 | $233,020 | $233,020 | $375.17 | | |
| CWWRFD | CITY OF WALLA WALLA REFUND 631 | 0.0000000000 | $233,020 | $233,020 | $0.00 | | |
| | Total Tax Rate: | 8.7973694689 | | | | | |
| | | | | Taxes w/Current Exemptions: | $2,049.96 | | |
| | | | | Taxes w/o Exemptions: | $2,049.96 | | |
Improvement / Building
| Improvement #1: | RESIDENTIAL | State Code: | 11 | 898.0 sqft | Value: | $177,820 |
| Exterior Wall: | PLYWOOD | Heating/Cooling: | BASEBOARD ELECTRIC | | Number of Bathrooms: | 2 | Number of Bedrooms: | 2 | | Plumbing: | 9 | Roof Covering: | COMP SHINGLE |
|
| | Type | Description | Class CD | Sub Class CD | Year Built | Area |
| | MA | Main Area | 1 | 25 | 1896 | 898.0 |
| | SI1 | SITE IMPROVEMENT | 1 | 25 | 1896 | 1.0 |
| | BASE | BASEMENT | 1 | 25 | 1896 | 100.0 |
| | DTG | Detached Garage | 1 | 25 | 1896 | 323.0 |
| | POLE | POLE UTILITY BUILDING | 1 | 25 | 2009 | 450.0 |
| | RPO | OPEN PORCH W/ROOF | 1 | 25 | 2010 | 36.0 |
| | CPCS | CARPORT/SHED OR FLAT ROOF | 1 | 25 | 2011 | 531.0 |
Sketch
Property Image
Land
| 1 | RES 1 | Converted: Residential | 0.1584 | 6899.90 | 0.00 | 0.00 | 1.00 | $55,200 | $0 |
Roll Value History
| 2026 | N/A | N/A | N/A | N/A | N/A |
| 2025 | $164,030 | $69,000 | $0 | $233,030 | $233,030 |
| 2024 | $177,820 | $55,200 | $0 | $233,020 | $233,020 |
| 2023 | $177,820 | $55,200 | $0 | $233,020 | $233,020 |
| 2022 | $177,820 | $43,130 | $0 | $220,950 | $220,950 |
| 2021 | $118,550 | $43,130 | $0 | $161,680 | $161,680 |
| 2020 | $107,770 | $43,130 | $0 | $150,900 | $150,900 |
| 2019 | $107,770 | $43,130 | $0 | $150,900 | $150,900 |
| 2018 | $87,480 | $41,400 | $0 | $128,880 | $128,880 |
| 2017 | $79,530 | $41,400 | $0 | $120,930 | $120,930 |
| 2016 | $79,530 | $41,400 | $0 | $120,930 | $120,930 |
| 2015 | $72,300 | $41,400 | $0 | $113,700 | $113,700 |
| 2014 | $72,300 | $41,400 | $0 | $113,700 | $113,700 |
| 2013 | $72,300 | $41,400 | $0 | $113,700 | $113,700 |
| 2012 | $72,300 | $41,400 | $0 | $0 | $0 |
| 2011 | $72,300 | $41,400 | $0 | $0 | $0 |
| 2010 | $69,600 | $41,400 | $0 | $0 | $0 |
| 2009 | $76,200 | $41,400 | $0 | $0 | $0 |
| 2008 | $76,200 | $41,400 | $0 | $0 | $0 |
| 2007 | $39,700 | $13,800 | $0 | $0 | $0 |
Deed and Sales History
| 1 | 03/02/2023 | QCD | QUIT CLAIM DEED | MENDOZA ROSALVA | MENDOZA ROSALVA & LUZ GARCIA | | | | 145460 | 2023-01060 |
| 2 | 01/31/2014 | QCD | QUIT CLAIM DEED | MENDOZA ROSALVA | MENDOZA ROSALVA | | | | 125368 | 2014-00818 |
| 3 | 07/24/2007 | QCD | QUIT CLAIM DEED | VELAZQUEZ, ENRIQUE H & ROSALVA | VELAZQUEZ, ROSALVA | | | | 113320 | 2007-08505 |
| 4 | 09/21/2004 | QCD | QUIT CLAIM DEED | OROZCO, SERGIO J & ROSALVA | VELAZQUEZ, ENRIQUE H & ROSALVA | | | | 105756 | 2004-10879 |
| 5 | 12/12/2003 | WARRANTY D | WARRANTY DEED | OROZCO SERGIO J & ROSALVA | MENDOZA ROSALBA | | | | 0 | 03-3-00156-7 |
| 6 | 01/27/2000 | WARRANTY D | WARRANTY DEED | | | | | $25,000.00 | 94429 | 2940-000841 |
|   | |
Payout Agreement
| No payout information available.. |