Property
Account |
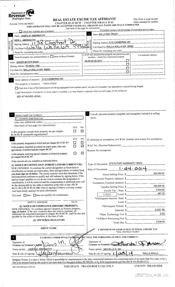
| Property ID: | 13608 | Abbreviated Legal Description: | SYDNEY HEIGHTS #1 LOT 13 & NLY PTN LOT 4 (TRACT A & B OF SURVEY) |
| Parcel Number: | 360605500015 | Agent Code: | |
| Type: | Real | | |
| Tax Area: | 101 - 140-4 | Land Use Code | 11 |
| Open Space: | N | DFL | N |
| Historic Property: | N | Remodel Property: | N |
| Multi-Family Redevelopment: | N | | |
| Township: | 6 | Section: | 5 |
| Range: | 36 |
Location |
| Address: | 3115 CANBERRA DR WA 99362 | Mapsco: | |
| Neighborhood: | G Res Rural/City Inf | Map ID: | |
| Neighborhood CD: | 614012 |
Owner |
| Name: | MA LIVING TRUST | Owner ID: | 54314 |
| Mailing Address: | 3115 CANBERRA DR WALLA WALLA, WA 99362 | % Ownership: | 100.0000000000% |
| | | Exemptions: | |
Taxes and Assessment Details
Values
| (+) Improvement Homesite Value: | + | $0 | |
| (+) Improvement Non-Homesite Value: | + | $419,140 | |
| (+) Land Homesite Value: | + | $0 | |
| (+) Land Non-Homesite Value: | + | $155,240 | |
| (+) Curr Use (HS): | + | $0 | $0 |
| (+) Curr Use (NHS): | + | $0 | $0 |
| | | -------------------------- | |
| (=) Market Value: | = | $574,380 | |
| (–) Productivity Loss: | – | $0 | |
| | | -------------------------- | |
| (=) Subtotal: | = | $574,380 | |
| (+) Senior Appraised Value: | + | $0 | |
| (+) Non-Senior Appraised Value: | + | $574,380 | |
| | | -------------------------- | |
| (=) Total Appraised Value: | = | $574,380 | |
| (–) Senior Exemption Loss: | – | $0 | |
| (–) Exemption Loss: | – | $0 | |
| | | -------------------------- | |
| (=) Taxable Value: | = | $574,380 | |
Taxing Jurisdiction
| Owner: | MA LIVING TRUST | | |
| % Ownership: | 100.0000000000% | | |
| Total Value: | $574,380 | | |
| Tax Area: | 101 - 140-4 |
| CERFD | CURRENT EXPENSE REFUND 010 | 0.0000000000 | $574,380 | $574,380 | $0.00 | | |
| CURREXP | CURRENT EXPENSE 010 | 1.0175366760 | $574,380 | $574,380 | $584.45 | | |
| HUMNSERV | HUMAN SERVICES 119 | 0.0250000000 | $574,380 | $574,380 | $14.36 | | |
| SLDREL | SOLDIERS RELIEF 121 | 0.0155990005 | $574,380 | $574,380 | $8.96 | | |
| EMERGSER | EMS 147 | 0.3792580840 | $574,380 | $574,380 | $217.84 | | |
| EMSRFD | EMS REFUND 147 | 0.0000000000 | $574,380 | $574,380 | $0.00 | | |
| FD4EXP | FD #4 EXPENSE 686 | 0.8836993059 | $574,380 | $574,380 | $507.58 | | |
| RLBRFD | RURAL LIBRARY REFUND 623 | 0.0000000000 | $574,380 | $574,380 | $0.00 | | |
| RURALLIB | RURAL LIBRARY 623 | 0.3710609029 | $574,380 | $574,380 | $213.13 | | |
| PORTRFD | PORT REFUND 640 | 0.0000000000 | $574,380 | $574,380 | $0.00 | | |
| PORTWWGEN | PORT OF WW 640 | 0.2460186015 | $574,380 | $574,380 | $141.31 | | |
| SD140BOND | SD #140 BOND 764 | 0.8342371393 | $574,380 | $574,380 | $479.17 | | |
| SD140GEN | SD #140 GENERAL 760 | 2.0646500647 | $574,380 | $574,380 | $1,185.89 | | |
| ST2 | STATE SCHOOL PART 2 600 | 0.8131451643 | $574,380 | $574,380 | $467.05 | | |
| STATESCHL | STATE SCHOOL 600 | 1.5158548041 | $574,380 | $574,380 | $870.68 | | |
| STREFUND | STATE REFUND LEVY 603 | 0.0000000000 | $574,380 | $574,380 | $0.00 | | |
| COROAD | COUNTY ROAD 115 | 1.6549953990 | $574,380 | $574,380 | $950.60 | | |
| CRPRD | COUNTY ROAD REFUND 115 | 0.0000000000 | $574,380 | $574,380 | $0.00 | | |
| | Total Tax Rate: | 9.8210551422 | | | | | |
| | | | | Taxes w/Current Exemptions: | $5,641.02 | | |
| | | | | Taxes w/o Exemptions: | $5,641.02 | | |
Improvement / Building
| Improvement #1: | RESIDENTIAL | State Code: | 11 | 1984.0 sqft | Value: | $419,140 |
| Exterior Wall: | SIDING | Foundation: | SLAB FOUNDATION | | Heating/Cooling: | WARM & COOLED AIR | Number of Bathrooms: | 2.5 | | Number of Bedrooms: | 4 | Plumbing: | 12 | | Roof Covering: | COMP SHINGLE |   |   |
|
| | Type | Description | Class CD | Sub Class CD | Year Built | Area |
| | MA | Main Area | 3 | 35 | 1972 | 1984.0 |
| | SI1 | SITE IMPROVEMENT | 3 | 35 | 1972 | 3.7 |
| | UPFL | Upper Floor (included in main area) | 3 | 35 | 1972 | 672.0 |
| | ATG | Attached Garage | 3 | 35 | 1972 | 528.0 |
| | BLW | WOOD BALCONIES | 3 | 35 | 1972 | 120.0 |
| | WOD | Wood Deck | 3 | 35 | 1972 | 140.0 |
| | S2F | Single 2S Fireplace | 1 | 35 | 1972 | 1.0 |
| | POL2 | POLE BUILDING-CONCRETE | 3 | 30 | 2008 | 1296.0 |
| | LNTD | LEAN TO DIRT FLOOR | 3 | 30 | 2008 | 132.0 |
| | LNTD | LEAN TO DIRT FLOOR | 3 | 30 | 2008 | 132.0 |
Sketch
Property Image
Land
| 1 | RES 1 | Converted: Residential | 1.4300 | 0.00 | 0.00 | 0.00 | 1.00 | $155,240 | $0 |
Roll Value History
| 2026 | N/A | N/A | N/A | N/A | N/A |
| 2025 | $425,940 | $175,380 | $0 | $601,320 | $601,320 |
| 2024 | $419,140 | $155,240 | $0 | $574,380 | $574,380 |
| 2023 | $419,140 | $155,240 | $0 | $574,380 | $574,380 |
| 2022 | $419,140 | $102,150 | $0 | $521,290 | $521,290 |
| 2021 | $391,720 | $102,150 | $0 | $493,870 | $493,870 |
| 2020 | $279,800 | $102,150 | $0 | $381,950 | $381,950 |
| 2019 | $279,800 | $102,150 | $0 | $381,950 | $381,950 |
| 2018 | $270,680 | $91,700 | $0 | $362,380 | $362,380 |
| 2017 | $270,680 | $91,700 | $0 | $362,380 | $362,380 |
| 2016 | $257,790 | $91,700 | $0 | $349,490 | $349,490 |
| 2015 | $257,790 | $91,700 | $0 | $349,490 | $349,490 |
| 2014 | $198,300 | $91,700 | $0 | $290,000 | $290,000 |
| 2013 | $198,300 | $91,700 | $0 | $290,000 | $290,000 |
| 2012 | $198,300 | $91,700 | $0 | $0 | $0 |
| 2011 | $168,300 | $121,700 | $0 | $0 | $0 |
| 2010 | $168,300 | $121,700 | $0 | $0 | $0 |
| 2009 | $200,500 | $121,700 | $0 | $0 | $0 |
| 2008 | $177,800 | $121,700 | $0 | $0 | $0 |
| 2007 | $156,300 | $46,600 | $0 | $0 | $0 |
Deed and Sales History
| 1 | 01/29/2014 | WARRANTY D | WARRANTY DEED | ABERNATHY JAMES M & KERI L | MA LIVING TRUST | | | $355,000.00 | 125337 | 2013-00688 |
| 2 | 09/15/2004 | WARRANTY D | WARRANTY DEED | CALHOON, RYAN & CHALESE | ABERNATHY, JAMES M & KERI L | | | $279,500.00 | 105706 | 2004-10620 |
| 3 | 07/02/1998 | WARRANTY D | WARRANTY DEED | | | | | $175,000.00 | 90769 | 2699-807428 |
Payout Agreement
| No payout information available.. |