Property
Account |
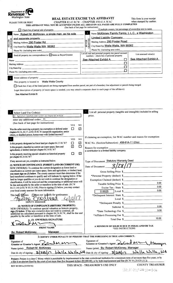
| Property ID: | 13591 | Abbreviated Legal Description: | 1-6-36 LOT 1 LESS RD; LOT 2 LESS RD |
| Parcel Number: | 360601110001 | Agent Code: | |
| Type: | Real | | |
| Tax Area: | 101 - 140-4 | Land Use Code | 83 |
| Open Space: | Y | DFL | N |
| Historic Property: | N | Remodel Property: | N |
| Multi-Family Redevelopment: | N | | |
| Township: | 6 | Section: | 1 |
| Range: | 36 |
Location |
| Address: | WA 99362 | Mapsco: | |
| Neighborhood: | 0 Farm | Map ID: | |
| Neighborhood CD: | 4240 |
Owner |
| Name: | MC KINNEY FAMILY FARMS LLC | Owner ID: | 60680 |
| Mailing Address: | 290 FOSTER RD WALLA WALLA, WA 99362 | % Ownership: | 100.0000000000% |
| | | Exemptions: | |
Taxes and Assessment Details
Property Tax Information as of
02/21/2026
Click on "Statement Details" to expand or collapse a tax statement.
* Please enter a valid date ** Please enter a valid date *
Statement Details |
| | TOTAL: | $0.00 | $0.00 | $0.00 | $0.00 | $0.00 | $0.00 |
|
| | $0.00 | $0.00 | $0.00 | $0.00 | $0.00 | $0.00 |
Values
| (+) Improvement Homesite Value: | + | $0 | |
| (+) Improvement Non-Homesite Value: | + | $0 | |
| (+) Land Homesite Value: | + | $0 | |
| (+) Land Non-Homesite Value: | + | $0 | |
| (+) Curr Use (HS): | + | $0 | $0 |
| (+) Curr Use (NHS): | + | $294,290 | $100,460 |
| | | -------------------------- | |
| (=) Market Value: | = | $294,290 | |
| (–) Productivity Loss: | – | $193,830 | |
| | | -------------------------- | |
| (=) Subtotal: | = | $100,460 | |
| (+) Senior Appraised Value: | + | $0 | |
| (+) Non-Senior Appraised Value: | + | $100,460 | |
| | | -------------------------- | |
| (=) Total Appraised Value: | = | $100,460 | |
| (–) Senior Exemption Loss: | – | $0 | |
| (–) Exemption Loss: | – | $0 | |
| | | -------------------------- | |
| (=) Taxable Value: | = | $100,460 | |
Taxing Jurisdiction
| Owner: | MC KINNEY FAMILY FARMS LLC | | |
| % Ownership: | 100.0000000000% | | |
| Total Value: | $294,290 | | |
| Tax Area: | 101 - 140-4 |
| CERFD | CURRENT EXPENSE REFUND 010 | 0.0000000000 | $100,460 | $100,460 | $0.00 | | |
| CURREXP | CURRENT EXPENSE 010 | 1.0175366760 | $100,460 | $100,460 | $102.22 | | |
| HUMNSERV | HUMAN SERVICES 119 | 0.0250000000 | $100,460 | $100,460 | $2.51 | | |
| SLDREL | SOLDIERS RELIEF 121 | 0.0155990005 | $100,460 | $100,460 | $1.57 | | |
| EMERGSER | EMS 147 | 0.3792580840 | $100,460 | $100,460 | $38.10 | | |
| EMSRFD | EMS REFUND 147 | 0.0000000000 | $100,460 | $100,460 | $0.00 | | |
| FD4EXP | FD #4 EXPENSE 686 | 0.8836993059 | $100,460 | $100,460 | $88.78 | | |
| RLBRFD | RURAL LIBRARY REFUND 623 | 0.0000000000 | $100,460 | $100,460 | $0.00 | | |
| RURALLIB | RURAL LIBRARY 623 | 0.3710609029 | $100,460 | $100,460 | $37.28 | | |
| PORTRFD | PORT REFUND 640 | 0.0000000000 | $100,460 | $100,460 | $0.00 | | |
| PORTWWGEN | PORT OF WW 640 | 0.2460186015 | $100,460 | $100,460 | $24.72 | | |
| SD140BOND | SD #140 BOND 764 | 0.8342371393 | $100,460 | $100,460 | $83.81 | | |
| SD140GEN | SD #140 GENERAL 760 | 2.0646500647 | $100,460 | $100,460 | $207.41 | | |
| ST2 | STATE SCHOOL PART 2 600 | 0.8131451643 | $100,460 | $100,460 | $81.69 | | |
| STATESCHL | STATE SCHOOL 600 | 1.5158548041 | $100,460 | $100,460 | $152.28 | | |
| STREFUND | STATE REFUND LEVY 603 | 0.0000000000 | $100,460 | $100,460 | $0.00 | | |
| COROAD | COUNTY ROAD 115 | 1.6549953990 | $100,460 | $100,460 | $166.26 | | |
| CRPRD | COUNTY ROAD REFUND 115 | 0.0000000000 | $100,460 | $100,460 | $0.00 | | |
| | Total Tax Rate: | 9.8210551422 | | | | | |
| | | | | Taxes w/Current Exemptions: | $986.63 | | |
| | | | | Taxes w/o Exemptions: | $986.63 | | |
Improvement / Building
Sketch
| No sketches available for this property. |
Property Image
Land
| 1 | WASTE | Waste | 1.0000 | 0.00 | 0.00 | 0.00 | 1.00 | $0 | $0 |
| 2 | 95-C1AN | Class 1 95 BU Annual | 77.1600 | 0.00 | 0.00 | 0.00 | 1.00 | $294,290 | $100,460 |
Roll Value History
| 2026 | N/A | N/A | N/A | N/A | N/A |
| 2025 | $0 | $308,950 | $90,430 | $90,430 | $90,430 |
| 2024 | $0 | $301,620 | $97,070 | $97,070 | $97,070 |
| 2023 | $0 | $294,290 | $100,460 | $100,460 | $100,460 |
| 2022 | $0 | $284,410 | $96,220 | $96,220 | $96,220 |
| 2021 | $0 | $269,750 | $95,600 | $95,600 | $95,600 |
| 2020 | $0 | $254,710 | $98,150 | $98,150 | $98,150 |
| 2019 | $0 | $246,680 | $100,080 | $100,080 | $100,080 |
| 2018 | $0 | $245,910 | $113,810 | $113,810 | $113,810 |
| 2017 | $0 | $243,750 | $115,740 | $115,740 | $115,740 |
| 2016 | $0 | $243,750 | $115,890 | $115,890 | $115,890 |
| 2015 | $0 | $243,750 | $102,700 | $102,700 | $102,700 |
| 2014 | $0 | $243,750 | $103,700 | $103,700 | $103,700 |
| 2013 | $0 | $232,700 | $84,000 | $84,000 | $84,000 |
| 2012 | $0 | $54,100 | $0 | $0 | $0 |
| 2011 | $0 | $51,200 | $0 | $0 | $0 |
| 2010 | $0 | $46,200 | $0 | $0 | $0 |
| 2009 | $0 | $48,000 | $0 | $0 | $0 |
| 2008 | $0 | $40,700 | $0 | $0 | $0 |
| 2007 | $0 | $64,100 | $0 | $0 | $0 |
Deed and Sales History
| 1 | 03/28/2017 | SWD | STATUTORY WARRANTY DEED | MC KINNEY ROBERT M | MC KINNEY FAMILY FARMS LLC | | | $0.00 | 132180 | 2017-02692 |
| 2 | 02/20/2013 | QCD | QUIT CLAIM DEED | MC KINNEY, KRISTY L | MC KINNEY, ROBERT M | | | $0.00 | 123475 | 2013-01525 |
| 3 | 02/01/2013 | WARRANTY D | WARRANTY DEED | MC KINNEY, KRISTY | MC KINNEY ROBERT M | | | $0.00 | 0 | CC #11-3-00020-1 |
| 4 | 09/24/2004 | WARRANTY D | WARRANTY DEED | "WINSTON, IDA DELL" | MC KINNEY ROBERT M & KRISTY L | | | | 105792 | 2004-11070 |
| 5 | 01/01/1945 | WARRANTY D | WARRANTY DEED | | | | | $0.00 | 0 | 2200-288198 |
Payout Agreement
| No payout information available.. |