Property
Account |
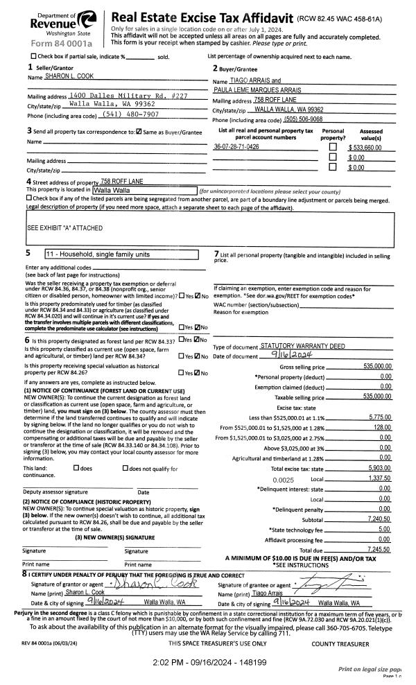
| Property ID: | 13590 | Abbreviated Legal Description: | SPRING GROVE #1 LOT 4 OF SHORT PLAT (ELY 75' OF TAX 7) BLOCK 4 |
| Parcel Number: | 360728710426 | Agent Code: | |
| Type: | Real | | |
| Tax Area: | 6 - OL-140-F-FB | Land Use Code | 11 |
| Open Space: | N | DFL | N |
| Historic Property: | N | Remodel Property: | N |
| Multi-Family Redevelopment: | N | | |
| Township: | 7 | Section: | 28 |
| Range: | 36 |
Location |
| Address: | 758 ROFF LN WA 99362 | Mapsco: | |
| Neighborhood: | A Res | Map ID: | |
| Neighborhood CD: | 613011 |
Owner |
| Name: | ARRAIS TIAGO & PAULA LEME MARQUES | Owner ID: | 75963 |
| Mailing Address: | 758 ROFF LANE WALLA WALLA, WA 99362 | % Ownership: | 100.0000000000% |
| | | Exemptions: | |
Taxes and Assessment Details
Property Tax Information as of
02/21/2026
Click on "Statement Details" to expand or collapse a tax statement.
* Please enter a valid date ** Please enter a valid date *
Statement Details |
| | TOTAL: | $0.00 | $0.00 | $0.00 | $0.00 | $0.00 | $0.00 |
|
| | $0.00 | $0.00 | $0.00 | $0.00 | $0.00 | $0.00 |
Values
| (+) Improvement Homesite Value: | + | $0 | |
| (+) Improvement Non-Homesite Value: | + | $431,220 | |
| (+) Land Homesite Value: | + | $0 | |
| (+) Land Non-Homesite Value: | + | $99,370 | |
| (+) Curr Use (HS): | + | $0 | $0 |
| (+) Curr Use (NHS): | + | $0 | $0 |
| | | -------------------------- | |
| (=) Market Value: | = | $530,590 | |
| (–) Productivity Loss: | – | $0 | |
| | | -------------------------- | |
| (=) Subtotal: | = | $530,590 | |
| (+) Senior Appraised Value: | + | $0 | |
| (+) Non-Senior Appraised Value: | + | $530,590 | |
| | | -------------------------- | |
| (=) Total Appraised Value: | = | $530,590 | |
| (–) Senior Exemption Loss: | – | $0 | |
| (–) Exemption Loss: | – | $0 | |
| | | -------------------------- | |
| (=) Taxable Value: | = | $530,590 | |
Taxing Jurisdiction
| Owner: | ARRAIS TIAGO & PAULA LEME MARQUES | | |
| % Ownership: | 100.0000000000% | | |
| Total Value: | $530,590 | | |
| Tax Area: | 6 - OL-140-F-FB |
| CERFD | CURRENT EXPENSE REFUND 010 | 0.0000000000 | $530,590 | $530,590 | $0.00 | | |
| CURREXP | CURRENT EXPENSE 010 | 0.9851088983 | $530,590 | $530,590 | $522.69 | | |
| HUMNSERV | HUMAN SERVICES 119 | 0.0250000000 | $530,590 | $530,590 | $13.26 | | |
| SLDREL | SOLDIERS RELIEF 121 | 0.0155990000 | $530,590 | $530,590 | $8.28 | | |
| EMERGSER | EMS 147 | 0.3676811629 | $530,590 | $530,590 | $195.09 | | |
| EMSRFD | EMS REFUND 147 | 0.0000000000 | $530,590 | $530,590 | $0.00 | | |
| PORTRFD | PORT REFUND 640 | 0.0000000000 | $530,590 | $530,590 | $0.00 | | |
| PORTWWGEN | PORT OF WW 640 | 0.2344301070 | $530,590 | $530,590 | $124.39 | | |
| SD140BOND | SD #140 BOND 764 | 0.8032434458 | $530,590 | $530,590 | $426.19 | | |
| SD140CAP | SD #140 CAP 762 | 0.3840034221 | $530,590 | $530,590 | $203.75 | | |
| SD140GEN | SD #140 GENERAL 760 | 2.4999999996 | $530,590 | $530,590 | $1,326.48 | | |
| ST2 | STATE SCHOOL PART 2 600 | 0.8853714103 | $530,590 | $530,590 | $469.77 | | |
| STATESCHL | STATE SCHOOL 600 | 1.6424571473 | $530,590 | $530,590 | $871.47 | | |
| STREFUND | STATE REFUND LEVY 603 | 0.0000000000 | $530,590 | $530,590 | $0.00 | | |
| CWWBOND | C OF WW BOND 643 | 0.2642134255 | $530,590 | $530,590 | $140.19 | | |
| CWWGEN | CITY OF WW 631 | 1.6110494978 | $530,590 | $530,590 | $854.81 | | |
| CWWRFD | CITY OF WALLA WALLA REFUND 631 | 0.0000000000 | $530,590 | $530,590 | $0.00 | | |
| | Total Tax Rate: | 9.7181575166 | | | | | |
| | | | | Taxes w/Current Exemptions: | $5,156.37 | | |
| | | | | Taxes w/o Exemptions: | $5,156.37 | | |
Improvement / Building
| Improvement #1: | RESIDENTIAL | State Code: | 11 | 2544.0 sqft | Value: | $431,220 |
| Exterior Wall: | HARDBOARD | Heating/Cooling: | HEAT PUMP | | Number of Bathrooms: | 2.5 | Number of Bedrooms: | 4 | | Plumbing: | 14 | Roof Covering: | COMP SHINGLE |
|
| | Type | Description | Class CD | Sub Class CD | Year Built | Area |
| | MA | Main Area | 2 | 35 | 2005 | 2544.0 |
| | UPFL | Upper Floor (included in main area) | 2 | 35 | 2005 | 1470.0 |
| | SI1 | SITE IMPROVEMENT | 2 | 35 | 2005 | 5.0 |
| | RPC | OPEN PORCH W/ROOF , CEILED | 2 | 35 | 2005 | 125.0 |
| | BIG | Built In Garage | 2 | 35 | 2005 | 484.0 |
Sketch
Property Image
Land
| 1 | RES 1 | Converted: Residential | 0.2074 | 9034.00 | 0.00 | 0.00 | 1.00 | $99,370 | $0 |
Roll Value History
| 2026 | N/A | N/A | N/A | N/A | N/A |
| 2025 | $431,220 | $99,370 | $0 | $530,590 | $530,590 |
| 2024 | $452,350 | $81,310 | $0 | $533,660 | $533,660 |
| 2023 | $452,350 | $81,310 | $0 | $533,660 | $533,660 |
| 2022 | $396,800 | $65,500 | $0 | $462,300 | $462,300 |
| 2021 | $345,040 | $65,500 | $0 | $410,540 | $410,540 |
| 2020 | $237,960 | $65,500 | $0 | $303,460 | $303,460 |
| 2019 | $237,960 | $65,500 | $0 | $303,460 | $303,460 |
| 2018 | $234,550 | $60,000 | $0 | $294,550 | $294,550 |
| 2017 | $234,550 | $60,000 | $0 | $294,550 | $294,550 |
| 2016 | $213,220 | $60,000 | $0 | $273,220 | $273,220 |
| 2015 | $203,070 | $60,000 | $0 | $263,070 | $263,070 |
| 2014 | $193,400 | $60,000 | $0 | $253,400 | $253,400 |
| 2013 | $193,400 | $60,000 | $0 | $253,400 | $253,400 |
| 2012 | $193,400 | $60,000 | $0 | $0 | $0 |
| 2011 | $193,400 | $60,000 | $0 | $0 | $0 |
| 2010 | $206,700 | $60,000 | $0 | $0 | $0 |
| 2009 | $236,300 | $60,000 | $0 | $0 | $0 |
| 2008 | $236,300 | $60,000 | $0 | $0 | $0 |
| 2007 | $230,600 | $23,800 | $0 | $0 | $0 |
Deed and Sales History
| 1 | 09/16/2024 | SWD | STATUTORY WARRANTY DEED | COOK SHARON L | ARRAIS TIAGO & PAULA LEME MARQUES | | | $535,000.00 | 148199 | 2024-05268 |
| 2 | 03/31/2010 | WARRANTY D | WARRANTY DEED | MALLARD, BARRY & GLYNIS E | COOK, SHARON L | | | $258,000.00 | 118270 | 2010-02586 |
| 3 | 05/20/2005 | WARRANTY D | WARRANTY DEED | ROFF HOMES INC | MALLARD, BARRY & GLYNIS E | | | $257,350.00 | 107532 | 2005-06094 |
| 4 | 09/09/2004 | WARRANTY D | WARRANTY DEED | "GALL, GARY F" | ROFF HOMES INC | | | $190,000.00 | 105672 | 2004-10399 |
|   | |
Payout Agreement
| No payout information available.. |