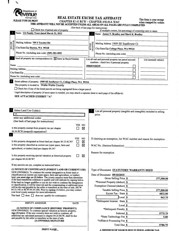
Property
Account |
| Property ID: | 1348 | Abbreviated Legal Description: | HARVEST MEADOWS LT 16 BLK 2 LESS ELY PTN |
| Parcel Number: | 350601520239 | Agent Code: | |
| Type: | Real | | |
| Tax Area: | 75 - CP 250 | Land Use Code | 11 |
| Open Space: | N | DFL | N |
| Historic Property: | N | Remodel Property: | N |
| Multi-Family Redevelopment: | N | | |
| Township: | 6 | Section: | 1 |
| Range: | 35 |
Location |
| Address: | 1909 SE SUNFLOWER CT WA 99324 | Mapsco: | |
| Neighborhood: | G SFR Rural/City Inf | Map ID: | |
| Neighborhood CD: | 114012 |
Owner |
| Name: | BRADLEY JAMES N & MARTI K | Owner ID: | 57437 |
| Mailing Address: | 1909 SE SUNFLOWER CT COLLEGE PLACE, WA 99324 | % Ownership: | 100.0000000000% |
| | | Exemptions: | |
Taxes and Assessment Details
Property Tax Information as of
02/21/2026
Click on "Statement Details" to expand or collapse a tax statement.
* Please enter a valid date ** Please enter a valid date *
Statement Details |
| | TOTAL: | $0.00 | $0.00 | $0.00 | $0.00 | $0.00 | $0.00 |
|
| | $0.00 | $0.00 | $0.00 | $0.00 | $0.00 | $0.00 |
Values
| (+) Improvement Homesite Value: | + | $0 | |
| (+) Improvement Non-Homesite Value: | + | $511,710 | |
| (+) Land Homesite Value: | + | $0 | |
| (+) Land Non-Homesite Value: | + | $85,000 | |
| (+) Curr Use (HS): | + | $0 | $0 |
| (+) Curr Use (NHS): | + | $0 | $0 |
| | | -------------------------- | |
| (=) Market Value: | = | $596,710 | |
| (–) Productivity Loss: | – | $0 | |
| | | -------------------------- | |
| (=) Subtotal: | = | $596,710 | |
| (+) Senior Appraised Value: | + | $0 | |
| (+) Non-Senior Appraised Value: | + | $596,710 | |
| | | -------------------------- | |
| (=) Total Appraised Value: | = | $596,710 | |
| (–) Senior Exemption Loss: | – | $0 | |
| (–) Exemption Loss: | – | $0 | |
| | | -------------------------- | |
| (=) Taxable Value: | = | $596,710 | |
Taxing Jurisdiction
| Owner: | BRADLEY JAMES N & MARTI K | | |
| % Ownership: | 100.0000000000% | | |
| Total Value: | $596,710 | | |
| Tax Area: | 75 - CP 250 |
| CERFD | CURRENT EXPENSE REFUND 010 | 0.0000000000 | $596,710 | $596,710 | $0.00 | | |
| CURREXP | CURRENT EXPENSE 010 | 1.0175366760 | $596,710 | $596,710 | $607.17 | | |
| HUMNSERV | HUMAN SERVICES 119 | 0.0250000000 | $596,710 | $596,710 | $14.92 | | |
| SLDREL | SOLDIERS RELIEF 121 | 0.0155990005 | $596,710 | $596,710 | $9.31 | | |
| COLLPLBOND | C OF CP BOND 644 | 0.4374241808 | $596,710 | $596,710 | $261.02 | | |
| COLLPLGEN | CITY OF CP 632 | 1.4453819216 | $596,710 | $596,710 | $862.47 | | |
| EMERGSER | EMS 147 | 0.3792580840 | $596,710 | $596,710 | $226.31 | | |
| EMSRFD | EMS REFUND 147 | 0.0000000000 | $596,710 | $596,710 | $0.00 | | |
| RURALLIB | RURAL LIBRARY 623 | 0.3710609029 | $596,710 | $596,710 | $221.42 | | |
| PORTRFD | PORT REFUND 640 | 0.0000000000 | $596,710 | $596,710 | $0.00 | | |
| PORTWWGEN | PORT OF WW 640 | 0.2460186015 | $596,710 | $596,710 | $146.80 | | |
| SD250BOND | SD #250 BOND 773 | 1.4560608159 | $596,710 | $596,710 | $868.85 | | |
| SD250GEN | SD #250 GENERAL 770 | 2.3880724087 | $596,710 | $596,710 | $1,424.99 | | |
| ST2 | STATE SCHOOL PART 2 600 | 0.8131451643 | $596,710 | $596,710 | $485.21 | | |
| STATESCHL | STATE SCHOOL 600 | 1.5158548041 | $596,710 | $596,710 | $904.53 | | |
| STREFUND | STATE REFUND LEVY 603 | 0.0000000000 | $596,710 | $596,710 | $0.00 | | |
| | Total Tax Rate: | 10.1104125603 | | | | | |
| | | | | Taxes w/Current Exemptions: | $6,033.00 | | |
| | | | | Taxes w/o Exemptions: | $6,033.00 | | |
Improvement / Building
| Improvement #1: | RESIDENTIAL | State Code: | 11 | 2673.0 sqft | Value: | $511,710 |
| Exterior Wall: | STUCCO | Heating/Cooling: | WARM & COOLED AIR | | Number of Bathrooms: | 2 | Number of Bedrooms: | 3 | | Plumbing: | 12 | Roof Covering: | COMP SHINGLE |
|
| | Type | Description | Class CD | Sub Class CD | Year Built | Area |
| | MA | Main Area | 1 | 45 | 2002 | 2673.0 |
| | SI1 | SITE IMPROVEMENT | 1 | 45 | 2002 | 3.5 |
| | ATG | Attached Garage | 1 | 45 | 2002 | 624.0 |
| | GFP | GAS FIREPLACE | 1 | 45 | 2002 | 1.0 |
| | RPC | OPEN PORCH W/ROOF , CEILED | 1 | 45 | 2002 | 62.0 |
| | RPC | OPEN PORCH W/ROOF , CEILED | 1 | 45 | 2002 | 200.0 |
Sketch
Property Image
Land
| 1 | RES 1 | Converted: Residential | 0.2342 | 10201.00 | 0.00 | 0.00 | 1.00 | $85,000 | $0 |
Roll Value History
| 2026 | N/A | N/A | N/A | N/A | N/A |
| 2025 | $460,540 | $135,000 | $0 | $595,540 | $595,540 |
| 2024 | $511,710 | $85,000 | $0 | $596,710 | $596,710 |
| 2023 | $511,710 | $85,000 | $0 | $596,710 | $596,710 |
| 2022 | $444,960 | $85,000 | $0 | $529,960 | $529,960 |
| 2021 | $306,870 | $85,000 | $0 | $391,870 | $391,870 |
| 2020 | $306,870 | $85,000 | $0 | $391,870 | $391,870 |
| 2019 | $326,870 | $65,000 | $0 | $391,870 | $391,870 |
| 2018 | $311,300 | $65,000 | $0 | $376,300 | $376,300 |
| 2017 | $311,300 | $65,000 | $0 | $376,300 | $376,300 |
| 2016 | $311,300 | $65,000 | $0 | $376,300 | $376,300 |
| 2015 | $311,300 | $65,000 | $0 | $376,300 | $376,300 |
| 2014 | $283,000 | $65,000 | $0 | $348,000 | $348,000 |
| 2013 | $283,000 | $65,000 | $0 | $348,000 | $348,000 |
| 2012 | $290,100 | $65,000 | $0 | $0 | $0 |
| 2011 | $290,100 | $65,000 | $0 | $0 | $0 |
| 2010 | $290,100 | $65,000 | $0 | $0 | $0 |
| 2009 | $308,800 | $65,000 | $0 | $0 | $0 |
| 2008 | $224,500 | $35,000 | $0 | $0 | $0 |
| 2007 | $224,500 | $35,000 | $0 | $0 | $0 |
Deed and Sales History
| 1 | 09/15/2015 | SWD | STATUTORY WARRANTY DEED | UTT FAMILY TRUST | BRADLEY JAMES N & MARTI K | | | $377,500.00 | 128824 | 2015-08097 |
| 2 | 05/07/2013 | WARRANTY D | WARRANTY DEED | UTT, THOMAS W & JUDITH | UTT FAMILY TRUST | | | $0.00 | 123710 | 2013-04553 |
| 3 | 08/30/2007 | WARRANTY D | WARRANTY DEED | UTT, THEODORE P & COLLEEN J | UTT, THOMAS W & JUDITH | | | $300,000.00 | 113627 | 2007-10257 |
| 4 | 12/12/2002 | WARRANTY D | WARRANTY DEED | UTT, THEODORE P & COLLEEN J | UTT, THEODORE P & COLLEEN J TR | | | | 100997 | 2002-14204 |
| 5 | 12/10/2001 | WARRANTY D | WARRANTY DEED | | | | | $32,000.00 | 98524 | 3240-112499 |
Payout Agreement
| No payout information available.. |