Property
Account |
| Property ID: | 13475 | Abbreviated Legal Description: | ROBERTS TAX 6 BLK 22 |
| Parcel Number: | 360729872210 | Agent Code: | |
| Type: | Real | | |
| Tax Area: | 1 - OL-140-F | Land Use Code | 11 |
| Open Space: | N | DFL | N |
| Historic Property: | N | Remodel Property: | N |
| Multi-Family Redevelopment: | N | | |
| Township: | 7 | Section: | 29 |
| Range: | 36 |
Location |
| Address: | 620 HOWARD ST WA 99362 | Mapsco: | |
| Neighborhood: | G-SFR | Map ID: | |
| Neighborhood CD: | 514011 |
Owner |
| Name: | BANKS ANGELA | Owner ID: | 73800 |
| Mailing Address: | 55 RIVERFRONT DR S TROUT CREEK, MT 59874 | % Ownership: | 100.0000000000% |
| | | Exemptions: | |
Taxes and Assessment Details
Property Tax Information as of
02/21/2026
Click on "Statement Details" to expand or collapse a tax statement.
* Please enter a valid date ** Please enter a valid date *
Statement Details |
| | TOTAL: | $0.00 | $0.00 | $0.00 | $0.00 | $0.00 | $0.00 |
|
| | $0.00 | $0.00 | $0.00 | $0.00 | $0.00 | $0.00 |
Values
| (+) Improvement Homesite Value: | + | $0 | |
| (+) Improvement Non-Homesite Value: | + | $508,870 | |
| (+) Land Homesite Value: | + | $0 | |
| (+) Land Non-Homesite Value: | + | $26,780 | |
| (+) Curr Use (HS): | + | $0 | $0 |
| (+) Curr Use (NHS): | + | $0 | $0 |
| | | -------------------------- | |
| (=) Market Value: | = | $535,650 | |
| (–) Productivity Loss: | – | $0 | |
| | | -------------------------- | |
| (=) Subtotal: | = | $535,650 | |
| (+) Senior Appraised Value: | + | $0 | |
| (+) Non-Senior Appraised Value: | + | $535,650 | |
| | | -------------------------- | |
| (=) Total Appraised Value: | = | $535,650 | |
| (–) Senior Exemption Loss: | – | $0 | |
| (–) Exemption Loss: | – | $0 | |
| | | -------------------------- | |
| (=) Taxable Value: | = | $535,650 | |
Taxing Jurisdiction
| Owner: | BANKS ANGELA | | |
| % Ownership: | 100.0000000000% | | |
| Total Value: | $535,650 | | |
| Tax Area: | 1 - OL-140-F |
| CERFD | CURRENT EXPENSE REFUND 010 | 0.0000000000 | $535,650 | $535,650 | $0.00 | | |
| CURREXP | CURRENT EXPENSE 010 | 1.0175366760 | $535,650 | $535,650 | $545.04 | | |
| HUMNSERV | HUMAN SERVICES 119 | 0.0250000000 | $535,650 | $535,650 | $13.39 | | |
| SLDREL | SOLDIERS RELIEF 121 | 0.0155990005 | $535,650 | $535,650 | $8.36 | | |
| EMERGSER | EMS 147 | 0.3792580840 | $535,650 | $535,650 | $203.15 | | |
| EMSRFD | EMS REFUND 147 | 0.0000000000 | $535,650 | $535,650 | $0.00 | | |
| PORTRFD | PORT REFUND 640 | 0.0000000000 | $535,650 | $535,650 | $0.00 | | |
| PORTWWGEN | PORT OF WW 640 | 0.2460186015 | $535,650 | $535,650 | $131.78 | | |
| SD140BOND | SD #140 BOND 764 | 0.8342371393 | $535,650 | $535,650 | $446.86 | | |
| SD140GEN | SD #140 GENERAL 760 | 2.0646500647 | $535,650 | $535,650 | $1,105.93 | | |
| ST2 | STATE SCHOOL PART 2 600 | 0.8131451643 | $535,650 | $535,650 | $435.56 | | |
| STATESCHL | STATE SCHOOL 600 | 1.5158548041 | $535,650 | $535,650 | $811.97 | | |
| STREFUND | STATE REFUND LEVY 603 | 0.0000000000 | $535,650 | $535,650 | $0.00 | | |
| CWWBOND | C OF WW BOND 643 | 0.2760494372 | $535,650 | $535,650 | $147.87 | | |
| CWWGEN | CITY OF WW 631 | 1.6100204973 | $535,650 | $535,650 | $862.41 | | |
| CWWRFD | CITY OF WALLA WALLA REFUND 631 | 0.0000000000 | $535,650 | $535,650 | $0.00 | | |
| | Total Tax Rate: | 8.7973694689 | | | | | |
| | | | | Taxes w/Current Exemptions: | $4,712.32 | | |
| | | | | Taxes w/o Exemptions: | $4,712.32 | | |
Improvement / Building
| Improvement #1: | RESIDENTIAL | State Code: | 11 | 1903.0 sqft | Value: | $508,870 |
| Exterior Wall: | SIDING | Heating/Cooling: | WARM & COOLED AIR | | Number of Bathrooms: | 2.5 | Number of Bedrooms: | 3 | | Plumbing: | 12 | Roof Covering: | COMP SHINGLE |
|
| | Type | Description | Class CD | Sub Class CD | Year Built | Area |
| | MA | Main Area | 4 | 45 | 2006 | 1903.0 |
| | UPFL | Upper Floor (included in main area) | 4 | 45 | 2006 | 950.0 |
| | SI1 | SITE IMPROVEMENT | 4 | 45 | 2006 | 3.5 |
| | GFP | GAS FIREPLACE | 4 | 45 | 2006 | 1.0 |
| | OPS | OPEN PORCH W/STEPS | 4 | 45 | 2006 | 12.0 |
| | WOD | Wood Deck | 4 | 45 | 2006 | 108.0 |
| | RCD | WOOD DECK W/ROOF, CEILED | 4 | 45 | 2006 | 181.0 |
| | BIG | Built In Garage | 4 | 45 | 2006 | 286.0 |
Sketch
Property Image
Land
| 1 | RES 1 | Converted: Residential | 0.0848 | 3694.00 | 0.00 | 0.00 | 1.00 | $26,780 | $0 |
Roll Value History
| 2026 | N/A | N/A | N/A | N/A | N/A |
| 2025 | $491,030 | $40,630 | $0 | $531,660 | $531,660 |
| 2024 | $491,030 | $40,630 | $0 | $531,660 | $531,660 |
| 2023 | $508,870 | $26,780 | $0 | $535,650 | $535,650 |
| 2022 | $475,580 | $26,780 | $0 | $502,360 | $502,360 |
| 2021 | $396,320 | $26,780 | $0 | $423,100 | $423,100 |
| 2020 | $304,860 | $26,780 | $0 | $331,640 | $331,640 |
| 2019 | $304,860 | $26,780 | $0 | $331,640 | $331,640 |
| 2018 | $304,860 | $26,780 | $0 | $331,640 | $331,640 |
| 2017 | $315,040 | $16,600 | $0 | $331,640 | $331,640 |
| 2016 | $315,040 | $16,600 | $0 | $331,640 | $331,640 |
| 2015 | $315,040 | $16,600 | $0 | $331,640 | $331,640 |
| 2014 | $286,400 | $16,600 | $0 | $303,000 | $303,000 |
| 2013 | $286,400 | $16,600 | $0 | $303,000 | $303,000 |
| 2012 | $286,400 | $16,600 | $0 | $0 | $0 |
| 2011 | $286,400 | $16,600 | $0 | $0 | $0 |
| 2010 | $272,000 | $16,600 | $0 | $0 | $0 |
| 2009 | $304,100 | $16,600 | $0 | $0 | $0 |
| 2008 | $304,100 | $16,600 | $0 | $0 | $0 |
| 2007 | $0 | $16,600 | $0 | $0 | $0 |
Deed and Sales History
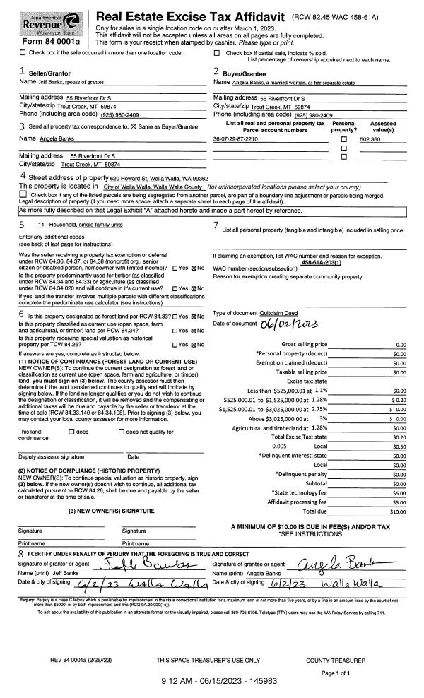
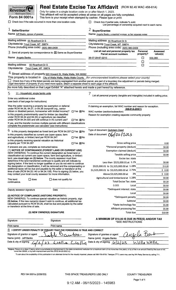
| 1 | 06/15/2023 | QCD | QUIT CLAIM DEED | BANKS JEFF | BANKS ANGELA | | | | 145983 | 2023-03287 |
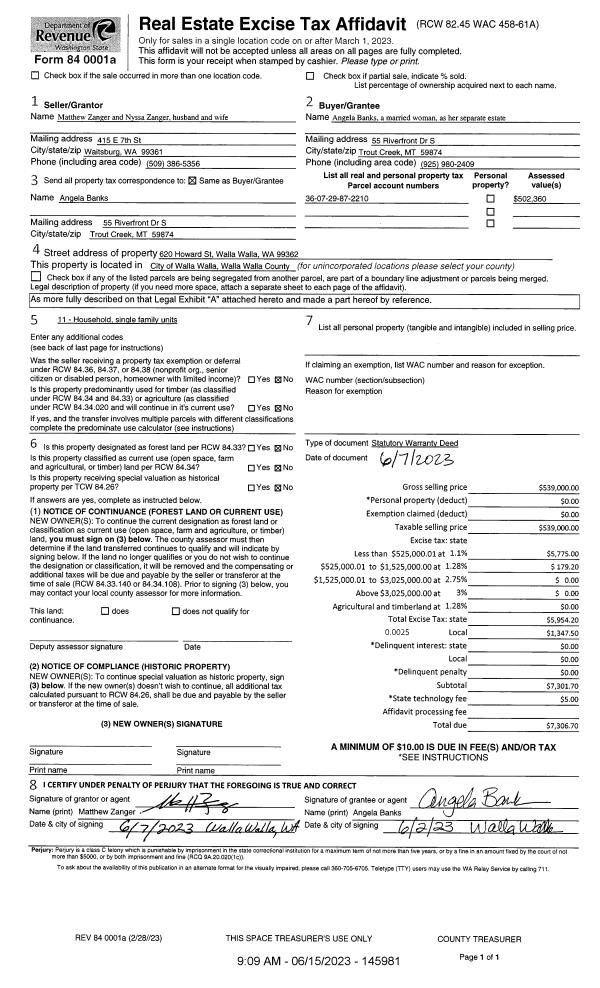
| 2 | 06/15/2023 | SWD | STATUTORY WARRANTY DEED | ZANGER MATTHEW & NYSSA | BANKS ANGELA | | | $539,000.00 | 145981 | 2023-03286 |
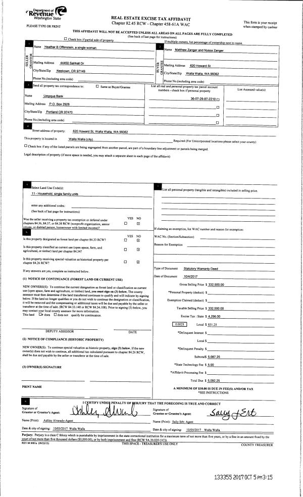
| 3 | 10/05/2017 | SWD | STATUTORY WARRANTY DEED | OFFENSTEIN HEATHER B | ZANGER MATTHEW & NYSSA | | | $332,500.00 | 133355 | 2017-07925 |
| 4 | 08/29/2008 | WARRANTY D | WARRANTY DEED | BRYAN, MICHAEL & PAMELA | OFFENSTEIN, HEATHER B | | | $325,000.00 | 115571 | 2008-08919 |
| 5 | 08/26/2005 | WARRANTY D | WARRANTY DEED | SCHNABEL, RODNEY L & WENDY K | BRYAN, MICHAEL & PAMELA | | | $42,000.00 | 108332 | 2005-10599 |
| 6 | 08/31/2004 | WARRANTY D | WARRANTY DEED | COLLINS, KIM N | SCHNABEL, RODNEY L & WENDY K | | | $37,500.00 | 105609 | 2004-10030 |
| 7 | 02/06/1998 | WARRANTY D | WARRANTY DEED | | | | | $20,300.00 | 89827 | 2629-801206 |
Payout Agreement
| No payout information available.. |