| 1 | 01/16/2024 | SWD | STATUTORY WARRANTY DEED | BROWN WESLEY R & KAREN SUE AND | GJOVIK AANEN D & CARROLL A | | | $1,225,000.00 | 147026 | 2024-00220 |
| 2 | 07/25/2023 | QCD | QUIT CLAIM DEED | BROWN WESLEY R & KAREN SUE | BROWN WESLEY R & KAREN SUE AND | | | $0.00 | 146215 | 2023-04231 |
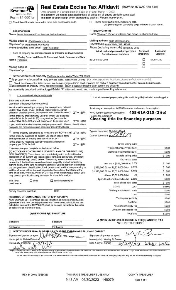
| 3 | 06/30/2023 | QCD | QUIT CLAIM DEED | BROWN WESLEY & KAREN S AND | BROWN WESLEY R & KAREN SUE | | | | 146079 | 2023-03674 |
| 4 | 12/12/2016 | QCD | QUIT CLAIM DEED | BROWN WESLEY R & KAREN SUE | BROWN WESLEY & KAREN S AND | | | $0.00 | 131588 | 2016-10238 |
| 5 | 04/13/2016 | SHORT PLAT | SHORT PLAT | | | 5 | 118 | | 0 | 2016-02656 |
| 6 | 02/22/2016 | SWD | STATUTORY WARRANTY DEED | TENNENT GARY J | BROWN WESLEY R & KAREN SUE | | | $135,000.00 | 129721 | 2016-01307 |
| 7 | 04/29/2011 | QCD | QUIT CLAIM DEED | TENNENT, WILLIAM W | TENNENT, GARY J | | | | 120070 | 2011-03449 |
| 8 | 12/31/2008 | QCD | QUIT CLAIM DEED | TENNENT, MARGARET B | TENNENT, WILLIAM W | | | | 116154 | 2008-12759 |
| 9 | 08/16/2004 | WARRANTY D | WARRANTY DEED | "TENNENT, MARGARET B" | TENNENT WILLIAM LIFE ESTATE | | | | 105502 | 2004-09430 |
| 10 | 03/08/2002 | WARRANTY D | WARRANTY DEED | TENNENT CW | TENNENT MARGARET B | | | | 0 | 105- |