Property
Account |
| Property ID: | 13447 | Abbreviated Legal Description: | 28-7-36 PARCEL A OF SHORT PLAT (WLY PTN TAX 84A) |
| Parcel Number: | 360728120104 | Agent Code: | |
| Type: | Real | | |
| Tax Area: | 1 - OL-140-F | Land Use Code | 11 |
| Open Space: | N | DFL | N |
| Historic Property: | N | Remodel Property: | N |
| Multi-Family Redevelopment: | N | | |
| Township: | 7 | Section: | 28 |
| Range: | 36 |
Location |
| Address: | 1136 WHITMAN ST WA 99362 | Mapsco: | |
| Neighborhood: | G Res | Map ID: | |
| Neighborhood CD: | 614011 |
Owner |
| Name: | BAUER ALLISON L | Owner ID: | 70729 |
| Mailing Address: | ALONSO D PEZO SALAZAR 1136 WHITMAN ST WALLA WALLA, WA 99362 | % Ownership: | 100.0000000000% |
| | | Exemptions: | |
Taxes and Assessment Details
Values
| (+) Improvement Homesite Value: | + | N/A | |
| (+) Improvement Non-Homesite Value: | + | N/A | |
| (+) Land Homesite Value: | + | N/A | |
| (+) Land Non-Homesite Value: | + | N/A | Ag / Timber Use Value |
| (+) Curr Use (HS): | + | N/A | N/A |
| (+) Curr Use (NHS): | + | N/A | N/A |
| | | -------------------------- | |
| (=) Market Value: | = | N/A | |
| (–) Productivity Loss: | – | N/A | |
| | | -------------------------- | |
| (=) Subtotal: | = | N/A | |
| (+) Senior Appraised Value: | + | N/A | |
| (+) Non-Senior Appraised Value: | + | N/A | |
| | | -------------------------- | |
| (=) Total Appraised Value: | = | N/A | |
| (–) Senior Exemption Loss: | – | N/A | |
| (–) Exemption Loss: | – | N/A | |
| | | -------------------------- | |
| (=) Taxable Value: | = | N/A | |
Taxing Jurisdiction
| Owner: | BAUER ALLISON L | | |
| % Ownership: | 100.0000000000% | | |
| Total Value: | N/A | | |
| Tax Area: | 1 - OL-140-F |
| CERFD | CURRENT EXPENSE REFUND 010 | N/A | N/A | N/A | N/A | | |
| CURREXP | CURRENT EXPENSE 010 | N/A | N/A | N/A | N/A | | |
| HUMNSERV | HUMAN SERVICES 119 | N/A | N/A | N/A | N/A | | |
| SLDREL | SOLDIERS RELIEF 121 | N/A | N/A | N/A | N/A | | |
| EMERGSER | EMS 147 | N/A | N/A | N/A | N/A | | |
| EMSRFD | EMS REFUND 147 | N/A | N/A | N/A | N/A | | |
| PORTRFD | PORT REFUND 640 | N/A | N/A | N/A | N/A | | |
| PORTWWGEN | PORT OF WW 640 | N/A | N/A | N/A | N/A | | |
| SD140BOND | SD #140 BOND 764 | N/A | N/A | N/A | N/A | | |
| SD140GEN | SD #140 GENERAL 760 | N/A | N/A | N/A | N/A | | |
| ST2 | STATE SCHOOL PART 2 600 | N/A | N/A | N/A | N/A | | |
| STATESCHL | STATE SCHOOL 600 | N/A | N/A | N/A | N/A | | |
| STREFUND | STATE REFUND LEVY 603 | N/A | N/A | N/A | N/A | | |
| CWWBOND | C OF WW BOND 643 | N/A | N/A | N/A | N/A | | |
| CWWGEN | CITY OF WW 631 | N/A | N/A | N/A | N/A | | |
| CWWRFD | CITY OF WALLA WALLA REFUND 631 | N/A | N/A | N/A | N/A | | |
| | Total Tax Rate: | N/A | | | | | |
| | | | | Taxes w/Current Exemptions: | N/A | | |
| | | | | Taxes w/o Exemptions: | N/A | | |
Improvement / Building
| Improvement #1: | RESIDENTIAL | State Code: | 11 | 1059.0 sqft | Value: | N/A |
| Exterior Wall: | METAL/STEEL | Heating/Cooling: | WARM & COOLED AIR | | Number of Bathrooms: | 2 | Number of Bedrooms: | 3 | | Plumbing: | 10 | Roof Covering: | COMP SHINGLE |
|
| | Type | Description | Class CD | Sub Class CD | Year Built | Area |
| | MA | Main Area | 1 | 30 | 1945 | 1059.0 |
| | SI1 | SITE IMPROVEMENT | 1 | 30 | 1945 | 4.0 |
| | BASE | BASEMENT | 1 | 30 | 1945 | 1059.0 |
| | BPF | BASEMENT -PARTITIONED FINISH | 1 | 30 | 1945 | 723.0 |
| | S1F | Single One Story Fireplace | 1 | 30 | 1945 | 1.0 |
| | PRC | PORCH W STEPS, ROOF,CEILED | 1 | 30 | 1945 | 29.0 |
| | DTG | Detached Garage | 1 | 30 | 1945 | 420.0 |
Sketch
Property Image
Land
| 1 | RES 1 | Converted: Residential | 0.2678 | 11665.37 | 0.00 | 0.00 | 1.00 | N/A | N/A |
Roll Value History
| 2026 | N/A | N/A | N/A | N/A | N/A |
| 2025 | $280,860 | $139,980 | $0 | $420,840 | $420,840 |
| 2024 | $304,380 | $116,650 | $0 | $421,030 | $421,030 |
| 2023 | $304,380 | $116,650 | $0 | $421,030 | $421,030 |
| 2022 | $304,380 | $96,230 | $0 | $400,610 | $400,610 |
| 2021 | $217,420 | $96,230 | $0 | $313,650 | $313,650 |
| 2020 | $197,650 | $96,230 | $0 | $293,880 | $293,880 |
| 2019 | $197,650 | $96,230 | $0 | $293,880 | $293,880 |
| 2018 | $187,510 | $48,500 | $0 | $236,010 | $236,010 |
| 2017 | $113,640 | $48,500 | $0 | $162,140 | $162,140 |
| 2016 | $94,700 | $48,500 | $0 | $143,200 | $143,200 |
| 2015 | $94,700 | $48,500 | $0 | $143,200 | $143,200 |
| 2014 | $94,700 | $48,500 | $0 | $143,200 | $143,200 |
| 2013 | $94,700 | $48,500 | $0 | $143,200 | $143,200 |
| 2012 | $94,700 | $48,500 | $0 | $0 | $0 |
| 2011 | $94,700 | $48,500 | $0 | $0 | $0 |
| 2010 | $87,900 | $48,500 | $0 | $0 | $0 |
| 2009 | $103,000 | $48,500 | $0 | $0 | $0 |
| 2008 | $103,000 | $48,500 | $0 | $0 | $0 |
| 2007 | $75,000 | $26,000 | $0 | $0 | $0 |
Deed and Sales History
| 1 | 11/17/2021 | SWD | STATUTORY WARRANTY DEED | LINCOLN PATRICK ALEXANDER | BAUER ALLISON L | | 2-PARCELS | $440,000.00 | 142936 | 2021-13954 |
|   | |
| 2 | 09/28/2017 | LOPA | LACK OF PROBATE AFFIDAVIT | JONES DONALD JOE | JONES COLEEN FAYE | | | $0.00 | 133317 | 2017-07728 |
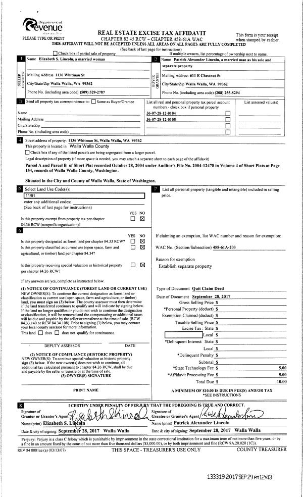
| 3 | 09/28/2017 | QCD | QUIT CLAIM DEED | LINCOLN ELIZABETH S | LINCOLN PATRICK ALEXANDER | | 2-PARCELS | | 133319 | 2017-07730 |
| 4 | 09/29/2017 | SWD | STATUTORY WARRANTY DEED | JONES COLEEN | LINCOLN PATRICK ALEXANDER | | 2-PARCELS | $310,000.00 | 133318 | 2017-07729 |
|   | |
| 5 | 01/11/2017 | DEED DEATH | DEED DEATH | | BROWN MELANIE DAWN ET AL | | | | 0 | 2017-00272 |
| 6 | | DEATH CERT | DEATH CERTIFICATE | JONES DONALD JOE | | | | | 0 | |
| 7 | 06/14/2016 | COMMUNITY | COMMUNITY PROPERTY AGREEMENT | JONES DONALD & COLEEN | JONES DONALD & COLEEN | | | | 0 | 2016-04543 |
Payout Agreement
| No payout information available.. |