Property
Account |
| Property ID: | 13426 | Abbreviated Legal Description: | WALLULA TOWNSITE LOT 12 BLK 6 |
| Parcel Number: | 310714510612 | Agent Code: | |
| Type: | Real | | |
| Tax Area: | 327 - 400-5-WI-C-M | Land Use Code | 91 |
| Open Space: | N | DFL | N |
| Historic Property: | N | Remodel Property: | N |
| Multi-Family Redevelopment: | N | | |
| Township: | 7 | Section: | 14 |
| Range: | 31 |
Location |
| Address: | 196 DOUGLAS WAY WA 99323 | Mapsco: | |
| Neighborhood: | Wallula A Contig | Map ID: | |
| Neighborhood CD: | 213897 |
Owner |
| Name: | HARMON ROBERT CHARLES & PAMELA ANN | Owner ID: | 63117 |
| Mailing Address: | PO BOX 122 WALLULA, WA 99363 | % Ownership: | 100.0000000000% |
| | | Exemptions: | |
Taxes and Assessment Details
Values
| (+) Improvement Homesite Value: | + | N/A | |
| (+) Improvement Non-Homesite Value: | + | N/A | |
| (+) Land Homesite Value: | + | N/A | |
| (+) Land Non-Homesite Value: | + | N/A | Ag / Timber Use Value |
| (+) Curr Use (HS): | + | N/A | N/A |
| (+) Curr Use (NHS): | + | N/A | N/A |
| | | -------------------------- | |
| (=) Market Value: | = | N/A | |
| (–) Productivity Loss: | – | N/A | |
| | | -------------------------- | |
| (=) Subtotal: | = | N/A | |
| (+) Senior Appraised Value: | + | N/A | |
| (+) Non-Senior Appraised Value: | + | N/A | |
| | | -------------------------- | |
| (=) Total Appraised Value: | = | N/A | |
| (–) Senior Exemption Loss: | – | N/A | |
| (–) Exemption Loss: | – | N/A | |
| | | -------------------------- | |
| (=) Taxable Value: | = | N/A | |
Taxing Jurisdiction
| Owner: | HARMON ROBERT CHARLES & PAMELA ANN | | |
| % Ownership: | 100.0000000000% | | |
| Total Value: | N/A | | |
| Tax Area: | 327 - 400-5-WI-C-M |
| CERFD | CURRENT EXPENSE REFUND 010 | N/A | N/A | N/A | N/A | | |
| CURREXP | CURRENT EXPENSE 010 | N/A | N/A | N/A | N/A | | |
| HUMNSERV | HUMAN SERVICES 119 | N/A | N/A | N/A | N/A | | |
| SLDREL | SOLDIERS RELIEF 121 | N/A | N/A | N/A | N/A | | |
| EMERGSER | EMS 147 | N/A | N/A | N/A | N/A | | |
| EMSRFD | EMS REFUND 147 | N/A | N/A | N/A | N/A | | |
| FD5EXP | FD #5 EXPENSE 689 | N/A | N/A | N/A | N/A | | |
| RLBRFD | RURAL LIBRARY REFUND 623 | N/A | N/A | N/A | N/A | | |
| RURALLIB | RURAL LIBRARY 623 | N/A | N/A | N/A | N/A | | |
| PORTRFD | PORT REFUND 640 | N/A | N/A | N/A | N/A | | |
| PORTWWGEN | PORT OF WW 640 | N/A | N/A | N/A | N/A | | |
| SD400BOND | SD #400 BOND 793 | N/A | N/A | N/A | N/A | | |
| SD400CAP | SD #400 CP 792 | N/A | N/A | N/A | N/A | | |
| SD400GEN | SD #400 GENERAL 790 | N/A | N/A | N/A | N/A | | |
| ST2 | STATE SCHOOL PART 2 600 | N/A | N/A | N/A | N/A | | |
| STATESCHL | STATE SCHOOL 600 | N/A | N/A | N/A | N/A | | |
| STREFUND | STATE REFUND LEVY 603 | N/A | N/A | N/A | N/A | | |
| COROAD | COUNTY ROAD 115 | N/A | N/A | N/A | N/A | | |
| CRPRD | COUNTY ROAD REFUND 115 | N/A | N/A | N/A | N/A | | |
| | Total Tax Rate: | N/A | | | | | |
| | | | | Taxes w/Current Exemptions: | N/A | | |
| | | | | Taxes w/o Exemptions: | N/A | | |
Improvement / Building
Sketch
| No sketches available for this property. |
Property Image
Land
| 1 | RES 1 | Converted: Residential | 0.1085 | 4725.00 | 0.00 | 0.00 | 1.00 | N/A | N/A |
Roll Value History
| 2026 | N/A | N/A | N/A | N/A | N/A |
| 2025 | $0 | $4,870 | $0 | $4,870 | $4,870 |
| 2024 | $0 | $4,870 | $0 | $4,870 | $4,870 |
| 2023 | $0 | $4,870 | $0 | $4,870 | $4,870 |
| 2022 | $0 | $4,870 | $0 | $4,870 | $4,870 |
| 2021 | $0 | $4,870 | $0 | $4,870 | $4,870 |
| 2020 | $0 | $3,300 | $0 | $3,300 | $3,300 |
| 2019 | $0 | $3,300 | $0 | $3,300 | $3,300 |
| 2018 | $0 | $3,300 | $0 | $3,300 | $3,300 |
| 2017 | $0 | $3,300 | $0 | $3,300 | $3,300 |
| 2016 | $0 | $3,300 | $0 | $3,300 | $3,300 |
| 2015 | $0 | $3,300 | $0 | $3,300 | $3,300 |
| 2014 | $0 | $3,300 | $0 | $3,300 | $3,300 |
| 2013 | $0 | $3,300 | $0 | $3,300 | $3,300 |
| 2012 | $0 | $3,300 | $0 | $0 | $0 |
| 2011 | $0 | $3,300 | $0 | $0 | $0 |
| 2010 | $0 | $3,300 | $0 | $0 | $0 |
| 2009 | $0 | $1,900 | $0 | $0 | $0 |
| 2008 | $0 | $1,900 | $0 | $0 | $0 |
| 2007 | $0 | $1,900 | $0 | $0 | $0 |
Deed and Sales History
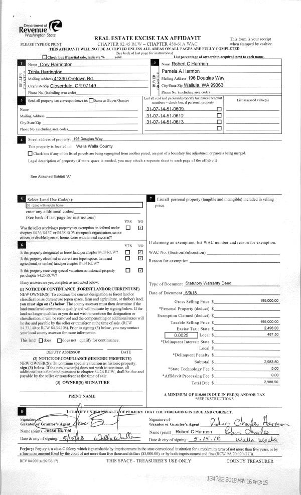
| 1 | 05/16/2018 | SWD | STATUTORY WARRANTY DEED | HARRINGTON CORY & TRINIA | HARMON ROBERT CHARLES & PAMELA ANN | | 3-PARCELS | $195,000.00 | 134722 | 2018-03873 |
|   | |
| 2 | 04/26/1999 | WARRANTY D | WARRANTY DEED | | | | | $70,000.00 | 92623 | 2839-905053 |
|   | |
Payout Agreement
| No payout information available.. |