Property
Account |
| Property ID: | 13421 | Abbreviated Legal Description: | ISAACS 2ND TAX 3 LOT 8 BLK 1 |
| Parcel Number: | 360721580108 | Agent Code: | |
| Type: | Real | | |
| Tax Area: | 1 - OL-140-F | Land Use Code | 11 |
| Open Space: | N | DFL | N |
| Historic Property: | N | Remodel Property: | N |
| Multi-Family Redevelopment: | N | | |
| Township: | 7 | Section: | 21 |
| Range: | 36 |
Location |
| Address: | 723 HOBSON ST WA 99362 | Mapsco: | |
| Neighborhood: | G-SFR | Map ID: | |
| Neighborhood CD: | 514011 |
Owner |
| Name: | BROCHIER PAMELA | Owner ID: | 73796 |
| Mailing Address: | 723 HOBSON ST WALLA WALLA, WA 99362 | % Ownership: | 100.0000000000% |
| | | Exemptions: | |
Taxes and Assessment Details
Property Tax Information as of
02/21/2026
Click on "Statement Details" to expand or collapse a tax statement.
* Please enter a valid date ** Please enter a valid date *
Statement Details |
| | TOTAL: | $0.00 | $0.00 | $0.00 | $0.00 | $0.00 | $0.00 |
|
| | $0.00 | $0.00 | $0.00 | $0.00 | $0.00 | $0.00 |
Values
| (+) Improvement Homesite Value: | + | $0 | |
| (+) Improvement Non-Homesite Value: | + | $463,280 | |
| (+) Land Homesite Value: | + | $0 | |
| (+) Land Non-Homesite Value: | + | $58,890 | |
| (+) Curr Use (HS): | + | $0 | $0 |
| (+) Curr Use (NHS): | + | $0 | $0 |
| | | -------------------------- | |
| (=) Market Value: | = | $522,170 | |
| (–) Productivity Loss: | – | $0 | |
| | | -------------------------- | |
| (=) Subtotal: | = | $522,170 | |
| (+) Senior Appraised Value: | + | $0 | |
| (+) Non-Senior Appraised Value: | + | $522,170 | |
| | | -------------------------- | |
| (=) Total Appraised Value: | = | $522,170 | |
| (–) Senior Exemption Loss: | – | $0 | |
| (–) Exemption Loss: | – | $0 | |
| | | -------------------------- | |
| (=) Taxable Value: | = | $522,170 | |
Taxing Jurisdiction
| Owner: | BROCHIER PAMELA | | |
| % Ownership: | 100.0000000000% | | |
| Total Value: | $522,170 | | |
| Tax Area: | 1 - OL-140-F |
| CERFD | CURRENT EXPENSE REFUND 010 | 0.0000000000 | $522,170 | $522,170 | $0.00 | | |
| CURREXP | CURRENT EXPENSE 010 | 1.0175366760 | $522,170 | $522,170 | $531.33 | | |
| HUMNSERV | HUMAN SERVICES 119 | 0.0250000000 | $522,170 | $522,170 | $13.05 | | |
| SLDREL | SOLDIERS RELIEF 121 | 0.0155990005 | $522,170 | $522,170 | $8.15 | | |
| EMERGSER | EMS 147 | 0.3792580840 | $522,170 | $522,170 | $198.04 | | |
| EMSRFD | EMS REFUND 147 | 0.0000000000 | $522,170 | $522,170 | $0.00 | | |
| PORTRFD | PORT REFUND 640 | 0.0000000000 | $522,170 | $522,170 | $0.00 | | |
| PORTWWGEN | PORT OF WW 640 | 0.2460186015 | $522,170 | $522,170 | $128.46 | | |
| SD140BOND | SD #140 BOND 764 | 0.8342371393 | $522,170 | $522,170 | $435.61 | | |
| SD140GEN | SD #140 GENERAL 760 | 2.0646500647 | $522,170 | $522,170 | $1,078.10 | | |
| ST2 | STATE SCHOOL PART 2 600 | 0.8131451643 | $522,170 | $522,170 | $424.60 | | |
| STATESCHL | STATE SCHOOL 600 | 1.5158548041 | $522,170 | $522,170 | $791.53 | | |
| STREFUND | STATE REFUND LEVY 603 | 0.0000000000 | $522,170 | $522,170 | $0.00 | | |
| CWWBOND | C OF WW BOND 643 | 0.2760494372 | $522,170 | $522,170 | $144.14 | | |
| CWWGEN | CITY OF WW 631 | 1.6100204973 | $522,170 | $522,170 | $840.70 | | |
| CWWRFD | CITY OF WALLA WALLA REFUND 631 | 0.0000000000 | $522,170 | $522,170 | $0.00 | | |
| | Total Tax Rate: | 8.7973694689 | | | | | |
| | | | | Taxes w/Current Exemptions: | $4,593.71 | | |
| | | | | Taxes w/o Exemptions: | $4,593.71 | | |
Improvement / Building
| Improvement #1: | RESIDENTIAL | State Code: | 11 | 1116.0 sqft | Value: | $463,280 |
| Exterior Wall: | SIDING | Heating/Cooling: | HEAT PUMP | | Number of Bathrooms: | 2 | Number of Bedrooms: | 4 | | Plumbing: | 12 | Roof Covering: | COMP SHINGLE |
|
| | Type | Description | Class CD | Sub Class CD | Year Built | Area |
| | MA | Main Area | 4 | 35 | 1945 | 1116.0 |
| | UPFL | Upper Floor (included in main area) | 4 | 35 | 1945 | 250.0 |
| | SI1 | SITE IMPROVEMENT | 4 | 35 | 1945 | 3.5 |
| | BASE | BASEMENT | 4 | 35 | 1945 | 864.0 |
| | BPF | BASEMENT -PARTITIONED FINISH | 4 | 35 | 1945 | 864.0 |
| | S1F | Single One Story Fireplace | 4 | 35 | 1945 | 1.0 |
| | RPS | PORCH W/STEPS,ROOF | 4 | 35 | 1945 | 51.0 |
| | DTG | Detached Garage | 4 | 35 | 1945 | 260.0 |
Sketch
Property Image
Land
| 1 | RES 1 | Converted: Residential | 0.1865 | 8123.00 | 0.00 | 0.00 | 1.00 | $58,890 | $0 |
Roll Value History
| 2026 | N/A | N/A | N/A | N/A | N/A |
| 2025 | $455,750 | $89,350 | $0 | $545,100 | $545,100 |
| 2024 | $455,750 | $89,350 | $0 | $545,100 | $545,100 |
| 2023 | $463,280 | $58,890 | $0 | $522,170 | $522,170 |
| 2022 | $254,790 | $58,890 | $0 | $313,680 | $313,680 |
| 2021 | $212,330 | $58,890 | $0 | $271,220 | $271,220 |
| 2020 | $169,860 | $58,890 | $0 | $228,750 | $228,750 |
| 2019 | $169,860 | $58,890 | $0 | $228,750 | $228,750 |
| 2018 | $169,860 | $58,890 | $0 | $228,750 | $228,750 |
| 2017 | $172,590 | $36,600 | $0 | $209,190 | $209,190 |
| 2016 | $156,900 | $36,600 | $0 | $193,500 | $193,500 |
| 2015 | $156,900 | $36,600 | $0 | $193,500 | $193,500 |
| 2014 | $156,900 | $36,600 | $0 | $193,500 | $193,500 |
| 2013 | $156,900 | $36,600 | $0 | $193,500 | $193,500 |
| 2012 | $155,900 | $36,600 | $0 | $0 | $0 |
| 2011 | $155,900 | $36,600 | $0 | $0 | $0 |
| 2010 | $123,800 | $36,600 | $0 | $0 | $0 |
| 2009 | $141,600 | $36,600 | $0 | $0 | $0 |
| 2008 | $141,600 | $36,600 | $0 | $0 | $0 |
| 2007 | $141,600 | $36,600 | $0 | $0 | $0 |
Deed and Sales History
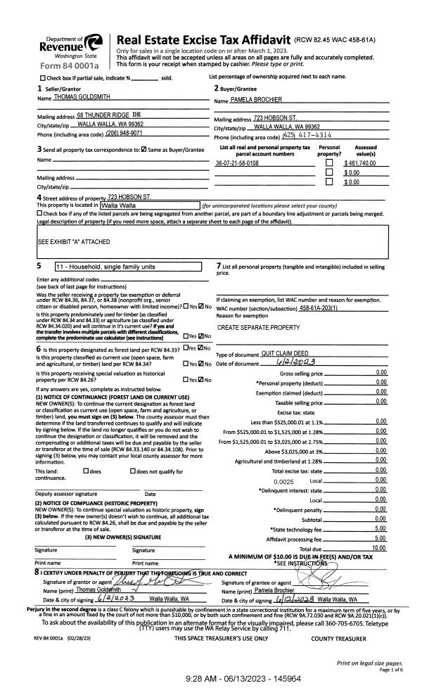
| 1 | 06/13/2023 | QCD | QUIT CLAIM DEED | GOLDSMITH THOMAS | BROCHIER PAMELA | | | | 145964 | 2023-03241 |
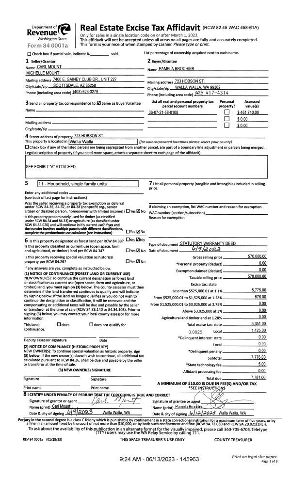
| 2 | 06/13/2023 | SWD | STATUTORY WARRANTY DEED | MOUNT CARL & MICHELLE | BROCHIER PAMELA | | | $570,000.00 | 145963 | 2023-03240 |
| 3 | 07/28/2016 | SWD | STATUTORY WARRANTY DEED | KONE ARUM & DENISE | MOUNT CARL & MICHELLE | | | $225,000.00 | 130718 | 2016-05934 |
| 4 | 10/31/2005 | WARRANTY D | WARRANTY DEED | REED, ANDREW L & AMY | KONE, ARUM & DENISE | | | $199,900.00 | 108903 | 2005-13735 |
| 5 | 08/16/2005 | WARRANTY D | WARRANTY DEED | GIEDEMAN, GERALD P & ANDREA | REED, ANDREW L & AMY | | | $155,000.00 | 108244 | 2005-10165 |
| 6 | 08/16/2004 | WARRANTY D | WARRANTY DEED | CASSETO, JON & KIMBERLY S | GIEDEMAN, GERALD P & ANDREA | | | $147,000.00 | 105498 | 2004-09422 |
| 7 | 12/10/2001 | WARRANTY D | WARRANTY DEED | | | | | $119,500.00 | 98506 | 3240-113421 |
Payout Agreement
| No payout information available.. |