Property
Account |
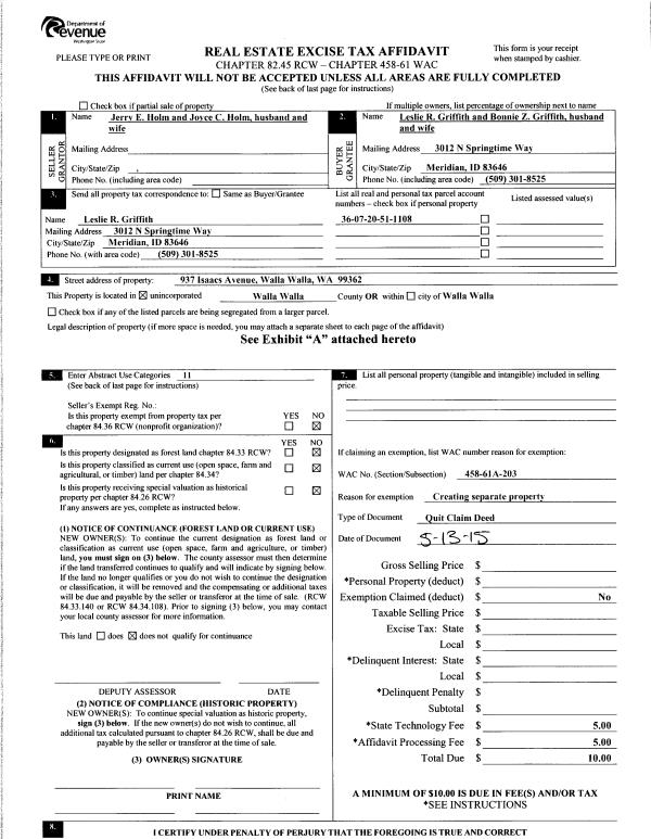
| Property ID: | 1341 | Abbreviated Legal Description: | GREEN PARK TAX 4 LT 7 BLK 11 & LT 8 BLK 11 LESS TRI TRACT |
| Parcel Number: | 360720511108 | Agent Code: | |
| Type: | Real | | |
| Tax Area: | 1 - OL-140-F | Land Use Code | 11 |
| Open Space: | N | DFL | N |
| Historic Property: | N | Remodel Property: | N |
| Multi-Family Redevelopment: | N | | |
| Township: | 7 | Section: | 20 |
| Range: | 36 |
Location |
| Address: | 937 ISAACS AVE WA 99362 | Mapsco: | |
| Neighborhood: | G-SFR | Map ID: | |
| Neighborhood CD: | 514011 |
Owner |
| Name: | GRIFFITH LESLIE R & BONNIE Z | Owner ID: | 43857 |
| Mailing Address: | 3012 N SPRINGTIME WAY MERIDIAN, ID 83646 | % Ownership: | 100.0000000000% |
| | | Exemptions: | |
Taxes and Assessment Details
Property Tax Information as of
02/21/2026
Click on "Statement Details" to expand or collapse a tax statement.
* Please enter a valid date ** Please enter a valid date *
Statement Details |
| | TOTAL: | $0.00 | $0.00 | $0.00 | $0.00 | $0.00 | $0.00 |
|
| | $0.00 | $0.00 | $0.00 | $0.00 | $0.00 | $0.00 |
Values
| (+) Improvement Homesite Value: | + | $0 | |
| (+) Improvement Non-Homesite Value: | + | $305,580 | |
| (+) Land Homesite Value: | + | $0 | |
| (+) Land Non-Homesite Value: | + | $76,590 | |
| (+) Curr Use (HS): | + | $0 | $0 |
| (+) Curr Use (NHS): | + | $0 | $0 |
| | | -------------------------- | |
| (=) Market Value: | = | $382,170 | |
| (–) Productivity Loss: | – | $0 | |
| | | -------------------------- | |
| (=) Subtotal: | = | $382,170 | |
| (+) Senior Appraised Value: | + | $0 | |
| (+) Non-Senior Appraised Value: | + | $382,170 | |
| | | -------------------------- | |
| (=) Total Appraised Value: | = | $382,170 | |
| (–) Senior Exemption Loss: | – | $0 | |
| (–) Exemption Loss: | – | $0 | |
| | | -------------------------- | |
| (=) Taxable Value: | = | $382,170 | |
Taxing Jurisdiction
| Owner: | GRIFFITH LESLIE R & BONNIE Z | | |
| % Ownership: | 100.0000000000% | | |
| Total Value: | $382,170 | | |
| Tax Area: | 1 - OL-140-F |
| CERFD | CURRENT EXPENSE REFUND 010 | 0.0000000000 | $382,170 | $382,170 | $0.00 | | |
| CURREXP | CURRENT EXPENSE 010 | 1.0175366760 | $382,170 | $382,170 | $388.87 | | |
| HUMNSERV | HUMAN SERVICES 119 | 0.0250000000 | $382,170 | $382,170 | $9.55 | | |
| SLDREL | SOLDIERS RELIEF 121 | 0.0155990005 | $382,170 | $382,170 | $5.96 | | |
| EMERGSER | EMS 147 | 0.3792580840 | $382,170 | $382,170 | $144.94 | | |
| EMSRFD | EMS REFUND 147 | 0.0000000000 | $382,170 | $382,170 | $0.00 | | |
| PORTRFD | PORT REFUND 640 | 0.0000000000 | $382,170 | $382,170 | $0.00 | | |
| PORTWWGEN | PORT OF WW 640 | 0.2460186015 | $382,170 | $382,170 | $94.02 | | |
| SD140BOND | SD #140 BOND 764 | 0.8342371393 | $382,170 | $382,170 | $318.82 | | |
| SD140GEN | SD #140 GENERAL 760 | 2.0646500647 | $382,170 | $382,170 | $789.05 | | |
| ST2 | STATE SCHOOL PART 2 600 | 0.8131451643 | $382,170 | $382,170 | $310.76 | | |
| STATESCHL | STATE SCHOOL 600 | 1.5158548041 | $382,170 | $382,170 | $579.31 | | |
| STREFUND | STATE REFUND LEVY 603 | 0.0000000000 | $382,170 | $382,170 | $0.00 | | |
| CWWBOND | C OF WW BOND 643 | 0.2760494372 | $382,170 | $382,170 | $105.50 | | |
| CWWGEN | CITY OF WW 631 | 1.6100204973 | $382,170 | $382,170 | $615.30 | | |
| CWWRFD | CITY OF WALLA WALLA REFUND 631 | 0.0000000000 | $382,170 | $382,170 | $0.00 | | |
| | Total Tax Rate: | 8.7973694689 | | | | | |
| | | | | Taxes w/Current Exemptions: | $3,362.08 | | |
| | | | | Taxes w/o Exemptions: | $3,362.08 | | |
Improvement / Building
| Improvement #1: | RESIDENTIAL | State Code: | 11 | 1426.0 sqft | Value: | $305,580 |
| Exterior Wall: | STUCCO | Heating/Cooling: | WARM & COOLED AIR | | Number of Bathrooms: | 1 | Number of Bedrooms: | 3 | | Plumbing: | 7 | Roof Covering: | COMP SHINGLE |
|
| | Type | Description | Class CD | Sub Class CD | Year Built | Area |
| | MA | Main Area | 1 | 30 | 1925 | 1426.0 |
| | BNV | BUILDING NO VALUE | 1 | 30 | 0 | 504.0 |
| | RCD | WOOD DECK W/ROOF, CEILED | 1 | 30 | 0 | 216.0 |
| | SI1 | SITE IMPROVEMENT | 1 | 30 | 0 | 1.0 |
| | BASE | BASEMENT | 1 | 30 | 1925 | 1070.0 |
| | OPS | OPEN PORCH W/STEPS | 1 | | 1925 | 20.0 |
| | S1F | Single One Story Fireplace | 1 | | 1925 | 1.0 |
Sketch
Property Image
Land
| 1 | RES 1 | Converted: Residential | 0.3960 | 17250.00 | 0.00 | 0.00 | 1.00 | $76,590 | $0 |
Roll Value History
| 2026 | N/A | N/A | N/A | N/A | N/A |
| 2025 | $262,230 | $136,450 | $0 | $398,680 | $398,680 |
| 2024 | $262,230 | $136,450 | $0 | $398,680 | $398,680 |
| 2023 | $305,580 | $76,590 | $0 | $382,170 | $382,170 |
| 2022 | $277,800 | $76,590 | $0 | $354,390 | $354,390 |
| 2021 | $213,690 | $76,590 | $0 | $290,280 | $290,280 |
| 2020 | $152,640 | $76,590 | $0 | $229,230 | $229,230 |
| 2019 | $152,640 | $76,590 | $0 | $229,230 | $229,230 |
| 2018 | $122,110 | $76,590 | $0 | $198,700 | $198,700 |
| 2017 | $123,860 | $49,400 | $0 | $173,260 | $173,260 |
| 2016 | $112,600 | $49,400 | $0 | $162,000 | $162,000 |
| 2015 | $93,830 | $49,400 | $0 | $143,230 | $143,230 |
| 2014 | $85,300 | $49,400 | $0 | $134,700 | $134,700 |
| 2013 | $85,300 | $49,400 | $0 | $134,700 | $134,700 |
| 2012 | $82,100 | $49,400 | $0 | $0 | $0 |
| 2011 | $82,100 | $49,400 | $0 | $0 | $0 |
| 2010 | $82,100 | $49,400 | $0 | $0 | $0 |
| 2009 | $96,700 | $49,400 | $0 | $0 | $0 |
| 2008 | $62,800 | $45,400 | $0 | $0 | $0 |
| 2007 | $62,800 | $45,400 | $0 | $0 | $0 |
Deed and Sales History
| 1 | 05/13/2015 | QCD | QUIT CLAIM DEED | HOLM JERRY E & JOYCE C | GRIFFITH LESLIE R & BONNIE Z | | | | 128010 | 2015-04251 |
| 2 | 07/27/2000 | WARRANTY D | WARRANTY DEED | | | | | $77,000.00 | 95515 | 3010-007573 |
Payout Agreement
| No payout information available.. |