Property
Account |
| Property ID: | 13397 | Abbreviated Legal Description: | DIXIE LOT 4 BLK 21 |
| Parcel Number: | 370826512104 | Agent Code: | |
| Type: | Real | | |
| Tax Area: | 310 - 101-8 | Land Use Code | 11 |
| Open Space: | N | DFL | N |
| Historic Property: | N | Remodel Property: | N |
| Multi-Family Redevelopment: | N | | |
| Township: | 8 | Section: | 26 |
| Range: | 37 |
Location |
| Address: | 10188 E HIGHWAY 12 WA 99329 | Mapsco: | |
| Neighborhood: | Cycle 4 Dixie (SF) | Map ID: | |
| Neighborhood CD: | 413511 |
Owner |
| Name: | JACOB JORDAN & AMANDA | Owner ID: | 62031 |
| Mailing Address: | PO BOX 208 DIXIE, WA 99329 | % Ownership: | 100.0000000000% |
| | | Exemptions: | |
Taxes and Assessment Details
Values
| (+) Improvement Homesite Value: | + | $0 | |
| (+) Improvement Non-Homesite Value: | + | $214,240 | |
| (+) Land Homesite Value: | + | $0 | |
| (+) Land Non-Homesite Value: | + | $15,000 | |
| (+) Curr Use (HS): | + | $0 | $0 |
| (+) Curr Use (NHS): | + | $0 | $0 |
| | | -------------------------- | |
| (=) Market Value: | = | $229,240 | |
| (–) Productivity Loss: | – | $0 | |
| | | -------------------------- | |
| (=) Subtotal: | = | $229,240 | |
| (+) Senior Appraised Value: | + | $0 | |
| (+) Non-Senior Appraised Value: | + | $229,240 | |
| | | -------------------------- | |
| (=) Total Appraised Value: | = | $229,240 | |
| (–) Senior Exemption Loss: | – | $0 | |
| (–) Exemption Loss: | – | $0 | |
| | | -------------------------- | |
| (=) Taxable Value: | = | $229,240 | |
Taxing Jurisdiction
| Owner: | JACOB JORDAN & AMANDA | | |
| % Ownership: | 100.0000000000% | | |
| Total Value: | $229,240 | | |
| Tax Area: | 310 - 101-8 |
| CERFD | CURRENT EXPENSE REFUND 010 | 0.0000000000 | $229,240 | $229,240 | $0.00 | | |
| CURREXP | CURRENT EXPENSE 010 | 1.0175366760 | $229,240 | $229,240 | $233.26 | | |
| HUMNSERV | HUMAN SERVICES 119 | 0.0250000000 | $229,240 | $229,240 | $5.73 | | |
| SLDREL | SOLDIERS RELIEF 121 | 0.0155990005 | $229,240 | $229,240 | $3.58 | | |
| EMERGSER | EMS 147 | 0.3792580840 | $229,240 | $229,240 | $86.94 | | |
| EMSRFD | EMS REFUND 147 | 0.0000000000 | $229,240 | $229,240 | $0.00 | | |
| FD8EXP | FD #8 EXPENSE 697 | 0.6647992540 | $229,240 | $229,240 | $152.40 | | |
| RLBRFD | RURAL LIBRARY REFUND 623 | 0.0000000000 | $229,240 | $229,240 | $0.00 | | |
| RURALLIB | RURAL LIBRARY 623 | 0.3710609029 | $229,240 | $229,240 | $85.06 | | |
| PORTRFD | PORT REFUND 640 | 0.0000000000 | $229,240 | $229,240 | $0.00 | | |
| PORTWWGEN | PORT OF WW 640 | 0.2460186015 | $229,240 | $229,240 | $56.40 | | |
| SD101CAP | SD #101 CAP 752 | 0.5894423472 | $229,240 | $229,240 | $135.12 | | |
| SD101GEN | SD #101 GENERAL 750 | 0.7455117868 | $229,240 | $229,240 | $170.90 | | |
| ST2 | STATE SCHOOL PART 2 600 | 0.8131451643 | $229,240 | $229,240 | $186.41 | | |
| STATESCHL | STATE SCHOOL 600 | 1.5158548041 | $229,240 | $229,240 | $347.49 | | |
| STREFUND | STATE REFUND LEVY 603 | 0.0000000000 | $229,240 | $229,240 | $0.00 | | |
| COROAD | COUNTY ROAD 115 | 1.6549953990 | $229,240 | $229,240 | $379.39 | | |
| CRPRD | COUNTY ROAD REFUND 115 | 0.0000000000 | $229,240 | $229,240 | $0.00 | | |
| | Total Tax Rate: | 8.0382220203 | | | | | |
| | | | | Taxes w/Current Exemptions: | $1,842.68 | | |
| | | | | Taxes w/o Exemptions: | $1,842.68 | | |
Improvement / Building
| Improvement #1: | RESIDENTIAL | State Code: | 11 | 1552.0 sqft | Value: | $214,240 |
| Exterior Wall: | SIDING | Heating/Cooling: | WARM & COOLED AIR | | Number of Bathrooms: | 1 | Number of Bedrooms: | 3 | | Plumbing: | 6 | Roof Covering: | COMP SHINGLE |
|
| | Type | Description | Class CD | Sub Class CD | Year Built | Area |
| | MA | Main Area | 4 | 25 | 1900 | 1552.0 |
| | SI1 | SITE IMPROVEMENT | 4 | 25 | 1900 | 1.0 |
| | UPFL | Upper Floor (included in main area) | 4 | 25 | 1900 | 562.0 |
| | RPO | OPEN PORCH W/ROOF | 4 | 25 | 1900 | 132.0 |
Sketch
Property Image
Land
| 1 | RES 1 | Converted: Residential | 0.1148 | 5000.00 | 0.00 | 0.00 | 1.00 | $15,000 | $0 |
Roll Value History
| 2026 | N/A | N/A | N/A | N/A | N/A |
| 2025 | $214,240 | $15,000 | $0 | $229,240 | $229,240 |
| 2024 | $214,240 | $15,000 | $0 | $229,240 | $229,240 |
| 2023 | $214,240 | $15,000 | $0 | $229,240 | $229,240 |
| 2022 | $194,860 | $12,500 | $0 | $207,360 | $207,360 |
| 2021 | $139,180 | $12,500 | $0 | $151,680 | $151,680 |
| 2020 | $121,030 | $12,500 | $0 | $133,530 | $133,530 |
| 2019 | $121,030 | $12,500 | $0 | $133,530 | $133,530 |
| 2018 | $115,270 | $12,500 | $0 | $127,770 | $127,770 |
| 2017 | $88,670 | $12,500 | $0 | $101,170 | $101,170 |
| 2016 | $48,290 | $12,500 | $0 | $60,790 | $60,790 |
| 2015 | $48,290 | $12,500 | $0 | $60,790 | $60,790 |
| 2014 | $43,900 | $12,500 | $0 | $56,400 | $56,400 |
| 2013 | $43,900 | $12,500 | $0 | $56,400 | $56,400 |
| 2012 | $43,900 | $12,500 | $0 | $0 | $0 |
| 2011 | $34,600 | $12,500 | $0 | $0 | $0 |
| 2010 | $34,600 | $12,500 | $0 | $0 | $0 |
| 2009 | $40,300 | $6,800 | $0 | $0 | $0 |
| 2008 | $40,300 | $6,800 | $0 | $0 | $0 |
| 2007 | $40,300 | $6,800 | $0 | $0 | $0 |
Deed and Sales History
| 1 | 12/04/2023 | SURVEY | SURVEY | | | | | | 0 | 2023-07011 |
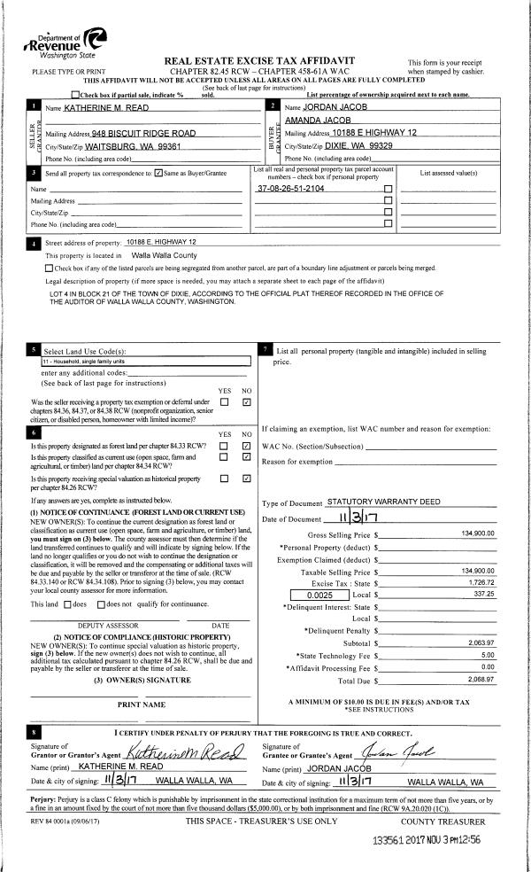
| 2 | 11/03/2017 | SWD | STATUTORY WARRANTY DEED | READ KATHERINE M | JACOB JORDAN & AMANDA | | | $134,900.00 | 133561 | 2017-08869 |
| 3 | 01/26/2007 | WARRANTY D | WARRANTY DEED | GOODWIN, JOAN R | READ, KATHERINE M | | | | 94032 | 2007-01039 |
| 4 | 11/17/1999 | WARRANTY D | WARRANTY DEED | | | | | $45,000.00 | 94032 | 2929-913103 |
Payout Agreement
| No payout information available.. |