Property
Account |
| Property ID: | 13392 | Abbreviated Legal Description: | DIXIE LOTS 7 AND 8 BLK 15 |
| Parcel Number: | 370826511507 | Agent Code: | |
| Type: | Real | | |
| Tax Area: | 310 - 101-8 | Land Use Code | 11 |
| Open Space: | N | DFL | N |
| Historic Property: | N | Remodel Property: | N |
| Multi-Family Redevelopment: | N | | |
| Township: | 8 | Section: | 26 |
| Range: | 37 |
Location |
| Address: | 10241 E HIGHWAY 12 WA 99329 | Mapsco: | |
| Neighborhood: | Cycle 4 Dixie (SF) | Map ID: | |
| Neighborhood CD: | 413511 |
Owner |
| Name: | HALLOWELL DANIEL & CONNIE | Owner ID: | 56146 |
| Mailing Address: | 225 WOODLAND AVE WALLA WALLA, WA 99362 | % Ownership: | 100.0000000000% |
| | | Exemptions: | |
Taxes and Assessment Details
Values
| (+) Improvement Homesite Value: | + | $0 | |
| (+) Improvement Non-Homesite Value: | + | $90,180 | |
| (+) Land Homesite Value: | + | $0 | |
| (+) Land Non-Homesite Value: | + | $30,000 | |
| (+) Curr Use (HS): | + | $0 | $0 |
| (+) Curr Use (NHS): | + | $0 | $0 |
| | | -------------------------- | |
| (=) Market Value: | = | $120,180 | |
| (–) Productivity Loss: | – | $0 | |
| | | -------------------------- | |
| (=) Subtotal: | = | $120,180 | |
| (+) Senior Appraised Value: | + | $0 | |
| (+) Non-Senior Appraised Value: | + | $120,180 | |
| | | -------------------------- | |
| (=) Total Appraised Value: | = | $120,180 | |
| (–) Senior Exemption Loss: | – | $0 | |
| (–) Exemption Loss: | – | $0 | |
| | | -------------------------- | |
| (=) Taxable Value: | = | $120,180 | |
Taxing Jurisdiction
| Owner: | HALLOWELL DANIEL & CONNIE | | |
| % Ownership: | 100.0000000000% | | |
| Total Value: | $120,180 | | |
| Tax Area: | 310 - 101-8 |
| CERFD | CURRENT EXPENSE REFUND 010 | 0.0000000000 | $120,180 | $120,180 | $0.00 | | |
| CURREXP | CURRENT EXPENSE 010 | 1.0175366760 | $120,180 | $120,180 | $122.29 | | |
| HUMNSERV | HUMAN SERVICES 119 | 0.0250000000 | $120,180 | $120,180 | $3.00 | | |
| SLDREL | SOLDIERS RELIEF 121 | 0.0155990005 | $120,180 | $120,180 | $1.87 | | |
| EMERGSER | EMS 147 | 0.3792580840 | $120,180 | $120,180 | $45.58 | | |
| EMSRFD | EMS REFUND 147 | 0.0000000000 | $120,180 | $120,180 | $0.00 | | |
| FD8EXP | FD #8 EXPENSE 697 | 0.6647992540 | $120,180 | $120,180 | $79.90 | | |
| RLBRFD | RURAL LIBRARY REFUND 623 | 0.0000000000 | $120,180 | $120,180 | $0.00 | | |
| RURALLIB | RURAL LIBRARY 623 | 0.3710609029 | $120,180 | $120,180 | $44.59 | | |
| PORTRFD | PORT REFUND 640 | 0.0000000000 | $120,180 | $120,180 | $0.00 | | |
| PORTWWGEN | PORT OF WW 640 | 0.2460186015 | $120,180 | $120,180 | $29.57 | | |
| SD101CAP | SD #101 CAP 752 | 0.5894423472 | $120,180 | $120,180 | $70.84 | | |
| SD101GEN | SD #101 GENERAL 750 | 0.7455117868 | $120,180 | $120,180 | $89.60 | | |
| ST2 | STATE SCHOOL PART 2 600 | 0.8131451643 | $120,180 | $120,180 | $97.72 | | |
| STATESCHL | STATE SCHOOL 600 | 1.5158548041 | $120,180 | $120,180 | $182.18 | | |
| STREFUND | STATE REFUND LEVY 603 | 0.0000000000 | $120,180 | $120,180 | $0.00 | | |
| COROAD | COUNTY ROAD 115 | 1.6549953990 | $120,180 | $120,180 | $198.90 | | |
| CRPRD | COUNTY ROAD REFUND 115 | 0.0000000000 | $120,180 | $120,180 | $0.00 | | |
| | Total Tax Rate: | 8.0382220203 | | | | | |
| | | | | Taxes w/Current Exemptions: | $966.04 | | |
| | | | | Taxes w/o Exemptions: | $966.04 | | |
Improvement / Building
| Improvement #1: | RESIDENTIAL | State Code: | 11 | 1678.0 sqft | Value: | $90,180 |
| Exterior Wall: | SIDING | Foundation: | POST & PIER | | Heating/Cooling: | FORCED AIR | Number of Bathrooms: | 1 | | Number of Bedrooms: | 5 | Plumbing: | 6 | | Roof Covering: | COMP SHINGLE |   |   |
|
| | Type | Description | Class CD | Sub Class CD | Year Built | Area |
| | MA | Main Area | 4 | 20 | 1896 | 1678.0 |
| | SI1 | SITE IMPROVEMENT | 4 | 20 | 1896 | 1.0 |
| | UPFL | Upper Floor (included in main area) | 4 | 20 | 1896 | 560.0 |
| | RPO | OPEN PORCH W/ROOF | 4 | 20 | 1896 | 176.0 |
| | DTG | Detached Garage | 4 | 20 | 1896 | 320.0 |
Sketch
Property Image
Land
| 1 | RES 1 | Converted: Residential | 0.2296 | 10000.00 | 0.00 | 0.00 | 1.00 | $30,000 | $0 |
Roll Value History
| 2026 | N/A | N/A | N/A | N/A | N/A |
| 2025 | $90,180 | $30,000 | $0 | $120,180 | $120,180 |
| 2024 | $90,180 | $30,000 | $0 | $120,180 | $120,180 |
| 2023 | $90,180 | $30,000 | $0 | $120,180 | $120,180 |
| 2022 | $57,960 | $25,000 | $0 | $82,960 | $82,960 |
| 2021 | $57,960 | $25,000 | $0 | $82,960 | $82,960 |
| 2020 | $50,400 | $25,000 | $0 | $75,400 | $75,400 |
| 2019 | $50,400 | $25,000 | $0 | $75,400 | $75,400 |
| 2018 | $77,540 | $25,000 | $0 | $102,540 | $102,540 |
| 2017 | $59,650 | $25,000 | $0 | $84,650 | $84,650 |
| 2016 | $54,010 | $25,000 | $0 | $79,010 | $79,010 |
| 2015 | $54,010 | $25,000 | $0 | $79,010 | $79,010 |
| 2014 | $49,100 | $25,000 | $0 | $74,100 | $74,100 |
| 2013 | $49,100 | $25,000 | $0 | $74,100 | $74,100 |
| 2012 | $49,100 | $25,000 | $0 | $0 | $0 |
| 2011 | $46,300 | $25,000 | $0 | $0 | $0 |
| 2010 | $46,300 | $25,000 | $0 | $0 | $0 |
| 2009 | $57,800 | $13,500 | $0 | $0 | $0 |
| 2008 | $57,800 | $13,500 | $0 | $0 | $0 |
| 2007 | $57,800 | $13,500 | $0 | $0 | $0 |
Deed and Sales History
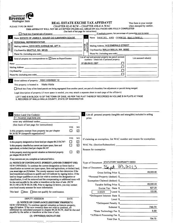
| 1 | 09/25/2015 | SWD | STATUTORY WARRANTY DEED | GOUGE JAMES E | HALLOWELL DANIEL & CONNIE | | | $49,000.00 | 128879 | 2015-08401 |
| 2 | 09/29/2015 | FUL | FULFILLMENT DEED | GOODWIN JOAN R | GOUGE JAMES E | | | | 0 | 2015-08504 |
| 3 | 08/11/1998 | WARRANTY D | WARRANTY DEED | | | | | $67,500.00 | 91024 | 2719-809120 |
Payout Agreement
| No payout information available.. |