Property
Account |
| Property ID: | 13385 | Abbreviated Legal Description: | FRANCIS PARK LOT 3 |
| Parcel Number: | 360721560003 | Agent Code: | |
| Type: | Real | | |
| Tax Area: | 1 - OL-140-F | Land Use Code | 11 |
| Open Space: | N | DFL | N |
| Historic Property: | N | Remodel Property: | N |
| Multi-Family Redevelopment: | N | | |
| Township: | 7 | Section: | 21 |
| Range: | 36 |
Location |
| Address: | 636 FRANCIS AVE WA 99362 | Mapsco: | |
| Neighborhood: | G-SFR | Map ID: | |
| Neighborhood CD: | 514011 |
Owner |
| Name: | JONES ROBERT M & ROSA AMBUAYAN | Owner ID: | 58065 |
| Mailing Address: | 636 FRANCIS AVE WALLA WALLA, WA 99362 | % Ownership: | 100.0000000000% |
| | | Exemptions: | |
Taxes and Assessment Details
Values
| (+) Improvement Homesite Value: | + | $0 | |
| (+) Improvement Non-Homesite Value: | + | $303,090 | |
| (+) Land Homesite Value: | + | $0 | |
| (+) Land Non-Homesite Value: | + | $55,740 | |
| (+) Curr Use (HS): | + | $0 | $0 |
| (+) Curr Use (NHS): | + | $0 | $0 |
| | | -------------------------- | |
| (=) Market Value: | = | $358,830 | |
| (–) Productivity Loss: | – | $0 | |
| | | -------------------------- | |
| (=) Subtotal: | = | $358,830 | |
| (+) Senior Appraised Value: | + | $0 | |
| (+) Non-Senior Appraised Value: | + | $358,830 | |
| | | -------------------------- | |
| (=) Total Appraised Value: | = | $358,830 | |
| (–) Senior Exemption Loss: | – | $0 | |
| (–) Exemption Loss: | – | $0 | |
| | | -------------------------- | |
| (=) Taxable Value: | = | $358,830 | |
Taxing Jurisdiction
| Owner: | JONES ROBERT M & ROSA AMBUAYAN | | |
| % Ownership: | 100.0000000000% | | |
| Total Value: | $358,830 | | |
| Tax Area: | 1 - OL-140-F |
| CERFD | CURRENT EXPENSE REFUND 010 | 0.0000000000 | $358,830 | $358,830 | $0.00 | | |
| CURREXP | CURRENT EXPENSE 010 | 1.0175366760 | $358,830 | $358,830 | $365.12 | | |
| HUMNSERV | HUMAN SERVICES 119 | 0.0250000000 | $358,830 | $358,830 | $8.97 | | |
| SLDREL | SOLDIERS RELIEF 121 | 0.0155990005 | $358,830 | $358,830 | $5.60 | | |
| EMERGSER | EMS 147 | 0.3792580840 | $358,830 | $358,830 | $136.09 | | |
| EMSRFD | EMS REFUND 147 | 0.0000000000 | $358,830 | $358,830 | $0.00 | | |
| PORTRFD | PORT REFUND 640 | 0.0000000000 | $358,830 | $358,830 | $0.00 | | |
| PORTWWGEN | PORT OF WW 640 | 0.2460186015 | $358,830 | $358,830 | $88.28 | | |
| SD140BOND | SD #140 BOND 764 | 0.8342371393 | $358,830 | $358,830 | $299.35 | | |
| SD140GEN | SD #140 GENERAL 760 | 2.0646500647 | $358,830 | $358,830 | $740.86 | | |
| ST2 | STATE SCHOOL PART 2 600 | 0.8131451643 | $358,830 | $358,830 | $291.78 | | |
| STATESCHL | STATE SCHOOL 600 | 1.5158548041 | $358,830 | $358,830 | $543.93 | | |
| STREFUND | STATE REFUND LEVY 603 | 0.0000000000 | $358,830 | $358,830 | $0.00 | | |
| CWWBOND | C OF WW BOND 643 | 0.2760494372 | $358,830 | $358,830 | $99.05 | | |
| CWWGEN | CITY OF WW 631 | 1.6100204973 | $358,830 | $358,830 | $577.72 | | |
| CWWRFD | CITY OF WALLA WALLA REFUND 631 | 0.0000000000 | $358,830 | $358,830 | $0.00 | | |
| | Total Tax Rate: | 8.7973694689 | | | | | |
| | | | | Taxes w/Current Exemptions: | $3,156.75 | | |
| | | | | Taxes w/o Exemptions: | $3,156.75 | | |
Improvement / Building
| Improvement #1: | RESIDENTIAL | State Code: | 11 | 1186.0 sqft | Value: | $303,090 |
| Exterior Wall: | SIDING | Heating/Cooling: | WARM & COOLED AIR | | Number of Bathrooms: | 1.5 | Number of Bedrooms: | 2 | | Plumbing: | 8 | Roof Covering: | COMP SHINGLE |
|
| | Type | Description | Class CD | Sub Class CD | Year Built | Area |
| | MA | Main Area | 1 | 30 | 1946 | 1186.0 |
| | SI1 | SITE IMPROVEMENT | 1 | 30 | 1946 | 1.5 |
| | BASE | BASEMENT | 1 | 30 | 1946 | 1026.0 |
| | BPF | BASEMENT -PARTITIONED FINISH | 1 | 30 | 1946 | 786.0 |
| | PRC | PORCH W STEPS, ROOF,CEILED | 1 | 30 | 1946 | 42.0 |
| | WDR | WOOD DECK W/ROOF | 1 | 30 | 1946 | 220.0 |
| | ATG | Attached Garage | 1 | 30 | 1946 | 286.0 |
Sketch
Property Image
Land
| 1 | RES 1 | Converted: Residential | 0.1765 | 7688.00 | 0.00 | 0.00 | 1.00 | $55,740 | $0 |
Roll Value History
| 2026 | N/A | N/A | N/A | N/A | N/A |
| 2025 | $269,620 | $84,570 | $0 | $354,190 | $354,190 |
| 2024 | $269,620 | $84,570 | $0 | $354,190 | $354,190 |
| 2023 | $303,090 | $55,740 | $0 | $358,830 | $358,830 |
| 2022 | $275,540 | $55,740 | $0 | $331,280 | $331,280 |
| 2021 | $229,620 | $55,740 | $0 | $285,360 | $285,360 |
| 2020 | $153,080 | $55,740 | $0 | $208,820 | $208,820 |
| 2019 | $153,080 | $55,740 | $0 | $208,820 | $208,820 |
| 2018 | $133,110 | $55,740 | $0 | $188,850 | $188,850 |
| 2017 | $164,680 | $34,600 | $0 | $199,280 | $199,280 |
| 2016 | $149,710 | $34,600 | $0 | $184,310 | $184,310 |
| 2015 | $149,710 | $34,600 | $0 | $184,310 | $184,310 |
| 2014 | $136,100 | $34,600 | $0 | $170,700 | $170,700 |
| 2013 | $136,100 | $34,600 | $0 | $170,700 | $170,700 |
| 2012 | $156,300 | $34,600 | $0 | $0 | $0 |
| 2011 | $147,200 | $34,600 | $0 | $0 | $0 |
| 2010 | $130,700 | $34,600 | $0 | $0 | $0 |
| 2009 | $149,100 | $34,600 | $0 | $0 | $0 |
| 2008 | $149,100 | $34,600 | $0 | $0 | $0 |
| 2007 | $149,100 | $34,600 | $0 | $0 | $0 |
Deed and Sales History
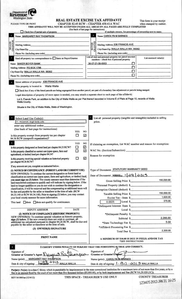
| 1 | 01/11/2016 | SWD | STATUTORY WARRANTY DEED | BARNES CAROLYN M | JONES ROBERT M & ROSA AMBUAYAN | | | $195,000.00 | 129497 | 2016-00224 |
| 2 | 01/31/2013 | WARRANTY D | WARRANTY DEED | THOMPSON, MARGARET R | BARNES, CAROLYN M | | | $150,000.00 | 123405 | 2013-00903 |
| 3 | 07/29/1988 | WARRANTY D | WARRANTY DEED | | | | | $53,000.00 | 0 | 1718-804946 |
Payout Agreement
| No payout information available.. |