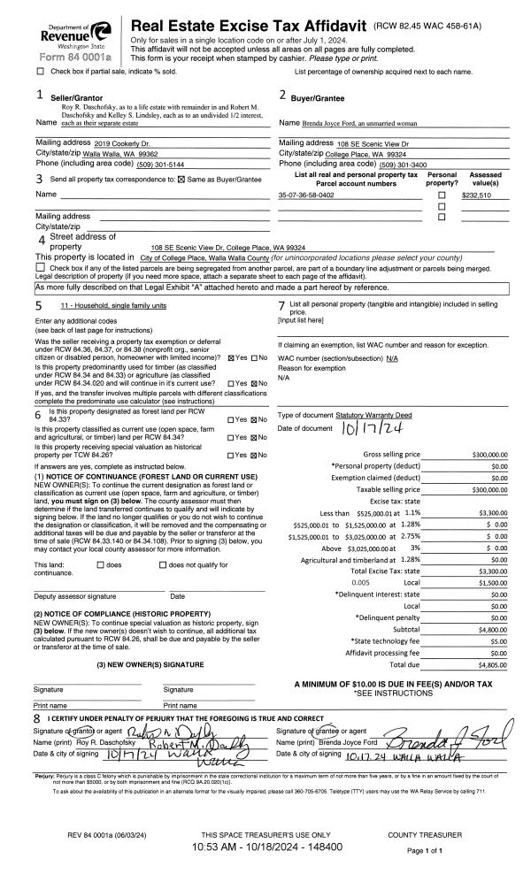
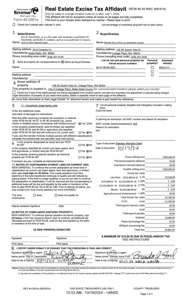
Property
Account |
| Property ID: | 13384 | Abbreviated Legal Description: | SCENIC VIEW LOT 2 BLK 4 |
| Parcel Number: | 350736580402 | Agent Code: | |
| Type: | Real | | |
| Tax Area: | 75 - CP 250 | Land Use Code | 11 |
| Open Space: | N | DFL | N |
| Historic Property: | N | Remodel Property: | N |
| Multi-Family Redevelopment: | N | | |
| Township: | 7 | Section: | 36 |
| Range: | 35 |
Location |
| Address: | 108 SE SCENIC VIEW DR WA 99324 | Mapsco: | |
| Neighborhood: | A SFR | Map ID: | |
| Neighborhood CD: | 113011 |
Owner |
| Name: | DASCHOFSKY ROY R LIFE ESTATE | Owner ID: | 61433 |
| Mailing Address: | ROBERT M DASCHOFSKY & KELLEY S LINDSLEY 108 SE SCENIC VIEW COLLEGE PLACE, WA 99324 | % Ownership: | 100.0000000000% |
| | | Exemptions: | SNR/DSBL |
Taxes and Assessment Details
Values
| (+) Improvement Homesite Value: | + | $192,010 | |
| (+) Improvement Non-Homesite Value: | + | $0 | |
| (+) Land Homesite Value: | + | $40,500 | |
| (+) Land Non-Homesite Value: | + | $0 | |
| (+) Curr Use (HS): | + | $0 | $0 |
| (+) Curr Use (NHS): | + | $0 | $0 |
| | | -------------------------- | |
| (=) Market Value: | = | $232,510 | |
| (–) Productivity Loss: | – | $0 | |
| | | -------------------------- | |
| (=) Subtotal: | = | $232,510 | |
| (+) Senior Appraised Value: | + | $128,000 | |
| (+) Non-Senior Appraised Value: | + | $0 | |
| | | -------------------------- | |
| (=) Total Appraised Value: | = | $128,000 | |
| (–) Senior Exemption Loss: | – | $50,000 | |
| (–) Exemption Loss: | – | $0 | |
| | | -------------------------- | |
| (=) Taxable Value: | = | $78,000 | |
Taxing Jurisdiction
| Owner: | DASCHOFSKY ROY R LIFE ESTATE | | |
| % Ownership: | 100.0000000000% | | |
| Total Value: | $232,510 | | |
| Tax Area: | 75 - CP 250 |
| CERFD | CURRENT EXPENSE REFUND 010 | 0.0000000000 | $232,510 | $78,000 | $0.00 | | |
| CURREXP | CURRENT EXPENSE 010 | 1.0175366760 | $232,510 | $78,000 | $111.58 | | |
| HUMNSERV | HUMAN SERVICES 119 | 0.0250000000 | $232,510 | $78,000 | $2.74 | | |
| SLDREL | SOLDIERS RELIEF 121 | 0.0155990005 | $232,510 | $78,000 | $1.71 | | |
| COLLPLBOND | C OF CP BOND 644 | 0.0000000000 | $232,510 | $0 | $20.84 | | |
| COLLPLGEN | CITY OF CP 632 | 1.4453819216 | $232,510 | $78,000 | $158.50 | | |
| EMERGSER | EMS 147 | 0.3792580840 | $232,510 | $78,000 | $41.59 | | |
| EMSRFD | EMS REFUND 147 | 0.0000000000 | $232,510 | $78,000 | $0.00 | | |
| RURALLIB | RURAL LIBRARY 623 | 0.3710609029 | $232,510 | $78,000 | $40.69 | | |
| PORTRFD | PORT REFUND 640 | 0.0000000000 | $232,510 | $78,000 | $0.00 | | |
| PORTWWGEN | PORT OF WW 640 | 0.2460186015 | $232,510 | $78,000 | $26.98 | | |
| SD250BOND | SD #250 BOND 773 | 0.0000000000 | $232,510 | $0 | $69.37 | | |
| SD250GEN | SD #250 GENERAL 770 | 0.0000000000 | $232,510 | $0 | $113.78 | | |
| ST2 | STATE SCHOOL PART 2 600 | 0.0000000000 | $232,510 | $0 | $38.74 | | |
| STATESCHL | STATE SCHOOL 600 | 1.5158548041 | $232,510 | $78,000 | $166.23 | | |
| STREFUND | STATE REFUND LEVY 603 | 0.0000000000 | $232,510 | $78,000 | $0.00 | | |
| | Total Tax Rate: | 5.0157099906 | | | | | |
| | | | | Taxes w/Current Exemptions: | $792.75 | | |
| | | | | Taxes w/o Exemptions: | $2,350.78 | | |
Improvement / Building
| Improvement #1: | RESIDENTIAL | State Code: | 11 | 1152.0 sqft | Value: | $192,010 |
| Exterior Wall: | PLYWOOD | Heating/Cooling: | WARM & COOLED AIR | | Number of Bathrooms: | 2 | Number of Bedrooms: | 3 | | Plumbing: | 9 | Roof Covering: | COMP SHINGLE |
|
| | Type | Description | Class CD | Sub Class CD | Year Built | Area |
| | MA | Main Area | 1 | 25 | 1974 | 1152.0 |
| | SI1 | SITE IMPROVEMENT | 1 | 25 | 1974 | 1.0 |
| | CPCS | CARPORT/SHED OR FLAT ROOF | 1 | 25 | 1974 | 276.0 |
| | TOOL | TOOL SHED | 1 | 25 | 1974 | 144.0 |
| | TOOL | TOOL SHED | 1 | 25 | 1974 | 60.0 |
| | RPO | OPEN PORCH W/ROOF | 1 | 25 | 1974 | 96.0 |
Sketch
Property Image
Land
| 1 | RES 1 | Converted: Residential | 0.1377 | 6000.00 | 0.00 | 0.00 | 1.00 | $40,500 | $0 |
Roll Value History
| 2026 | N/A | N/A | N/A | N/A | N/A |
| 2025 | $231,860 | $60,000 | $0 | $291,860 | $291,860 |
| 2024 | $201,610 | $40,500 | $0 | $242,110 | $242,110 |
| 2023 | $192,010 | $40,500 | $0 | $232,510 | $78,000 |
| 2022 | $174,560 | $40,500 | $0 | $215,060 | $128,000 |
| 2021 | $166,240 | $40,500 | $0 | $206,740 | $128,000 |
| 2020 | $144,560 | $40,500 | $0 | $185,060 | $78,000 |
| 2019 | $149,060 | $36,000 | $0 | $185,060 | $78,000 |
| 2018 | $114,660 | $36,000 | $0 | $150,660 | $78,000 |
| 2017 | $111,320 | $36,000 | $0 | $147,320 | $78,000 |
| 2016 | $101,200 | $36,000 | $0 | $137,200 | $128,000 |
| 2015 | $92,000 | $36,000 | $0 | $128,000 | $128,000 |
| 2014 | $92,000 | $36,000 | $0 | $128,000 | $128,000 |
| 2013 | $92,000 | $36,000 | $0 | $128,000 | $128,000 |
| 2012 | $92,000 | $36,000 | $0 | $0 | $0 |
| 2011 | $92,000 | $36,000 | $0 | $0 | $0 |
| 2010 | $85,900 | $36,000 | $0 | $0 | $0 |
| 2009 | $99,400 | $36,000 | $0 | $0 | $0 |
| 2008 | $71,600 | $18,000 | $0 | $0 | $0 |
| 2007 | $71,600 | $18,000 | $0 | $0 | $0 |
Deed and Sales History
| 1 | 10/18/2024 | SWD | STATUTORY WARRANTY DEED | DASCHOFSKY ROY R LIFE ESTATE | FORD BRENDA JOYCE | | | $300,000.00 | 148400 | 2024-06077 |
| 2 | 08/01/2017 | QCD | QUIT CLAIM DEED | DASCHOFSKY ROY R | DASCHOFSKY ROY R LIFE ESTATE | | | $0.00 | 132903 | 2017-05899 |
| 3 | 08/15/2016 | QCD | QUIT CLAIM DEED | DASCHOFSKY ROY R & FLORENCE | DASCHOFSKY ROY R | | | $0.00 | 130835 | 2016-06508 |
| 4 | 06/23/1998 | WARRANTY D | WARRANTY DEED | | | | | $85,000.00 | 90671 | 2699-806984 |
Payout Agreement
| No payout information available.. |