Property
Account |
| Property ID: | 13382 | Abbreviated Legal Description: | DIXIE TAX 1 BLK 7 |
| Parcel Number: | 370826510706 | Agent Code: | |
| Type: | Real | | |
| Tax Area: | 310 - 101-8 | Land Use Code | 91 |
| Open Space: | N | DFL | N |
| Historic Property: | N | Remodel Property: | N |
| Multi-Family Redevelopment: | N | | |
| Township: | 8 | Section: | 26 |
| Range: | 37 |
Location |
| Address: | WA 99329 | Mapsco: | |
| Neighborhood: | Dixie Contig | Map ID: | |
| Neighborhood CD: | 413597 |
Owner |
| Name: | TOWNSEND KACEY LEE | Owner ID: | 68570 |
| Mailing Address: | PO BOX 151 DIXIE, WA 99329 | % Ownership: | 100.0000000000% |
| | | Exemptions: | |
Taxes and Assessment Details
Property Tax Information as of
02/21/2026
Click on "Statement Details" to expand or collapse a tax statement.
* Please enter a valid date ** Please enter a valid date *
Statement Details |
| | TOTAL: | $0.00 | $0.00 | $0.00 | $0.00 | $0.00 | $0.00 |
|
| | $0.00 | $0.00 | $0.00 | $0.00 | $0.00 | $0.00 |
Values
| (+) Improvement Homesite Value: | + | $0 | |
| (+) Improvement Non-Homesite Value: | + | $0 | |
| (+) Land Homesite Value: | + | $0 | |
| (+) Land Non-Homesite Value: | + | $1,480 | |
| (+) Curr Use (HS): | + | $0 | $0 |
| (+) Curr Use (NHS): | + | $0 | $0 |
| | | -------------------------- | |
| (=) Market Value: | = | $1,480 | |
| (–) Productivity Loss: | – | $0 | |
| | | -------------------------- | |
| (=) Subtotal: | = | $1,480 | |
| (+) Senior Appraised Value: | + | $0 | |
| (+) Non-Senior Appraised Value: | + | $1,480 | |
| | | -------------------------- | |
| (=) Total Appraised Value: | = | $1,480 | |
| (–) Senior Exemption Loss: | – | $0 | |
| (–) Exemption Loss: | – | $0 | |
| | | -------------------------- | |
| (=) Taxable Value: | = | $1,480 | |
Taxing Jurisdiction
| Owner: | TOWNSEND KACEY LEE | | |
| % Ownership: | 100.0000000000% | | |
| Total Value: | $1,480 | | |
| Tax Area: | 310 - 101-8 |
| CERFD | CURRENT EXPENSE REFUND 010 | 0.0000000000 | $1,480 | $1,480 | $0.00 | | |
| CURREXP | CURRENT EXPENSE 010 | 1.0175366760 | $1,480 | $1,480 | $1.51 | | |
| HUMNSERV | HUMAN SERVICES 119 | 0.0250000000 | $1,480 | $1,480 | $0.04 | | |
| SLDREL | SOLDIERS RELIEF 121 | 0.0155990005 | $1,480 | $1,480 | $0.02 | | |
| EMERGSER | EMS 147 | 0.3792580840 | $1,480 | $1,480 | $0.56 | | |
| EMSRFD | EMS REFUND 147 | 0.0000000000 | $1,480 | $1,480 | $0.00 | | |
| FD8EXP | FD #8 EXPENSE 697 | 0.6647992540 | $1,480 | $1,480 | $0.98 | | |
| RLBRFD | RURAL LIBRARY REFUND 623 | 0.0000000000 | $1,480 | $1,480 | $0.00 | | |
| RURALLIB | RURAL LIBRARY 623 | 0.3710609029 | $1,480 | $1,480 | $0.55 | | |
| PORTRFD | PORT REFUND 640 | 0.0000000000 | $1,480 | $1,480 | $0.00 | | |
| PORTWWGEN | PORT OF WW 640 | 0.2460186015 | $1,480 | $1,480 | $0.36 | | |
| SD101CAP | SD #101 CAP 752 | 0.5894423472 | $1,480 | $1,480 | $0.87 | | |
| SD101GEN | SD #101 GENERAL 750 | 0.7455117868 | $1,480 | $1,480 | $1.10 | | |
| ST2 | STATE SCHOOL PART 2 600 | 0.8131451643 | $1,480 | $1,480 | $1.20 | | |
| STATESCHL | STATE SCHOOL 600 | 1.5158548041 | $1,480 | $1,480 | $2.24 | | |
| STREFUND | STATE REFUND LEVY 603 | 0.0000000000 | $1,480 | $1,480 | $0.00 | | |
| COROAD | COUNTY ROAD 115 | 1.6549953990 | $1,480 | $1,480 | $2.45 | | |
| CRPRD | COUNTY ROAD REFUND 115 | 0.0000000000 | $1,480 | $1,480 | $0.00 | | |
| | Total Tax Rate: | 8.0382220203 | | | | | |
| | | | | Taxes w/Current Exemptions: | $11.88 | | |
| | | | | Taxes w/o Exemptions: | $11.88 | | |
Improvement / Building
Sketch
| No sketches available for this property. |
Property Image
Land
| 1 | RES 1 | Converted: Residential | 0.4100 | 0.00 | 0.00 | 0.00 | 1.00 | $1,480 | $0 |
Roll Value History
| 2026 | N/A | N/A | N/A | N/A | N/A |
| 2025 | $0 | $15,720 | $0 | $15,720 | $15,720 |
| 2024 | $0 | $49,290 | $0 | $49,290 | $49,290 |
| 2023 | $0 | $1,480 | $0 | $1,480 | $1,480 |
| 2022 | $0 | $1,200 | $0 | $1,200 | $1,200 |
| 2021 | $0 | $1,200 | $0 | $1,200 | $1,200 |
| 2020 | $0 | $1,200 | $0 | $1,200 | $1,200 |
| 2019 | $0 | $1,200 | $0 | $1,200 | $1,200 |
| 2018 | $0 | $1,200 | $0 | $1,200 | $1,200 |
| 2017 | $0 | $1,200 | $0 | $1,200 | $1,200 |
| 2016 | $0 | $1,200 | $0 | $1,200 | $1,200 |
| 2015 | $0 | $1,200 | $0 | $1,200 | $1,200 |
| 2014 | $0 | $7,400 | $0 | $7,400 | $7,400 |
| 2013 | $0 | $7,400 | $0 | $7,400 | $7,400 |
| 2012 | $0 | $7,400 | $0 | $0 | $0 |
| 2011 | $0 | $400 | $0 | $0 | $0 |
| 2010 | $0 | $400 | $0 | $0 | $0 |
| 2009 | $0 | $1,300 | $0 | $0 | $0 |
| 2008 | $0 | $1,300 | $0 | $0 | $0 |
| 2007 | $0 | $1,300 | $0 | $0 | $0 |
Deed and Sales History
| 1 | 01/14/2025 | SWD | STATUTORY WARRANTY DEED | WILCOX GAVIN J | MAYCUMBER ANDREW OMAR | | | $2,900.00 | 148792 | 2025-00213 |
| 2 | 10/24/2024 | QCD | QUIT CLAIM DEED | BRAYTON CHRISTOPHER DARIUS MERRIT | WILCOX GAVIN J | | | | 148418 | 2024-06205 |
| 3 | 01/31/2024 | SWD | STATUTORY WARRANTY DEED | TOWNSEND KACEY LEE | BRAYTON CHRISTOPHER DARIUS MERRIT | | | $10,000.00 | 147094 | 2024-00518 |
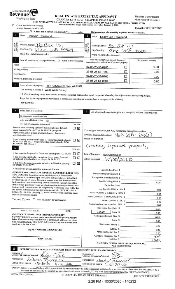
| 4 | 10/29/2020 | QCD | QUIT CLAIM DEED | TOWNSEND KAILYNN | TOWNSEND KACEY LEE | | | $0.00 | 140657 | 2021-00022 |
| 5 | 10/29/2020 | SWD | STATUTORY WARRANTY DEED | SCOTT TODD D & KIM J | TOWNSEND KACEY LEE | | 4 PARCELS | $0.00 | 140656 | 2021-00021 |
| 6 | 05/06/2014 | QCD | QUIT CLAIM DEED | SCOTT KIM J | SCOTT TODD D & KIM J | 4-PARCELS | | | 125841 | 2014-031010 |
| 7 | 04/29/2014 | AFFIDAVIT | AFFIDAVIT | TOWNSEND DANIEL & KIM | SCOTT KIM J | | | | 0 | 2014-02882 |
| 8 | 07/01/2001 | QCD | QUIT CLAIM DEED | | | | | $23,000.00 | 97733 | 3170-108239 |
|   | |
Payout Agreement
| No payout information available.. |