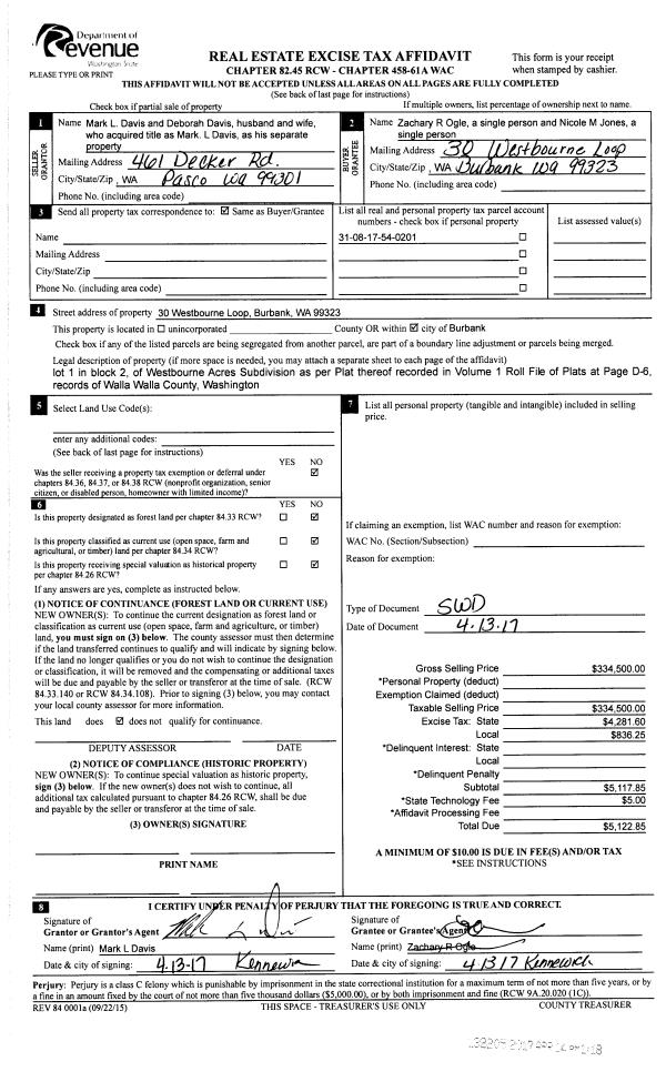
Property
Account |
| Property ID: | 1330 | Abbreviated Legal Description: | WESTBOURNE ACRES PARCEL 1 BLK 2 |
| Parcel Number: | 310817540201 | Agent Code: | |
| Type: | Real | | |
| Tax Area: | 328 - 400-M-5 | Land Use Code | 11 |
| Open Space: | N | DFL | N |
| Historic Property: | N | Remodel Property: | N |
| Multi-Family Redevelopment: | N | | |
| Township: | 8 | Section: | 17 |
| Range: | 31 |
Location |
| Address: | 30 WESTBOURNE LOOP BURBANK, WA 99323 | Mapsco: | |
| Neighborhood: | G BURBANK SFR | Map ID: | |
| Neighborhood CD: | 214711 |
Owner |
| Name: | OGLE ZACHARY R | Owner ID: | 60721 |
| Mailing Address: | NICOLE M JONES 30 WESTBOURNE LOOP BURBANK, WA 99323 | % Ownership: | 100.0000000000% |
| | | Exemptions: | |
Taxes and Assessment Details
Property Tax Information as of
02/21/2026
Click on "Statement Details" to expand or collapse a tax statement.
* Please enter a valid date ** Please enter a valid date *
Statement Details |
| | TOTAL: | $0.00 | $0.00 | $0.00 | $0.00 | $0.00 | $0.00 |
|
| | $0.00 | $0.00 | $0.00 | $0.00 | $0.00 | $0.00 |
Values
| (+) Improvement Homesite Value: | + | $0 | |
| (+) Improvement Non-Homesite Value: | + | $437,200 | |
| (+) Land Homesite Value: | + | $0 | |
| (+) Land Non-Homesite Value: | + | $81,670 | |
| (+) Curr Use (HS): | + | $0 | $0 |
| (+) Curr Use (NHS): | + | $0 | $0 |
| | | -------------------------- | |
| (=) Market Value: | = | $518,870 | |
| (–) Productivity Loss: | – | $0 | |
| | | -------------------------- | |
| (=) Subtotal: | = | $518,870 | |
| (+) Senior Appraised Value: | + | $0 | |
| (+) Non-Senior Appraised Value: | + | $518,870 | |
| | | -------------------------- | |
| (=) Total Appraised Value: | = | $518,870 | |
| (–) Senior Exemption Loss: | – | $0 | |
| (–) Exemption Loss: | – | $0 | |
| | | -------------------------- | |
| (=) Taxable Value: | = | $518,870 | |
Taxing Jurisdiction
| Owner: | OGLE ZACHARY R | | |
| % Ownership: | 100.0000000000% | | |
| Total Value: | $518,870 | | |
| Tax Area: | 328 - 400-M-5 |
| CERFD | CURRENT EXPENSE REFUND 010 | 0.0000000000 | $518,870 | $518,870 | $0.00 | | |
| CURREXP | CURRENT EXPENSE 010 | 1.0175366760 | $518,870 | $518,870 | $527.97 | | |
| HUMNSERV | HUMAN SERVICES 119 | 0.0250000000 | $518,870 | $518,870 | $12.97 | | |
| SLDREL | SOLDIERS RELIEF 121 | 0.0155990005 | $518,870 | $518,870 | $8.09 | | |
| EMERGSER | EMS 147 | 0.3792580840 | $518,870 | $518,870 | $196.79 | | |
| EMSRFD | EMS REFUND 147 | 0.0000000000 | $518,870 | $518,870 | $0.00 | | |
| FD5EXP | FD #5 EXPENSE 689 | 1.2045331840 | $518,870 | $518,870 | $625.00 | | |
| RLBRFD | RURAL LIBRARY REFUND 623 | 0.0000000000 | $518,870 | $518,870 | $0.00 | | |
| RURALLIB | RURAL LIBRARY 623 | 0.3710609029 | $518,870 | $518,870 | $192.53 | | |
| PORTRFD | PORT REFUND 640 | 0.0000000000 | $518,870 | $518,870 | $0.00 | | |
| PORTWWGEN | PORT OF WW 640 | 0.2460186015 | $518,870 | $518,870 | $127.65 | | |
| SD400BOND | SD #400 BOND 793 | 0.0000000000 | $518,870 | $518,870 | $0.00 | | |
| SD400CAP | SD #400 CP 792 | 0.3443722657 | $518,870 | $518,870 | $178.68 | | |
| SD400GEN | SD #400 GENERAL 790 | 1.9278469916 | $518,870 | $518,870 | $1,000.30 | | |
| ST2 | STATE SCHOOL PART 2 600 | 0.8131451643 | $518,870 | $518,870 | $421.92 | | |
| STATESCHL | STATE SCHOOL 600 | 1.5158548041 | $518,870 | $518,870 | $786.53 | | |
| STREFUND | STATE REFUND LEVY 603 | 0.0000000000 | $518,870 | $518,870 | $0.00 | | |
| COROAD | COUNTY ROAD 115 | 1.6549953990 | $518,870 | $518,870 | $858.73 | | |
| CRPRD | COUNTY ROAD REFUND 115 | 0.0000000000 | $518,870 | $518,870 | $0.00 | | |
| | Total Tax Rate: | 9.5152210736 | | | | | |
| | | | | Taxes w/Current Exemptions: | $4,937.16 | | |
| | | | | Taxes w/o Exemptions: | $4,937.16 | | |
Improvement / Building
| Improvement #1: | RESIDENTIAL | State Code: | 11 | 2192.0 sqft | Value: | $437,200 |
| Exterior Wall: | PLYWOOD | Foundation: | SLAB FOUNDATION | | Heating/Cooling: | WARM & COOLED AIR | Number of Bathrooms: | 2 | | Number of Bedrooms: | 4 | Plumbing: | 9 | | Roof Covering: | COMP SHINGLE |   |   |
|
| | Type | Description | Class CD | Sub Class CD | Year Built | Area |
| | MA | Main Area | 3 | 30 | 1978 | 2192.0 |
| | SI1 | SITE IMPROVEMENT | 3 | 30 | 1978 | 1.0 |
| | UPFL | Upper Floor (included in main area) | 3 | 30 | 1978 | 672.0 |
| | DTG | Detached Garage | 3 | 30 | 1978 | 572.0 |
| | SMP | SWIMMING POOL | 3 | 30 | 1978 | 1.0 |
| | POL2 | POLE BUILDING-CONCRETE | 3 | 30 | 1978 | 1250.0 |
| | RPC | OPEN PORCH W/ROOF , CEILED | 3 | 30 | 1978 | 80.0 |
| | CPC | COVERED CARPORT/PATIO | 3 | 30 | 1978 | 240.0 |
| | CPC | COVERED CARPORT/PATIO | 3 | 30 | 1978 | 408.0 |
Sketch
Property Image
Land
| 1 | RES 1 | Converted: Residential | 1.0900 | 47502.00 | 0.00 | 0.00 | 1.00 | $81,670 | $0 |
Roll Value History
| 2026 | N/A | N/A | N/A | N/A | N/A |
| 2025 | $480,920 | $81,670 | $0 | $562,590 | $562,590 |
| 2024 | $437,200 | $81,670 | $0 | $518,870 | $518,870 |
| 2023 | $437,200 | $81,670 | $0 | $518,870 | $518,870 |
| 2022 | $397,450 | $81,670 | $0 | $479,120 | $479,120 |
| 2021 | $294,410 | $81,670 | $0 | $376,080 | $376,080 |
| 2020 | $256,140 | $60,900 | $0 | $317,040 | $317,040 |
| 2019 | $256,140 | $60,900 | $0 | $317,040 | $317,040 |
| 2018 | $256,140 | $60,900 | $0 | $317,040 | $317,040 |
| 2017 | $197,030 | $60,900 | $0 | $257,930 | $257,930 |
| 2016 | $46,800 | $60,900 | $0 | $107,700 | $107,700 |
| 2015 | $127,100 | $60,900 | $0 | $188,000 | $188,000 |
| 2014 | $127,100 | $60,900 | $0 | $188,000 | $188,000 |
| 2013 | $127,100 | $60,900 | $0 | $188,000 | $188,000 |
| 2012 | $127,100 | $60,900 | $0 | $0 | $0 |
| 2011 | $127,100 | $60,900 | $0 | $0 | $0 |
| 2010 | $127,100 | $60,900 | $0 | $0 | $0 |
| 2009 | $150,200 | $35,400 | $0 | $0 | $0 |
| 2008 | $150,200 | $35,400 | $0 | $0 | $0 |
| 2007 | $150,200 | $35,400 | $0 | $0 | $0 |
Deed and Sales History
| 1 | 04/14/2017 | SWD | STATUTORY WARRANTY DEED | DAVIS MARK L | OGLE ZACHARY R | | | $334,500.00 | 132205 | 2017-02808 |
| 2 | 06/19/2013 | QCD | QUIT CLAIM DEED | DAVIS, MARK L & DEBORAH A | DAVIS, MARK L | | | $0.00 | 124148 | 2013-06153 |
| 3 | 01/13/2003 | WARRANTY D | WARRANTY DEED | OHMAN, DONALD E | DAVIS, MARK L & DEBORAH A | | | $150,000.00 | 101199 | 2003-00568 |
| 4 | 05/01/1978 | WARRANTY D | WARRANTY DEED | | | | | $9,800.00 | 0 | 8378-04864 |
Payout Agreement
| No payout information available.. |