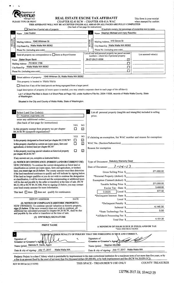
Property
Account |
| Property ID: | 13269 | Abbreviated Legal Description: | 28-7-36 LOT 1 OF SHORT PLAT (NWLY PTN TAX 23) |
| Parcel Number: | 360728210056 | Agent Code: | |
| Type: | Real | | |
| Tax Area: | 1 - OL-140-F | Land Use Code | 11 |
| Open Space: | N | DFL | N |
| Historic Property: | N | Remodel Property: | N |
| Multi-Family Redevelopment: | N | | |
| Township: | 7 | Section: | 28 |
| Range: | 36 |
Location |
| Address: | 1048 WHITMAN ST WA 99362 | Mapsco: | |
| Neighborhood: | G Res | Map ID: | |
| Neighborhood CD: | 614011 |
Owner |
| Name: | MICHAEL STEPHEN & MARY RASCHKO | Owner ID: | 61350 |
| Mailing Address: | 1048 WHITMAN ST WALLA WALLA, WA 99362 | % Ownership: | 100.0000000000% |
| | | Exemptions: | |
Taxes and Assessment Details
Values
| (+) Improvement Homesite Value: | + | $0 | |
| (+) Improvement Non-Homesite Value: | + | $228,000 | |
| (+) Land Homesite Value: | + | $0 | |
| (+) Land Non-Homesite Value: | + | $96,020 | |
| (+) Curr Use (HS): | + | $0 | $0 |
| (+) Curr Use (NHS): | + | $0 | $0 |
| | | -------------------------- | |
| (=) Market Value: | = | $324,020 | |
| (–) Productivity Loss: | – | $0 | |
| | | -------------------------- | |
| (=) Subtotal: | = | $324,020 | |
| (+) Senior Appraised Value: | + | $0 | |
| (+) Non-Senior Appraised Value: | + | $324,020 | |
| | | -------------------------- | |
| (=) Total Appraised Value: | = | $324,020 | |
| (–) Senior Exemption Loss: | – | $0 | |
| (–) Exemption Loss: | – | $0 | |
| | | -------------------------- | |
| (=) Taxable Value: | = | $324,020 | |
Taxing Jurisdiction
| Owner: | MICHAEL STEPHEN & MARY RASCHKO | | |
| % Ownership: | 100.0000000000% | | |
| Total Value: | $324,020 | | |
| Tax Area: | 1 - OL-140-F |
| CERFD | CURRENT EXPENSE REFUND 010 | 0.0000000000 | $324,020 | $324,020 | $0.00 | | |
| CURREXP | CURRENT EXPENSE 010 | 1.0175366760 | $324,020 | $324,020 | $329.70 | | |
| HUMNSERV | HUMAN SERVICES 119 | 0.0250000000 | $324,020 | $324,020 | $8.10 | | |
| SLDREL | SOLDIERS RELIEF 121 | 0.0155990005 | $324,020 | $324,020 | $5.05 | | |
| EMERGSER | EMS 147 | 0.3792580840 | $324,020 | $324,020 | $122.89 | | |
| EMSRFD | EMS REFUND 147 | 0.0000000000 | $324,020 | $324,020 | $0.00 | | |
| PORTRFD | PORT REFUND 640 | 0.0000000000 | $324,020 | $324,020 | $0.00 | | |
| PORTWWGEN | PORT OF WW 640 | 0.2460186015 | $324,020 | $324,020 | $79.71 | | |
| SD140BOND | SD #140 BOND 764 | 0.8342371393 | $324,020 | $324,020 | $270.31 | | |
| SD140GEN | SD #140 GENERAL 760 | 2.0646500647 | $324,020 | $324,020 | $668.99 | | |
| ST2 | STATE SCHOOL PART 2 600 | 0.8131451643 | $324,020 | $324,020 | $263.48 | | |
| STATESCHL | STATE SCHOOL 600 | 1.5158548041 | $324,020 | $324,020 | $491.17 | | |
| STREFUND | STATE REFUND LEVY 603 | 0.0000000000 | $324,020 | $324,020 | $0.00 | | |
| CWWBOND | C OF WW BOND 643 | 0.2760494372 | $324,020 | $324,020 | $89.45 | | |
| CWWGEN | CITY OF WW 631 | 1.6100204973 | $324,020 | $324,020 | $521.68 | | |
| CWWRFD | CITY OF WALLA WALLA REFUND 631 | 0.0000000000 | $324,020 | $324,020 | $0.00 | | |
| | Total Tax Rate: | 8.7973694689 | | | | | |
| | | | | Taxes w/Current Exemptions: | $2,850.53 | | |
| | | | | Taxes w/o Exemptions: | $2,850.53 | | |
Improvement / Building
| Improvement #1: | RESIDENTIAL | State Code: | 11 | 1336.0 sqft | Value: | $228,000 |
| Exterior Wall: | VINYL | Heating/Cooling: | WARM & COOLED AIR | | Number of Bathrooms: | 2 | Number of Bedrooms: | 3 | | Plumbing: | 9 | Roof Covering: | CONCRETE TILE |
|
| | Type | Description | Class CD | Sub Class CD | Year Built | Area |
| | MA | Main Area | 4 | 35 | 1900 | 1336.0 |
| | UPFL | Upper Floor (included in main area) | 4 | 35 | 1900 | 568.0 |
| | SI1 | SITE IMPROVEMENT | 4 | 35 | 1900 | 1.5 |
| | RPO | OPEN PORCH W/ROOF | 4 | 35 | 1900 | 25.0 |
| | DTG | Detached Garage | 4 | 35 | 1900 | 462.0 |
| | ATG | Attached Garage | 4 | 35 | 1900 | 696.0 |
Sketch
Property Image
Land
| 1 | RES 1 | Converted: Residential | 0.2204 | 9602.00 | 0.00 | 0.00 | 1.00 | $96,020 | $0 |
Roll Value History
| 2026 | N/A | N/A | N/A | N/A | N/A |
| 2025 | $232,970 | $115,220 | $0 | $348,190 | $348,190 |
| 2024 | $250,800 | $96,020 | $0 | $346,820 | $346,820 |
| 2023 | $228,000 | $96,020 | $0 | $324,020 | $324,020 |
| 2022 | $228,000 | $79,220 | $0 | $307,220 | $307,220 |
| 2021 | $198,260 | $79,220 | $0 | $277,480 | $277,480 |
| 2020 | $180,240 | $79,220 | $0 | $259,460 | $259,460 |
| 2019 | $180,240 | $79,220 | $0 | $259,460 | $259,460 |
| 2018 | $139,090 | $46,800 | $0 | $185,890 | $185,890 |
| 2017 | $115,900 | $46,800 | $0 | $162,700 | $162,700 |
| 2016 | $115,900 | $46,800 | $0 | $162,700 | $162,700 |
| 2015 | $110,390 | $46,800 | $0 | $157,190 | $157,190 |
| 2014 | $66,900 | $46,800 | $0 | $113,700 | $113,700 |
| 2013 | $66,900 | $46,800 | $0 | $113,700 | $113,700 |
| 2012 | $66,900 | $46,800 | $0 | $0 | $0 |
| 2011 | $66,900 | $46,800 | $0 | $0 | $0 |
| 2010 | $66,900 | $46,800 | $0 | $0 | $0 |
| 2009 | $79,500 | $46,800 | $0 | $0 | $0 |
| 2008 | $79,500 | $46,800 | $0 | $0 | $0 |
| 2007 | $61,800 | $24,300 | $0 | $0 | $0 |
Deed and Sales History
| 1 | 07/18/2017 | SWD | STATUTORY WARRANTY DEED | HUSTON LISA | MICHAEL STEPHEN & MARY RASCHKO | | | $271,000.00 | 132796 | 2017-05496 |
| 2 | 12/18/2014 | SWD | STATUTORY WARRANTY DEED | BRYAN MICHAEL & PAMELA | HUSTON LISA | | | $185,000.00 | 127123 | 2014-09181 |
Payout Agreement
| No payout information available.. |