Property
Account |
| Property ID: | 13255 | Abbreviated Legal Description: | 18-7-37 TAX 11 |
| Parcel Number: | 370718420014 | Agent Code: | |
| Type: | Real | | |
| Tax Area: | 101 - 140-4 | Land Use Code | 81 |
| Open Space: | N | DFL | N |
| Historic Property: | N | Remodel Property: | N |
| Multi-Family Redevelopment: | N | | |
| Township: | 7 | Section: | 18 |
| Range: | 37 |
Location |
| Address: | 562 FIVE MILE RD WA 99362 | Mapsco: | |
| Neighborhood: | 0 Farm | Map ID: | |
| Neighborhood CD: | 4240 |
Owner |
| Name: | PAUP REBECCA ANN REVOCABLE TRUST | Owner ID: | 69781 |
| Mailing Address: | 8806 W SKAGIT AVE KENNEWICK, WA 99336 | % Ownership: | 100.0000000000% |
| | | Exemptions: | |
Taxes and Assessment Details
Values
| (+) Improvement Homesite Value: | + | $0 | |
| (+) Improvement Non-Homesite Value: | + | $145,350 | |
| (+) Land Homesite Value: | + | $142,800 | |
| (+) Land Non-Homesite Value: | + | $0 | |
| (+) Curr Use (HS): | + | $0 | $0 |
| (+) Curr Use (NHS): | + | $0 | $0 |
| | | -------------------------- | |
| (=) Market Value: | = | $288,150 | |
| (–) Productivity Loss: | – | $0 | |
| | | -------------------------- | |
| (=) Subtotal: | = | $288,150 | |
| (+) Senior Appraised Value: | + | $0 | |
| (+) Non-Senior Appraised Value: | + | $288,150 | |
| | | -------------------------- | |
| (=) Total Appraised Value: | = | $288,150 | |
| (–) Senior Exemption Loss: | – | $0 | |
| (–) Exemption Loss: | – | $0 | |
| | | -------------------------- | |
| (=) Taxable Value: | = | $288,150 | |
Taxing Jurisdiction
| Owner: | PAUP REBECCA ANN REVOCABLE TRUST | | |
| % Ownership: | 100.0000000000% | | |
| Total Value: | $288,150 | | |
| Tax Area: | 101 - 140-4 |
| CERFD | CURRENT EXPENSE REFUND 010 | 0.0000000000 | $288,150 | $288,150 | $0.00 | | |
| CURREXP | CURRENT EXPENSE 010 | 1.0175366760 | $288,150 | $288,150 | $293.20 | | |
| HUMNSERV | HUMAN SERVICES 119 | 0.0250000000 | $288,150 | $288,150 | $7.20 | | |
| SLDREL | SOLDIERS RELIEF 121 | 0.0155990005 | $288,150 | $288,150 | $4.49 | | |
| EMERGSER | EMS 147 | 0.3792580840 | $288,150 | $288,150 | $109.28 | | |
| EMSRFD | EMS REFUND 147 | 0.0000000000 | $288,150 | $288,150 | $0.00 | | |
| FD4EXP | FD #4 EXPENSE 686 | 0.8836993059 | $288,150 | $288,150 | $254.64 | | |
| RLBRFD | RURAL LIBRARY REFUND 623 | 0.0000000000 | $288,150 | $288,150 | $0.00 | | |
| RURALLIB | RURAL LIBRARY 623 | 0.3710609029 | $288,150 | $288,150 | $106.92 | | |
| PORTRFD | PORT REFUND 640 | 0.0000000000 | $288,150 | $288,150 | $0.00 | | |
| PORTWWGEN | PORT OF WW 640 | 0.2460186015 | $288,150 | $288,150 | $70.89 | | |
| SD140BOND | SD #140 BOND 764 | 0.8342371393 | $288,150 | $288,150 | $240.39 | | |
| SD140GEN | SD #140 GENERAL 760 | 2.0646500647 | $288,150 | $288,150 | $594.93 | | |
| ST2 | STATE SCHOOL PART 2 600 | 0.8131451643 | $288,150 | $288,150 | $234.31 | | |
| STATESCHL | STATE SCHOOL 600 | 1.5158548041 | $288,150 | $288,150 | $436.79 | | |
| STREFUND | STATE REFUND LEVY 603 | 0.0000000000 | $288,150 | $288,150 | $0.00 | | |
| COROAD | COUNTY ROAD 115 | 1.6549953990 | $288,150 | $288,150 | $476.89 | | |
| CRPRD | COUNTY ROAD REFUND 115 | 0.0000000000 | $288,150 | $288,150 | $0.00 | | |
| | Total Tax Rate: | 9.8210551422 | | | | | |
| | | | | Taxes w/Current Exemptions: | $2,829.93 | | |
| | | | | Taxes w/o Exemptions: | $2,829.93 | | |
Improvement / Building
| Improvement #1: | RESIDENTIAL | State Code: | 81 | 1838.0 sqft | Value: | $145,350 |
| Exterior Wall: | SIDING | Heating/Cooling: | WARM & COOLED AIR | | Number of Bathrooms: | 2 | Number of Bedrooms: | 2 | | Plumbing: | 9 | Roof Covering: | WOOD SHAKE |
|
| | Type | Description | Class CD | Sub Class CD | Year Built | Area |
| | MA | Main Area | 1 | 30 | 1957 | 1838.0 |
| | POL2 | POLE BUILDING-CONCRETE | 1 | 30 | 1957 | 1200.0 |
| | ATG | Attached Garage | 1 | 30 | 1957 | 264.0 |
| | BASE | BASEMENT | 1 | 30 | 1957 | 1286.0 |
| | BMF | BASEMENT - MIN FINISH | 1 | 30 | 1957 | 200.0 |
| | RPO | OPEN PORCH W/ROOF | 1 | 30 | 1957 | 88.0 |
| | WOD | Wood Deck | 1 | 30 | 1957 | 272.0 |
| | SI1 | SITE IMPROVEMENT | 1 | 30 | 1957 | 2.0 |
Sketch
Property Image
Land
| 1 | HS-170,000 | Homesite 170,000 | 0.8400 | 0.00 | 0.00 | 0.00 | 1.00 | $142,800 | $0 |
Roll Value History
| 2026 | N/A | N/A | N/A | N/A | N/A |
| 2025 | $145,350 | $142,800 | $0 | $288,150 | $288,150 |
| 2024 | $145,350 | $142,800 | $0 | $288,150 | $288,150 |
| 2023 | $145,350 | $142,800 | $0 | $288,150 | $288,150 |
| 2022 | $171,000 | $71,400 | $0 | $242,400 | $242,400 |
| 2021 | $171,000 | $71,400 | $0 | $242,400 | $242,400 |
| 2020 | $171,000 | $71,400 | $0 | $242,400 | $242,400 |
| 2019 | $171,000 | $71,400 | $0 | $242,400 | $242,400 |
| 2018 | $171,000 | $71,400 | $0 | $242,400 | $242,400 |
| 2017 | $171,000 | $71,400 | $0 | $242,400 | $242,400 |
| 2016 | $171,000 | $71,400 | $0 | $242,400 | $242,400 |
| 2015 | $171,000 | $71,400 | $0 | $242,400 | $242,400 |
| 2014 | $171,000 | $71,400 | $0 | $242,400 | $242,400 |
| 2013 | $171,000 | $71,400 | $0 | $242,400 | $242,400 |
| 2012 | $171,000 | $71,400 | $0 | $0 | $0 |
| 2011 | $170,900 | $71,400 | $0 | $0 | $0 |
| 2010 | $167,900 | $71,400 | $0 | $0 | $0 |
| 2009 | $176,000 | $71,400 | $0 | $0 | $0 |
| 2008 | $176,000 | $71,400 | $0 | $0 | $0 |
| 2007 | $118,500 | $44,000 | $0 | $0 | $0 |
Deed and Sales History
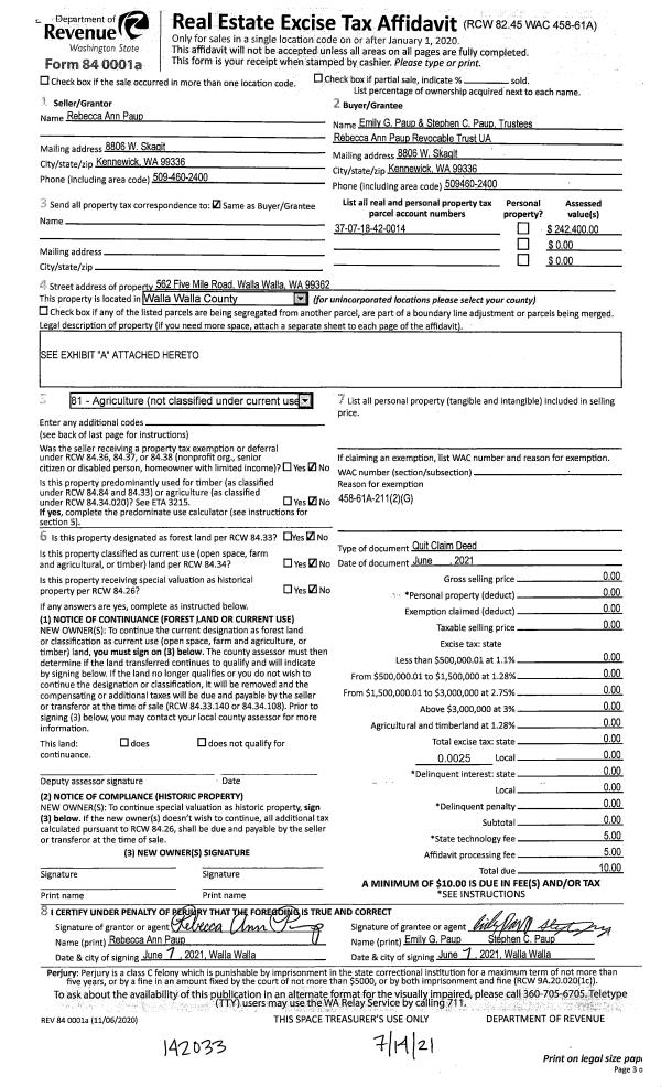
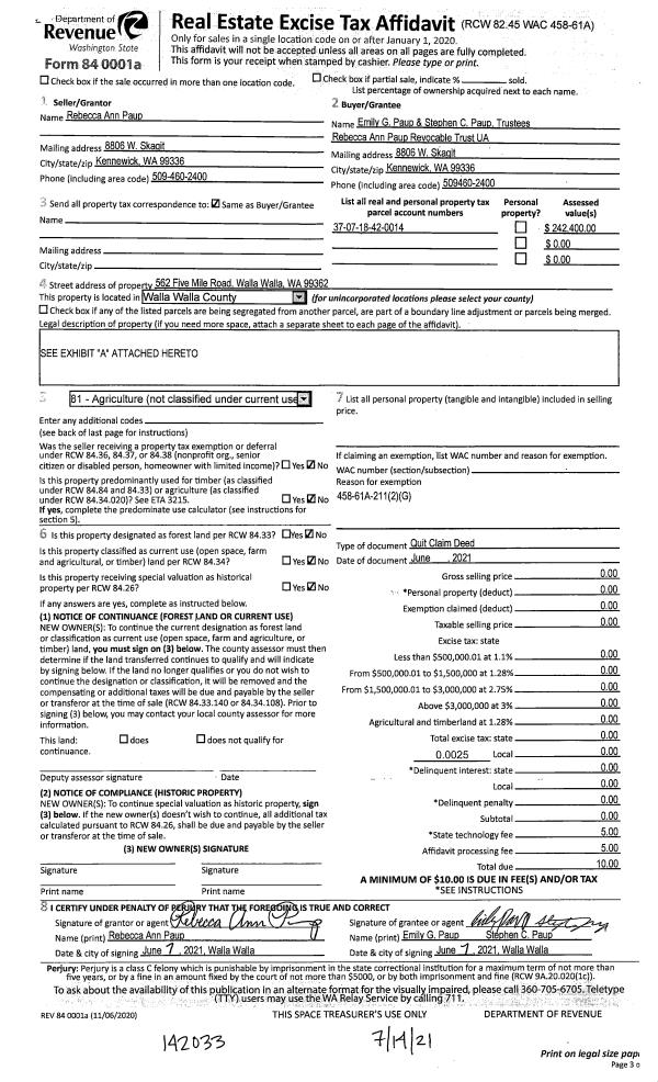
| 1 | 07/07/2021 | QCD | QUIT CLAIM DEED | PAUP REBECCA ANN | PAUP REBECCA ANN REVOCABLE TRUST | | | $0.00 | 142033 | 2021-08562 |
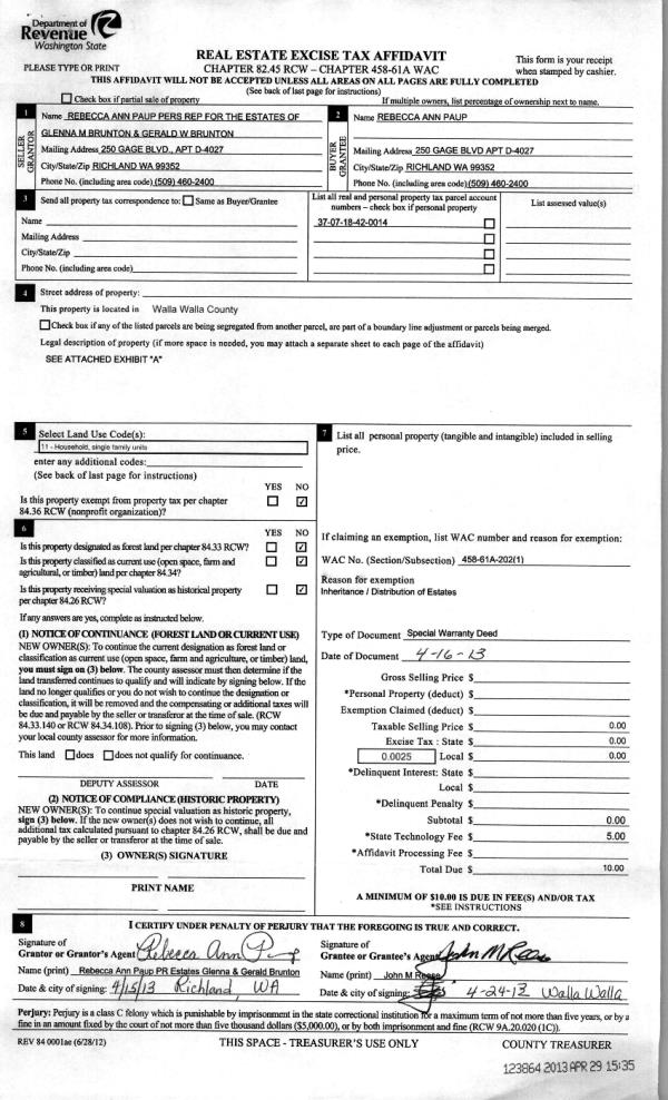
| 2 | 04/29/2013 | WARRANTY D | WARRANTY DEED | BRUNTON, GERALD W ESTATE OF | PAUP, REBECCA ANN | | | $0.00 | 123864 | 2013-04194 |
| 3 | 01/01/1957 | WARRANTY D | WARRANTY DEED | | | | | $0.00 | 0 | 2820-397997 |
Payout Agreement
| No payout information available.. |