Property
Account |
| Property ID: | 13240 | Abbreviated Legal Description: | WESTBOURNE ACRES LOT 1 BLOCK 1 LESS ELY PTN TO HWY |
| Parcel Number: | 310817540124 | Agent Code: | |
| Type: | Real | | |
| Tax Area: | 328 - 400-M-5 | Land Use Code | 11 |
| Open Space: | N | DFL | N |
| Historic Property: | N | Remodel Property: | N |
| Multi-Family Redevelopment: | N | | |
| Township: | 8 | Section: | 17 |
| Range: | 31 |
Location |
| Address: | 25 WESTBOURNE LOOP WA 99323 | Mapsco: | |
| Neighborhood: | G BURBANK SFR | Map ID: | |
| Neighborhood CD: | 214711 |
Owner |
| Name: | HUNSAKER MICHAEL & CHELSIE | Owner ID: | 67082 |
| Mailing Address: | 25 WESTBOURNE LOOP BURBANK, WA 99323 | % Ownership: | 100.0000000000% |
| | | Exemptions: | |
Taxes and Assessment Details
Values
| (+) Improvement Homesite Value: | + | $0 | |
| (+) Improvement Non-Homesite Value: | + | $276,640 | |
| (+) Land Homesite Value: | + | $0 | |
| (+) Land Non-Homesite Value: | + | $76,140 | |
| (+) Curr Use (HS): | + | $0 | $0 |
| (+) Curr Use (NHS): | + | $0 | $0 |
| | | -------------------------- | |
| (=) Market Value: | = | $352,780 | |
| (–) Productivity Loss: | – | $0 | |
| | | -------------------------- | |
| (=) Subtotal: | = | $352,780 | |
| (+) Senior Appraised Value: | + | $0 | |
| (+) Non-Senior Appraised Value: | + | $352,780 | |
| | | -------------------------- | |
| (=) Total Appraised Value: | = | $352,780 | |
| (–) Senior Exemption Loss: | – | $0 | |
| (–) Exemption Loss: | – | $0 | |
| | | -------------------------- | |
| (=) Taxable Value: | = | $352,780 | |
Taxing Jurisdiction
| Owner: | HUNSAKER MICHAEL & CHELSIE | | |
| % Ownership: | 100.0000000000% | | |
| Total Value: | $352,780 | | |
| Tax Area: | 328 - 400-M-5 |
| CERFD | CURRENT EXPENSE REFUND 010 | 0.0000000000 | $352,780 | $352,780 | $0.00 | | |
| CURREXP | CURRENT EXPENSE 010 | 1.0175366760 | $352,780 | $352,780 | $358.97 | | |
| HUMNSERV | HUMAN SERVICES 119 | 0.0250000000 | $352,780 | $352,780 | $8.82 | | |
| SLDREL | SOLDIERS RELIEF 121 | 0.0155990005 | $352,780 | $352,780 | $5.50 | | |
| EMERGSER | EMS 147 | 0.3792580840 | $352,780 | $352,780 | $133.79 | | |
| EMSRFD | EMS REFUND 147 | 0.0000000000 | $352,780 | $352,780 | $0.00 | | |
| FD5EXP | FD #5 EXPENSE 689 | 1.2045331840 | $352,780 | $352,780 | $424.94 | | |
| RLBRFD | RURAL LIBRARY REFUND 623 | 0.0000000000 | $352,780 | $352,780 | $0.00 | | |
| RURALLIB | RURAL LIBRARY 623 | 0.3710609029 | $352,780 | $352,780 | $130.90 | | |
| PORTRFD | PORT REFUND 640 | 0.0000000000 | $352,780 | $352,780 | $0.00 | | |
| PORTWWGEN | PORT OF WW 640 | 0.2460186015 | $352,780 | $352,780 | $86.79 | | |
| SD400BOND | SD #400 BOND 793 | 0.0000000000 | $352,780 | $352,780 | $0.00 | | |
| SD400CAP | SD #400 CP 792 | 0.3443722657 | $352,780 | $352,780 | $121.49 | | |
| SD400GEN | SD #400 GENERAL 790 | 1.9278469916 | $352,780 | $352,780 | $680.11 | | |
| ST2 | STATE SCHOOL PART 2 600 | 0.8131451643 | $352,780 | $352,780 | $286.86 | | |
| STATESCHL | STATE SCHOOL 600 | 1.5158548041 | $352,780 | $352,780 | $534.76 | | |
| STREFUND | STATE REFUND LEVY 603 | 0.0000000000 | $352,780 | $352,780 | $0.00 | | |
| COROAD | COUNTY ROAD 115 | 1.6549953990 | $352,780 | $352,780 | $583.85 | | |
| CRPRD | COUNTY ROAD REFUND 115 | 0.0000000000 | $352,780 | $352,780 | $0.00 | | |
| | Total Tax Rate: | 9.5152210736 | | | | | |
| | | | | Taxes w/Current Exemptions: | $3,356.78 | | |
| | | | | Taxes w/o Exemptions: | $3,356.78 | | |
Improvement / Building
| Improvement #1: | RESIDENTIAL | State Code: | 11 | 1167.0 sqft | Value: | $276,640 |
| Exterior Wall: | HARDBOARD | Heating/Cooling: | WARM & COOLED AIR | | Number of Bathrooms: | 3 | Number of Bedrooms: | 3 | | Plumbing: | 12 | Roof Covering: | COMP SHINGLE |
|
| | Type | Description | Class CD | Sub Class CD | Year Built | Area |
| | MA | Main Area | 1 | 35 | 1981 | 1167.0 |
| | SI1 | SITE IMPROVEMENT | 1 | 35 | 1981 | 3.0 |
| | BASE | BASEMENT | 1 | 35 | 1981 | 1144.0 |
| | BPF | BASEMENT -PARTITIONED FINISH | 1 | 35 | 1981 | 1144.0 |
| | ATG | Attached Garage | 1 | 35 | 1981 | 520.0 |
| | OSP | Open | 1 | 35 | 1981 | 40.0 |
| | S1F | Single One Story Fireplace | 1 | 35 | 1981 | 1.0 |
| | WOD | Wood Deck | 1 | 35 | 1981 | 100.0 |
Sketch
Property Image
Land
| 1 | RES 1 | Converted: Residential | 0.7600 | 33106.00 | 0.00 | 0.00 | 1.00 | $76,140 | $0 |
Roll Value History
| 2026 | N/A | N/A | N/A | N/A | N/A |
| 2025 | $276,640 | $76,140 | $0 | $352,780 | $352,780 |
| 2024 | $276,640 | $76,140 | $0 | $352,780 | $352,780 |
| 2023 | $276,640 | $76,140 | $0 | $352,780 | $352,780 |
| 2022 | $263,470 | $76,140 | $0 | $339,610 | $339,610 |
| 2021 | $263,470 | $76,140 | $0 | $339,610 | $339,610 |
| 2020 | $239,020 | $45,900 | $0 | $284,920 | $284,920 |
| 2019 | $153,740 | $45,900 | $0 | $199,640 | $199,640 |
| 2018 | $115,540 | $45,900 | $0 | $161,440 | $161,440 |
| 2017 | $115,540 | $45,900 | $0 | $161,440 | $161,440 |
| 2016 | $110,040 | $45,900 | $0 | $155,940 | $155,940 |
| 2015 | $110,040 | $45,900 | $0 | $155,940 | $155,940 |
| 2014 | $104,800 | $45,900 | $0 | $150,700 | $150,700 |
| 2013 | $104,800 | $45,900 | $0 | $150,700 | $150,700 |
| 2012 | $104,800 | $45,900 | $0 | $0 | $0 |
| 2011 | $104,800 | $45,900 | $0 | $0 | $0 |
| 2010 | $104,800 | $45,900 | $0 | $0 | $0 |
| 2009 | $121,100 | $34,900 | $0 | $0 | $0 |
| 2008 | $85,100 | $34,900 | $0 | $0 | $0 |
| 2007 | $85,100 | $34,900 | $0 | $0 | $0 |
Deed and Sales History
| 1 | 05/04/2020 | SWD | STATUTORY WARRANTY DEED | BARRETT GLENN R & ALICE R | HUNSAKER MICHAEL & CHELSIE | | | $332,500.00 | 139026 | 2020-03834 |
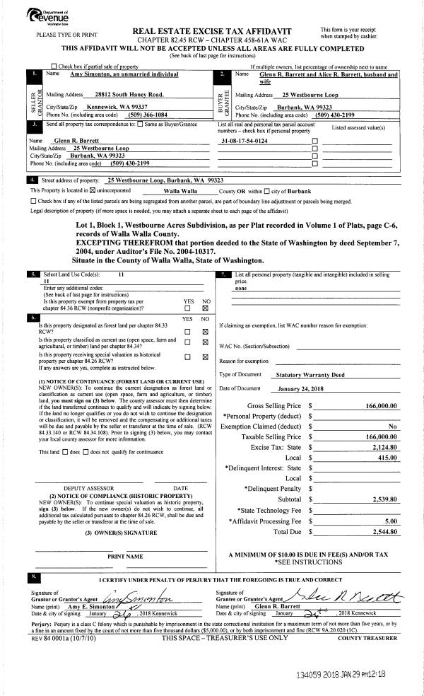
| 2 | 01/29/2018 | SWD | STATUTORY WARRANTY DEED | SIMONTON AMY E | BARRETT GLENN R & ALICE R | | | $166,000.00 | 134059 | 2018-00794 |
| 3 | 09/29/2015 | QCD | QUIT CLAIM DEED | SIMONTON RICHARD T | SIMONTON AMY E | | | $0.00 | 128918 | 2015-08605 |
Payout Agreement
| No payout information available.. |