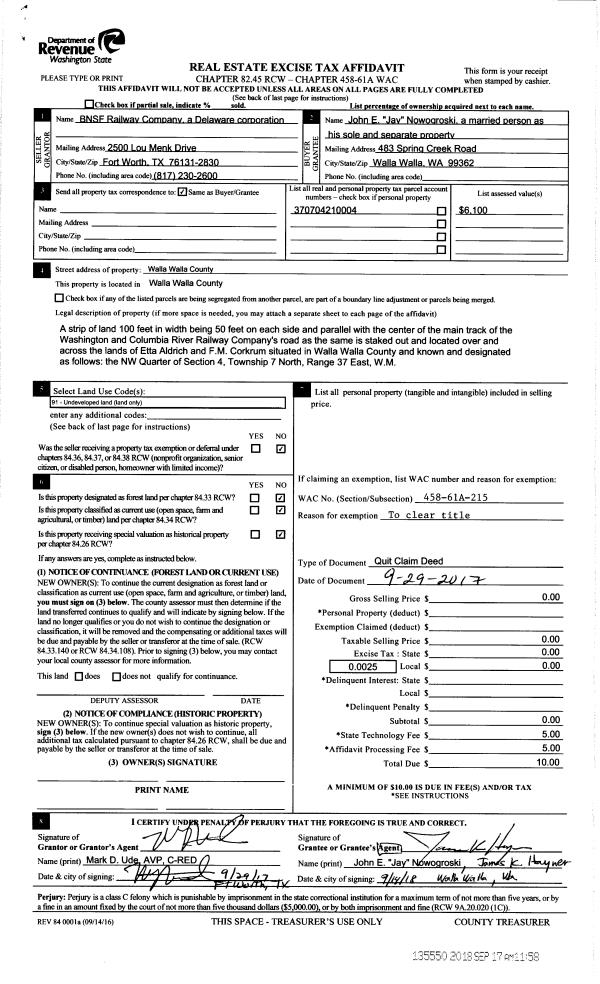
Property
Account |
| Property ID: | 13141 | Abbreviated Legal Description: | 4-7-37 NON-OPER RR PROP RUNNING THRU N1/2NW1/4 |
| Parcel Number: | 370704210004 | Agent Code: | |
| Type: | Real | | |
| Tax Area: | 310 - 101-8 | Land Use Code | 91 |
| Open Space: | N | DFL | N |
| Historic Property: | N | Remodel Property: | N |
| Multi-Family Redevelopment: | N | | |
| Township: | 7 | Section: | 4 |
| Range: | 37 |
Location |
| Address: | WA 99329 | Mapsco: | |
| Neighborhood: | 0 Farm | Map ID: | |
| Neighborhood CD: | 4240 |
Owner |
| Name: | NOWOGROSKI JOHN E | Owner ID: | 15035 |
| Mailing Address: | 483 SPRING CREEK RD WAITSBURG, WA 99361 | % Ownership: | 100.0000000000% |
| | | Exemptions: | |
Taxes and Assessment Details
Values
| (+) Improvement Homesite Value: | + | $0 | |
| (+) Improvement Non-Homesite Value: | + | $0 | |
| (+) Land Homesite Value: | + | $0 | |
| (+) Land Non-Homesite Value: | + | $11,910 | |
| (+) Curr Use (HS): | + | $0 | $0 |
| (+) Curr Use (NHS): | + | $0 | $0 |
| | | -------------------------- | |
| (=) Market Value: | = | $11,910 | |
| (–) Productivity Loss: | – | $0 | |
| | | -------------------------- | |
| (=) Subtotal: | = | $11,910 | |
| (+) Senior Appraised Value: | + | $0 | |
| (+) Non-Senior Appraised Value: | + | $11,910 | |
| | | -------------------------- | |
| (=) Total Appraised Value: | = | $11,910 | |
| (–) Senior Exemption Loss: | – | $0 | |
| (–) Exemption Loss: | – | $0 | |
| | | -------------------------- | |
| (=) Taxable Value: | = | $11,910 | |
Taxing Jurisdiction
| Owner: | NOWOGROSKI JOHN E | | |
| % Ownership: | 100.0000000000% | | |
| Total Value: | $11,910 | | |
| Tax Area: | 310 - 101-8 |
| CERFD | CURRENT EXPENSE REFUND 010 | 0.0000000000 | $11,910 | $11,910 | $0.00 | | |
| CURREXP | CURRENT EXPENSE 010 | 1.0175366760 | $11,910 | $11,910 | $12.12 | | |
| HUMNSERV | HUMAN SERVICES 119 | 0.0250000000 | $11,910 | $11,910 | $0.30 | | |
| SLDREL | SOLDIERS RELIEF 121 | 0.0155990005 | $11,910 | $11,910 | $0.19 | | |
| EMERGSER | EMS 147 | 0.3792580840 | $11,910 | $11,910 | $4.52 | | |
| EMSRFD | EMS REFUND 147 | 0.0000000000 | $11,910 | $11,910 | $0.00 | | |
| FD8EXP | FD #8 EXPENSE 697 | 0.6647992540 | $11,910 | $11,910 | $7.92 | | |
| RLBRFD | RURAL LIBRARY REFUND 623 | 0.0000000000 | $11,910 | $11,910 | $0.00 | | |
| RURALLIB | RURAL LIBRARY 623 | 0.3710609029 | $11,910 | $11,910 | $4.42 | | |
| PORTRFD | PORT REFUND 640 | 0.0000000000 | $11,910 | $11,910 | $0.00 | | |
| PORTWWGEN | PORT OF WW 640 | 0.2460186015 | $11,910 | $11,910 | $2.93 | | |
| SD101CAP | SD #101 CAP 752 | 0.5894423472 | $11,910 | $11,910 | $7.02 | | |
| SD101GEN | SD #101 GENERAL 750 | 0.7455117868 | $11,910 | $11,910 | $8.88 | | |
| ST2 | STATE SCHOOL PART 2 600 | 0.8131451643 | $11,910 | $11,910 | $9.68 | | |
| STATESCHL | STATE SCHOOL 600 | 1.5158548041 | $11,910 | $11,910 | $18.05 | | |
| STREFUND | STATE REFUND LEVY 603 | 0.0000000000 | $11,910 | $11,910 | $0.00 | | |
| COROAD | COUNTY ROAD 115 | 1.6549953990 | $11,910 | $11,910 | $19.71 | | |
| CRPRD | COUNTY ROAD REFUND 115 | 0.0000000000 | $11,910 | $11,910 | $0.00 | | |
| | Total Tax Rate: | 8.0382220203 | | | | | |
| | | | | Taxes w/Current Exemptions: | $95.74 | | |
| | | | | Taxes w/o Exemptions: | $95.74 | | |
Improvement / Building
Sketch
| No sketches available for this property. |
Property Image
Land
| 1 | 80-C1 | Class 1 80 BU | 5.5200 | 240451.20 | 0.00 | 0.00 | 1.00 | $11,910 | $0 |
Roll Value History
| 2026 | N/A | N/A | N/A | N/A | N/A |
| 2025 | $0 | $12,690 | $0 | $12,690 | $12,690 |
| 2024 | $0 | $12,200 | $0 | $12,200 | $12,200 |
| 2023 | $0 | $11,910 | $0 | $11,910 | $11,910 |
| 2022 | $0 | $11,200 | $0 | $11,200 | $11,200 |
| 2021 | $0 | $10,310 | $0 | $10,310 | $10,310 |
| 2020 | $0 | $9,630 | $0 | $9,630 | $9,630 |
| 2019 | $0 | $9,210 | $0 | $9,210 | $9,210 |
| 2018 | $0 | $9,170 | $0 | $9,170 | $9,170 |
| 2017 | $0 | $8,790 | $0 | $8,790 | $8,790 |
| 2016 | $0 | $6,100 | $0 | $6,100 | $6,100 |
| 2015 | $0 | $6,100 | $0 | $6,100 | $6,100 |
| 2014 | $0 | $6,100 | $0 | $6,100 | $6,100 |
| 2013 | $0 | $6,100 | $0 | $6,100 | $6,100 |
| 2012 | $0 | $6,100 | $0 | $0 | $0 |
| 2011 | $0 | $6,100 | $0 | $0 | $0 |
| 2010 | $0 | $6,100 | $0 | $0 | $0 |
| 2009 | $0 | $6,100 | $0 | $0 | $0 |
| 2008 | $0 | $6,100 | $0 | $0 | $0 |
| 2007 | $0 | $6,100 | $0 | $0 | $0 |
Deed and Sales History
| 1 | 09/14/2018 | QCD | QUIT CLAIM DEED | BNSF RAILWAY COMPANY | NOWOGROSKI JOHN E | | | $0.00 | 135550 | 2018-07711 |
Payout Agreement
| No payout information available.. |