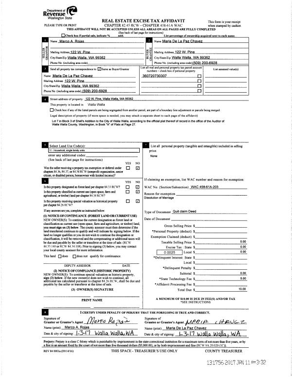
Property
Account |
| Property ID: | 1295 | Abbreviated Legal Description: | SHEILS ADDN LT 7 BLK 3 |
| Parcel Number: | 360720730307 | Agent Code: | |
| Type: | Real | | |
| Tax Area: | 1 - OL-140-F | Land Use Code | 11 |
| Open Space: | N | DFL | N |
| Historic Property: | N | Remodel Property: | N |
| Multi-Family Redevelopment: | N | | |
| Township: | 7 | Section: | 20 |
| Range: | 36 |
Location |
| Address: | 122 W PINE ST WA 99362 | Mapsco: | |
| Neighborhood: | F SFR | Map ID: | |
| Neighborhood CD: | 512011 |
Owner |
| Name: | CHAVEZ MARIA DE LA PAZ | Owner ID: | 60313 |
| Mailing Address: | 122 W PINE WALLA WALLA, WA 99362 | % Ownership: | 100.0000000000% |
| | | Exemptions: | |
Taxes and Assessment Details
Property Tax Information as of
02/21/2026
Click on "Statement Details" to expand or collapse a tax statement.
* Please enter a valid date ** Please enter a valid date *
Statement Details |
| | TOTAL: | $0.00 | $0.00 | $0.00 | $0.00 | $0.00 | $0.00 |
|
| | $0.00 | $0.00 | $0.00 | $0.00 | $0.00 | $0.00 |
Values
| (+) Improvement Homesite Value: | + | $0 | |
| (+) Improvement Non-Homesite Value: | + | $139,210 | |
| (+) Land Homesite Value: | + | $0 | |
| (+) Land Non-Homesite Value: | + | $37,800 | |
| (+) Curr Use (HS): | + | $0 | $0 |
| (+) Curr Use (NHS): | + | $0 | $0 |
| | | -------------------------- | |
| (=) Market Value: | = | $177,010 | |
| (–) Productivity Loss: | – | $0 | |
| | | -------------------------- | |
| (=) Subtotal: | = | $177,010 | |
| (+) Senior Appraised Value: | + | $0 | |
| (+) Non-Senior Appraised Value: | + | $177,010 | |
| | | -------------------------- | |
| (=) Total Appraised Value: | = | $177,010 | |
| (–) Senior Exemption Loss: | – | $0 | |
| (–) Exemption Loss: | – | $0 | |
| | | -------------------------- | |
| (=) Taxable Value: | = | $177,010 | |
Taxing Jurisdiction
| Owner: | CHAVEZ MARIA DE LA PAZ | | |
| % Ownership: | 100.0000000000% | | |
| Total Value: | $177,010 | | |
| Tax Area: | 1 - OL-140-F |
| CERFD | CURRENT EXPENSE REFUND 010 | 0.0000000000 | $177,010 | $177,010 | $0.00 | | |
| CURREXP | CURRENT EXPENSE 010 | 1.0175366760 | $177,010 | $177,010 | $180.11 | | |
| HUMNSERV | HUMAN SERVICES 119 | 0.0250000000 | $177,010 | $177,010 | $4.43 | | |
| SLDREL | SOLDIERS RELIEF 121 | 0.0155990005 | $177,010 | $177,010 | $2.76 | | |
| EMERGSER | EMS 147 | 0.3792580840 | $177,010 | $177,010 | $67.13 | | |
| EMSRFD | EMS REFUND 147 | 0.0000000000 | $177,010 | $177,010 | $0.00 | | |
| PORTRFD | PORT REFUND 640 | 0.0000000000 | $177,010 | $177,010 | $0.00 | | |
| PORTWWGEN | PORT OF WW 640 | 0.2460186015 | $177,010 | $177,010 | $43.55 | | |
| SD140BOND | SD #140 BOND 764 | 0.8342371393 | $177,010 | $177,010 | $147.67 | | |
| SD140GEN | SD #140 GENERAL 760 | 2.0646500647 | $177,010 | $177,010 | $365.46 | | |
| ST2 | STATE SCHOOL PART 2 600 | 0.8131451643 | $177,010 | $177,010 | $143.93 | | |
| STATESCHL | STATE SCHOOL 600 | 1.5158548041 | $177,010 | $177,010 | $268.32 | | |
| STREFUND | STATE REFUND LEVY 603 | 0.0000000000 | $177,010 | $177,010 | $0.00 | | |
| CWWBOND | C OF WW BOND 643 | 0.2760494372 | $177,010 | $177,010 | $48.86 | | |
| CWWGEN | CITY OF WW 631 | 1.6100204973 | $177,010 | $177,010 | $284.99 | | |
| CWWRFD | CITY OF WALLA WALLA REFUND 631 | 0.0000000000 | $177,010 | $177,010 | $0.00 | | |
| | Total Tax Rate: | 8.7973694689 | | | | | |
| | | | | Taxes w/Current Exemptions: | $1,557.21 | | |
| | | | | Taxes w/o Exemptions: | $1,557.21 | | |
Improvement / Building
| Improvement #1: | RESIDENTIAL | State Code: | 11 | 1401.0 sqft | Value: | $139,210 |
| Exterior Wall: | SIDING | Heating/Cooling: | WARM & COOLED AIR | | Number of Bathrooms: | 1 | Number of Bedrooms: | 2 | | Plumbing: | 6 | Roof Covering: | COMP SHINGLE |
|
| | Type | Description | Class CD | Sub Class CD | Year Built | Area |
| | MA | Main Area | 1 | 30 | 1920 | 1401.0 |
| | GFP | GAS FIREPLACE | 1 | 30 | 1994 | 1.0 |
| | SI1 | SITE IMPROVEMENT | 1 | 30 | 0 | 1.0 |
| | RPS | PORCH W/STEPS,ROOF | 1 | 30 | 1920 | 20.0 |
Sketch
Property Image
Land
| 1 | RES 1 | Converted: Residential | 0.1653 | 7200.00 | 0.00 | 0.00 | 1.00 | $37,800 | $0 |
Roll Value History
| 2026 | N/A | N/A | N/A | N/A | N/A |
| 2025 | $259,050 | $64,800 | $0 | $323,850 | $323,850 |
| 2024 | $235,500 | $64,800 | $0 | $300,300 | $300,300 |
| 2023 | $139,210 | $37,800 | $0 | $177,010 | $177,010 |
| 2022 | $139,210 | $37,800 | $0 | $177,010 | $177,010 |
| 2021 | $99,440 | $37,800 | $0 | $137,240 | $137,240 |
| 2020 | $99,440 | $37,800 | $0 | $137,240 | $137,240 |
| 2019 | $99,440 | $37,800 | $0 | $137,240 | $137,240 |
| 2018 | $94,700 | $37,800 | $0 | $132,500 | $132,500 |
| 2017 | $101,850 | $21,600 | $0 | $123,450 | $123,450 |
| 2016 | $101,850 | $21,600 | $0 | $123,450 | $123,450 |
| 2015 | $101,850 | $21,600 | $0 | $123,450 | $123,450 |
| 2014 | $97,000 | $21,600 | $0 | $118,600 | $118,600 |
| 2013 | $97,000 | $21,600 | $0 | $118,600 | $118,600 |
| 2012 | $97,000 | $21,600 | $0 | $0 | $0 |
| 2011 | $103,200 | $21,600 | $0 | $0 | $0 |
| 2010 | $103,200 | $21,600 | $0 | $0 | $0 |
| 2009 | $117,100 | $21,600 | $0 | $0 | $0 |
| 2008 | $70,900 | $21,600 | $0 | $0 | $0 |
| 2007 | $70,900 | $21,600 | $0 | $0 | $0 |
Deed and Sales History
| 1 | 01/03/2017 | QCD | QUIT CLAIM DEED | ROJAS MARCO A | CHAVEZ MARIA DE LA PAZ | | | $0.00 | 131756 | 2017-00286 |
| 2 | 01/10/2003 | QCD | QUIT CLAIM DEED | CHAVEZ, REFUGIO | ROJAS, MARCO A | | | | 101190 | 2003-00450 |
| 3 | 07/26/1995 | WARRANTY D | WARRANTY DEED | | | | | $74,950.00 | 84419 | 2329-506808 |
Payout Agreement
| No payout information available.. |