Property
Account |
| Property ID: | 1289 | Abbreviated Legal Description: | HARVEST MEADOWS LT 15 BLK 2 |
| Parcel Number: | 350601520215 | Agent Code: | |
| Type: | Real | | |
| Tax Area: | 75 - CP 250 | Land Use Code | 11 |
| Open Space: | N | DFL | N |
| Historic Property: | N | Remodel Property: | N |
| Multi-Family Redevelopment: | N | | |
| Township: | 6 | Section: | 1 |
| Range: | 35 |
Location |
| Address: | 1107 SE HARVEST DR WA 99324 | Mapsco: | |
| Neighborhood: | G SFR Rural/City Inf | Map ID: | |
| Neighborhood CD: | 114012 |
Owner |
| Name: | KRUGER RICHARD W & CHRISTINE K | Owner ID: | 67040 |
| Mailing Address: | 1107 SE HARVEST DR COLLEGE PLACE, WA 99324 | % Ownership: | 100.0000000000% |
| | | Exemptions: | |
Taxes and Assessment Details
Property Tax Information as of
02/21/2026
Click on "Statement Details" to expand or collapse a tax statement.
* Please enter a valid date ** Please enter a valid date *
Statement Details |
| | TOTAL: | $0.00 | $0.00 | $0.00 | $0.00 | $0.00 | $0.00 |
|
| | $0.00 | $0.00 | $0.00 | $0.00 | $0.00 | $0.00 |
Values
| (+) Improvement Homesite Value: | + | $0 | |
| (+) Improvement Non-Homesite Value: | + | $440,710 | |
| (+) Land Homesite Value: | + | $0 | |
| (+) Land Non-Homesite Value: | + | $85,000 | |
| (+) Curr Use (HS): | + | $0 | $0 |
| (+) Curr Use (NHS): | + | $0 | $0 |
| | | -------------------------- | |
| (=) Market Value: | = | $525,710 | |
| (–) Productivity Loss: | – | $0 | |
| | | -------------------------- | |
| (=) Subtotal: | = | $525,710 | |
| (+) Senior Appraised Value: | + | $0 | |
| (+) Non-Senior Appraised Value: | + | $525,710 | |
| | | -------------------------- | |
| (=) Total Appraised Value: | = | $525,710 | |
| (–) Senior Exemption Loss: | – | $0 | |
| (–) Exemption Loss: | – | $0 | |
| | | -------------------------- | |
| (=) Taxable Value: | = | $525,710 | |
Taxing Jurisdiction
| Owner: | KRUGER RICHARD W & CHRISTINE K | | |
| % Ownership: | 100.0000000000% | | |
| Total Value: | $525,710 | | |
| Tax Area: | 75 - CP 250 |
| CERFD | CURRENT EXPENSE REFUND 010 | 0.0000000000 | $525,710 | $525,710 | $0.00 | | |
| CURREXP | CURRENT EXPENSE 010 | 1.0175366760 | $525,710 | $525,710 | $534.93 | | |
| HUMNSERV | HUMAN SERVICES 119 | 0.0250000000 | $525,710 | $525,710 | $13.14 | | |
| SLDREL | SOLDIERS RELIEF 121 | 0.0155990005 | $525,710 | $525,710 | $8.20 | | |
| COLLPLBOND | C OF CP BOND 644 | 0.4374241808 | $525,710 | $525,710 | $229.96 | | |
| COLLPLGEN | CITY OF CP 632 | 1.4453819216 | $525,710 | $525,710 | $759.85 | | |
| EMERGSER | EMS 147 | 0.3792580840 | $525,710 | $525,710 | $199.38 | | |
| EMSRFD | EMS REFUND 147 | 0.0000000000 | $525,710 | $525,710 | $0.00 | | |
| RURALLIB | RURAL LIBRARY 623 | 0.3710609029 | $525,710 | $525,710 | $195.07 | | |
| PORTRFD | PORT REFUND 640 | 0.0000000000 | $525,710 | $525,710 | $0.00 | | |
| PORTWWGEN | PORT OF WW 640 | 0.2460186015 | $525,710 | $525,710 | $129.33 | | |
| SD250BOND | SD #250 BOND 773 | 1.4560608159 | $525,710 | $525,710 | $765.47 | | |
| SD250GEN | SD #250 GENERAL 770 | 2.3880724087 | $525,710 | $525,710 | $1,255.43 | | |
| ST2 | STATE SCHOOL PART 2 600 | 0.8131451643 | $525,710 | $525,710 | $427.48 | | |
| STATESCHL | STATE SCHOOL 600 | 1.5158548041 | $525,710 | $525,710 | $796.90 | | |
| STREFUND | STATE REFUND LEVY 603 | 0.0000000000 | $525,710 | $525,710 | $0.00 | | |
| | Total Tax Rate: | 10.1104125603 | | | | | |
| | | | | Taxes w/Current Exemptions: | $5,315.14 | | |
| | | | | Taxes w/o Exemptions: | $5,315.14 | | |
Improvement / Building
| Improvement #1: | RESIDENTIAL | State Code: | 11 | 2376.0 sqft | Value: | $440,710 |
| Exterior Wall: | HARDBOARD | Heating/Cooling: | WARM & COOLED AIR | | Number of Bathrooms: | 2.5 | Number of Bedrooms: | 3 | | Plumbing: | 15 | Roof Covering: | COMP SHINGLE |
|
| | Type | Description | Class CD | Sub Class CD | Year Built | Area |
| | MA | Main Area | 1 | 40 | 2000 | 2376.0 |
| | SI1 | SITE IMPROVEMENT | 1 | 40 | 2000 | 3.0 |
| | ATG | Attached Garage | 1 | 40 | 2000 | 772.0 |
| | RPC | OPEN PORCH W/ROOF , CEILED | 1 | 40 | 2000 | 42.0 |
| | RPC | OPEN PORCH W/ROOF , CEILED | 1 | 40 | 2000 | 220.0 |
| | GFP | GAS FIREPLACE | 1 | 40 | 2000 | 1.0 |
Sketch
Property Image
Land
| 1 | RES 1 | Converted: Residential | 0.2564 | 11167.00 | 0.00 | 0.00 | 1.00 | $85,000 | $0 |
Roll Value History
| 2026 | N/A | N/A | N/A | N/A | N/A |
| 2025 | $396,640 | $135,000 | $0 | $531,640 | $531,640 |
| 2024 | $440,710 | $85,000 | $0 | $525,710 | $525,710 |
| 2023 | $440,710 | $85,000 | $0 | $525,710 | $525,710 |
| 2022 | $383,230 | $85,000 | $0 | $468,230 | $468,230 |
| 2021 | $283,870 | $85,000 | $0 | $368,870 | $368,870 |
| 2020 | $283,870 | $85,000 | $0 | $368,870 | $368,870 |
| 2019 | $303,870 | $65,000 | $0 | $368,870 | $368,870 |
| 2018 | $276,240 | $65,000 | $0 | $341,240 | $341,240 |
| 2017 | $276,240 | $65,000 | $0 | $341,240 | $341,240 |
| 2016 | $251,130 | $65,000 | $0 | $316,130 | $316,130 |
| 2015 | $251,130 | $65,000 | $0 | $316,130 | $316,130 |
| 2014 | $228,300 | $65,000 | $0 | $293,300 | $293,300 |
| 2013 | $228,300 | $65,000 | $0 | $293,300 | $293,300 |
| 2012 | $228,300 | $65,000 | $0 | $0 | $0 |
| 2011 | $243,700 | $65,000 | $0 | $0 | $0 |
| 2010 | $243,700 | $65,000 | $0 | $0 | $0 |
| 2009 | $278,000 | $65,000 | $0 | $0 | $0 |
| 2008 | $210,100 | $35,000 | $0 | $0 | $0 |
| 2007 | $210,100 | $35,000 | $0 | $0 | $0 |
Deed and Sales History
| 1 | 04/16/2020 | SWD | STATUTORY WARRANTY DEED | MARSH NICOLAS CHARLES | KRUGER RICHARD W & CHRISTINE K | | | $380,000.00 | 138934 | 2020-03227 |
| 2 | 04/16/2020 | QCD | QUIT CLAIM DEED | MARSH NICOLAS CHARLES & SELENE VERA | MARSH NICOLAS CHARLES | | | $0.00 | 138933 | 2020-03226 |
| 3 | 04/16/2020 | QCD | QUIT CLAIM DEED | MARSH NICOLAS CHARLES & SELENE VERA | | | | | 138932 | 2020-03225 |
| 4 | 10/13/2017 | SWD | STATUTORY WARRANTY DEED | MC CORMICK DEBRA | MARSH NICOLAS CHARLES & SELENE VERA | | | $357,000.00 | 133414 | 2017-08163 |
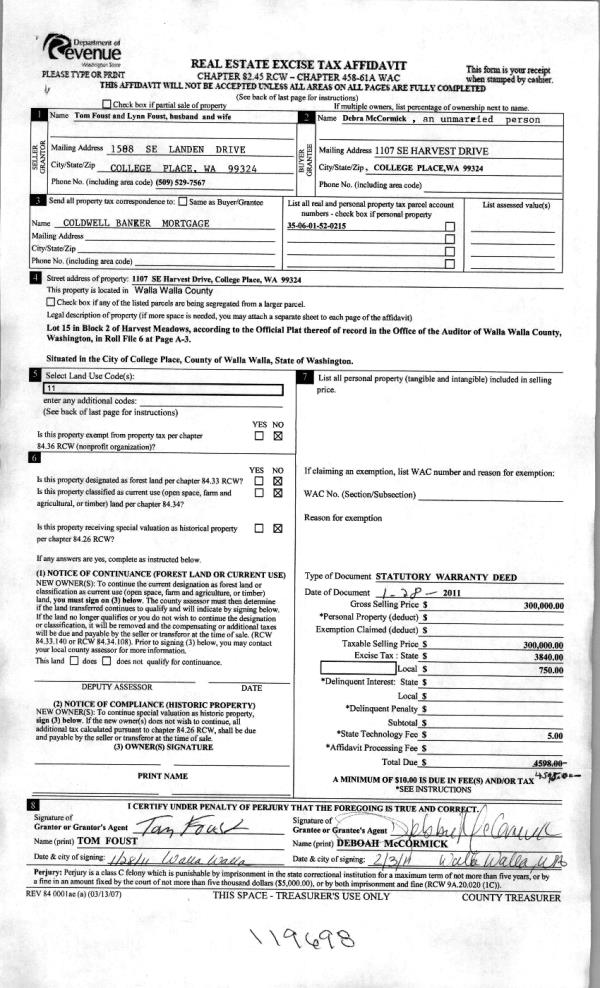
| 5 | 02/04/2011 | WARRANTY D | WARRANTY DEED | FOUST, TOM & LYNN | MC CORMICK, DEBRA | | | $300,000.00 | 119698 | 2011-01139 |
| 6 | 01/07/2003 | WARRANTY D | WARRANTY DEED | SCULLY, J BRENT & HEATHER | FOUST, TOM & LYNN | | | $258,000.00 | 101156 | 2003-00208 |
| 7 | 03/08/2000 | WARRANTY D | WARRANTY DEED | | | | | $30,000.00 | 94652 | 2950-002262 |
Payout Agreement
| No payout information available.. |