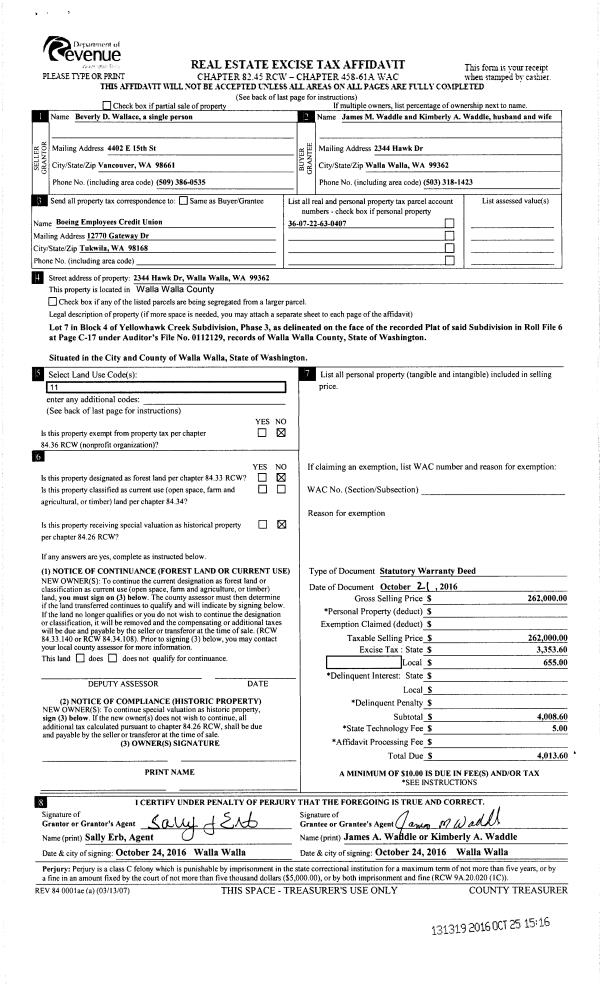
Property
Account |
| Property ID: | 1272 | Abbreviated Legal Description: | YELLOWHAWK CREEK SUB PHASE 3 LT7 BLK 4 |
| Parcel Number: | 360722630407 | Agent Code: | |
| Type: | Real | | |
| Tax Area: | 1 - OL-140-F | Land Use Code | 11 |
| Open Space: | N | DFL | N |
| Historic Property: | N | Remodel Property: | N |
| Multi-Family Redevelopment: | N | | |
| Township: | 7 | Section: | 22 |
| Range: | 36 |
Location |
| Address: | 2344 HAWK DR WA 99362 | Mapsco: | |
| Neighborhood: | A-Superior SFR | Map ID: | |
| Neighborhood CD: | 413211 |
Owner |
| Name: | WADDLE JAMES M & KIMBERLY A | Owner ID: | 59865 |
| Mailing Address: | 2344 HAWK DR WALLA WALLA, WA 99362 | % Ownership: | 100.0000000000% |
| | | Exemptions: | |
Taxes and Assessment Details
Property Tax Information as of
02/21/2026
Click on "Statement Details" to expand or collapse a tax statement.
* Please enter a valid date ** Please enter a valid date *
Statement Details |
| | TOTAL: | $0.00 | $0.00 | $0.00 | $0.00 | $0.00 | $0.00 |
|
| | $0.00 | $0.00 | $0.00 | $0.00 | $0.00 | $0.00 |
Values
| (+) Improvement Homesite Value: | + | $0 | |
| (+) Improvement Non-Homesite Value: | + | $343,840 | |
| (+) Land Homesite Value: | + | $0 | |
| (+) Land Non-Homesite Value: | + | $80,000 | |
| (+) Curr Use (HS): | + | $0 | $0 |
| (+) Curr Use (NHS): | + | $0 | $0 |
| | | -------------------------- | |
| (=) Market Value: | = | $423,840 | |
| (–) Productivity Loss: | – | $0 | |
| | | -------------------------- | |
| (=) Subtotal: | = | $423,840 | |
| (+) Senior Appraised Value: | + | $0 | |
| (+) Non-Senior Appraised Value: | + | $423,840 | |
| | | -------------------------- | |
| (=) Total Appraised Value: | = | $423,840 | |
| (–) Senior Exemption Loss: | – | $0 | |
| (–) Exemption Loss: | – | $0 | |
| | | -------------------------- | |
| (=) Taxable Value: | = | $423,840 | |
Taxing Jurisdiction
| Owner: | WADDLE JAMES M & KIMBERLY A | | |
| % Ownership: | 100.0000000000% | | |
| Total Value: | $423,840 | | |
| Tax Area: | 1 - OL-140-F |
| CERFD | CURRENT EXPENSE REFUND 010 | 0.0000000000 | $423,840 | $423,840 | $0.00 | | |
| CURREXP | CURRENT EXPENSE 010 | 1.0175366760 | $423,840 | $423,840 | $431.27 | | |
| HUMNSERV | HUMAN SERVICES 119 | 0.0250000000 | $423,840 | $423,840 | $10.60 | | |
| SLDREL | SOLDIERS RELIEF 121 | 0.0155990005 | $423,840 | $423,840 | $6.61 | | |
| EMERGSER | EMS 147 | 0.3792580840 | $423,840 | $423,840 | $160.74 | | |
| EMSRFD | EMS REFUND 147 | 0.0000000000 | $423,840 | $423,840 | $0.00 | | |
| PORTRFD | PORT REFUND 640 | 0.0000000000 | $423,840 | $423,840 | $0.00 | | |
| PORTWWGEN | PORT OF WW 640 | 0.2460186015 | $423,840 | $423,840 | $104.27 | | |
| SD140BOND | SD #140 BOND 764 | 0.8342371393 | $423,840 | $423,840 | $353.58 | | |
| SD140GEN | SD #140 GENERAL 760 | 2.0646500647 | $423,840 | $423,840 | $875.08 | | |
| ST2 | STATE SCHOOL PART 2 600 | 0.8131451643 | $423,840 | $423,840 | $344.64 | | |
| STATESCHL | STATE SCHOOL 600 | 1.5158548041 | $423,840 | $423,840 | $642.48 | | |
| STREFUND | STATE REFUND LEVY 603 | 0.0000000000 | $423,840 | $423,840 | $0.00 | | |
| CWWBOND | C OF WW BOND 643 | 0.2760494372 | $423,840 | $423,840 | $117.00 | | |
| CWWGEN | CITY OF WW 631 | 1.6100204973 | $423,840 | $423,840 | $682.39 | | |
| CWWRFD | CITY OF WALLA WALLA REFUND 631 | 0.0000000000 | $423,840 | $423,840 | $0.00 | | |
| | Total Tax Rate: | 8.7973694689 | | | | | |
| | | | | Taxes w/Current Exemptions: | $3,728.66 | | |
| | | | | Taxes w/o Exemptions: | $3,728.66 | | |
Improvement / Building
| Improvement #1: | RESIDENTIAL | State Code: | 11 | 1908.0 sqft | Value: | $343,840 |
| Exterior Wall: | SIDING | Heating/Cooling: | WARM & COOLED AIR | | Number of Bathrooms: | 2 | Number of Bedrooms: | 3 | | Plumbing: | 10 | Roof Covering: | COMP SHINGLE |
|
| | Type | Description | Class CD | Sub Class CD | Year Built | Area |
| | MA | Main Area | 1 | 40 | 2002 | 1908.0 |
| | BONU | BONUS ROOM W/FINISH | 1 | 40 | 0 | 240.0 |
| | GFP | GAS FIREPLACE | 1 | 40 | 0 | 1.0 |
| | SI1 | SITE IMPROVEMENT | 1 | 40 | 0 | 4.0 |
| | ATG | Attached Garage | 1 | 40 | 2002 | 484.0 |
| | RPO | OPEN PORCH W/ROOF | 1 | 40 | 2002 | 80.0 |
| | SOLR | SOLAR POWER PANELS | 1 | 40 | 2002 | 48.0 |
Sketch
Property Image
Land
| 1 | RES 1 | Converted: Residential | 0.1862 | 8110.00 | 0.00 | 0.00 | 1.00 | $80,000 | $0 |
Roll Value History
| 2026 | N/A | N/A | N/A | N/A | N/A |
| 2025 | $395,420 | $80,000 | $0 | $475,420 | $475,420 |
| 2024 | $395,420 | $80,000 | $0 | $475,420 | $475,420 |
| 2023 | $343,840 | $80,000 | $0 | $423,840 | $423,840 |
| 2022 | $362,530 | $55,000 | $0 | $417,530 | $417,530 |
| 2021 | $268,540 | $55,000 | $0 | $323,540 | $323,540 |
| 2020 | $244,130 | $55,000 | $0 | $299,130 | $299,130 |
| 2019 | $244,130 | $55,000 | $0 | $299,130 | $299,130 |
| 2018 | $232,500 | $55,000 | $0 | $287,500 | $287,500 |
| 2017 | $232,500 | $55,000 | $0 | $287,500 | $287,500 |
| 2016 | $232,500 | $45,000 | $0 | $277,500 | $277,500 |
| 2015 | $211,370 | $45,000 | $0 | $256,370 | $256,370 |
| 2014 | $201,300 | $45,000 | $0 | $246,300 | $246,300 |
| 2013 | $201,300 | $45,000 | $0 | $246,300 | $246,300 |
| 2012 | $219,800 | $45,000 | $0 | $0 | $0 |
| 2011 | $216,100 | $45,000 | $0 | $0 | $0 |
| 2010 | $203,700 | $45,000 | $0 | $0 | $0 |
| 2009 | $231,300 | $45,000 | $0 | $0 | $0 |
| 2008 | $195,300 | $45,000 | $0 | $0 | $0 |
| 2007 | $195,300 | $45,000 | $0 | $0 | $0 |
Deed and Sales History
| 1 | 10/25/2016 | SWD | STATUTORY WARRANTY DEED | WALLACE BEVERLY D | WADDLE JAMES M & KIMBERLY A | | | $262,000.00 | 131319 | 2016-08857 |
| 2 | 06/23/2014 | SWD | STATUTORY WARRANTY DEED | HANSON JIM | WALLACE BEVERLY D | | | $262,500.00 | 126151 | 2014-04471 |
| 3 | 11/20/2002 | WARRANTY D | WARRANTY DEED | WASSER, PHILIP C | HANSON, JIM | | | $219,000.00 | 100853 | 2002-13200 |
| 4 | 11/19/2002 | WARRANTY D | WARRANTY DEED | MAJERUS, DOUGLAS | WASSER, PHILIP C | | | | 100852 | 2002-13199 |
Payout Agreement
| No payout information available.. |