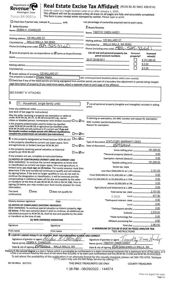
Property
Account |
| Property ID: | 1267 | Abbreviated Legal Description: | HENDERSON N 108' OF LT 11 |
| Parcel Number: | 360729680011 | Agent Code: | |
| Type: | Real | | |
| Tax Area: | 1 - OL-140-F | Land Use Code | 11 |
| Open Space: | N | DFL | N |
| Historic Property: | N | Remodel Property: | N |
| Multi-Family Redevelopment: | N | | |
| Township: | 7 | Section: | 29 |
| Range: | 36 |
Location |
| Address: | 125 WILLARD ST WA 99362 | Mapsco: | |
| Neighborhood: | Fair Res | Map ID: | |
| Neighborhood CD: | 612011 |
Owner |
| Name: | HARDY TIMOTHY OWEN | Owner ID: | 72155 |
| Mailing Address: | 125 WILLARD ST WALLA WALLA, WA 99362 | % Ownership: | 100.0000000000% |
| | | Exemptions: | |
Taxes and Assessment Details
Property Tax Information as of
02/21/2026
Click on "Statement Details" to expand or collapse a tax statement.
* Please enter a valid date ** Please enter a valid date *
Statement Details |
| | TOTAL: | $0.00 | $0.00 | $0.00 | $0.00 | $0.00 | $0.00 |
|
| | $0.00 | $0.00 | $0.00 | $0.00 | $0.00 | $0.00 |
Values
| (+) Improvement Homesite Value: | + | $0 | |
| (+) Improvement Non-Homesite Value: | + | $219,170 | |
| (+) Land Homesite Value: | + | $0 | |
| (+) Land Non-Homesite Value: | + | $51,840 | |
| (+) Curr Use (HS): | + | $0 | $0 |
| (+) Curr Use (NHS): | + | $0 | $0 |
| | | -------------------------- | |
| (=) Market Value: | = | $271,010 | |
| (–) Productivity Loss: | – | $0 | |
| | | -------------------------- | |
| (=) Subtotal: | = | $271,010 | |
| (+) Senior Appraised Value: | + | $0 | |
| (+) Non-Senior Appraised Value: | + | $271,010 | |
| | | -------------------------- | |
| (=) Total Appraised Value: | = | $271,010 | |
| (–) Senior Exemption Loss: | – | $0 | |
| (–) Exemption Loss: | – | $0 | |
| | | -------------------------- | |
| (=) Taxable Value: | = | $271,010 | |
Taxing Jurisdiction
| Owner: | HARDY TIMOTHY OWEN | | |
| % Ownership: | 100.0000000000% | | |
| Total Value: | $271,010 | | |
| Tax Area: | 1 - OL-140-F |
| CERFD | CURRENT EXPENSE REFUND 010 | 0.0000000000 | $271,010 | $271,010 | $0.00 | | |
| CURREXP | CURRENT EXPENSE 010 | 1.0175366760 | $271,010 | $271,010 | $275.76 | | |
| HUMNSERV | HUMAN SERVICES 119 | 0.0250000000 | $271,010 | $271,010 | $6.78 | | |
| SLDREL | SOLDIERS RELIEF 121 | 0.0155990005 | $271,010 | $271,010 | $4.23 | | |
| EMERGSER | EMS 147 | 0.3792580840 | $271,010 | $271,010 | $102.78 | | |
| EMSRFD | EMS REFUND 147 | 0.0000000000 | $271,010 | $271,010 | $0.00 | | |
| PORTRFD | PORT REFUND 640 | 0.0000000000 | $271,010 | $271,010 | $0.00 | | |
| PORTWWGEN | PORT OF WW 640 | 0.2460186015 | $271,010 | $271,010 | $66.67 | | |
| SD140BOND | SD #140 BOND 764 | 0.8342371393 | $271,010 | $271,010 | $226.09 | | |
| SD140GEN | SD #140 GENERAL 760 | 2.0646500647 | $271,010 | $271,010 | $559.54 | | |
| ST2 | STATE SCHOOL PART 2 600 | 0.8131451643 | $271,010 | $271,010 | $220.37 | | |
| STATESCHL | STATE SCHOOL 600 | 1.5158548041 | $271,010 | $271,010 | $410.81 | | |
| STREFUND | STATE REFUND LEVY 603 | 0.0000000000 | $271,010 | $271,010 | $0.00 | | |
| CWWBOND | C OF WW BOND 643 | 0.2760494372 | $271,010 | $271,010 | $74.81 | | |
| CWWGEN | CITY OF WW 631 | 1.6100204973 | $271,010 | $271,010 | $436.33 | | |
| CWWRFD | CITY OF WALLA WALLA REFUND 631 | 0.0000000000 | $271,010 | $271,010 | $0.00 | | |
| | Total Tax Rate: | 8.7973694689 | | | | | |
| | | | | Taxes w/Current Exemptions: | $2,384.17 | | |
| | | | | Taxes w/o Exemptions: | $2,384.17 | | |
Improvement / Building
| Improvement #1: | RESIDENTIAL | State Code: | 11 | 1116.0 sqft | Value: | $219,170 |
| Exterior Wall: | STUCCO | Heating/Cooling: | WARM & COOLED AIR | | Number of Bathrooms: | 2 | Number of Bedrooms: | 3 | | Plumbing: | 10 | Roof Covering: | COMP SHINGLE |
|
| | Type | Description | Class CD | Sub Class CD | Year Built | Area |
| | MA | Main Area | 1 | 25 | 1947 | 1116.0 |
| | SI1 | SITE IMPROVEMENT | 1 | 25 | 1947 | 1.0 |
| | BASE | BASEMENT | 1 | 25 | 1947 | 864.0 |
| | BPF | BASEMENT -PARTITIONED FINISH | 1 | 25 | 1947 | 864.0 |
| | DTG | Detached Garage | 1 | 25 | 1947 | 380.0 |
| | CPC | COVERED CARPORT/PATIO | 1 | 25 | 1947 | 100.0 |
| | PRC | PORCH W STEPS, ROOF,CEILED | 1 | 25 | 1947 | 46.0 |
Sketch
Property Image
Land
| 1 | RES 1 | Converted: Residential | 0.1488 | 6480.00 | 0.00 | 0.00 | 1.00 | $51,840 | $0 |
Roll Value History
| 2026 | N/A | N/A | N/A | N/A | N/A |
| 2025 | $209,210 | $64,800 | $0 | $274,010 | $274,010 |
| 2024 | $219,170 | $51,840 | $0 | $271,010 | $271,010 |
| 2023 | $219,170 | $51,840 | $0 | $271,010 | $271,010 |
| 2022 | $219,170 | $40,500 | $0 | $259,670 | $259,670 |
| 2021 | $190,580 | $40,500 | $0 | $231,080 | $231,080 |
| 2020 | $146,600 | $40,500 | $0 | $187,100 | $187,100 |
| 2019 | $146,600 | $40,500 | $0 | $187,100 | $187,100 |
| 2018 | $117,180 | $38,900 | $0 | $156,080 | $156,080 |
| 2017 | $106,520 | $38,900 | $0 | $145,420 | $145,420 |
| 2016 | $96,840 | $38,900 | $0 | $135,740 | $135,740 |
| 2015 | $96,840 | $38,900 | $0 | $135,740 | $135,740 |
| 2014 | $80,700 | $38,900 | $0 | $119,600 | $119,600 |
| 2013 | $80,700 | $38,900 | $0 | $119,600 | $119,600 |
| 2012 | $79,100 | $38,900 | $0 | $0 | $0 |
| 2011 | $79,100 | $38,900 | $0 | $0 | $0 |
| 2010 | $79,100 | $38,900 | $0 | $0 | $0 |
| 2009 | $92,200 | $38,900 | $0 | $0 | $0 |
| 2008 | $92,200 | $38,900 | $0 | $0 | $0 |
| 2007 | $92,000 | $13,000 | $0 | $0 | $0 |
Deed and Sales History
| 1 | 08/29/2022 | SWD | STATUTORY WARRANTY DEED | CHANDLER DEBRA K | HARDY TIMOTHY OWEN | | | $191,000.00 | 144574 | 2022-07202 |
| 2 | 02/10/2006 | WARRANTY D | WARRANTY DEED | SILVA, JOSEPH F & VIVIAN L | CHANDLER, DEBRA K | | | $131,000.00 | 109637 | 2006-01636 |
| 3 | 11/05/2002 | WARRANTY D | WARRANTY DEED | JOSEPH, RONALD C & DORIS M | SILVA, JOSEPH F & VIVIAN L | | | $115,000.00 | 100755 | 2002-12602 |
| 4 | 07/20/1981 | WARRANTY D | WARRANTY DEED | | | | | $39,000.00 | 3 | 2810-5545 |
Payout Agreement
| No payout information available.. |