Property
Account |
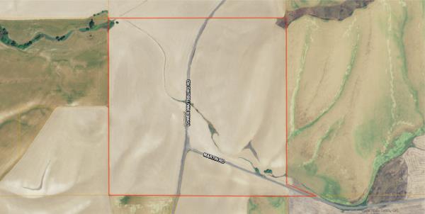
| Property ID: | 12657 | Abbreviated Legal Description: | 16-8-36 SE1/4 LESS RD |
| Parcel Number: | 360816410005 | Agent Code: | |
| Type: | Real | | |
| Tax Area: | 123 - 140-7 | Land Use Code | 83 |
| Open Space: | Y | DFL | N |
| Historic Property: | N | Remodel Property: | N |
| Multi-Family Redevelopment: | N | | |
| Township: | 8 | Section: | 16 |
| Range: | 36 |
Location |
| Address: | WA 99362 | Mapsco: | |
| Neighborhood: | 0 Farm | Map ID: | |
| Neighborhood CD: | 3230 |
Owner |
| Name: | D & M YEEND FAMILY LLC | Owner ID: | 57682 |
| Mailing Address: | C/O VONDA MEYERS 13809 CEDAR CREEK AVE BAKERSFIELD, CA 93314 | % Ownership: | 100.0000000000% |
| | | Exemptions: | |
Taxes and Assessment Details
Property Tax Information as of
02/21/2026
Click on "Statement Details" to expand or collapse a tax statement.
* Please enter a valid date ** Please enter a valid date *
Statement Details |
| | TOTAL: | $0.00 | $0.00 | $0.00 | $0.00 | $0.00 | $0.00 |
|
| | $0.00 | $0.00 | $0.00 | $0.00 | $0.00 | $0.00 |
Values
| (+) Improvement Homesite Value: | + | $0 | |
| (+) Improvement Non-Homesite Value: | + | $0 | |
| (+) Land Homesite Value: | + | $0 | |
| (+) Land Non-Homesite Value: | + | $0 | |
| (+) Curr Use (HS): | + | $0 | $0 |
| (+) Curr Use (NHS): | + | $274,050 | $105,600 |
| | | -------------------------- | |
| (=) Market Value: | = | $274,050 | |
| (–) Productivity Loss: | – | $168,450 | |
| | | -------------------------- | |
| (=) Subtotal: | = | $105,600 | |
| (+) Senior Appraised Value: | + | $0 | |
| (+) Non-Senior Appraised Value: | + | $105,600 | |
| | | -------------------------- | |
| (=) Total Appraised Value: | = | $105,600 | |
| (–) Senior Exemption Loss: | – | $0 | |
| (–) Exemption Loss: | – | $0 | |
| | | -------------------------- | |
| (=) Taxable Value: | = | $105,600 | |
Taxing Jurisdiction
| Owner: | D & M YEEND FAMILY LLC | | |
| % Ownership: | 100.0000000000% | | |
| Total Value: | $274,050 | | |
| Tax Area: | 123 - 140-7 |
| CERFD | CURRENT EXPENSE REFUND 010 | 0.0000000000 | $105,600 | $105,600 | $0.00 | | |
| CURREXP | CURRENT EXPENSE 010 | 1.0175366760 | $105,600 | $105,600 | $107.45 | | |
| HUMNSERV | HUMAN SERVICES 119 | 0.0250000000 | $105,600 | $105,600 | $2.64 | | |
| SLDREL | SOLDIERS RELIEF 121 | 0.0155990005 | $105,600 | $105,600 | $1.65 | | |
| EMERGSER | EMS 147 | 0.3792580840 | $105,600 | $105,600 | $40.05 | | |
| EMSRFD | EMS REFUND 147 | 0.0000000000 | $105,600 | $105,600 | $0.00 | | |
| FD7EXP | FD #7 EXPENSE 695 | 0.6678024226 | $105,600 | $105,600 | $70.52 | | |
| RLBRFD | RURAL LIBRARY REFUND 623 | 0.0000000000 | $105,600 | $105,600 | $0.00 | | |
| RURALLIB | RURAL LIBRARY 623 | 0.3710609029 | $105,600 | $105,600 | $39.18 | | |
| PORTRFD | PORT REFUND 640 | 0.0000000000 | $105,600 | $105,600 | $0.00 | | |
| PORTWWGEN | PORT OF WW 640 | 0.2460186015 | $105,600 | $105,600 | $25.98 | | |
| SD140BOND | SD #140 BOND 764 | 0.8342371393 | $105,600 | $105,600 | $88.10 | | |
| SD140GEN | SD #140 GENERAL 760 | 2.0646500647 | $105,600 | $105,600 | $218.03 | | |
| ST2 | STATE SCHOOL PART 2 600 | 0.8131451643 | $105,600 | $105,600 | $85.87 | | |
| STATESCHL | STATE SCHOOL 600 | 1.5158548041 | $105,600 | $105,600 | $160.07 | | |
| STREFUND | STATE REFUND LEVY 603 | 0.0000000000 | $105,600 | $105,600 | $0.00 | | |
| COROAD | COUNTY ROAD 115 | 1.6549953990 | $105,600 | $105,600 | $174.77 | | |
| CRPRD | COUNTY ROAD REFUND 115 | 0.0000000000 | $105,600 | $105,600 | $0.00 | | |
| | Total Tax Rate: | 9.6051582589 | | | | | |
| | | | | Taxes w/Current Exemptions: | $1,014.31 | | |
| | | | | Taxes w/o Exemptions: | $1,014.31 | | |
Improvement / Building
Sketch
| No sketches available for this property. |
Property Image
Land
| 1 | 70-C1 | Class 1 70 BU | 150.0000 | 0.00 | 0.00 | 0.00 | 1.00 | $274,050 | $105,600 |
| 2 | WASTE | Waste | 4.0000 | 0.00 | 0.00 | 0.00 | 1.00 | $0 | $0 |
Roll Value History
| 2026 | N/A | N/A | N/A | N/A | N/A |
| 2025 | $0 | $292,350 | $94,350 | $94,350 | $94,350 |
| 2024 | $0 | $280,800 | $101,700 | $101,700 | $101,700 |
| 2023 | $0 | $274,050 | $105,600 | $105,600 | $105,600 |
| 2022 | $0 | $254,700 | $101,250 | $101,250 | $101,250 |
| 2021 | $0 | $233,700 | $100,800 | $100,800 | $100,800 |
| 2020 | $0 | $217,350 | $103,650 | $103,650 | $103,650 |
| 2019 | $0 | $208,200 | $106,200 | $106,200 | $106,200 |
| 2018 | $0 | $207,150 | $120,450 | $120,450 | $120,450 |
| 2017 | $0 | $198,450 | $122,400 | $122,400 | $122,400 |
| 2016 | $0 | $198,450 | $122,700 | $122,700 | $122,700 |
| 2015 | $0 | $196,950 | $108,600 | $108,600 | $108,600 |
| 2014 | $0 | $196,950 | $110,250 | $110,250 | $110,250 |
| 2013 | $0 | $186,500 | $90,200 | $90,200 | $90,200 |
| 2012 | $0 | $62,700 | $0 | $0 | $0 |
| 2011 | $0 | $65,300 | $0 | $0 | $0 |
| 2010 | $0 | $60,600 | $0 | $0 | $0 |
| 2009 | $0 | $61,100 | $0 | $0 | $0 |
| 2008 | $0 | $53,400 | $0 | $0 | $0 |
| 2007 | $0 | $56,000 | $0 | $0 | $0 |
Deed and Sales History
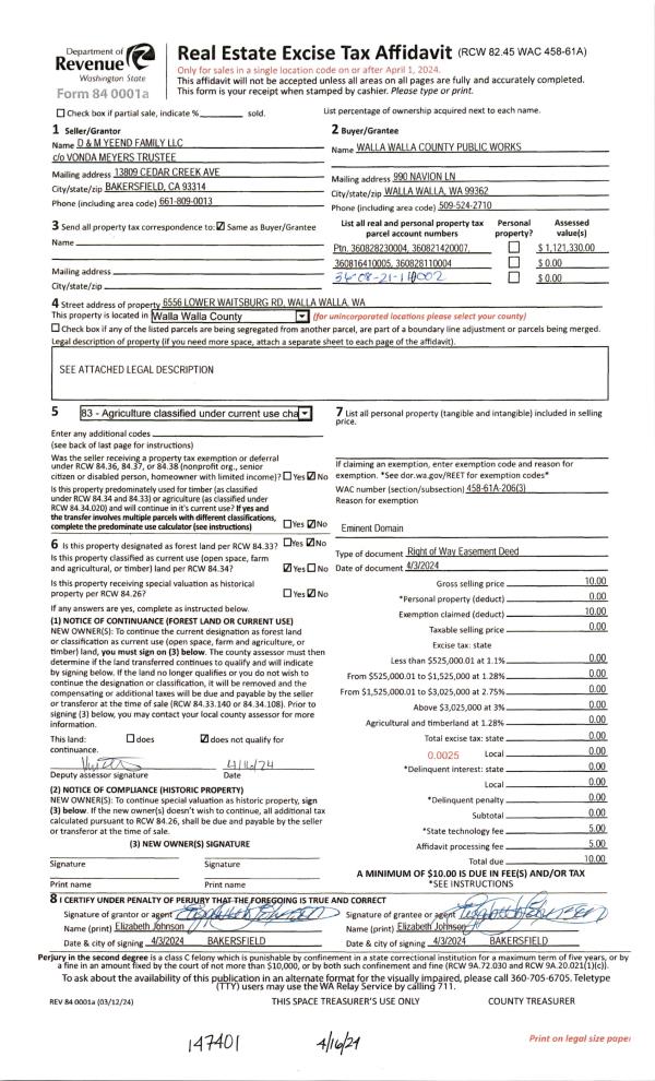
| 1 | 02/14/2025 | EASE | EASEMENT | D & M YEEND FAMILY LLC | WALLA WALLA COUNTY | | | | 147401 | 2024-01893 |
| 2 | 10/19/2015 | WARRANTY D | WARRANTY DEED | YEEND DAVID S & MARVA U | D & M YEEND FAMILY LLC | 17 PARCELS | | | 129071 | 2015-09332 |
Payout Agreement
| No payout information available.. |