Property
Account |
| Property ID: | 12630 | Abbreviated Legal Description: | RESER CREEK ADDN LOT 7 |
| Parcel Number: | 360734580007 | Agent Code: | |
| Type: | Real | | |
| Tax Area: | 101 - 140-4 | Land Use Code | 11 |
| Open Space: | N | DFL | N |
| Historic Property: | N | Remodel Property: | N |
| Multi-Family Redevelopment: | N | | |
| Township: | 7 | Section: | 34 |
| Range: | 36 |
Location |
| Address: | 1617 WHEATCREST RD WA 99362 | Mapsco: | |
| Neighborhood: | CYCLE 4 EXCELLENT (A) | Map ID: | |
| Neighborhood CD: | 416012 |
Owner |
| Name: | FARJO NADIA | Owner ID: | 72905 |
| Mailing Address: | 1617 WHEATCREST RD WALLA WALLA, WA 99362 | % Ownership: | 100.0000000000% |
| | | Exemptions: | |
Taxes and Assessment Details
Values
| (+) Improvement Homesite Value: | + | $0 | |
| (+) Improvement Non-Homesite Value: | + | $816,770 | |
| (+) Land Homesite Value: | + | $0 | |
| (+) Land Non-Homesite Value: | + | $203,440 | |
| (+) Curr Use (HS): | + | $0 | $0 |
| (+) Curr Use (NHS): | + | $0 | $0 |
| | | -------------------------- | |
| (=) Market Value: | = | $1,020,210 | |
| (–) Productivity Loss: | – | $0 | |
| | | -------------------------- | |
| (=) Subtotal: | = | $1,020,210 | |
| (+) Senior Appraised Value: | + | $0 | |
| (+) Non-Senior Appraised Value: | + | $1,020,210 | |
| | | -------------------------- | |
| (=) Total Appraised Value: | = | $1,020,210 | |
| (–) Senior Exemption Loss: | – | $0 | |
| (–) Exemption Loss: | – | $0 | |
| | | -------------------------- | |
| (=) Taxable Value: | = | $1,020,210 | |
Taxing Jurisdiction
| Owner: | FARJO NADIA | | |
| % Ownership: | 100.0000000000% | | |
| Total Value: | $1,020,210 | | |
| Tax Area: | 101 - 140-4 |
| CERFD | CURRENT EXPENSE REFUND 010 | 0.0000000000 | $1,020,210 | $1,020,210 | $0.00 | | |
| CURREXP | CURRENT EXPENSE 010 | 1.0175366760 | $1,020,210 | $1,020,210 | $1,038.10 | | |
| HUMNSERV | HUMAN SERVICES 119 | 0.0250000000 | $1,020,210 | $1,020,210 | $25.51 | | |
| SLDREL | SOLDIERS RELIEF 121 | 0.0155990005 | $1,020,210 | $1,020,210 | $15.91 | | |
| EMERGSER | EMS 147 | 0.3792580840 | $1,020,210 | $1,020,210 | $386.92 | | |
| EMSRFD | EMS REFUND 147 | 0.0000000000 | $1,020,210 | $1,020,210 | $0.00 | | |
| FD4EXP | FD #4 EXPENSE 686 | 0.8836993059 | $1,020,210 | $1,020,210 | $901.56 | | |
| RLBRFD | RURAL LIBRARY REFUND 623 | 0.0000000000 | $1,020,210 | $1,020,210 | $0.00 | | |
| RURALLIB | RURAL LIBRARY 623 | 0.3710609029 | $1,020,210 | $1,020,210 | $378.56 | | |
| PORTRFD | PORT REFUND 640 | 0.0000000000 | $1,020,210 | $1,020,210 | $0.00 | | |
| PORTWWGEN | PORT OF WW 640 | 0.2460186015 | $1,020,210 | $1,020,210 | $250.99 | | |
| SD140BOND | SD #140 BOND 764 | 0.8342371393 | $1,020,210 | $1,020,210 | $851.10 | | |
| SD140GEN | SD #140 GENERAL 760 | 2.0646500647 | $1,020,210 | $1,020,210 | $2,106.38 | | |
| ST2 | STATE SCHOOL PART 2 600 | 0.8131451643 | $1,020,210 | $1,020,210 | $829.58 | | |
| STATESCHL | STATE SCHOOL 600 | 1.5158548041 | $1,020,210 | $1,020,210 | $1,546.49 | | |
| STREFUND | STATE REFUND LEVY 603 | 0.0000000000 | $1,020,210 | $1,020,210 | $0.00 | | |
| COROAD | COUNTY ROAD 115 | 1.6549953990 | $1,020,210 | $1,020,210 | $1,688.44 | | |
| CRPRD | COUNTY ROAD REFUND 115 | 0.0000000000 | $1,020,210 | $1,020,210 | $0.00 | | |
| | Total Tax Rate: | 9.8210551422 | | | | | |
| | | | | Taxes w/Current Exemptions: | $10,019.54 | | |
| | | | | Taxes w/o Exemptions: | $10,019.54 | | |
Improvement / Building
| Improvement #1: | RESIDENTIAL | State Code: | 11 | 3505.0 sqft | Value: | $816,770 |
| Exterior Wall: | STUCCO | Heating/Cooling: | WARM & COOLED AIR | | Number of Bathrooms: | 3.5 | Number of Bedrooms: | 3 | | Plumbing: | 17 | Roof Covering: | COMP SHINGLE |
|
| | Type | Description | Class CD | Sub Class CD | Year Built | Area |
| | MA | Main Area | 4 | 55 | 2005 | 3505.0 |
| | GFP | GAS FIREPLACE | 4 | 55 | 2005 | 1.0 |
| | SI1 | SITE IMPROVEMENT | 4 | 55 | 2005 | 8.0 |
| | ATG | Attached Garage | 4 | 55 | 2005 | 864.0 |
| | RPO | OPEN PORCH W/ROOF | 4 | 55 | 2005 | 36.0 |
| | WOD | Wood Deck | 4 | 55 | 2005 | 408.0 |
| | BLW | WOOD BALCONIES | 4 | 55 | 2005 | 56.0 |
| | UPFL | Upper Floor (included in main area) | 4 | 55 | 2005 | 852.0 |
Sketch
Property Image
Land
| 1 | RES 1 | Converted: Residential | 1.1300 | 0.00 | 0.00 | 0.00 | 1.00 | $203,440 | $0 |
Roll Value History
| 2026 | N/A | N/A | N/A | N/A | N/A |
| 2025 | $857,610 | $203,440 | $0 | $1,061,050 | $1,061,050 |
| 2024 | $857,610 | $203,440 | $0 | $1,061,050 | $1,061,050 |
| 2023 | $816,770 | $203,440 | $0 | $1,020,210 | $1,020,210 |
| 2022 | $777,880 | $114,120 | $0 | $892,000 | $892,000 |
| 2021 | $598,370 | $114,120 | $0 | $712,490 | $712,490 |
| 2020 | $543,970 | $114,120 | $0 | $658,090 | $658,090 |
| 2019 | $543,970 | $114,120 | $0 | $658,090 | $658,090 |
| 2018 | $473,020 | $114,120 | $0 | $587,140 | $587,140 |
| 2017 | $473,020 | $114,120 | $0 | $587,140 | $587,140 |
| 2016 | $496,640 | $90,500 | $0 | $587,140 | $587,140 |
| 2015 | $496,640 | $90,500 | $0 | $587,140 | $587,140 |
| 2014 | $486,900 | $90,500 | $0 | $577,400 | $577,400 |
| 2013 | $486,900 | $90,500 | $0 | $577,400 | $577,400 |
| 2012 | $411,600 | $90,500 | $0 | $0 | $0 |
| 2011 | $390,700 | $120,500 | $0 | $0 | $0 |
| 2010 | $390,700 | $120,500 | $0 | $0 | $0 |
| 2009 | $420,500 | $120,500 | $0 | $0 | $0 |
| 2008 | $431,500 | $120,500 | $0 | $0 | $0 |
| 2007 | $410,800 | $60,000 | $0 | $0 | $0 |
Deed and Sales History
| 1 | 01/18/2023 | QCD | QUIT CLAIM DEED | CARSON COREY | FARJO NADIA | | | | 145038 | 2022-09214 |
| 2 | 11/18/2022 | SWD | STATUTORY WARRANTY DEED | ALDRICH CHRISTOPHER L & ANGELA C | FARJO NADIA | | | $1,075,000.00 | 145039 | 2022-09215 |
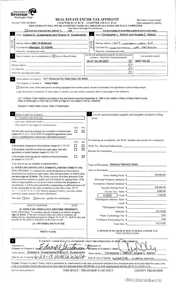
| 3 | 06/28/2018 | SWD | STATUTORY WARRANTY DEED | GUSTAMANTE EDWARD A & SHARON | ALDRICH CHRISTOPHER L & ANGELA C | | | $700,000.00 | 135012 | 2018-05180 |
| 4 | 08/02/2000 | WARRANTY D | WARRANTY DEED | | | | | $60,000.00 | 95567 | 3010-007398 |
Payout Agreement
| No payout information available.. |