Property
Account |
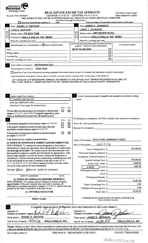
| Property ID: | 12625 | Abbreviated Legal Description: | BROOKSHIRE TERRACE LOT 4 BLK 2 |
| Parcel Number: | 360734560204 | Agent Code: | |
| Type: | Real | | |
| Tax Area: | 101 - 140-4 | Land Use Code | 11 |
| Open Space: | N | DFL | N |
| Historic Property: | N | Remodel Property: | N |
| Multi-Family Redevelopment: | N | | |
| Township: | 7 | Section: | 34 |
| Range: | 36 |
Location |
| Address: | 1684 BROOKSHIRE DR WA 99362 | Mapsco: | |
| Neighborhood: | CYCLE 4 EXCELLENT (A) | Map ID: | |
| Neighborhood CD: | 416012 |
Owner |
| Name: | JOHNSON LINDA J | Owner ID: | 69043 |
| Mailing Address: | 1684 BROOKSHIRE DR WALLA WALLA, WA 99362 | % Ownership: | 100.0000000000% |
| | | Exemptions: | |
Taxes and Assessment Details
Property Tax Information as of
02/21/2026
Click on "Statement Details" to expand or collapse a tax statement.
* Please enter a valid date ** Please enter a valid date *
Statement Details |
| | TOTAL: | $0.00 | $0.00 | $0.00 | $0.00 | $0.00 | $0.00 |
|
| | $0.00 | $0.00 | $0.00 | $0.00 | $0.00 | $0.00 |
Values
| (+) Improvement Homesite Value: | + | $0 | |
| (+) Improvement Non-Homesite Value: | + | $865,040 | |
| (+) Land Homesite Value: | + | $0 | |
| (+) Land Non-Homesite Value: | + | $200,000 | |
| (+) Curr Use (HS): | + | $0 | $0 |
| (+) Curr Use (NHS): | + | $0 | $0 |
| | | -------------------------- | |
| (=) Market Value: | = | $1,065,040 | |
| (–) Productivity Loss: | – | $0 | |
| | | -------------------------- | |
| (=) Subtotal: | = | $1,065,040 | |
| (+) Senior Appraised Value: | + | $0 | |
| (+) Non-Senior Appraised Value: | + | $1,065,040 | |
| | | -------------------------- | |
| (=) Total Appraised Value: | = | $1,065,040 | |
| (–) Senior Exemption Loss: | – | $0 | |
| (–) Exemption Loss: | – | $0 | |
| | | -------------------------- | |
| (=) Taxable Value: | = | $1,065,040 | |
Taxing Jurisdiction
| Owner: | JOHNSON LINDA J | | |
| % Ownership: | 100.0000000000% | | |
| Total Value: | $1,065,040 | | |
| Tax Area: | 101 - 140-4 |
| CERFD | CURRENT EXPENSE REFUND 010 | 0.0000000000 | $1,065,040 | $1,065,040 | $0.00 | | |
| CURREXP | CURRENT EXPENSE 010 | 1.0175366760 | $1,065,040 | $1,065,040 | $1,083.72 | | |
| HUMNSERV | HUMAN SERVICES 119 | 0.0250000000 | $1,065,040 | $1,065,040 | $26.63 | | |
| SLDREL | SOLDIERS RELIEF 121 | 0.0155990005 | $1,065,040 | $1,065,040 | $16.61 | | |
| EMERGSER | EMS 147 | 0.3792580840 | $1,065,040 | $1,065,040 | $403.93 | | |
| EMSRFD | EMS REFUND 147 | 0.0000000000 | $1,065,040 | $1,065,040 | $0.00 | | |
| FD4EXP | FD #4 EXPENSE 686 | 0.8836993059 | $1,065,040 | $1,065,040 | $941.18 | | |
| RLBRFD | RURAL LIBRARY REFUND 623 | 0.0000000000 | $1,065,040 | $1,065,040 | $0.00 | | |
| RURALLIB | RURAL LIBRARY 623 | 0.3710609029 | $1,065,040 | $1,065,040 | $395.19 | | |
| PORTRFD | PORT REFUND 640 | 0.0000000000 | $1,065,040 | $1,065,040 | $0.00 | | |
| PORTWWGEN | PORT OF WW 640 | 0.2460186015 | $1,065,040 | $1,065,040 | $262.02 | | |
| SD140BOND | SD #140 BOND 764 | 0.8342371393 | $1,065,040 | $1,065,040 | $888.50 | | |
| SD140GEN | SD #140 GENERAL 760 | 2.0646500647 | $1,065,040 | $1,065,040 | $2,198.93 | | |
| ST2 | STATE SCHOOL PART 2 600 | 0.8131451643 | $1,065,040 | $1,065,040 | $866.03 | | |
| STATESCHL | STATE SCHOOL 600 | 1.5158548041 | $1,065,040 | $1,065,040 | $1,614.45 | | |
| STREFUND | STATE REFUND LEVY 603 | 0.0000000000 | $1,065,040 | $1,065,040 | $0.00 | | |
| COROAD | COUNTY ROAD 115 | 1.6549953990 | $1,065,040 | $1,065,040 | $1,762.64 | | |
| CRPRD | COUNTY ROAD REFUND 115 | 0.0000000000 | $1,065,040 | $1,065,040 | $0.00 | | |
| | Total Tax Rate: | 9.8210551422 | | | | | |
| | | | | Taxes w/Current Exemptions: | $10,459.83 | | |
| | | | | Taxes w/o Exemptions: | $10,459.83 | | |
Improvement / Building
| Improvement #1: | RESIDENTIAL | State Code: | 11 | 2000.0 sqft | Value: | $865,040 |
| Exterior Wall: | STUCCO | Heating/Cooling: | HEAT PUMP | | Number of Bathrooms: | 3.5 | Number of Bedrooms: | 4 | | Plumbing: | 15 | Roof Covering: | COMP SHINGLE |
|
| | Type | Description | Class CD | Sub Class CD | Year Built | Area |
| | MA | Main Area | 1 | 50 | 1980 | 2000.0 |
| | CPCG | CARPORT/ GABLE ROOF | 1 | 50 | 0 | 364.0 |
| | PRC | PORCH W STEPS, ROOF,CEILED | 1 | 50 | 0 | 241.0 |
| | SI1 | SITE IMPROVEMENT | 1 | 50 | 0 | 5.5 |
| | BASE | BASEMENT | 1 | 50 | 1980 | 1964.0 |
| | BPF | BASEMENT -PARTITIONED FINISH | 1 | 50 | 1980 | 850.0 |
| | S2F | Single 2S Fireplace | 1 | 50 | 1980 | 1.0 |
| | ATG | Attached Garage | 1 | 50 | 1980 | 560.0 |
| | WOD | Wood Deck | 1 | 50 | 1980 | 524.0 |
| | RPO | OPEN PORCH W/ROOF | 1 | 50 | 1980 | 160.0 |
| | ATG | Attached Garage | 1 | 50 | 1980 | 777.0 |
Sketch
Property Image
Land
| 1 | RES 1 | Converted: Residential | 1.0000 | 0.00 | 0.00 | 0.00 | 1.00 | $200,000 | $0 |
Roll Value History
| 2026 | N/A | N/A | N/A | N/A | N/A |
| 2025 | $879,290 | $200,000 | $0 | $1,079,290 | $1,079,290 |
| 2024 | $865,040 | $200,000 | $0 | $1,065,040 | $1,065,040 |
| 2023 | $865,040 | $200,000 | $0 | $1,065,040 | $1,065,040 |
| 2022 | $720,860 | $110,000 | $0 | $830,860 | $830,860 |
| 2021 | $514,900 | $110,000 | $0 | $624,900 | $624,900 |
| 2020 | $468,090 | $110,000 | $0 | $578,090 | $578,090 |
| 2019 | $468,090 | $110,000 | $0 | $578,090 | $578,090 |
| 2018 | $339,200 | $110,000 | $0 | $449,200 | $449,200 |
| 2017 | $339,200 | $110,000 | $0 | $449,200 | $449,200 |
| 2016 | $359,200 | $90,000 | $0 | $449,200 | $449,200 |
| 2015 | $359,200 | $90,000 | $0 | $449,200 | $449,200 |
| 2014 | $359,200 | $90,000 | $0 | $449,200 | $449,200 |
| 2013 | $359,200 | $90,000 | $0 | $449,200 | $449,200 |
| 2012 | $359,200 | $90,000 | $0 | $0 | $0 |
| 2011 | $386,500 | $120,000 | $0 | $0 | $0 |
| 2010 | $215,000 | $75,000 | $0 | $0 | $0 |
| 2009 | $209,700 | $75,000 | $0 | $0 | $0 |
| 2008 | $209,700 | $75,000 | $0 | $0 | $0 |
| 2007 | $131,200 | $44,000 | $0 | $0 | $0 |
Deed and Sales History
| 1 | 08/27/2024 | SWD | STATUTORY WARRANTY DEED | JOHNSON LINDA J | O'CONNELL SCOTT MICHAEL & PAMELA JEAN | | | $1,100,000.00 | 148091 | 2024-04805 |
| 2 | 03/18/2021 | COMMUNITY | COMMUNITY PROPERTY AGREEMENT | JOHNSON JAMES K & LINDA J | JOHNSON LINDA J | | | | 0 | 2021-03127 |
| 3 | 12/31/2018 | SWD | STATUTORY WARRANTY DEED | DEFOOR DANIEL E & LYDA S | JOHNSON JAMES K & LINDA J | | | $675,000.00 | 136182 | 2018-10739 |
| 4 | 06/01/2006 | WARRANTY D | WARRANTY DEED | ADAMS, JOHN B & LORRAINE TRUST | DEFOOR, DANIEL E & LYDA S | | | $285,000.00 | 110408 | 2006-06345 |
| 5 | 09/10/1979 | WARRANTY D | WARRANTY DEED | | | | | $21,500.00 | 0 | 1879-100375 |
Payout Agreement
| No payout information available.. |