Property
Account |
| Property ID: | 1260 | Abbreviated Legal Description: | ROBERTS LT 6 BLK 19 LESS ALLEY |
| Parcel Number: | 360729871906 | Agent Code: | |
| Type: | Real | | |
| Tax Area: | 1 - OL-140-F | Land Use Code | 11 |
| Open Space: | N | DFL | N |
| Historic Property: | N | Remodel Property: | N |
| Multi-Family Redevelopment: | N | | |
| Township: | 7 | Section: | 29 |
| Range: | 36 |
Location |
| Address: | 329 CRAIG ST WA 99362 | Mapsco: | |
| Neighborhood: | G-SFR | Map ID: | |
| Neighborhood CD: | 514011 |
Owner |
| Name: | BELL NORMAN E & ALISON W | Owner ID: | 72090 |
| Mailing Address: | 329 CRAIG ST WALLA WALLA, WA 99362 | % Ownership: | 100.0000000000% |
| | | Exemptions: | |
Taxes and Assessment Details
Property Tax Information as of
02/21/2026
Click on "Statement Details" to expand or collapse a tax statement.
* Please enter a valid date ** Please enter a valid date *
Statement Details |
| | TOTAL: | $0.00 | $0.00 | $0.00 | $0.00 | $0.00 | $0.00 |
|
| | $0.00 | $0.00 | $0.00 | $0.00 | $0.00 | $0.00 |
Values
| (+) Improvement Homesite Value: | + | $0 | |
| (+) Improvement Non-Homesite Value: | + | $513,930 | |
| (+) Land Homesite Value: | + | $0 | |
| (+) Land Non-Homesite Value: | + | $50,750 | |
| (+) Curr Use (HS): | + | $0 | $0 |
| (+) Curr Use (NHS): | + | $0 | $0 |
| | | -------------------------- | |
| (=) Market Value: | = | $564,680 | |
| (–) Productivity Loss: | – | $0 | |
| | | -------------------------- | |
| (=) Subtotal: | = | $564,680 | |
| (+) Senior Appraised Value: | + | $0 | |
| (+) Non-Senior Appraised Value: | + | $564,680 | |
| | | -------------------------- | |
| (=) Total Appraised Value: | = | $564,680 | |
| (–) Senior Exemption Loss: | – | $0 | |
| (–) Exemption Loss: | – | $0 | |
| | | -------------------------- | |
| (=) Taxable Value: | = | $564,680 | |
Taxing Jurisdiction
| Owner: | BELL NORMAN E & ALISON W | | |
| % Ownership: | 100.0000000000% | | |
| Total Value: | $564,680 | | |
| Tax Area: | 1 - OL-140-F |
| CERFD | CURRENT EXPENSE REFUND 010 | 0.0000000000 | $564,680 | $564,680 | $0.00 | | |
| CURREXP | CURRENT EXPENSE 010 | 1.0175366760 | $564,680 | $564,680 | $574.58 | | |
| HUMNSERV | HUMAN SERVICES 119 | 0.0250000000 | $564,680 | $564,680 | $14.12 | | |
| SLDREL | SOLDIERS RELIEF 121 | 0.0155990005 | $564,680 | $564,680 | $8.81 | | |
| EMERGSER | EMS 147 | 0.3792580840 | $564,680 | $564,680 | $214.16 | | |
| EMSRFD | EMS REFUND 147 | 0.0000000000 | $564,680 | $564,680 | $0.00 | | |
| PORTRFD | PORT REFUND 640 | 0.0000000000 | $564,680 | $564,680 | $0.00 | | |
| PORTWWGEN | PORT OF WW 640 | 0.2460186015 | $564,680 | $564,680 | $138.92 | | |
| SD140BOND | SD #140 BOND 764 | 0.8342371393 | $564,680 | $564,680 | $471.08 | | |
| SD140GEN | SD #140 GENERAL 760 | 2.0646500647 | $564,680 | $564,680 | $1,165.87 | | |
| ST2 | STATE SCHOOL PART 2 600 | 0.8131451643 | $564,680 | $564,680 | $459.17 | | |
| STATESCHL | STATE SCHOOL 600 | 1.5158548041 | $564,680 | $564,680 | $855.97 | | |
| STREFUND | STATE REFUND LEVY 603 | 0.0000000000 | $564,680 | $564,680 | $0.00 | | |
| CWWBOND | C OF WW BOND 643 | 0.2760494372 | $564,680 | $564,680 | $155.88 | | |
| CWWGEN | CITY OF WW 631 | 1.6100204973 | $564,680 | $564,680 | $909.15 | | |
| CWWRFD | CITY OF WALLA WALLA REFUND 631 | 0.0000000000 | $564,680 | $564,680 | $0.00 | | |
| | Total Tax Rate: | 8.7973694689 | | | | | |
| | | | | Taxes w/Current Exemptions: | $4,967.71 | | |
| | | | | Taxes w/o Exemptions: | $4,967.71 | | |
Improvement / Building
| Improvement #1: | RESIDENTIAL | State Code: | 11 | 2581.0 sqft | Value: | $513,930 |
| Exterior Wall: | STUCCO | Heating/Cooling: | WARM & COOLED AIR | | Number of Bathrooms: | 3 | Number of Bedrooms: | 4 | | Plumbing: | 15 | Roof Covering: | COMP SHINGLE |
|
| | Type | Description | Class CD | Sub Class CD | Year Built | Area |
| | MA | Main Area | 4 | 40 | 1896 | 2581.0 |
| | UPFL | Upper Floor (included in main area) | 4 | 40 | 1896 | 725.0 |
| | SI1 | SITE IMPROVEMENT | 4 | 40 | 1896 | 2.5 |
| | RPC | OPEN PORCH W/ROOF , CEILED | 4 | 40 | 1896 | 45.0 |
Sketch
Property Image
Land
| 1 | RES 1 | Converted: Residential | 0.1607 | 7000.00 | 0.00 | 0.00 | 1.00 | $50,750 | $0 |
Roll Value History
| 2026 | N/A | N/A | N/A | N/A | N/A |
| 2025 | $576,250 | $77,000 | $0 | $653,250 | $653,250 |
| 2024 | $576,250 | $77,000 | $0 | $653,250 | $653,250 |
| 2023 | $513,930 | $50,750 | $0 | $564,680 | $564,680 |
| 2022 | $430,010 | $50,750 | $0 | $480,760 | $480,760 |
| 2021 | $390,920 | $50,750 | $0 | $441,670 | $441,670 |
| 2020 | $325,760 | $50,750 | $0 | $376,510 | $376,510 |
| 2019 | $325,760 | $50,750 | $0 | $376,510 | $376,510 |
| 2018 | $310,250 | $50,750 | $0 | $361,000 | $361,000 |
| 2017 | $246,020 | $31,500 | $0 | $277,520 | $277,520 |
| 2016 | $234,300 | $31,500 | $0 | $265,800 | $265,800 |
| 2015 | $234,300 | $31,500 | $0 | $265,800 | $265,800 |
| 2014 | $213,000 | $31,500 | $0 | $244,500 | $244,500 |
| 2013 | $213,000 | $31,500 | $0 | $244,500 | $244,500 |
| 2012 | $213,000 | $31,500 | $0 | $0 | $0 |
| 2011 | $213,000 | $31,500 | $0 | $0 | $0 |
| 2010 | $201,400 | $31,500 | $0 | $0 | $0 |
| 2009 | $227,300 | $31,500 | $0 | $0 | $0 |
| 2008 | $38,400 | $31,500 | $0 | $0 | $0 |
| 2007 | $38,400 | $31,500 | $0 | $0 | $0 |
Deed and Sales History
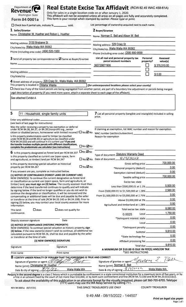
| 1 | 08/15/2022 | SWD | STATUTORY WARRANTY DEED | HUETHER CHRISTOPHER W & ROBYN L | BELL NORMAN E & ALISON W | | | $700,000.00 | 144507 | 2022-06820 |
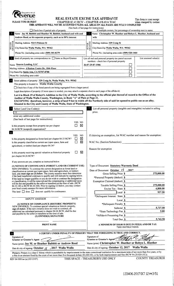
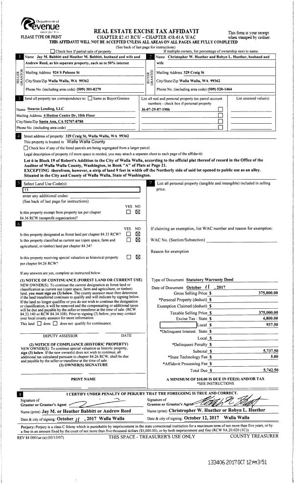
| 2 | 10/12/2017 | SWD | STATUTORY WARRANTY DEED | BABBITT JAY M & HEATHER M | HUETHER CHRISTOPHER W & ROBYN L | | | $375,000.00 | 133406 | 2017-08138 |
| 3 | 03/29/2007 | WARRANTY D | WARRANTY DEED | BRIGGS, JEFFREY S | REED, ANDREW | | | $50,000.00 | 112487 | 2007-03527 |
| 4 | 10/13/2005 | WARRANTY D | WARRANTY DEED | PEERY, STAN W | BABBITT, JAY M & HEATHER M | | | $70,000.00 | 108762 | 2005-12829 |
| 5 | 11/14/2002 | WARRANTY D | WARRANTY DEED | PEERY, WENDELL W | PEERY, STAN W | | | | 100810 | 2002-12995 |
| 6 | 05/17/1977 | WARRANTY D | WARRANTY DEED | | | | | $15,000.00 | 46565 | 2220-290663 |
Payout Agreement
| No payout information available.. |