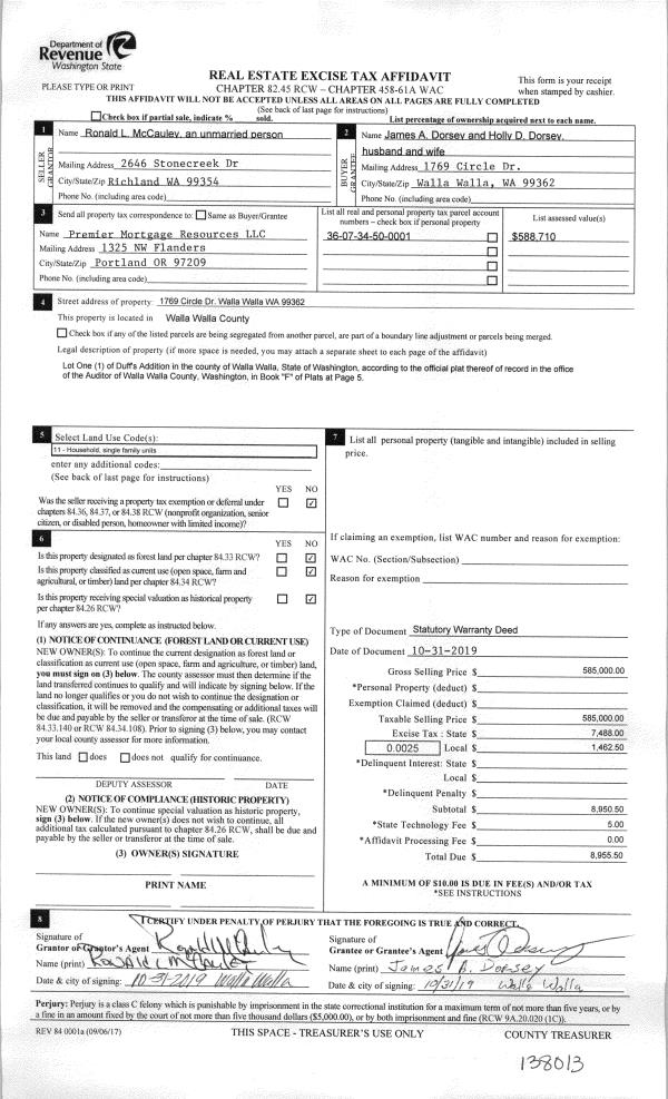
Property
Account |
| Property ID: | 12588 | Abbreviated Legal Description: | DUFFS LOT 1 |
| Parcel Number: | 360734500001 | Agent Code: | |
| Type: | Real | | |
| Tax Area: | 101 - 140-4 | Land Use Code | 11 |
| Open Space: | N | DFL | N |
| Historic Property: | N | Remodel Property: | N |
| Multi-Family Redevelopment: | N | | |
| Township: | 7 | Section: | 34 |
| Range: | 36 |
Location |
| Address: | 1769 CIRCLE DR WA 99362 | Mapsco: | |
| Neighborhood: | G Res Rural/City Inf | Map ID: | |
| Neighborhood CD: | 614012 |
Owner |
| Name: | DORSEY JAMES A & HOLLY D | Owner ID: | 66181 |
| Mailing Address: | 1769 CIRCLE DR WALLA WALLA, WA 99362 | % Ownership: | 100.0000000000% |
| | | Exemptions: | |
Taxes and Assessment Details
Values
| (+) Improvement Homesite Value: | + | $0 | |
| (+) Improvement Non-Homesite Value: | + | $577,020 | |
| (+) Land Homesite Value: | + | $0 | |
| (+) Land Non-Homesite Value: | + | $132,550 | |
| (+) Curr Use (HS): | + | $0 | $0 |
| (+) Curr Use (NHS): | + | $0 | $0 |
| | | -------------------------- | |
| (=) Market Value: | = | $709,570 | |
| (–) Productivity Loss: | – | $0 | |
| | | -------------------------- | |
| (=) Subtotal: | = | $709,570 | |
| (+) Senior Appraised Value: | + | $0 | |
| (+) Non-Senior Appraised Value: | + | $709,570 | |
| | | -------------------------- | |
| (=) Total Appraised Value: | = | $709,570 | |
| (–) Senior Exemption Loss: | – | $0 | |
| (–) Exemption Loss: | – | $0 | |
| | | -------------------------- | |
| (=) Taxable Value: | = | $709,570 | |
Taxing Jurisdiction
| Owner: | DORSEY JAMES A & HOLLY D | | |
| % Ownership: | 100.0000000000% | | |
| Total Value: | $709,570 | | |
| Tax Area: | 101 - 140-4 |
| CERFD | CURRENT EXPENSE REFUND 010 | 0.0000000000 | $709,570 | $709,570 | $0.00 | | |
| CURREXP | CURRENT EXPENSE 010 | 1.0175366760 | $709,570 | $709,570 | $722.01 | | |
| HUMNSERV | HUMAN SERVICES 119 | 0.0250000000 | $709,570 | $709,570 | $17.74 | | |
| SLDREL | SOLDIERS RELIEF 121 | 0.0155990005 | $709,570 | $709,570 | $11.07 | | |
| EMERGSER | EMS 147 | 0.3792580840 | $709,570 | $709,570 | $269.11 | | |
| EMSRFD | EMS REFUND 147 | 0.0000000000 | $709,570 | $709,570 | $0.00 | | |
| FD4EXP | FD #4 EXPENSE 686 | 0.8836993059 | $709,570 | $709,570 | $627.05 | | |
| RLBRFD | RURAL LIBRARY REFUND 623 | 0.0000000000 | $709,570 | $709,570 | $0.00 | | |
| RURALLIB | RURAL LIBRARY 623 | 0.3710609029 | $709,570 | $709,570 | $263.29 | | |
| PORTRFD | PORT REFUND 640 | 0.0000000000 | $709,570 | $709,570 | $0.00 | | |
| PORTWWGEN | PORT OF WW 640 | 0.2460186015 | $709,570 | $709,570 | $174.57 | | |
| SD140BOND | SD #140 BOND 764 | 0.8342371393 | $709,570 | $709,570 | $591.95 | | |
| SD140GEN | SD #140 GENERAL 760 | 2.0646500647 | $709,570 | $709,570 | $1,465.01 | | |
| ST2 | STATE SCHOOL PART 2 600 | 0.8131451643 | $709,570 | $709,570 | $576.98 | | |
| STATESCHL | STATE SCHOOL 600 | 1.5158548041 | $709,570 | $709,570 | $1,075.61 | | |
| STREFUND | STATE REFUND LEVY 603 | 0.0000000000 | $709,570 | $709,570 | $0.00 | | |
| COROAD | COUNTY ROAD 115 | 1.6549953990 | $709,570 | $709,570 | $1,174.34 | | |
| CRPRD | COUNTY ROAD REFUND 115 | 0.0000000000 | $709,570 | $709,570 | $0.00 | | |
| | Total Tax Rate: | 9.8210551422 | | | | | |
| | | | | Taxes w/Current Exemptions: | $6,968.73 | | |
| | | | | Taxes w/o Exemptions: | $6,968.73 | | |
Improvement / Building
| Improvement #1: | RESIDENTIAL | State Code: | 11 | 2552.0 sqft | Value: | $577,020 |
| Exterior Wall: | SIDING | Heating/Cooling: | WARM & COOLED AIR | | Number of Bathrooms: | 3 | Number of Bedrooms: | 4 | | Plumbing: | 13 | Roof Covering: | COMP SHINGLE |
|
| | Type | Description | Class CD | Sub Class CD | Year Built | Area |
| | MA | Main Area | 1 | 45 | 1960 | 2552.0 |
| | SI1 | SITE IMPROVEMENT | 1 | 45 | 1960 | 5.0 |
| | BASE | BASEMENT | 1 | 45 | 1960 | 855.0 |
| | ATG | Attached Garage | 1 | 45 | 1960 | 700.0 |
| | RPO | OPEN PORCH W/ROOF | 1 | 45 | 1960 | 168.0 |
| | S1F | Single One Story Fireplace | 1 | 45 | 1960 | 1.0 |
| | DTG | Detached Garage | 1 | 45 | 1960 | 1760.0 |
| | RPC | OPEN PORCH W/ROOF , CEILED | 1 | 45 | 1960 | 228.0 |
| | DTG | Detached Garage | 1 | 45 | 2011 | 800.0 |
| | PRC | PORCH W STEPS, ROOF,CEILED | 1 | 45 | 1960 | 519.0 |
| | RPC | OPEN PORCH W/ROOF , CEILED | 1 | 45 | 1960 | 240.0 |
Sketch
Property Image
Land
| 1 | RES 1 | Converted: Residential | 0.5785 | 25199.46 | 0.00 | 0.00 | 1.00 | $132,550 | $0 |
Roll Value History
| 2026 | N/A | N/A | N/A | N/A | N/A |
| 2025 | $721,930 | $154,980 | $0 | $876,910 | $876,910 |
| 2024 | $577,020 | $132,550 | $0 | $709,570 | $709,570 |
| 2023 | $577,020 | $132,550 | $0 | $709,570 | $709,570 |
| 2022 | $577,020 | $107,860 | $0 | $684,880 | $684,880 |
| 2021 | $577,020 | $107,860 | $0 | $684,880 | $684,880 |
| 2020 | $480,850 | $107,860 | $0 | $588,710 | $588,710 |
| 2019 | $480,850 | $107,860 | $0 | $588,710 | $588,710 |
| 2018 | $317,410 | $60,000 | $0 | $377,410 | $377,410 |
| 2017 | $302,300 | $60,000 | $0 | $362,300 | $362,300 |
| 2016 | $302,300 | $60,000 | $0 | $362,300 | $362,300 |
| 2015 | $302,300 | $60,000 | $0 | $362,300 | $362,300 |
| 2014 | $287,900 | $60,000 | $0 | $347,900 | $347,900 |
| 2013 | $287,900 | $60,000 | $0 | $347,900 | $347,900 |
| 2012 | $287,900 | $60,000 | $0 | $0 | $0 |
| 2011 | $278,000 | $60,000 | $0 | $0 | $0 |
| 2010 | $278,000 | $60,000 | $0 | $0 | $0 |
| 2009 | $315,600 | $60,000 | $0 | $0 | $0 |
| 2008 | $315,600 | $60,000 | $0 | $0 | $0 |
| 2007 | $194,600 | $37,500 | $0 | $0 | $0 |
Deed and Sales History
| 1 | 11/01/2019 | SWD | STATUTORY WARRANTY DEED | MC CAULEY RONALD L | DORSEY JAMES A & HOLLY D | | | $585,000.00 | 138013 | 2019-08961 |
| 2 | 01/06/2015 | QCD | QUIT CLAIM DEED | MC CAULEY LINDA L | MC CAULEY RONALD L | | | $0.00 | 133705 | 2017-09580 |
| 3 | 02/06/2015 | COURT CASE | COURT CASE | MC CAULEY RONALD L & LINDA L | MC CAULEY RON | | | | 0 | CC 14-3-00220-8 |
| 4 | 12/27/1990 | WARRANTY D | WARRANTY DEED | | | | | $118,500.00 | 0 | 1869-008966 |
Payout Agreement
| No payout information available.. |