Property
Account |
| Property ID: | 1258 | Abbreviated Legal Description: | RIVERSIDE TX 2 BLK 2 |
| Parcel Number: | 360720690205 | Agent Code: | |
| Type: | Real | | |
| Tax Area: | 1 - OL-140-F | Land Use Code | 11 |
| Open Space: | N | DFL | N |
| Historic Property: | N | Remodel Property: | N |
| Multi-Family Redevelopment: | N | | |
| Township: | 7 | Section: | 20 |
| Range: | 36 |
Location |
| Address: | 134 OTIS ST WA 99362 | Mapsco: | |
| Neighborhood: | G-SFR | Map ID: | |
| Neighborhood CD: | 514011 |
Owner |
| Name: | CORDOVA CRICKET C | Owner ID: | 67453 |
| Mailing Address: | DALE JOHN CHAPMAN 134 OTIS ST WALLA WALLA, WA 99362 | % Ownership: | 100.0000000000% |
| | | Exemptions: | |
Taxes and Assessment Details
Values
| (+) Improvement Homesite Value: | + | $0 | |
| (+) Improvement Non-Homesite Value: | + | $493,550 | |
| (+) Land Homesite Value: | + | $0 | |
| (+) Land Non-Homesite Value: | + | $64,380 | |
| (+) Curr Use (HS): | + | $0 | $0 |
| (+) Curr Use (NHS): | + | $0 | $0 |
| | | -------------------------- | |
| (=) Market Value: | = | $557,930 | |
| (–) Productivity Loss: | – | $0 | |
| | | -------------------------- | |
| (=) Subtotal: | = | $557,930 | |
| (+) Senior Appraised Value: | + | $0 | |
| (+) Non-Senior Appraised Value: | + | $557,930 | |
| | | -------------------------- | |
| (=) Total Appraised Value: | = | $557,930 | |
| (–) Senior Exemption Loss: | – | $0 | |
| (–) Exemption Loss: | – | $0 | |
| | | -------------------------- | |
| (=) Taxable Value: | = | $557,930 | |
Taxing Jurisdiction
| Owner: | CORDOVA CRICKET C | | |
| % Ownership: | 100.0000000000% | | |
| Total Value: | $557,930 | | |
| Tax Area: | 1 - OL-140-F |
| CERFD | CURRENT EXPENSE REFUND 010 | 0.0000000000 | $557,930 | $557,930 | $0.00 | | |
| CURREXP | CURRENT EXPENSE 010 | 1.0175366760 | $557,930 | $557,930 | $567.71 | | |
| HUMNSERV | HUMAN SERVICES 119 | 0.0250000000 | $557,930 | $557,930 | $13.95 | | |
| SLDREL | SOLDIERS RELIEF 121 | 0.0155990005 | $557,930 | $557,930 | $8.70 | | |
| EMERGSER | EMS 147 | 0.3792580840 | $557,930 | $557,930 | $211.60 | | |
| EMSRFD | EMS REFUND 147 | 0.0000000000 | $557,930 | $557,930 | $0.00 | | |
| PORTRFD | PORT REFUND 640 | 0.0000000000 | $557,930 | $557,930 | $0.00 | | |
| PORTWWGEN | PORT OF WW 640 | 0.2460186015 | $557,930 | $557,930 | $137.26 | | |
| SD140BOND | SD #140 BOND 764 | 0.8342371393 | $557,930 | $557,930 | $465.45 | | |
| SD140GEN | SD #140 GENERAL 760 | 2.0646500647 | $557,930 | $557,930 | $1,151.93 | | |
| ST2 | STATE SCHOOL PART 2 600 | 0.8131451643 | $557,930 | $557,930 | $453.68 | | |
| STATESCHL | STATE SCHOOL 600 | 1.5158548041 | $557,930 | $557,930 | $845.74 | | |
| STREFUND | STATE REFUND LEVY 603 | 0.0000000000 | $557,930 | $557,930 | $0.00 | | |
| CWWBOND | C OF WW BOND 643 | 0.2760494372 | $557,930 | $557,930 | $154.02 | | |
| CWWGEN | CITY OF WW 631 | 1.6100204973 | $557,930 | $557,930 | $898.28 | | |
| CWWRFD | CITY OF WALLA WALLA REFUND 631 | 0.0000000000 | $557,930 | $557,930 | $0.00 | | |
| | Total Tax Rate: | 8.7973694689 | | | | | |
| | | | | Taxes w/Current Exemptions: | $4,908.32 | | |
| | | | | Taxes w/o Exemptions: | $4,908.32 | | |
Improvement / Building
| Improvement #1: | RESIDENTIAL | State Code: | 11 | 2466.0 sqft | Value: | $493,550 |
| Exterior Wall: | SIDING | Heating/Cooling: | HEAT PUMP | | Number of Bathrooms: | 2 | Number of Bedrooms: | 5 | | Plumbing: | 9 | Roof Covering: | COMP SHINGLE |
|
| | Type | Description | Class CD | Sub Class CD | Year Built | Area |
| | MA | Main Area | 2 | 40 | 1921 | 2466.0 |
| | ATIC | ATTIC ROOM | 2 | 40 | 0 | 462.0 |
| | SI1 | SITE IMPROVEMENT | 2 | 40 | 0 | 2.5 |
| | BASE | BASEMENT | 2 | 40 | 1921 | 1200.0 |
| | DTG | Detached Garage | 2 | 40 | 1921 | 440.0 |
| | S2F | Single 2S Fireplace | 2 | 40 | 1921 | 1.0 |
| | SWP | Solid Wall Porch | 2 | 40 | 1921 | 30.0 |
| | SPO | SCREENED PORCH | 2 | 40 | 1921 | 225.0 |
| | RPS | PORCH W/STEPS,ROOF | 2 | 40 | 1921 | 48.0 |
| | RPS | PORCH W/STEPS,ROOF | 2 | 40 | 1921 | 60.0 |
| | UPFL | Upper Floor (included in main area) | 2 | 40 | 1921 | 1200.0 |
Sketch
Property Image
Land
| 1 | RES 1 | Converted: Residential | 0.2039 | 8880.00 | 0.00 | 0.00 | 1.00 | $64,380 | $0 |
Roll Value History
| 2026 | N/A | N/A | N/A | N/A | N/A |
| 2025 | $465,990 | $97,680 | $0 | $563,670 | $563,670 |
| 2024 | $465,990 | $97,680 | $0 | $563,670 | $563,670 |
| 2023 | $493,550 | $64,380 | $0 | $557,930 | $557,930 |
| 2022 | $448,680 | $64,380 | $0 | $513,060 | $513,060 |
| 2021 | $345,140 | $64,380 | $0 | $409,520 | $409,520 |
| 2020 | $313,760 | $64,380 | $0 | $378,140 | $378,140 |
| 2019 | $313,760 | $64,380 | $0 | $378,140 | $378,140 |
| 2018 | $298,820 | $64,380 | $0 | $363,200 | $363,200 |
| 2017 | $246,850 | $40,000 | $0 | $286,850 | $286,850 |
| 2016 | $235,100 | $40,000 | $0 | $275,100 | $275,100 |
| 2015 | $235,100 | $40,000 | $0 | $275,100 | $275,100 |
| 2014 | $223,900 | $40,000 | $0 | $263,900 | $263,900 |
| 2013 | $223,900 | $40,000 | $0 | $263,900 | $263,900 |
| 2012 | $233,600 | $40,000 | $0 | $0 | $0 |
| 2011 | $233,600 | $40,000 | $0 | $0 | $0 |
| 2010 | $220,600 | $40,000 | $0 | $0 | $0 |
| 2009 | $237,300 | $40,000 | $0 | $0 | $0 |
| 2008 | $212,100 | $40,000 | $0 | $0 | $0 |
| 2007 | $212,100 | $40,000 | $0 | $0 | $0 |
Deed and Sales History
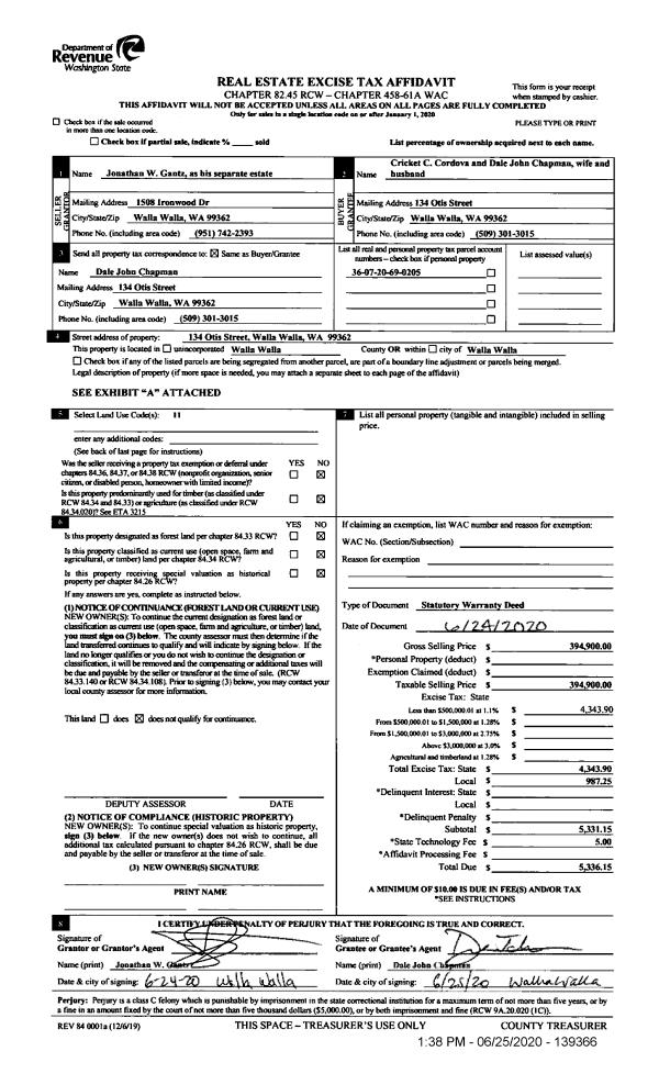
| 1 | 06/25/2020 | SWD | STATUTORY WARRANTY DEED | GANTZ JONATHAN W | CORDOVA CRICKET C | | | $394,900.00 | 139366 | 2020-05865 |
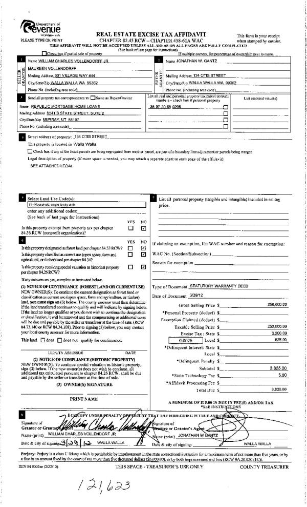
| 2 | 04/04/2012 | WARRANTY D | WARRANTY DEED | VOLLENDORFF, W C JR & MAUREEN | GANTZ, JONATHAN W | | | $250,000.00 | 121623 | 2012-02711 |
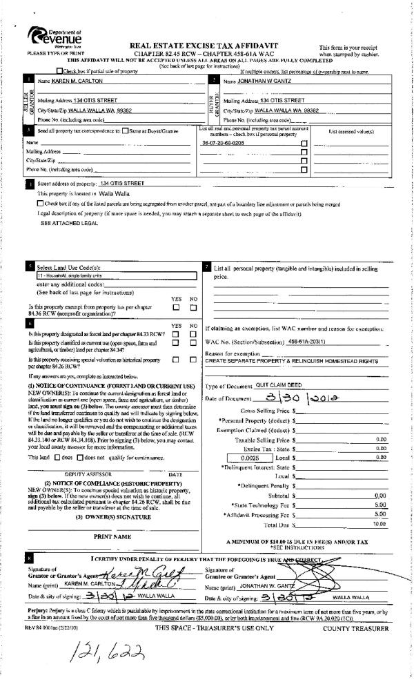
| 3 | 04/04/2012 | QCD | QUIT CLAIM DEED | CARLTON, KAREN M | GANTZ, JONATHAN W | | | $0.00 | 121622 | 2012-02710 |
| 4 | 11/15/2002 | QCD | QUIT CLAIM DEED | VOLLENDORFF, W C JR & MAUREEN | VOLLENDORFF, W C JR & MAUREEN | | | | 100821 | 2002-13049 |
Payout Agreement
| No payout information available.. |