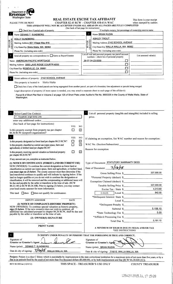
Property
Account |
| Property ID: | 12547 | Abbreviated Legal Description: | 34-7-36 NELY PTN TAX 27 (WITHIN SW1/4NW1/4) LESS RD |
| Parcel Number: | 360734230059 | Agent Code: | |
| Type: | Real | | |
| Tax Area: | 101 - 140-4 | Land Use Code | 11 |
| Open Space: | N | DFL | N |
| Historic Property: | N | Remodel Property: | N |
| Multi-Family Redevelopment: | N | | |
| Township: | 7 | Section: | 34 |
| Range: | 36 |
Location |
| Address: | 2142 SCHOOL AVE WA 99362 | Mapsco: | |
| Neighborhood: | G Res Rural/City Inf | Map ID: | |
| Neighborhood CD: | 614012 |
Owner |
| Name: | RUDIN BRIAN | Owner ID: | 57026 |
| Mailing Address: | ASHLEY TROUT 2142 SCHOOL AVE WALLA WALLA, WA 99362 | % Ownership: | 100.0000000000% |
| | | Exemptions: | |
Taxes and Assessment Details
Values
| (+) Improvement Homesite Value: | + | $0 | |
| (+) Improvement Non-Homesite Value: | + | $449,310 | |
| (+) Land Homesite Value: | + | $0 | |
| (+) Land Non-Homesite Value: | + | $152,110 | |
| (+) Curr Use (HS): | + | $0 | $0 |
| (+) Curr Use (NHS): | + | $0 | $0 |
| | | -------------------------- | |
| (=) Market Value: | = | $601,420 | |
| (–) Productivity Loss: | – | $0 | |
| | | -------------------------- | |
| (=) Subtotal: | = | $601,420 | |
| (+) Senior Appraised Value: | + | $0 | |
| (+) Non-Senior Appraised Value: | + | $601,420 | |
| | | -------------------------- | |
| (=) Total Appraised Value: | = | $601,420 | |
| (–) Senior Exemption Loss: | – | $0 | |
| (–) Exemption Loss: | – | $0 | |
| | | -------------------------- | |
| (=) Taxable Value: | = | $601,420 | |
Taxing Jurisdiction
| Owner: | RUDIN BRIAN | | |
| % Ownership: | 100.0000000000% | | |
| Total Value: | $601,420 | | |
| Tax Area: | 101 - 140-4 |
| CERFD | CURRENT EXPENSE REFUND 010 | 0.0000000000 | $601,420 | $601,420 | $0.00 | | |
| CURREXP | CURRENT EXPENSE 010 | 1.0175366760 | $601,420 | $601,420 | $611.97 | | |
| HUMNSERV | HUMAN SERVICES 119 | 0.0250000000 | $601,420 | $601,420 | $15.04 | | |
| SLDREL | SOLDIERS RELIEF 121 | 0.0155990005 | $601,420 | $601,420 | $9.38 | | |
| EMERGSER | EMS 147 | 0.3792580840 | $601,420 | $601,420 | $228.09 | | |
| EMSRFD | EMS REFUND 147 | 0.0000000000 | $601,420 | $601,420 | $0.00 | | |
| FD4EXP | FD #4 EXPENSE 686 | 0.8836993059 | $601,420 | $601,420 | $531.47 | | |
| RLBRFD | RURAL LIBRARY REFUND 623 | 0.0000000000 | $601,420 | $601,420 | $0.00 | | |
| RURALLIB | RURAL LIBRARY 623 | 0.3710609029 | $601,420 | $601,420 | $223.16 | | |
| PORTRFD | PORT REFUND 640 | 0.0000000000 | $601,420 | $601,420 | $0.00 | | |
| PORTWWGEN | PORT OF WW 640 | 0.2460186015 | $601,420 | $601,420 | $147.96 | | |
| SD140BOND | SD #140 BOND 764 | 0.8342371393 | $601,420 | $601,420 | $501.73 | | |
| SD140GEN | SD #140 GENERAL 760 | 2.0646500647 | $601,420 | $601,420 | $1,241.72 | | |
| ST2 | STATE SCHOOL PART 2 600 | 0.8131451643 | $601,420 | $601,420 | $489.04 | | |
| STATESCHL | STATE SCHOOL 600 | 1.5158548041 | $601,420 | $601,420 | $911.67 | | |
| STREFUND | STATE REFUND LEVY 603 | 0.0000000000 | $601,420 | $601,420 | $0.00 | | |
| COROAD | COUNTY ROAD 115 | 1.6549953990 | $601,420 | $601,420 | $995.35 | | |
| CRPRD | COUNTY ROAD REFUND 115 | 0.0000000000 | $601,420 | $601,420 | $0.00 | | |
| | Total Tax Rate: | 9.8210551422 | | | | | |
| | | | | Taxes w/Current Exemptions: | $5,906.58 | | |
| | | | | Taxes w/o Exemptions: | $5,906.58 | | |
Improvement / Building
| Improvement #1: | RESIDENTIAL | State Code: | 11 | 1927.0 sqft | Value: | $449,310 |
| Exterior Wall: | SIDING | Heating/Cooling: | BASEBOARD HOT WATER | | Number of Bathrooms: | 3 | Number of Bedrooms: | 3 | | Plumbing: | 12 | Roof Covering: | COMP SHINGLE |
|
| | Type | Description | Class CD | Sub Class CD | Year Built | Area |
| | MA | Main Area | 1 | 35 | 1961 | 1927.0 |
| | SI1 | SITE IMPROVEMENT | 1 | 35 | 1961 | 4.5 |
| | BASE | BASEMENT | 1 | 35 | 1961 | 1856.0 |
| | BPF | BASEMENT -PARTITIONED FINISH | 1 | 35 | 1961 | 518.0 |
| | DTG | Detached Garage | 1 | 35 | 1961 | 888.0 |
| | RPO | OPEN PORCH W/ROOF | 1 | 35 | 1961 | 266.0 |
| | D1F | Double 1 Story Fireplace | 1 | 35 | 1961 | 1.0 |
| | BRW | BREEZEWAY | 1 | 35 | 1961 | 663.0 |
Sketch
Property Image
Land
| 1 | RES 1 | Converted: Residential | 1.0700 | 0.00 | 0.00 | 0.00 | 1.00 | $152,110 | $0 |
Roll Value History
| 2026 | N/A | N/A | N/A | N/A | N/A |
| 2025 | $517,380 | $172,310 | $0 | $689,690 | $689,690 |
| 2024 | $449,310 | $152,110 | $0 | $601,420 | $601,420 |
| 2023 | $449,310 | $152,110 | $0 | $601,420 | $601,420 |
| 2022 | $408,460 | $103,790 | $0 | $512,250 | $512,250 |
| 2021 | $355,190 | $103,790 | $0 | $458,980 | $458,980 |
| 2020 | $236,790 | $103,790 | $0 | $340,580 | $340,580 |
| 2019 | $236,790 | $103,790 | $0 | $340,580 | $340,580 |
| 2018 | $273,080 | $75,600 | $0 | $348,680 | $348,680 |
| 2017 | $248,250 | $75,600 | $0 | $323,850 | $323,850 |
| 2016 | $225,680 | $75,600 | $0 | $301,280 | $301,280 |
| 2015 | $214,940 | $75,600 | $0 | $290,540 | $290,540 |
| 2014 | $204,700 | $75,600 | $0 | $280,300 | $280,300 |
| 2013 | $204,700 | $75,600 | $0 | $280,300 | $280,300 |
| 2012 | $199,300 | $75,600 | $0 | $0 | $0 |
| 2011 | $199,300 | $75,600 | $0 | $0 | $0 |
| 2010 | $199,300 | $75,600 | $0 | $0 | $0 |
| 2009 | $229,800 | $75,600 | $0 | $0 | $0 |
| 2008 | $229,800 | $75,600 | $0 | $0 | $0 |
| 2007 | $162,500 | $44,400 | $0 | $0 | $0 |
Deed and Sales History
| 1 | 07/17/2015 | SWD | STATUTORY WARRANTY DEED | SUNDBERG DENNIS T & HOLLY | RUDIN BRIAN | | | $337,000.00 | 128420 | 2015-06122 |
| 2 | 06/29/1989 | WARRANTY D | WARRANTY DEED | | | | | $110,000.00 | 0 | 1778-903988 |
Payout Agreement
| No payout information available.. |