Property
Account |
| Property ID: | 12546 | Abbreviated Legal Description: | 34-7-36 TAX 27B PLUS TRACT (WITHIN SW1/4NW1/4) LESS RD |
| Parcel Number: | 360734230058 | Agent Code: | |
| Type: | Real | | |
| Tax Area: | 101 - 140-4 | Land Use Code | 11 |
| Open Space: | N | DFL | N |
| Historic Property: | N | Remodel Property: | N |
| Multi-Family Redevelopment: | N | | |
| Township: | 7 | Section: | 34 |
| Range: | 36 |
Location |
| Address: | 2168 SCHOOL AVE WA 99362 | Mapsco: | |
| Neighborhood: | G Res Rural/City Inf | Map ID: | |
| Neighborhood CD: | 614012 |
Owner |
| Name: | OWSLEY NOEL & ELIZABETH ANNE | Owner ID: | 71772 |
| Mailing Address: | 2168 SCHOOL AVE WALLA WALLA, WA 99362 | % Ownership: | 100.0000000000% |
| | | Exemptions: | |
Taxes and Assessment Details
Values
| (+) Improvement Homesite Value: | + | $0 | |
| (+) Improvement Non-Homesite Value: | + | $542,750 | |
| (+) Land Homesite Value: | + | $0 | |
| (+) Land Non-Homesite Value: | + | $150,000 | |
| (+) Curr Use (HS): | + | $0 | $0 |
| (+) Curr Use (NHS): | + | $0 | $0 |
| | | -------------------------- | |
| (=) Market Value: | = | $692,750 | |
| (–) Productivity Loss: | – | $0 | |
| | | -------------------------- | |
| (=) Subtotal: | = | $692,750 | |
| (+) Senior Appraised Value: | + | $0 | |
| (+) Non-Senior Appraised Value: | + | $692,750 | |
| | | -------------------------- | |
| (=) Total Appraised Value: | = | $692,750 | |
| (–) Senior Exemption Loss: | – | $0 | |
| (–) Exemption Loss: | – | $0 | |
| | | -------------------------- | |
| (=) Taxable Value: | = | $692,750 | |
Taxing Jurisdiction
| Owner: | OWSLEY NOEL & ELIZABETH ANNE | | |
| % Ownership: | 100.0000000000% | | |
| Total Value: | $692,750 | | |
| Tax Area: | 101 - 140-4 |
| CERFD | CURRENT EXPENSE REFUND 010 | 0.0000000000 | $692,750 | $692,750 | $0.00 | | |
| CURREXP | CURRENT EXPENSE 010 | 1.0175366760 | $692,750 | $692,750 | $704.90 | | |
| HUMNSERV | HUMAN SERVICES 119 | 0.0250000000 | $692,750 | $692,750 | $17.32 | | |
| SLDREL | SOLDIERS RELIEF 121 | 0.0155990005 | $692,750 | $692,750 | $10.81 | | |
| EMERGSER | EMS 147 | 0.3792580840 | $692,750 | $692,750 | $262.73 | | |
| EMSRFD | EMS REFUND 147 | 0.0000000000 | $692,750 | $692,750 | $0.00 | | |
| FD4EXP | FD #4 EXPENSE 686 | 0.8836993059 | $692,750 | $692,750 | $612.18 | | |
| RLBRFD | RURAL LIBRARY REFUND 623 | 0.0000000000 | $692,750 | $692,750 | $0.00 | | |
| RURALLIB | RURAL LIBRARY 623 | 0.3710609029 | $692,750 | $692,750 | $257.05 | | |
| PORTRFD | PORT REFUND 640 | 0.0000000000 | $692,750 | $692,750 | $0.00 | | |
| PORTWWGEN | PORT OF WW 640 | 0.2460186015 | $692,750 | $692,750 | $170.43 | | |
| SD140BOND | SD #140 BOND 764 | 0.8342371393 | $692,750 | $692,750 | $577.92 | | |
| SD140GEN | SD #140 GENERAL 760 | 2.0646500647 | $692,750 | $692,750 | $1,430.29 | | |
| ST2 | STATE SCHOOL PART 2 600 | 0.8131451643 | $692,750 | $692,750 | $563.31 | | |
| STATESCHL | STATE SCHOOL 600 | 1.5158548041 | $692,750 | $692,750 | $1,050.11 | | |
| STREFUND | STATE REFUND LEVY 603 | 0.0000000000 | $692,750 | $692,750 | $0.00 | | |
| COROAD | COUNTY ROAD 115 | 1.6549953990 | $692,750 | $692,750 | $1,146.50 | | |
| CRPRD | COUNTY ROAD REFUND 115 | 0.0000000000 | $692,750 | $692,750 | $0.00 | | |
| | Total Tax Rate: | 9.8210551422 | | | | | |
| | | | | Taxes w/Current Exemptions: | $6,803.55 | | |
| | | | | Taxes w/o Exemptions: | $6,803.55 | | |
Improvement / Building
| Improvement #1: | RESIDENTIAL | State Code: | 11 | 1795.0 sqft | Value: | $542,750 |
| Exterior Wall: | PLYWOOD | Heating/Cooling: | WARM & COOLED AIR | | Number of Bathrooms: | 2 | Number of Bedrooms: | 3 | | Plumbing: | 9 | Roof Covering: | COMP SHINGLE |
|
| | Type | Description | Class CD | Sub Class CD | Year Built | Area |
| | MA | Main Area | 1 | 35 | 1989 | 1795.0 |
| | SI1 | SITE IMPROVEMENT | 1 | 35 | 1989 | 4.5 |
| | BASE | BASEMENT | 1 | 35 | 1989 | 878.0 |
| | BPF | BASEMENT -PARTITIONED FINISH | 1 | 35 | 1989 | 878.0 |
| | ATG | Attached Garage | 1 | 35 | 1989 | 720.0 |
| | RPO | OPEN PORCH W/ROOF | 1 | 35 | 1989 | 150.0 |
| | WOD | Wood Deck | 1 | 35 | 1989 | 123.0 |
| | S1F | Single One Story Fireplace | 1 | 35 | 1989 | 1.0 |
| | POL1 | POLE BUILDING-GRAVEL | 1 | 35 | 1989 | 672.0 |
Sketch
Property Image
Land
| 1 | RES 1 | Converted: Residential | 1.0000 | 0.00 | 0.00 | 0.00 | 1.00 | $150,000 | $0 |
Roll Value History
| 2026 | N/A | N/A | N/A | N/A | N/A |
| 2025 | $538,760 | $170,000 | $0 | $708,760 | $708,760 |
| 2024 | $542,750 | $150,000 | $0 | $692,750 | $692,750 |
| 2023 | $542,750 | $150,000 | $0 | $692,750 | $692,750 |
| 2022 | $415,580 | $120,000 | $0 | $535,580 | $535,580 |
| 2021 | $346,320 | $120,000 | $0 | $466,320 | $466,320 |
| 2020 | $230,880 | $120,000 | $0 | $350,880 | $350,880 |
| 2019 | $230,880 | $120,000 | $0 | $350,880 | $350,880 |
| 2018 | $262,940 | $75,000 | $0 | $337,940 | $337,940 |
| 2017 | $239,030 | $75,000 | $0 | $314,030 | $314,030 |
| 2016 | $217,300 | $75,000 | $0 | $292,300 | $292,300 |
| 2015 | $206,960 | $75,000 | $0 | $281,960 | $281,960 |
| 2014 | $197,100 | $75,000 | $0 | $272,100 | $272,100 |
| 2013 | $197,100 | $75,000 | $0 | $272,100 | $272,100 |
| 2012 | $183,300 | $75,000 | $0 | $0 | $0 |
| 2011 | $183,300 | $75,000 | $0 | $0 | $0 |
| 2010 | $183,300 | $75,000 | $0 | $0 | $0 |
| 2009 | $212,000 | $75,000 | $0 | $0 | $0 |
| 2008 | $212,000 | $75,000 | $0 | $0 | $0 |
| 2007 | $164,700 | $44,000 | $0 | $0 | $0 |
Deed and Sales History
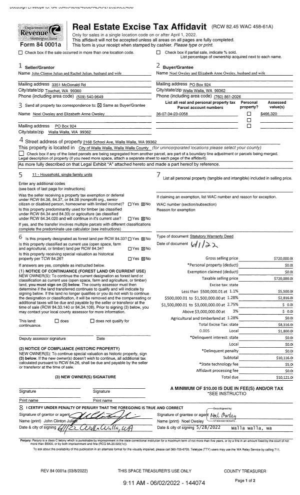
| 1 | 06/02/2022 | SWD | STATUTORY WARRANTY DEED | JULIAN JOHN CLINTON & RACHEL | OWSLEY NOEL & ELIZABETH ANNE | | | $720,000.00 | 144074 | 2022-04718 |
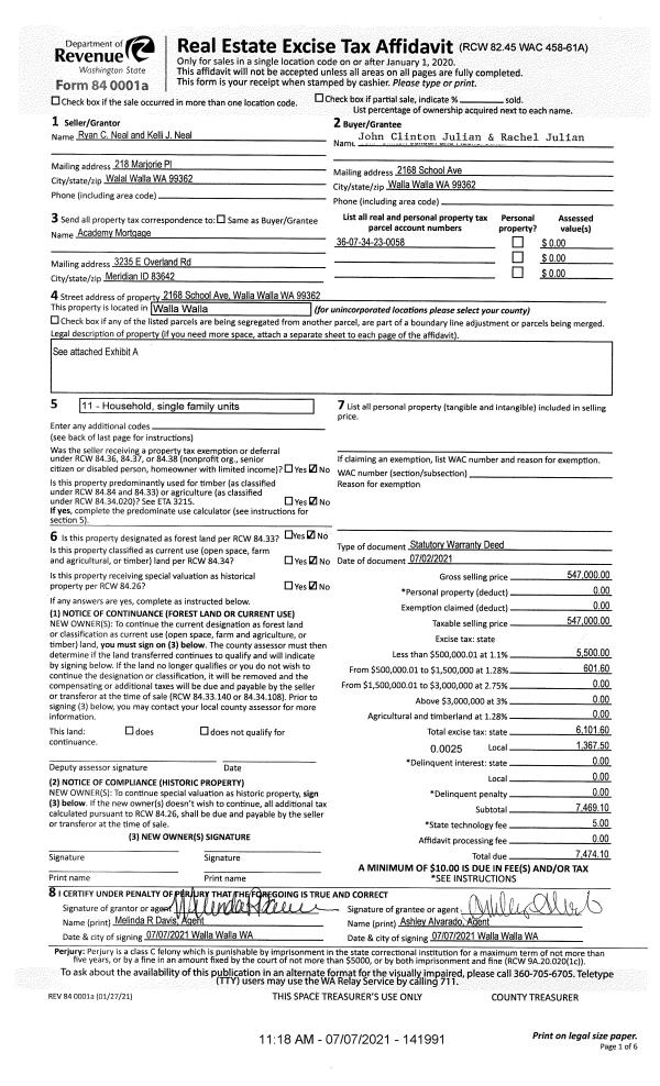
| 2 | 07/07/2021 | SWD | STATUTORY WARRANTY DEED | NEAL RYAN C & KELLI | JULIAN JOHN CLINTON & RACHEL | | | $547,000.00 | 141991 | 2021-08206 |
| 3 | 01/04/2018 | SWD | STATUTORY WARRANTY DEED | HIGGINS RONALD S & ELIZABETH | NEAL RYAN C & KELLI | | | $360,000.00 | 133957 | 2018-00135 |
| 4 | 03/28/1997 | WARRANTY D | WARRANTY DEED | | | | | $179,000.00 | 87893 | 2509-702687 |
Payout Agreement
| No payout information available.. |